
화랑대철도공원은 옛 경춘선 철로구간과 간이역사(현 화랑대역사관)를 보존하여 조성한 문화공원이다. 북측으로는 화랑로에 면하고 남측으로는 목동천 및 육군사관학교 부지에 면하여 폭이 좁고 길이가 긴 대지에 철로를 따라 다양한 공원시설이 존재한다. 대지를 관통하는 철로구간은 서측으로는 화랑대역으로 이어지며 동측으로는 태릉을 지난다.
다양한 공간의 켜와 시간의 흐름 속에 놓인 화랑대철도공원 커뮤니티센터는 철로를 따라 이어지는 주변 도시의 선형을 따르며, 기존 수목을 최대한 보존하고 기존 공원시설들과 조화를 이루도록 배치하였다.
커뮤니티 센터의 내부공간은 공원 및 화랑대역사관을 향해 열려 있는 공간이될 것이며, 특히 서측에 위치한 다목적실은 화랑대역사관과 그 사이공간을 바라보고 있는 유연한 공간으로서 방문객들을 위한 다양한 프로그램을 담을 수 있는 공공을 위한 방(Public Room)이 될 것이다.
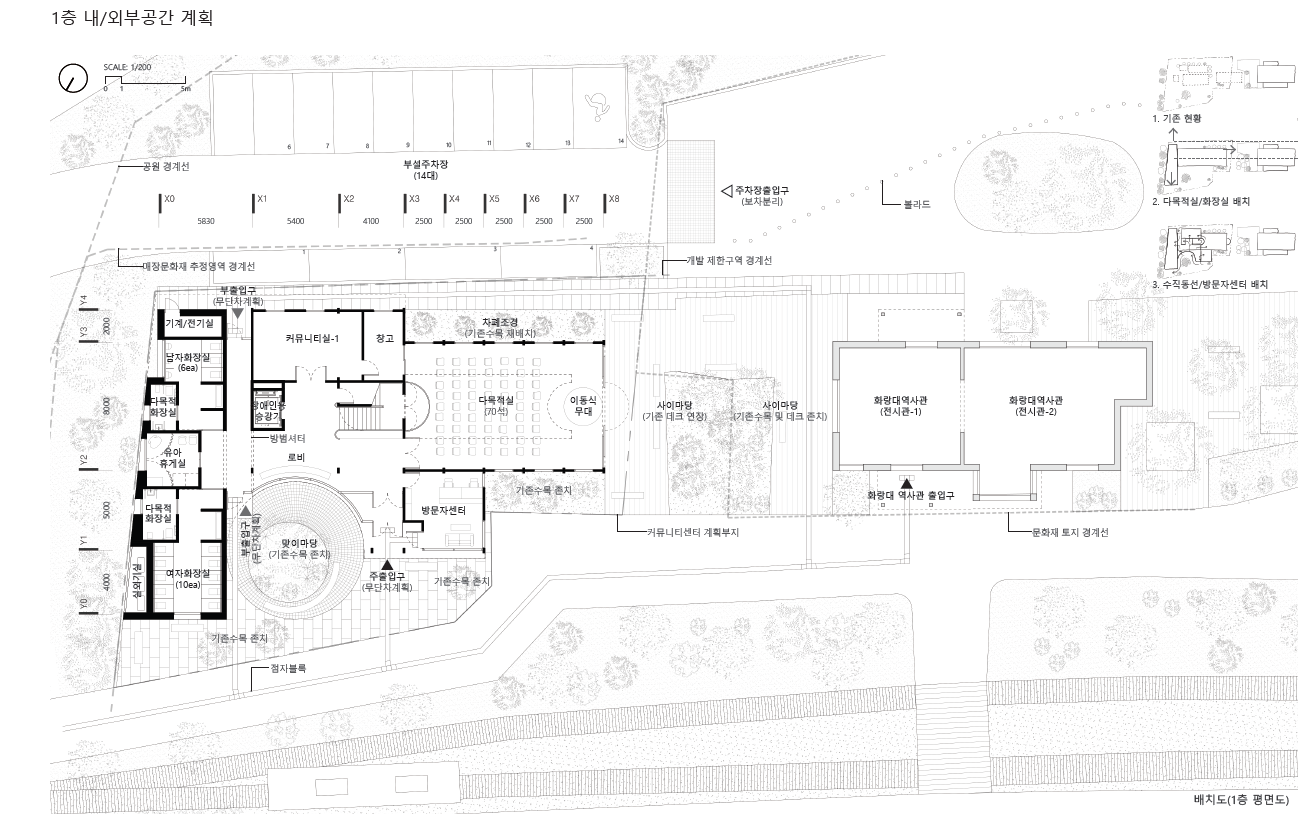
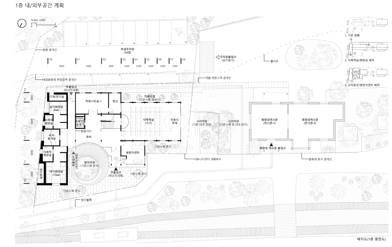
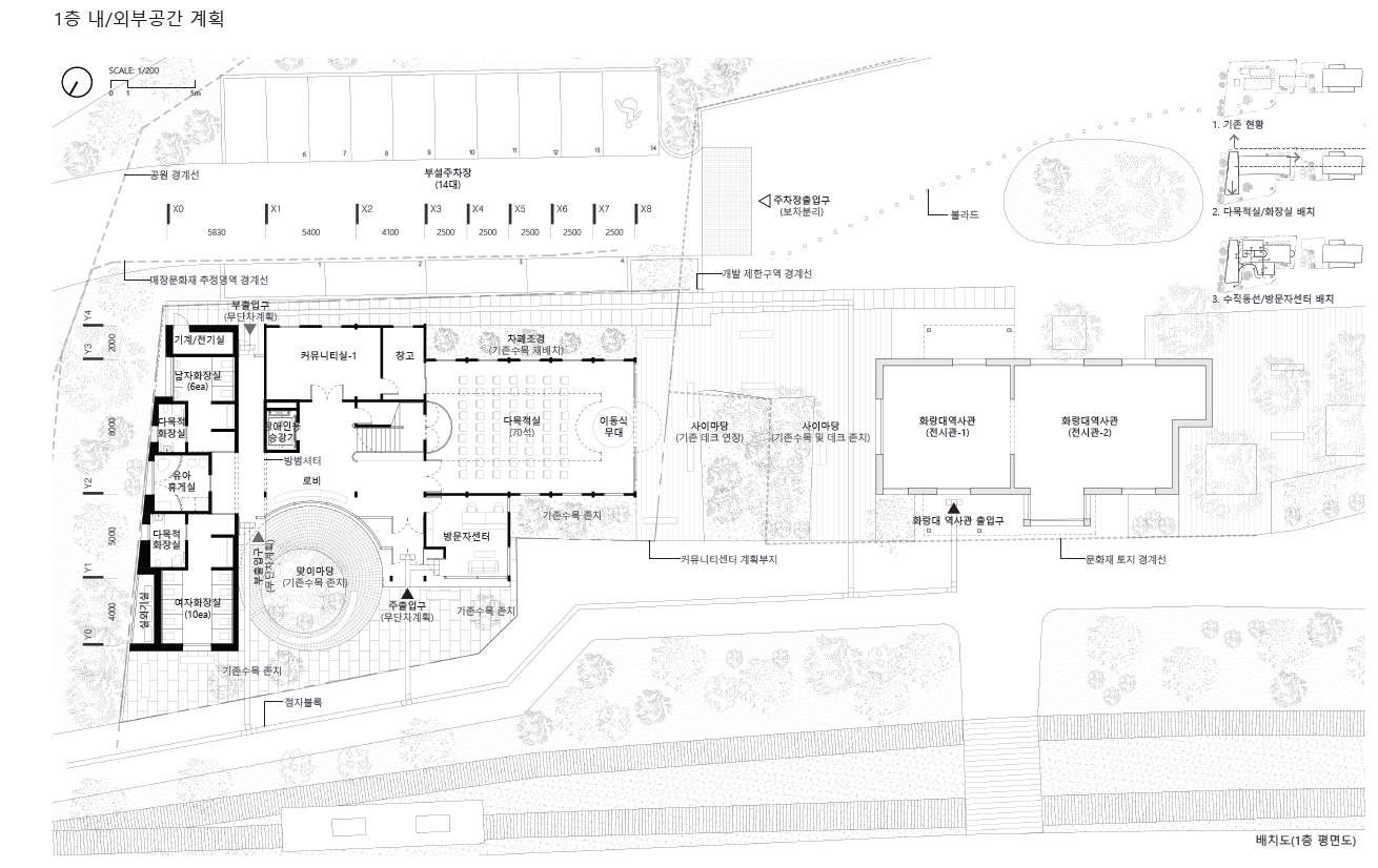
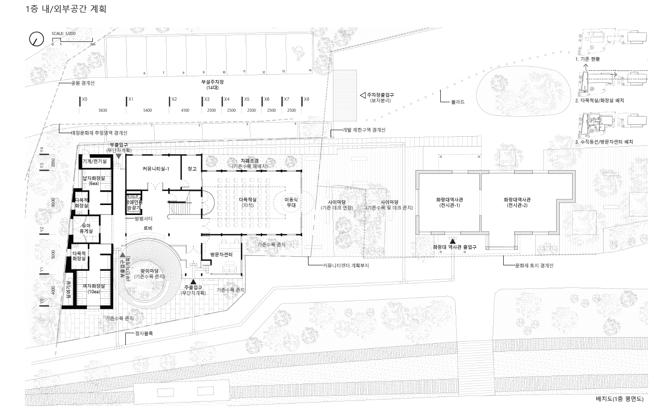
1층 내외부 공간 계획은 커뮤니티센터 부지 인근의 화랑대역사관과 공원시설, 기존 수목을 고려하여 주요 프로그램 공간을 배치하고 그 사이로 공원 보행로와 주차장 에서의 원활한 접근을 위한 출입동선과 공용공간을 계획하는 것에서 출발하였다.
서측의 다목적홀은 고정식 관람석 보다는 유연하게 사용될 수 있는 복층의 메자닌 공간으로 계획하여 화랑대역사관을 바라보게 하였고, 1층과 2층을 연결하는 수직 동선을 가운데 배치하여 각 공간으로의 접근이 용이하도록 하였으며, 계단참을 통해 다목적실의 내부 발코니와 연결되도록 하였다.
2층 내외부 공간 계획은 가운데 위치한 수직동선을 중심으로 각각의 실들을 순환형으로 배치하여 프로그램 마다 적정 크기로 구획된 방들을 개별적으로 사용하거나, 필요에 따라 출입구를 모두 개방하여 하나의 시컨스로 2층 전체 내외부 공간을 경험할 수 있도록 하였다.
1층과 2층의 커뮤니티실(3개실)은 모두 남향 채광을 고려하여 배치하였으며, 책쉼터는 동측의 하천과 공원을 조망할 수 있고, 공원을 향하여 넓게 자리한 외부 테라스와 연계하여 사용할 수 있다.








건축사사무소 오삼일비
당선작_ 건축사사무소 오삼일비 (https://www.studio531b.com)
대표건축가 오승영, 황기수
대지면적 635.00㎡
연면적 576.74㎡
건축면적 349.64㎡
건폐율 6.52% (공원 전체 기준)
용적률 7.44% (공원 전체 기준)
최고높이 9.6m
층수 지상 2층
용도 관광휴게시설 (공원에 부수되는 시설)
대표건축가 오승영, 황기수
구조 철근콘크리트구조 / 중목구조
주차대수 기존 부설주차장 사용
발주처 노원구청
'Plans' 카테고리의 다른 글
| 보령 문화테마파크 조성사업 설계공모_ 당선작 / 건축사사무소 오드투에이 (0) | 2025.07.02 |
|---|---|
| 화랑대철도공원 커뮤니티센터 신축공사 설계용역 설계공모_ 4등작(가작 2) / 소나건축사사무소 (0) | 2025.06.30 |
| 갯벌치유 관광플랫폼 조성 설계공모_ 당선작 / 와이즈건축사사무소 (0) | 2025.06.30 |
| 망성면 기초생활거점조성사업 세부설계 설계공모_ 당선작 / (주)더블유에이치와이건축사사무소 (0) | 2025.06.30 |
| 연지초등학교 공간재구조화 교사개축 설계공모_ 3등작 / 주식회사 라움건축사사무소 (0) | 2025.06.27 |
마실와이드 | 등록번호 : 서울, 아03630 | 등록일자 : 2015년 03월 11일 | 마실와이드 | 발행ㆍ편집인 : 김명규 | 청소년보호책임자 : 최지희 | 발행소 : 서울시 마포구 월드컵로8길 45-8 1층 | 발행일자 : 매일



