
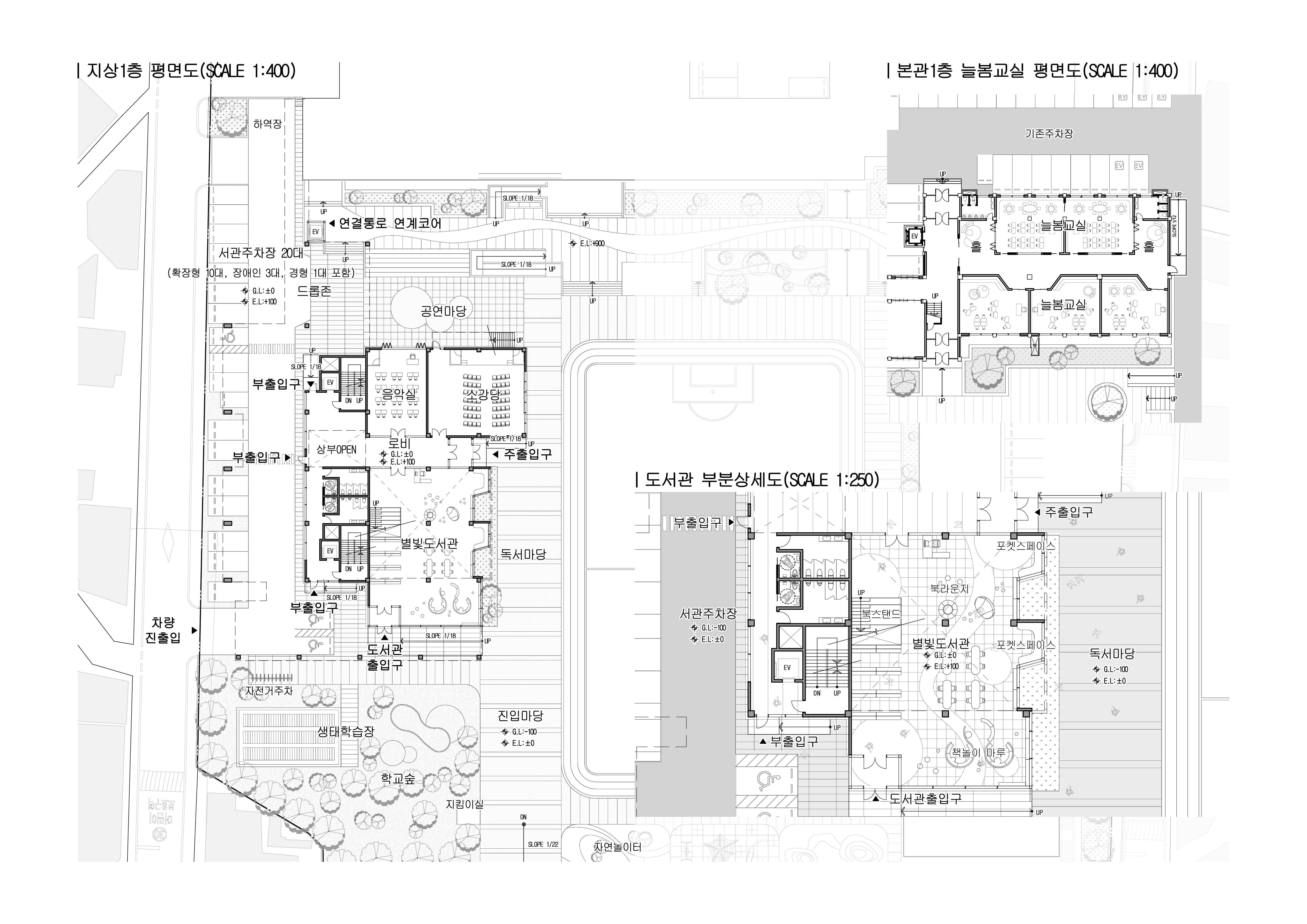
공간을 통해 학습하는 다중적 미래학교
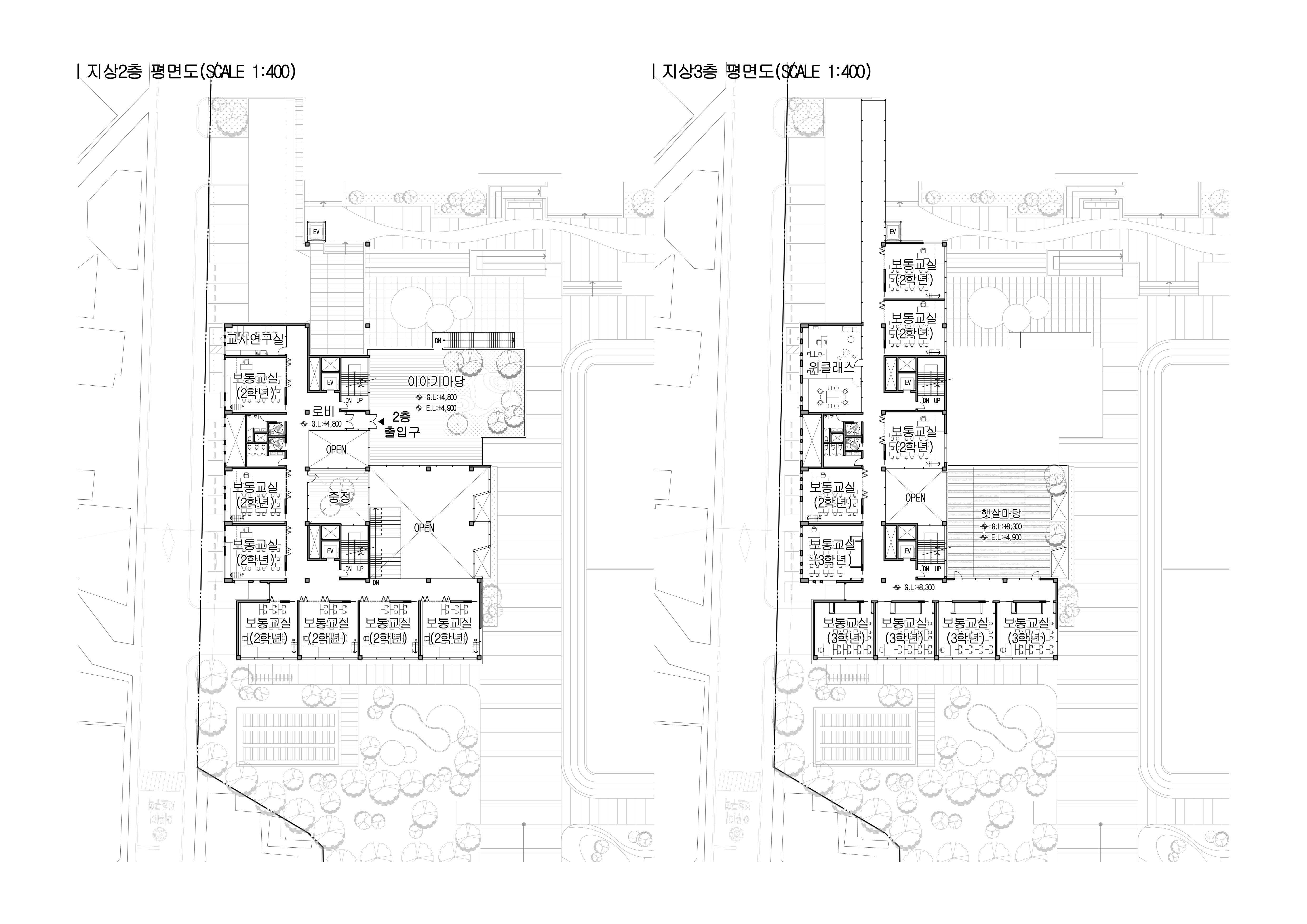
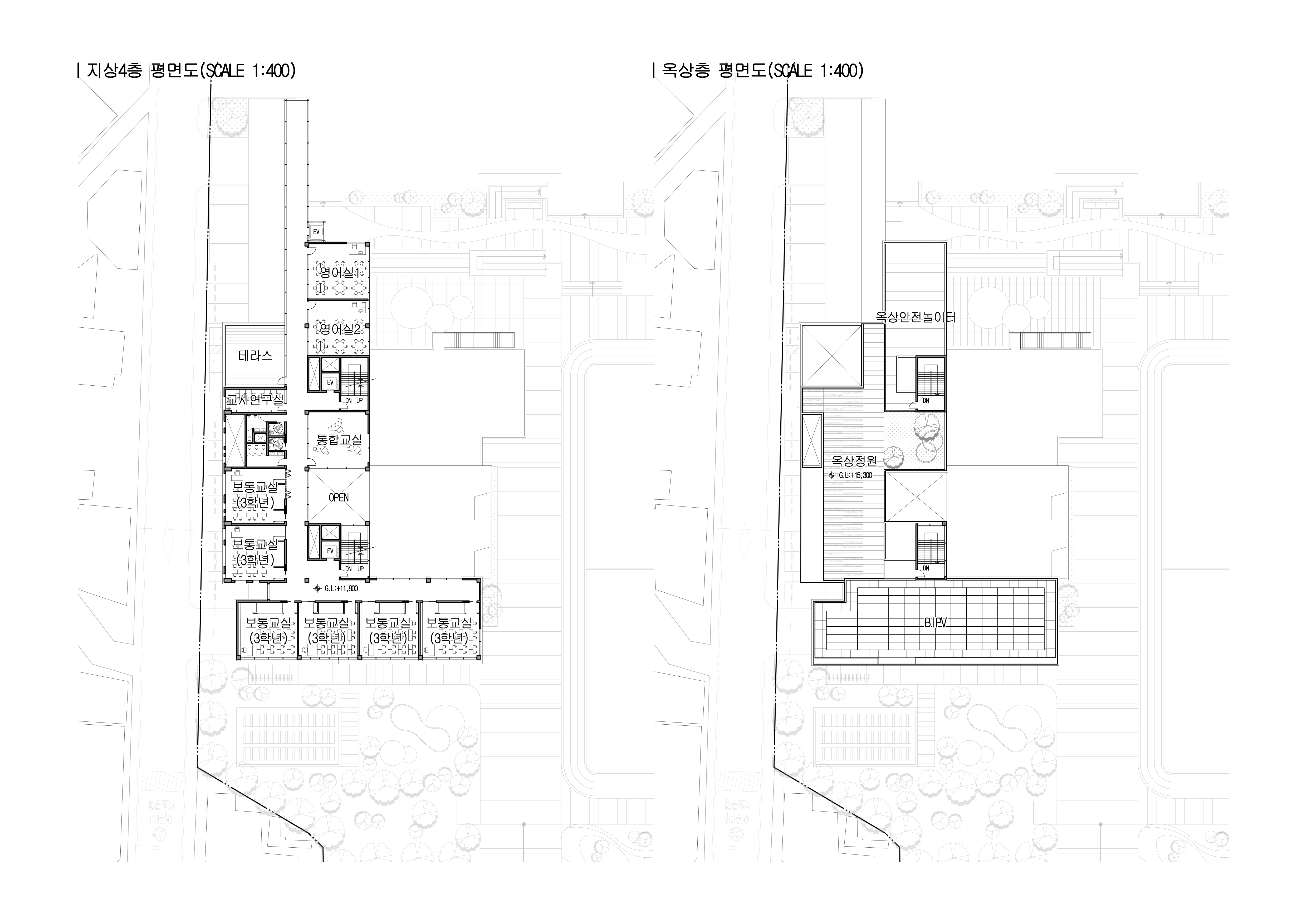
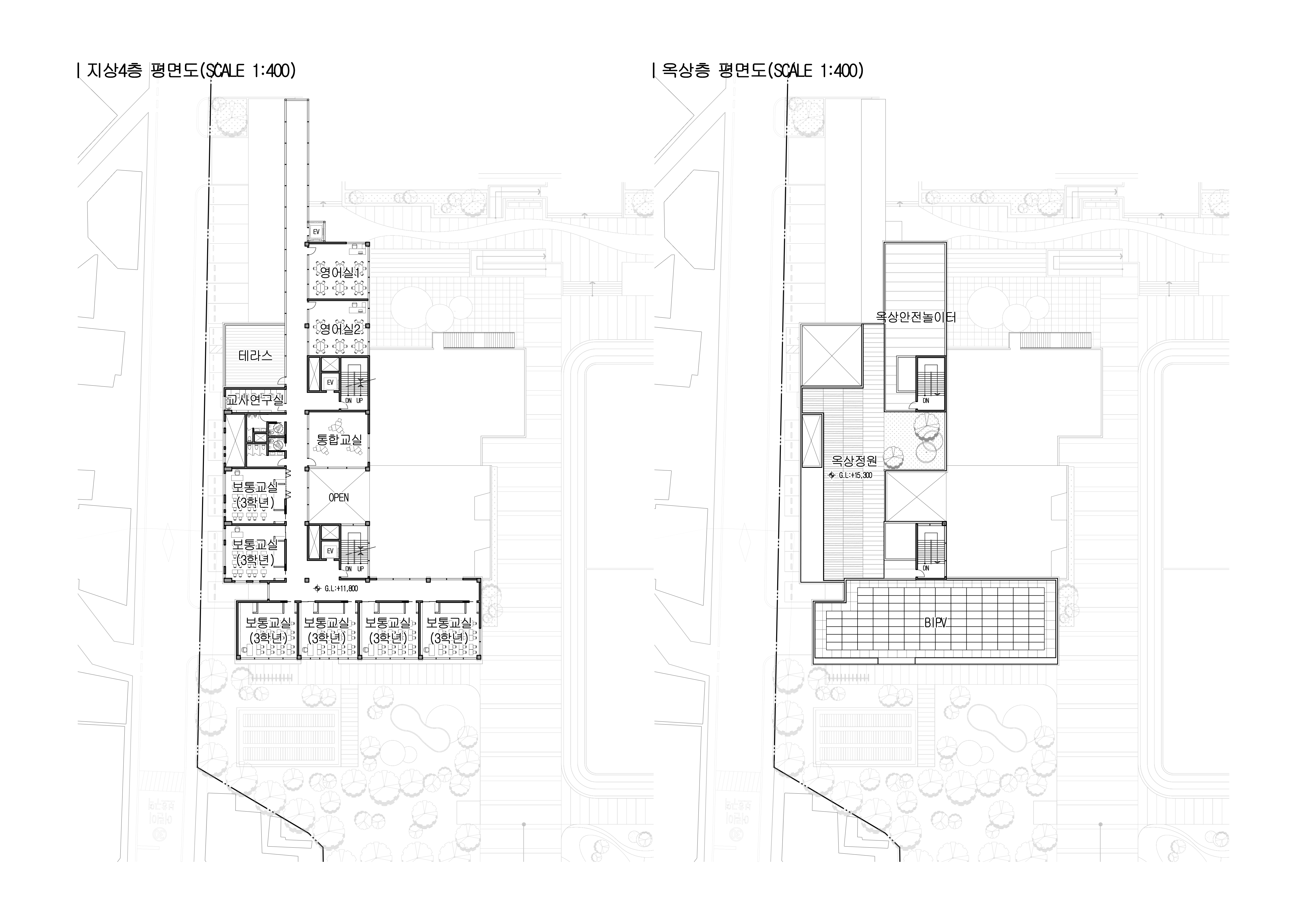
남향과 서향 위주로 배치된 교사동은 운동장과의 입체적 구성, 다양한 공간 사이의 유기적인 연결을 중요하게 생각하면서 계획하였다. 교사동에서 운동장을 시각적으로 조망할 수 있게 하고, 각 층의 테라스는 아이들의 다양한 휴게와 놀이, 학습의 장이 될 것이다.
[입체적 놀이 공간 구축]
외부에서 펼쳐지는 다양한 놀이공간을 수직적으로 확장시켜 놀이와 학습이 단절되지 않고 하나로 통합된 교육공간을 구축하였다.
이러한 입체적 놀이공간은 다양한 행위를 수용할 수 있는 유연한 공간으로 작용할 것이다.
[지역과 소통하는 복합공간]
복합화시설을 1층에 배치하고 상부에 학습공간을 두어 지역과 소통하고 학습공간과 유기적으로 연결되는 입체적 공간을 구성하였다.
[클러스터형 학습공간]
3가지 구역으로 나누어진 학습공간은 구역 별 교류공간을 가지며, 각 공간들은 학생들이 창의성을 발산할 수 있는 공간으로서 입체적으로 소통한다.










주식회사 라움건축사사무소
3등작_ 주식회사 라움건축사사무소 (http://rauma.co.kr/)
대표건축가 오신욱
대지면적 14,635.00㎡
연면적 15,078.04㎡ (개축면적 : 3,797.35㎡)
건축면적 4,568.35㎡ (개축면적 : 1,550.50㎡)
건폐율 31.22%
용적률 100.40%
최고높이 16.6m
층수 지하 1층, 지상 4층
구조 철근콘크리트구조
대표건축가 오신욱
디자인팀 서현정, 황혜정, 정제석, 이수원, 강지현, 박나원
조경면적 2,560.21㎡
주차대수 81대
발주처 부산광역시교육청
'Plans' 카테고리의 다른 글
| 갯벌치유 관광플랫폼 조성 설계공모_ 당선작 / 와이즈건축사사무소 (0) | 2025.06.30 |
|---|---|
| 망성면 기초생활거점조성사업 세부설계 설계공모_ 당선작 / (주)더블유에이치와이건축사사무소 (0) | 2025.06.30 |
| 화랑대철도공원 커뮤니티센터 신축공사 설계용역 설계공모_ 당선작 / 에이스케이프 건축사사무소 (0) | 2025.06.26 |
| 원덕 노인복지관 건립사업_ 당선작 / 리드도시건축사사무소 (0) | 2025.06.26 |
| 앞산 문화관광 일자리 플랫폼 구축 설계공모_ 당선작 / 유선건축사사무소 (0) | 2025.06.26 |
마실와이드 | 등록번호 : 서울, 아03630 | 등록일자 : 2015년 03월 11일 | 마실와이드 | 발행ㆍ편집인 : 김명규 | 청소년보호책임자 : 최지희 | 발행소 : 서울시 마포구 월드컵로8길 45-8 1층 | 발행일자 : 매일



