
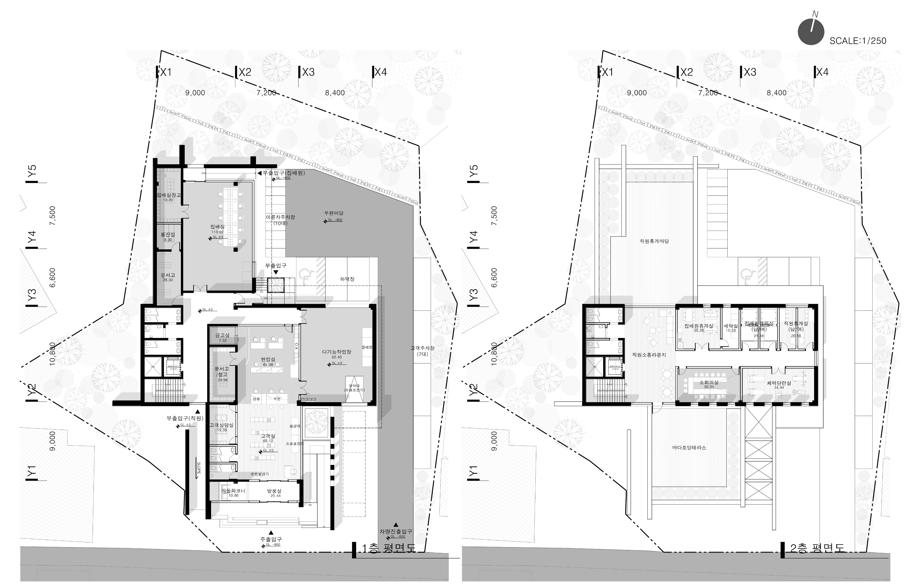
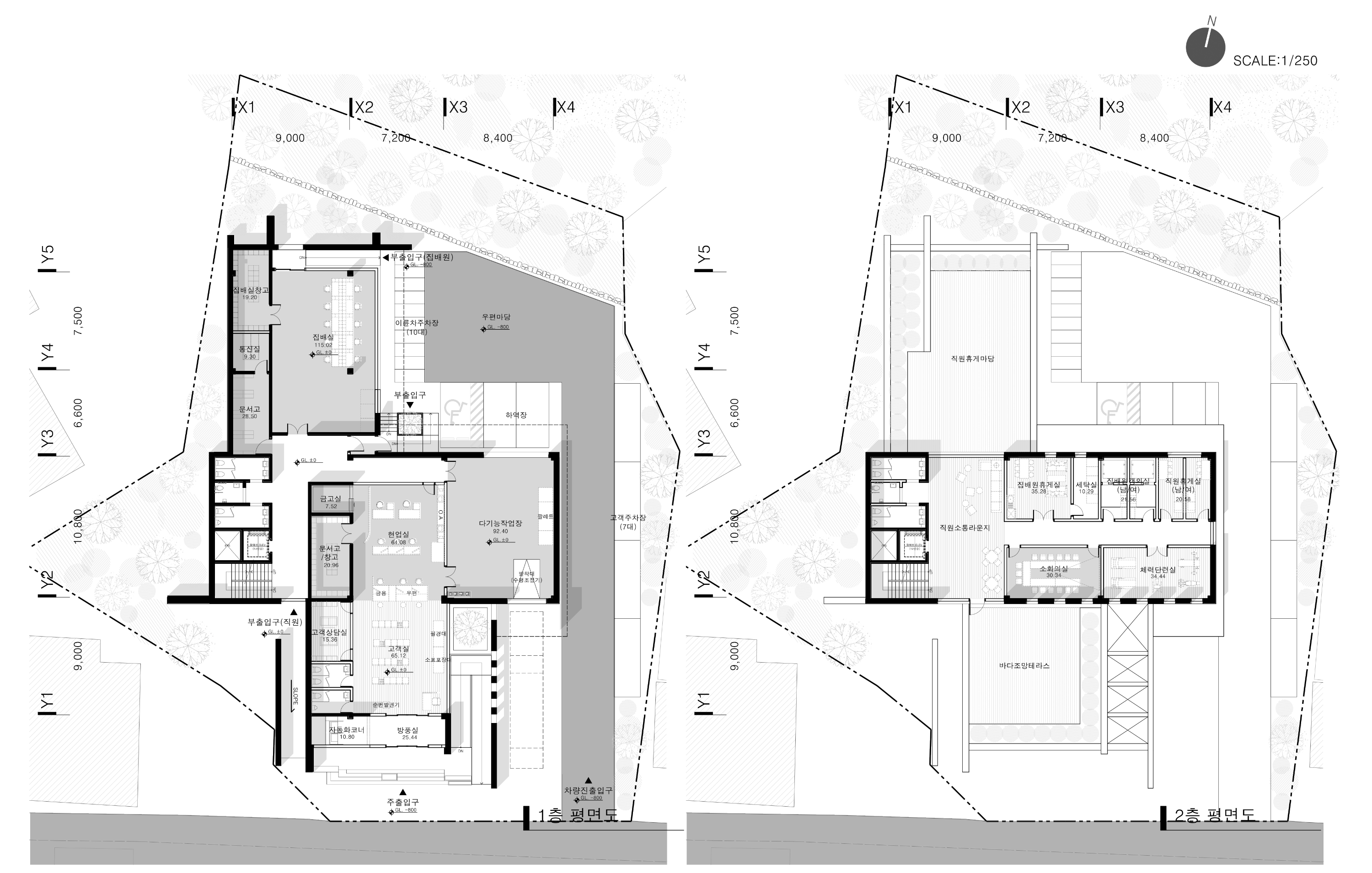
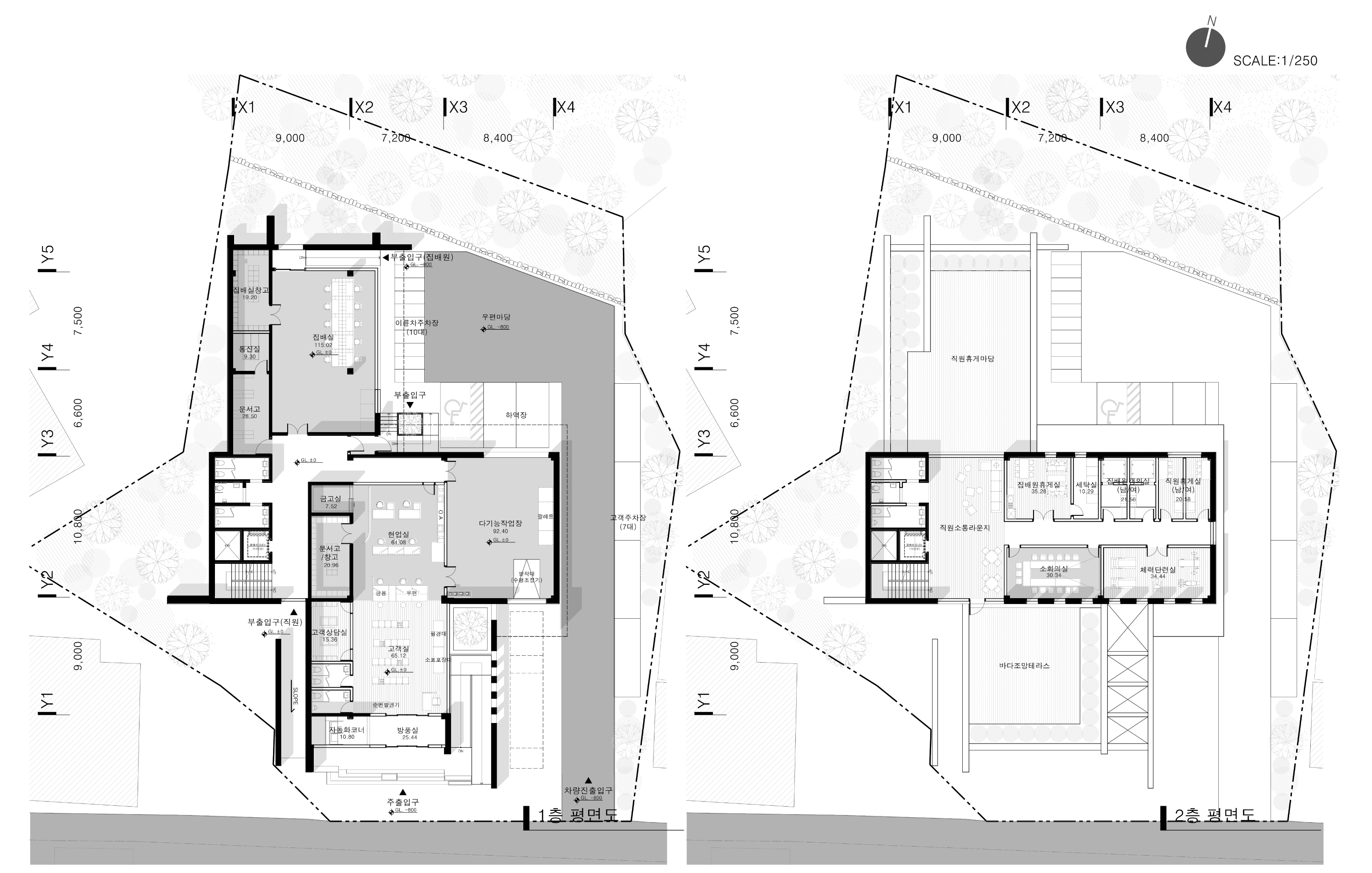
제주위미우체국은 위미항을 조망할 수 있는 탁월한 입지에 위치하고 있다. 제주의 아름다운 해안 경관과 조화를 이루기 위해, 건축물의 디자인은 제주 고유의 건축적 특성을 현대적으로 해석하여 반영하였다. 특히, 제주 전통 가옥의 핵심 요소인 '올래'의 개념을 현대적 디자인 언어로 재해석하여 적용함으로써, 전통과 현대의 조화로운 융합을 시도하였다. 이러한 접근은 지역의 문화적 정체성을 보존하면서도, 우체국이라는 공공시설의 실용적 기능을 효과적으로 구현하는 데 중점을 두었다. 본 프로젝트는 제주의 지역성과 현대적 기능이 조화를 이루어 지역 주민들에게 새로운 가치를 제공하는 공공건축물이 될 것으로 기대된다.






엠오에스피건축사사무소
당선작_ 엠오에스피건축사사무소 (https://mosp.kr)
대표건축가 임찬웅
대지면적 1,801.00㎡
연면적 899.11㎡
건축면적 572.41㎡
건폐율 31.78%
용적률 47.17%
최고높이 11m
층수 지하 1층, 지상 2층
구조 철근콘크리트구조
대표건축가 임찬웅
조경면적 137.69㎡
주차대수 7대
발주처 우정사업본부
'Plans' 카테고리의 다른 글
| 보령 문화테마파크 조성사업 설계공모 _ 5등작 / (주)코드아키텍츠건축사사무소 (0) | 2025.07.22 |
|---|---|
| 앞산 문화관광 일자리 플랫폼 구축 설계공모_ 3등작 / 굳자인 건축사사무소 + 건축사사무소 서로가 (0) | 2025.07.03 |
| 정부대전지방합동청사 건립사업 설계공모_ 5등작 / (주)제제합건축사사무소 (0) | 2025.07.03 |
| 앞산 문화관광 일자리 플랫폼 구축 설계공모_ 당선작 / (주)유선엔지니어링 건축사사무소 (0) | 2025.07.02 |
| 제주위미우체국 건립공사 설계용역 설계공모_ 당선작 / 시커몽스 건축사사무소 (0) | 2025.07.02 |
마실와이드 | 등록번호 : 서울, 아03630 | 등록일자 : 2015년 03월 11일 | 마실와이드 | 발행ㆍ편집인 : 김명규 | 청소년보호책임자 : 최지희 | 발행소 : 서울시 마포구 월드컵로8길 45-8 1층 | 발행일자 : 매일



