
빽빽한 주거지 환경 속에서 지층으로부터 솟아오른 듯한 건축은 앞산의 경관과 조화를 이루며, 관광객과 지역주민 모두에게 강한 인지성을 제공한다. 특히 남쪽 고가도로에서 건축은 뚜렷이 인식되며, 지역의 새로운 랜드마크가 된다. 지층에서 출발해 위로 상승하는 매스는 앞산의 풍경과 조우하며, 상승할 수록 다양한 주변 경관과 만나며, 자연과 물리적, 정서적 만남을 유도하는 공간이 되어준다. "안지랑" 이라는 지명의 어원처럼, 이곳은 앉아서 놀기 좋은 열린 장소로, 일상과 자연이 어우러지는 새로운 도시적 풍경을 제안한다.












굳자인 건축사사무소 + 건축사사무소 서로가
3등작_ 굳자인 건축사사무소 (https://blog.naver.com/gutsein2015) + 건축사사무소 서로가 (https://blog.naver.com/seoroga1)
대표건축가 박찬익(굳자인 건축사사무소) + 구경미, 강정구(건축사사무소 서로가)
대지면적 1,782.70㎡
연면적 4,844.95㎡ (용적률산정용: 2,650.09㎡)
건축면적 1,057.99㎡
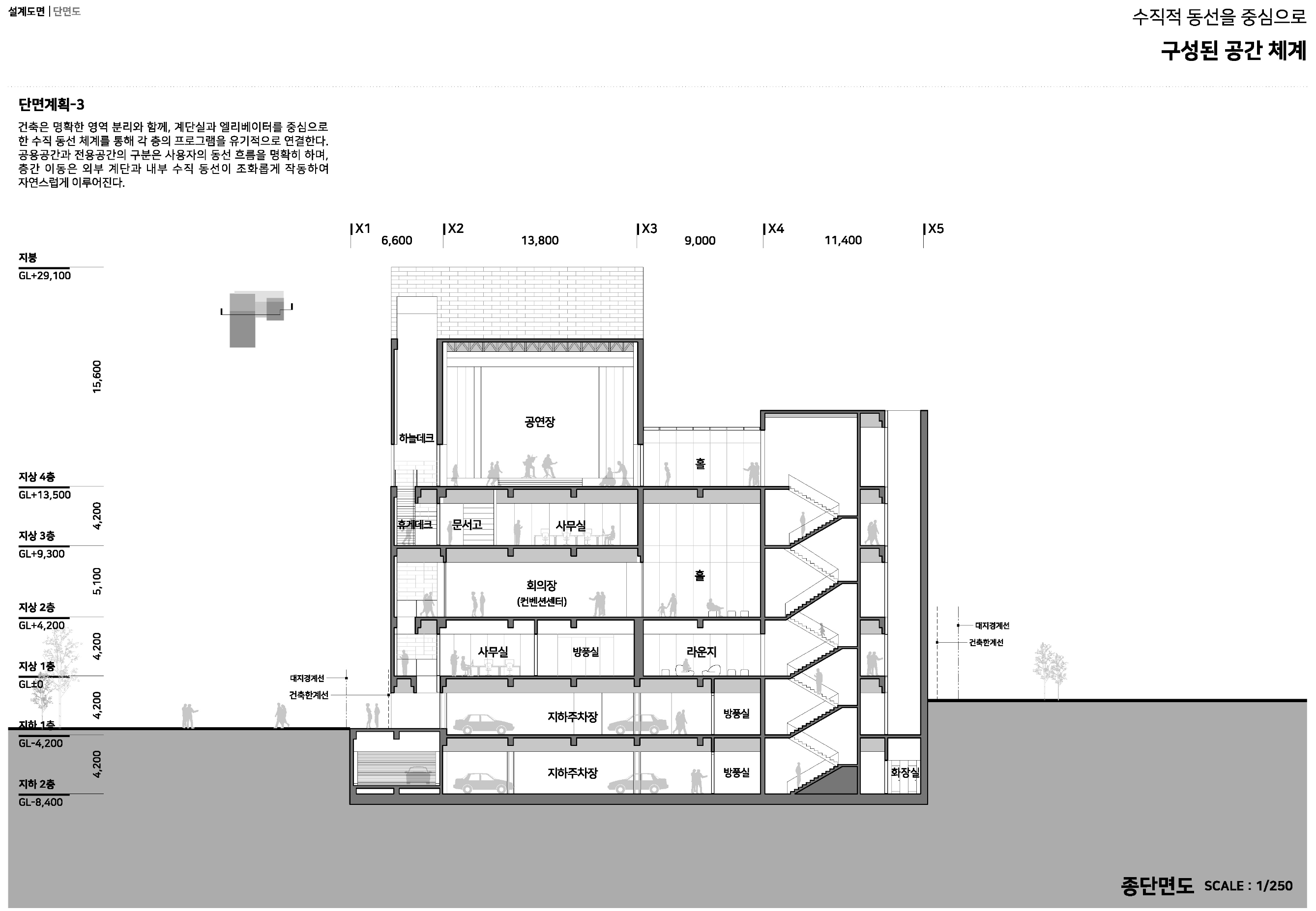
최고높이 29.1m
층수 지하 2층, 지상 4층
구조 철골철근콘크리트 구조
대표건축가 박찬익(굳자인 건축사사무소) + 구경미, 강정구(건축사사무소 서로가)
주차대수 43대(장애인4대, 전기차3대, 경차 2대 포함)
발주처 대구광역시 남구청
'Plans' 카테고리의 다른 글
| 정촌 체육시설(수영장) 건립사업_ 2등작 / 건축사사무소 이색 (0) | 2025.07.22 |
|---|---|
| 보령 문화테마파크 조성사업 설계공모 _ 5등작 / (주)코드아키텍츠건축사사무소 (0) | 2025.07.22 |
| 제주위미우체국 건립공사 설계용역 설계공모_ 4등작 / 엠오에스피건축사사무소 (0) | 2025.07.03 |
| 정부대전지방합동청사 건립사업 설계공모_ 5등작 / (주)제제합건축사사무소 (0) | 2025.07.03 |
| 앞산 문화관광 일자리 플랫폼 구축 설계공모_ 당선작 / (주)유선엔지니어링 건축사사무소 (0) | 2025.07.02 |
마실와이드 | 등록번호 : 서울, 아03630 | 등록일자 : 2015년 03월 11일 | 마실와이드 | 발행ㆍ편집인 : 김명규 | 청소년보호책임자 : 최지희 | 발행소 : 서울시 마포구 월드컵로8길 45-8 1층 | 발행일자 : 매일



