
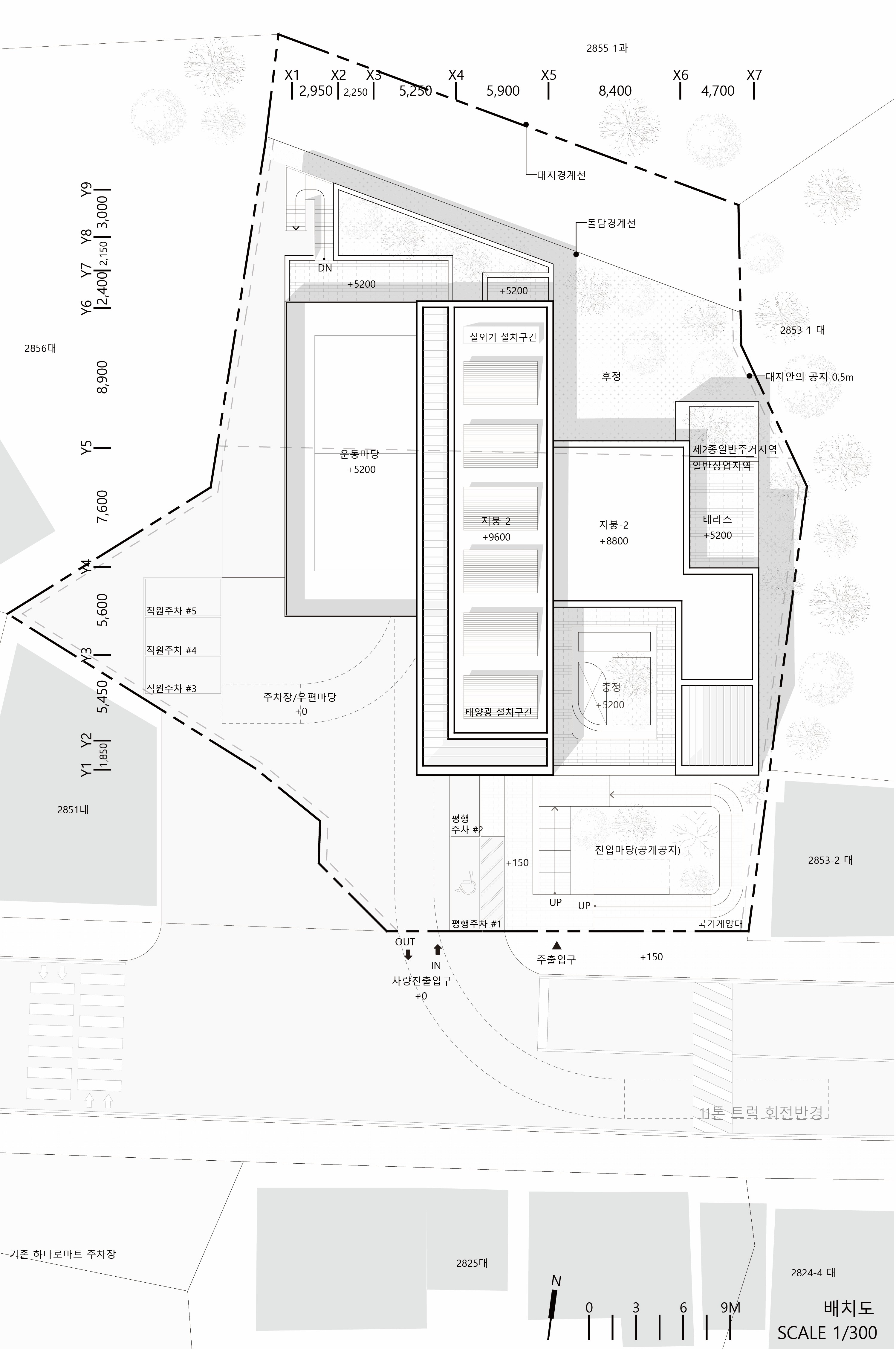
제주 위미리는 낮고 소박한 건물들이 드문드문 펼쳐진, 고요하고 따뜻한 마을이다. 2층 높이의 시선에서 멀리 위미항과 바다가 수평으로 열려 있는 반면, 전면을 제외한 북측은 옹벽과 인접 건물들로 인해 다소 폐쇄적인 조건을 지닌다. 우리는 이러한 대지의 양면성 속에서, 단절이 아닌 조화를 고민했고, 지역의 풍경을 수용하는 방식으로 우체국이라는 공공 건축물에 새로운 가능성을 그려보고자 했다. 70~80년대를 지나며 축적된 우체국의 근대건축적 이미지와 그에 따른 전형적인 도로 접면형 파사드 프로토타입은 오늘날까지 반복되고 있다. 그러나 이 프로젝트에서는 그러한 재현을 넘어서고자 했다. 우체국의 상징성과 기능을 담으면서도, 오늘날의 장소성과 미래의 지속가능성을 함께 품는 건축을 구상했다.
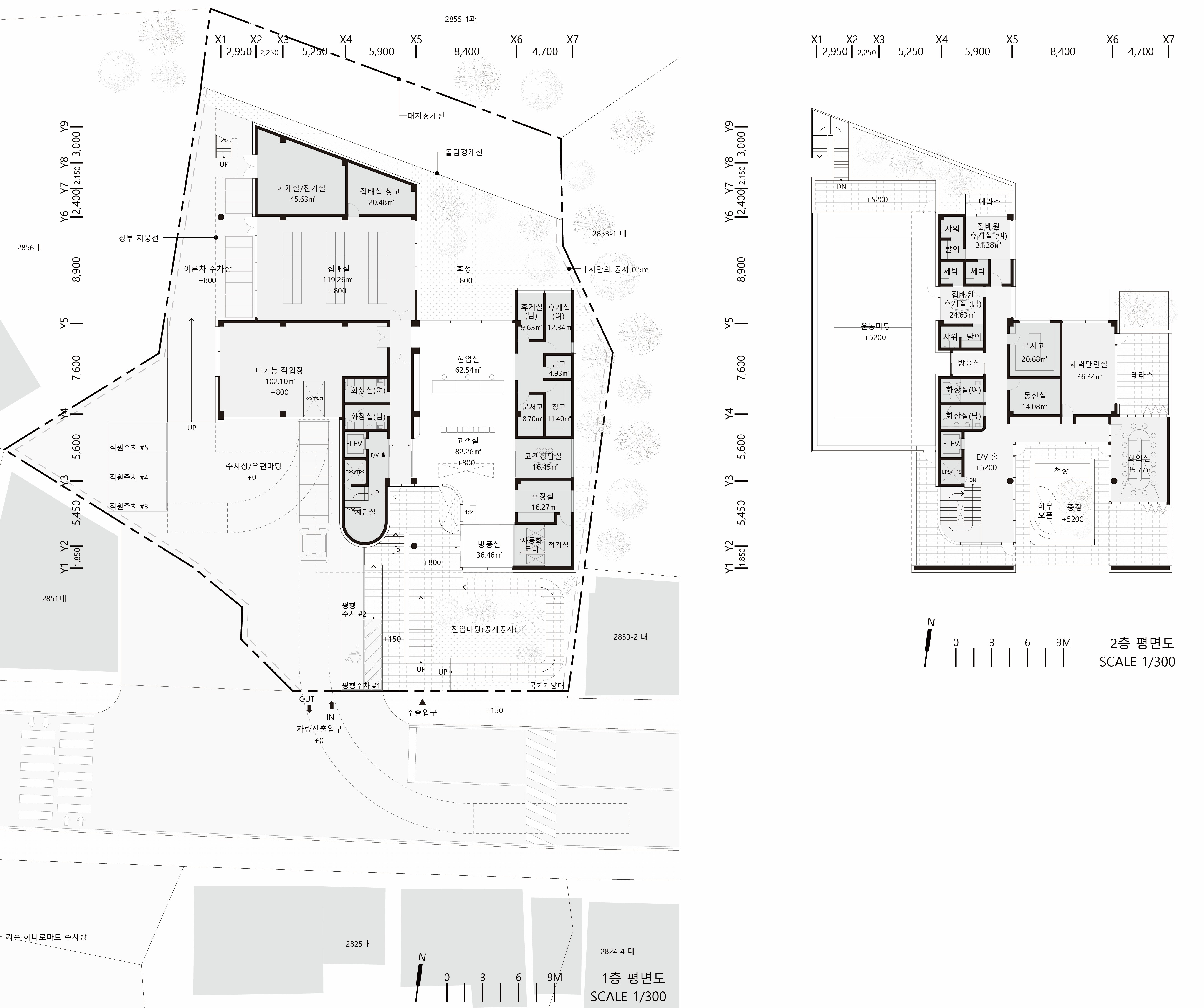
우체국이라는 특수 프로그램을 설계하면서 가장 먼저 주목한 것은, 이 공간을 사용하는 사람들의 구체적인 행태였다. 직원과 방문자, 내부 사용자와 일시적 이용자들의 이질적인 흐름을 분리하면서도 유기적으로 연결하기 위해, 코어 축을 중심으로 공간을 나누고 그 사이를 매개하는 다양한 외부 공간들을 겹겹이 레이어드 하였다. 그럼으로써 제주 자연의 수평적 풍경과 빛, 바람이 건축 안으로 자연스럽게 스며들도록 유도하였다.
우체국이라는 기능적인 공간과 경험 외에, 일상적인 풍요와 정서적 안정감을 담는 공간이 되기를 바랐다. 이곳이 단지 우편을 주고받는 경로가 아닌, 머무르고 감각을 열어두는 장소로 작동하길 바랐다. 건물의 구성은 이러한 의도를 따라 내부와 외부, 고요한 중정과 개방된 시선의 균형을 중심으로 직조되었다.
재료는 외피를 구성하는 기술적 수단을 넘어서, 장소성과 건물의 성격을 드러내는 건축의 언어로 작동한다. 전면부에는 곡선형의 순백 테라코타를 사용해 우체국의 상징성과 정면성을 강조하였고, 측면과 배면에는 무광의 매트 테라코타를 사용해 절제된 인상을 더했다. 현무암은 제주를 상징하는 재료로서 건축에 무게감을 부여하며, 절곡된 펀칭메탈은 빛과 바람을 받아들이는 반투명하고 경쾌한 경계로서 기능한다. 이 세 가지 재료는 각각의 물성을 유지하면서도 서로 긴밀하게 조화를 이루며, 단단함과 부드러움, 밀도와 여백 사이의 건축적 균형을 만들어낸다.
궁극적으로 위미 우체국이 이 마을에서 언제나 그래왔던 것처럼 또 하나의 배경이 되기를 바란다. 기능에 충실하면서도 여백을 품은 공간, 바람이 들고 계절이 머무는 장소, 사람들의 감각이 조용히 열린 채로 머물 수 있는 공공의 풍경. 이 모든 것이 함축적으로 겹쳐지는 우체국이 되기를 기대한다.









시커몽스 건축사사무소
당선작_ 시커몽스 건축사사무소 (https://www.seekermonks.com/)
대표건축가 박주석, 조병호
대지면적 1801㎡
건축면적 764.65㎡
연면적 899.03㎡
건폐율 제2종 일반주거지역 37,74% 일반상업지역 44.69%
용적률 제2종 일반주거지역 40.68% 일반상업지역 55.47%
구조 철근콘크리트조
최고높이 10.5M
층수 지상 2층
주차대수 5대
발주처 우정사업조달센터
'Plans' 카테고리의 다른 글
| 제주위미우체국 건립공사 설계용역 설계공모_ 4등작 / 엠오에스피건축사사무소 (0) | 2025.07.03 |
|---|---|
| 정부대전지방합동청사 건립사업 설계공모_ 5등작 / (주)제제합건축사사무소 (0) | 2025.07.03 |
| 고창 터미널 도시재생 혁신지구사업 설계공모_ 5등작 / 가까운 건축사사무소 (0) | 2025.07.02 |
| 백세건강스포츠센터 건립사업 건축 설계공모_ 2등작 / (주)삼풍이엔지종합건축사사무소 (0) | 2025.07.02 |
| 보령 문화테마파크 조성사업 설계공모_ 당선작 / 건축사사무소 오드투에이 (0) | 2025.07.02 |
마실와이드 | 등록번호 : 서울, 아03630 | 등록일자 : 2015년 03월 11일 | 마실와이드 | 발행ㆍ편집인 : 김명규 | 청소년보호책임자 : 최지희 | 발행소 : 서울시 마포구 월드컵로8길 45-8 1층 | 발행일자 : 매일



