
공존이 켜지는 공간, PARK:ON
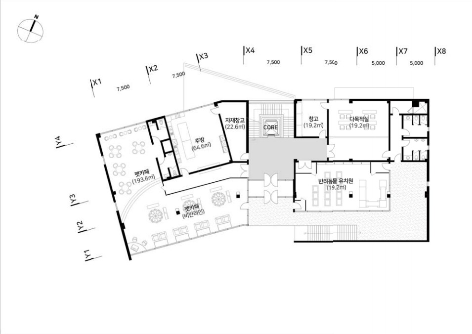
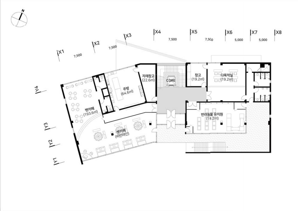
PARK:ON은 반려동물과 사람이 공존하는 새로운 지역 커뮤니티 플랫폼으로, 산과 숲으로 둘러쌓인 대지의 자연성과 기존 건축의 맥락을 존중한다. 유치원동, 교육동, 테마파크 등 다양한 프로그램을 유기적으로 연결하고, 전면 테마파크, 외부 테라스, 유리 통로를 통해 동선과 경관의 흐름이 이어지는 "일상, 교육, 휴식이 켜지는 열린 풍경"을 제안한다.
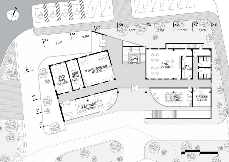
반려동물 유치원 및 인성약력 전문학교 두개의 건물군은 소통과 상생의 플랫폼으로 구성하였으며 맥락성과 공공성을 함께 고려하였다. 체험, 케어, 여가가 연속되는 흐름속에서 기능 간 연결과 외부공간의 확장이 자연스럽게 이루어지는 유기적으로 배치하였다.
또한 테마파크는 명확한 동선분리와 다채로운 외부공간을 계획하였으며 전체 공간은 패시브 디자인을 적극 활용하였다.















더아름건축사사무소
3등작_ 더아름건축사사무소 (https://blog.naver.com/theareum_archi)
대표건축가 서병진(더아름건축사사무소)
대지면적 28,134.6㎡
연면적 2,164.1㎡
건축면적 1,231.2㎡
건폐율 4.38%
용적률 7.69%
최고높이 9.1m
층수 지하 1층, 지상 2층
구조 철근콘크리트구조 리모델링
대표건축가 서병진
디자인팀 멀티스케일(공동응모) 대표 천준호, 팀원 김영욱, 팀원 이승재
조경면적 11,409㎡
주차대수 100대
발주처 해남군
'Plans' 카테고리의 다른 글
| 미백 이청준 문학관 건립사업 설계공모_ 4등작 / 건축사사무소H2L (0) | 2025.07.28 |
|---|---|
| 미백 이청준 문학관 건립사업 설계공모_ 5등작 / 아티큐레이트 건축사사무소 + 김경식(전남대학교) (0) | 2025.07.22 |
| 정촌 체육시설(수영장) 건립사업_ 2등작 / 건축사사무소 이색 (0) | 2025.07.22 |
| 보령 문화테마파크 조성사업 설계공모 _ 5등작 / (주)코드아키텍츠건축사사무소 (0) | 2025.07.22 |
| 앞산 문화관광 일자리 플랫폼 구축 설계공모_ 3등작 / 굳자인 건축사사무소 + 건축사사무소 서로가 (0) | 2025.07.03 |
마실와이드 | 등록번호 : 서울, 아03630 | 등록일자 : 2015년 03월 11일 | 마실와이드 | 발행ㆍ편집인 : 김명규 | 청소년보호책임자 : 최지희 | 발행소 : 서울시 마포구 월드컵로8길 45-8 1층 | 발행일자 : 매일



