
중첩된 이야기 상자
이청준 작가의 고향인 전라남도 장흥은 이청준의 탄생과 죽음, 그리고 다양한 문학 작품의 배경이 되었으며, 현재도 이청준 문학지도 속 명소를 잇는 문학탐방길이 이를 기념한다. 이청준 문학세계를 조명하여 그의 작품을 소개함과 동시에 이청준 문학의 고유한 형식을 건축 공간화 함으로써 문학세계를 온전히 체험하도록 한다. 이러한 설계의 개념을 시작으로 사업대상지의 맥락에 적극적으로 반응하여 사업대상지의 기존 지형 및 식생을 최대한 보존하고 남해 및 회진리 조망의 이점을 살려 장흥 속 이청준 문학지도의 축소판을 제안한다.
[문학 형식의 건축적 차용]
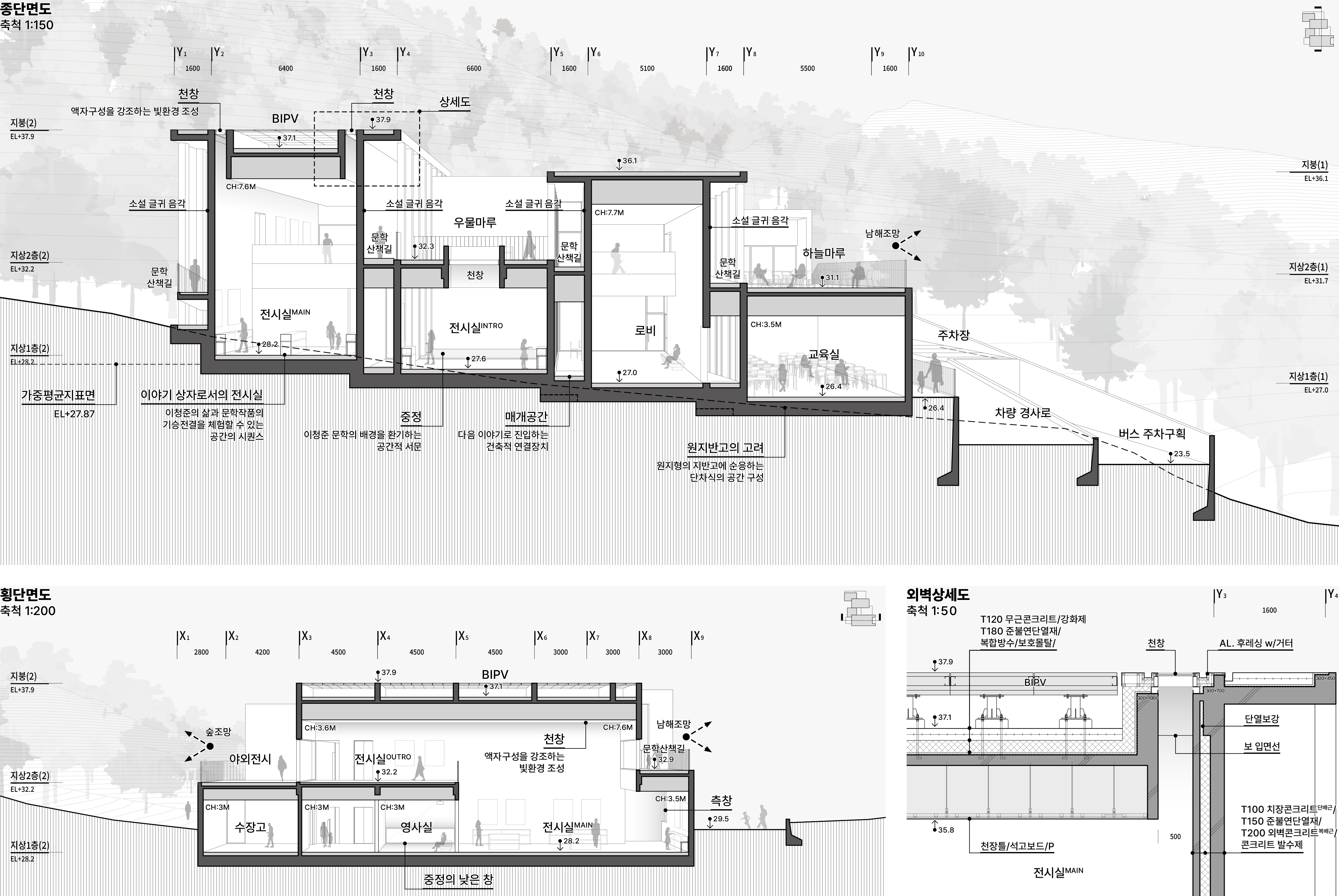
문학 형식의 건축화를 위해 이청준 작가가 소설에 주로 활용한 액자식 구성을 재해석하여, 이를 '중첩된 이야기 상자'의 3차원적 구조로 환원한다. 즉, 소설의 문학적 특징을 건축적으로 차용함으로써 이청준 문학세계를 온전히 구현한다. 개별 이야기 상자에 주어진 전시 및 부속 프로그램을 충실히 수용하고 이를 시지각적으로 연결하여 유기적인 체험을 유도한다.
[기승전결의 흐름과 매개공간]
내부공간의 구성은 이청준의 삶과 문학세계를 온전히 체험하는 시퀀스를 따라 이어진다. 로비를 통해 이청준의 문학세계에 다다르면 기승전결의 흐름에 따라 이청준의 삶과 문학작품을 관람하게 된다. 각각의 이야기 상자는 고유한 전시주제 및 공간적 특징을 가지면서도 전시공간 사이의 매개공간을 통해 문학적 구문의 질서에 따라 연결된다. 매개공간은 서사적 기울기를 가지며, 물리적인 연결의 역할과 함께 장면의 전환 및 사유의 여백으로 기능한다. 2층으로 연결되는 매개공간은 건축적 산책길로서, 남해와 회진리 전경 등 외부로의 조망을 제공하며 외부공간으로 확장되어 이청준 문학과 장흥을 연결한다.











아티큐레이트 건축사사무소
5등작_ 아티큐레이트 건축사사무소 (https://www.articuarch.com/) + 김경식 (https://www.inde-lab.com/)
대표건축가 임재휘(아티큐레이트 건축사사무소) + 김경식(전남대학교)
대지면적 20,685㎡
사업면적 10,000㎡
연면적 875.20㎡
건축면적 708.75㎡
건폐율 3.43%
용적률 4.23%
최고높이 10.03m
층수 지상 2층
구조 철근콘크리트 구조
대표건축가 임재휘(아티큐레이트 건축사사무소) + 김경식(전남대학교)
조경면적 842.82㎡
주차대수 17대(장애인1대, 경차1대, 버스1대 포함)
발주처 장흥군청
'Plans' 카테고리의 다른 글
| 정촌 체육시설(수영장) 건립사업_ 3등작 / (주)노말건축사사무소 (0) | 2025.07.30 |
|---|---|
| 미백 이청준 문학관 건립사업 설계공모_ 4등작 / 건축사사무소H2L (0) | 2025.07.28 |
| 해남군 반려동물 테마파크 조성사업 설계공모_ 3등작 / 더아름건축사사무소 (0) | 2025.07.22 |
| 정촌 체육시설(수영장) 건립사업_ 2등작 / 건축사사무소 이색 (0) | 2025.07.22 |
| 보령 문화테마파크 조성사업 설계공모 _ 5등작 / (주)코드아키텍츠건축사사무소 (0) | 2025.07.22 |
마실와이드 | 등록번호 : 서울, 아03630 | 등록일자 : 2015년 03월 11일 | 마실와이드 | 발행ㆍ편집인 : 김명규 | 청소년보호책임자 : 최지희 | 발행소 : 서울시 마포구 월드컵로8길 45-8 1층 | 발행일자 : 매일



