
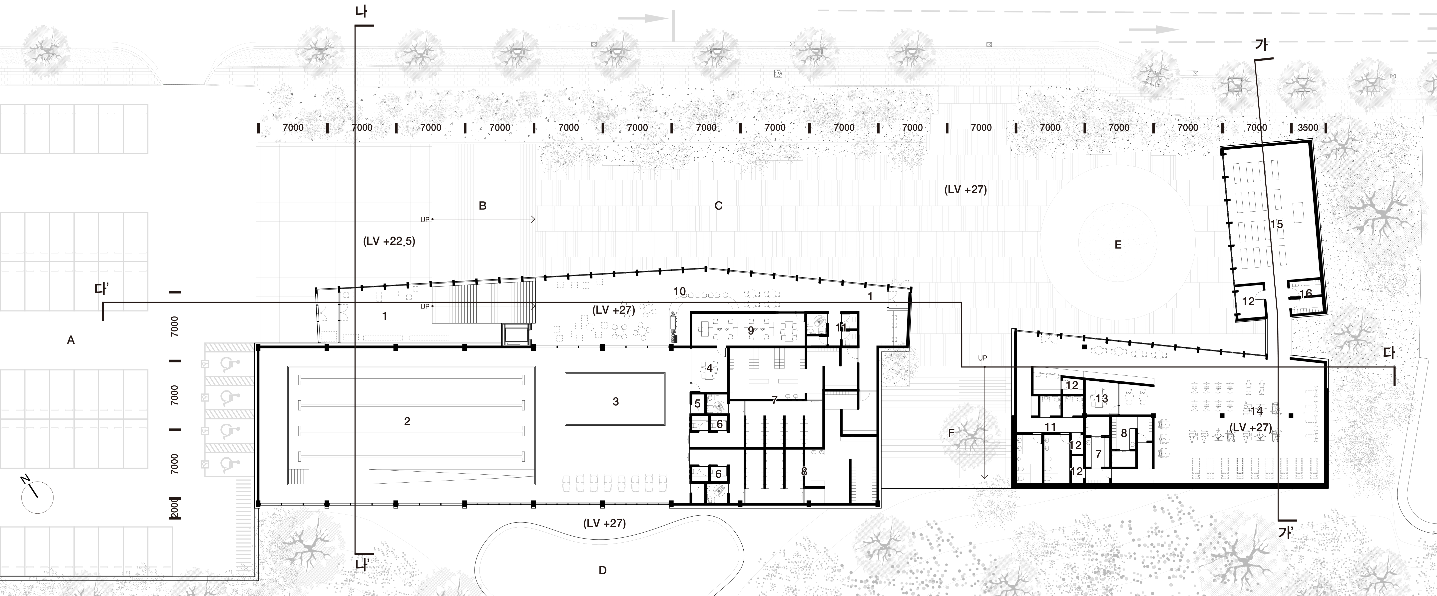
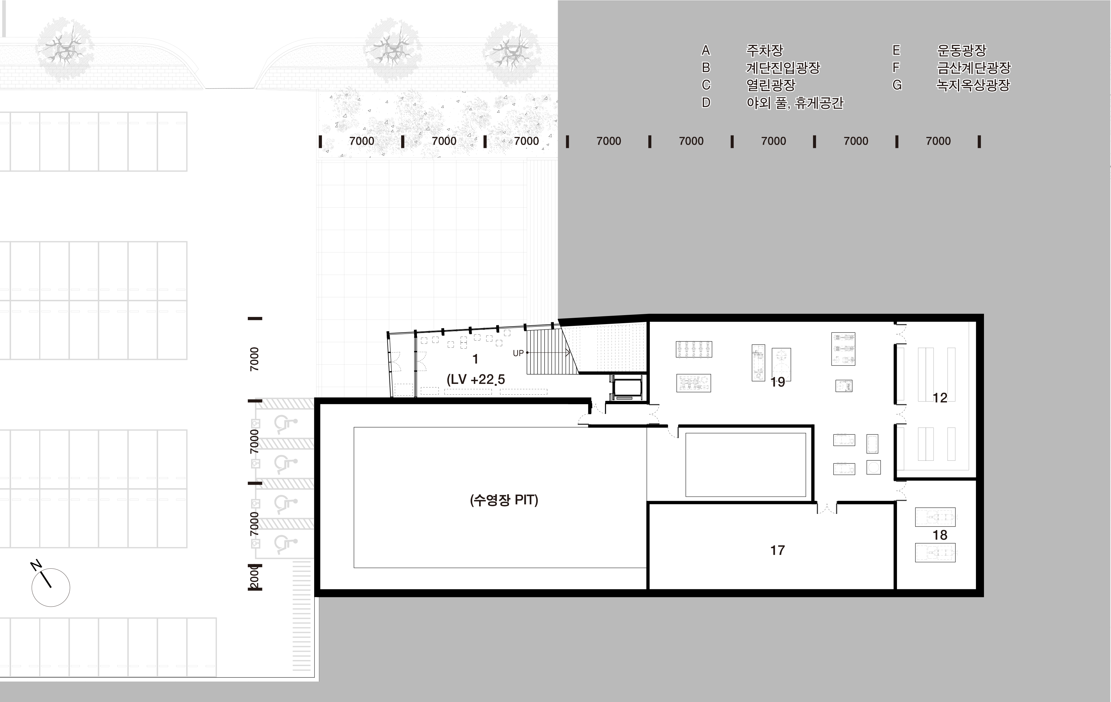
금산 녹지 풍경의 연장, 단계적 층위의 공간 구성
금산의 기존 녹지를 시각적, 물리적으로 연장하여, 산업단지 내 오래된 자연이 지역 주민에게 직접적으로 연결되도록 한다. 녹지는 일상의 환기처이자 새로운 풍경으로 작용하며, 조성된 여러 마당들과 자연스럽게 연결되어 금산과의 물리적 접근성을 높인다. 이는 주민의 일상과 근로자의 휴식을 위한 친숙한 운동 및 문화 공간으로 기능하게 된다. 도시와 대지 사이의 녹지구역(버퍼존) - 마당 - 실내 공용공간 - 운동시설(기능실) - 금산으로 이어지는 단계적 공간은 도시와 자연을 세밀하게 연결하며, 유기적인 흐름을 만든다.
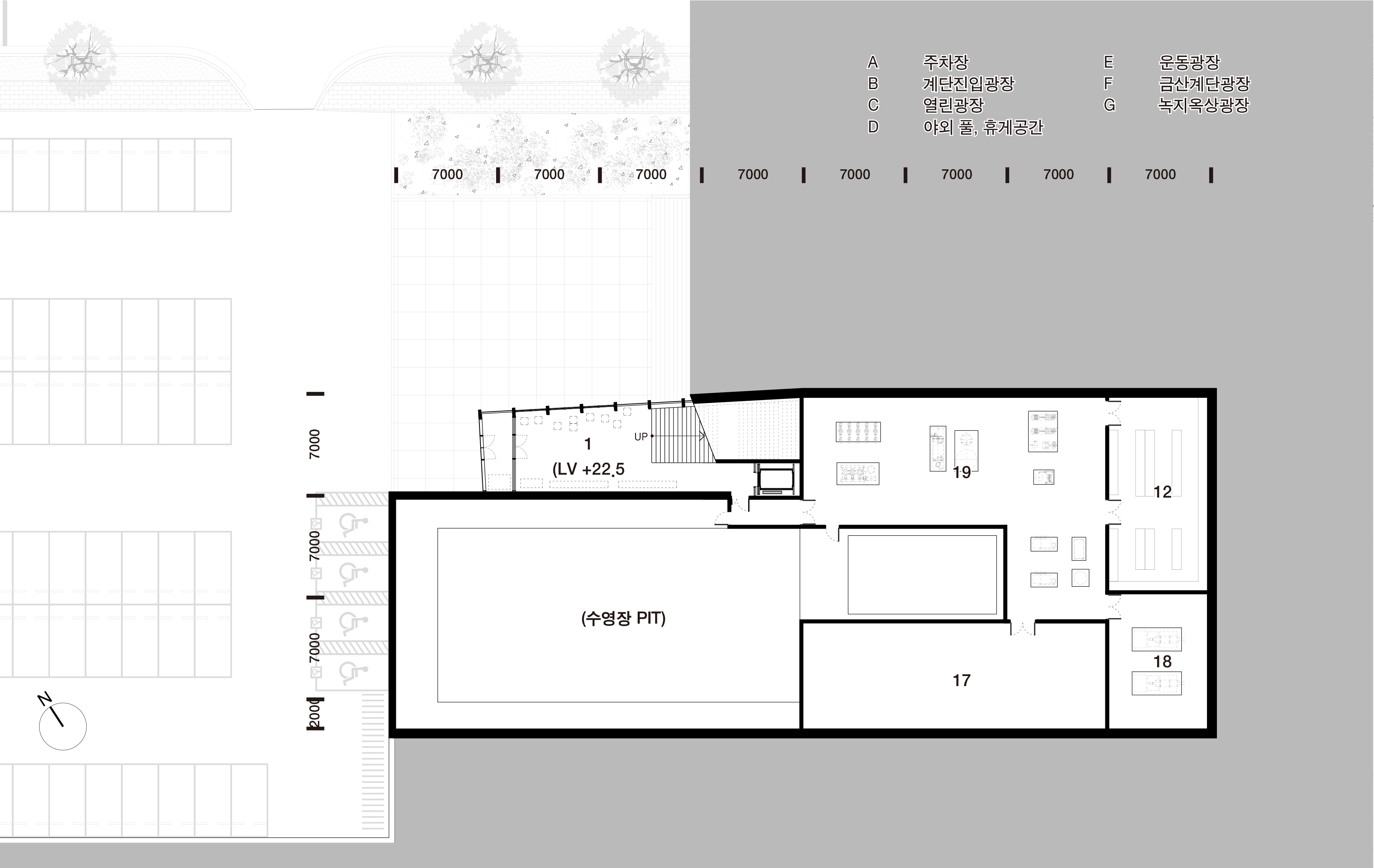
실내 용도와 연계 활용되는 다양한 외부 마당
외부 마당은 내부 용도와 연계 활용된다. 단순히 비워진 마당이 아닌 내부 용도를 고려 연계 활용되도록 세분화된 마당이다. [근린생활시설(카페)-열린광장], [운동시설-운동광장], [금산-녹지옥상광장], [저층진입로비-계단진입광장] 등 사람들의 활동이 실내외를 넘나들며 자연스럽게 확장될 수 있게 한다. 열린 내부 공용공간과 연계된 마당은 풍성하고 생동감 있는 활동의 마당이 되며, 결과적으로 마을의 플랫폼으로 작동하게 된다.
자연친화적 목구조 수영장, 외부와 연계된 운동시설
자연친화적인 목구조를 활용하여 진주시 목조건축의 방향성과 함께하며, 수영장 구조에도 적합한 재료로 기능적 장점을 갖춘다. 수영장 습기에 유리한 특성을 바탕하고 금산의 녹지를 배경으로 조성된 수영장은 따뜻하고 어우러지는 내부 분위기를 제공한다. 또한, 수영장과 운동공간은 외부 공간과 자연스럽게 연결된다. 외부 수영장은 숲속에 자리해 ‘숲속 수영장’으로 연계되고, 운동공간은 전면 운동 마당과 이어져 공간의 확장성을 확보한다.









(주)노말건축사사무소
3등작_ (주)노말건축사사무소 (https://www.no-mal.com/)
대표건축가 최민욱
대지면적 13,326.40㎡
연면적 2,597.83㎡
건축면적 2,044.83㎡
최고높이 9m
층수 지하 1층, 지상 1층
구조 목구조, 철근콘크리트조
대표건축가 최민욱
디자인팀 최민욱, 이복기, 조세연, 박선영, 유아람
주차대수 117대
발주처 진주시
'Plans' 카테고리의 다른 글
| 김해시서부보건소 아이건강드림센터 조성사업 설계공모_입상작 / 건축사사무소 성문 (0) | 2025.08.04 |
|---|---|
| 보령 충청수영 판옥선 선소공원 조성사업 간이제한공모_ 입상작 / (주) 미래건축사사무소 (0) | 2025.08.01 |
| 미백 이청준 문학관 건립사업 설계공모_ 4등작 / 건축사사무소H2L (0) | 2025.07.28 |
| 미백 이청준 문학관 건립사업 설계공모_ 5등작 / 아티큐레이트 건축사사무소 + 김경식(전남대학교) (0) | 2025.07.22 |
| 해남군 반려동물 테마파크 조성사업 설계공모_ 3등작 / 더아름건축사사무소 (0) | 2025.07.22 |
마실와이드 | 등록번호 : 서울, 아03630 | 등록일자 : 2015년 03월 11일 | 마실와이드 | 발행ㆍ편집인 : 김명규 | 청소년보호책임자 : 최지희 | 발행소 : 서울시 마포구 월드컵로8길 45-8 1층 | 발행일자 : 매일



