
성수동 _ 아주 오래된 미래
01 일과 삶의 공생
성수동 3/1(일삶) 빌딩은 중공업 지역인 성수동에서는 찾아보기 힘든 좁은 골목 주택가에 위치해 있다. 골목을 조금만 벗어나도 여전히 다양한 종류의 공장들이 끊임없이 돌아가고 있는 이색적인 곳이다. 자본주의의 가치에 밀려 많은 공장들이 도시 외곽으로 사라지는 요즘에도 이곳은 여전히 일과 삶이 경계 없이 공존하며 활기 있는 건강한 도시 풍경을 만들고 있다.

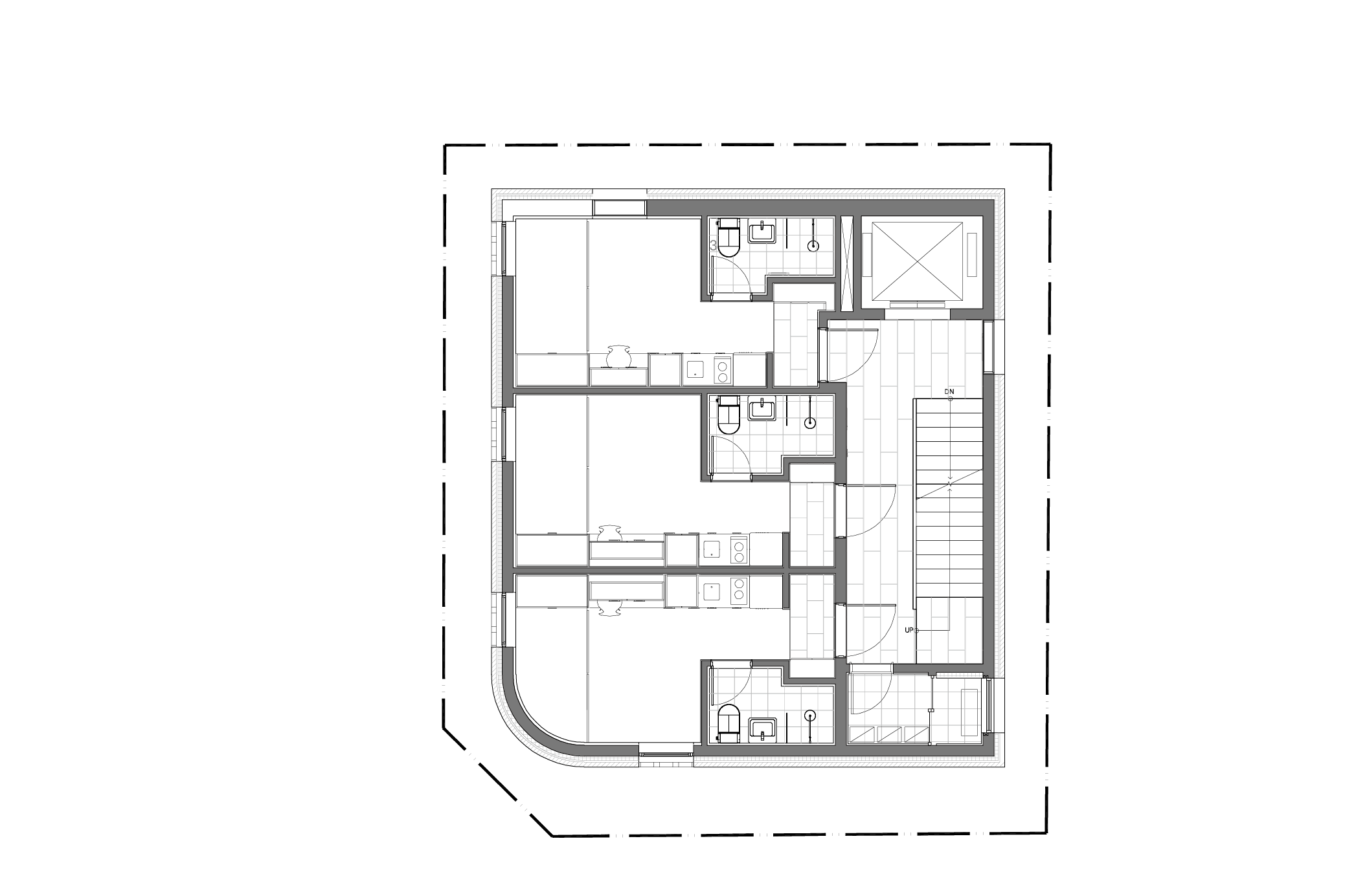
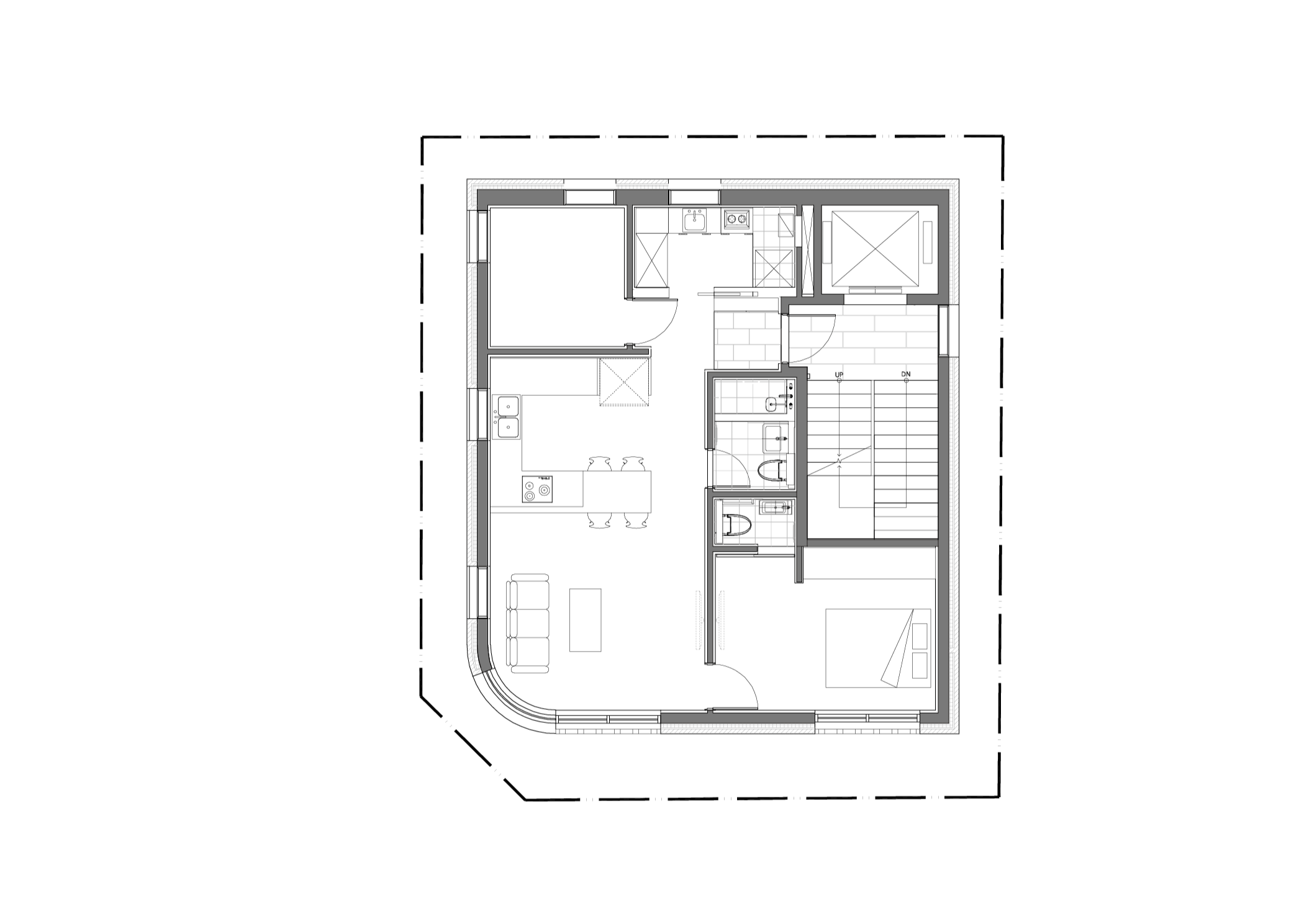
일삶 빌딩 역시 성수동의 도시 풍경처럼 일과 삶이 함께하는 장소이다. 저층의 상업시설과 고층의 원룸형 주거시설이 복합된 건물이다. 이러한 프로그램의 혼합으로 낮과 밤의 다른 사용자들은 좁은 대지의 협소한 공간들을 효율적으로 공유할 수 있다.

02 거꾸로 커지는 매스
3/1(일삶) 빌딩이 들어서 있는 성수동의 연무장7가길은 전면에 발코니를 가진 3층 규모의 비슷한 모습의 다가구 주택이 줄지어 서있는 곳이다. 서울의 노후화된 여느 주택가의 모습과 크게 다르지 않지만 이곳은 최대 용적률 400% 개발이 가능한 중공업 지역이다.골목에 새롭게 지어지는 건물들은 7-8층 이상으로 좁은 골목길을 점점 답답하게 메워버릴 것이다.

3/1(일삶) 빌딩은 아래로 작아지는 행태로 좁은 골목길을 수직적으로 확장시켜준다. 저층을 비워내면서 주변 건물과의 거리를 기존보다 넓혀주어 기존 이웃의 프라이버시 침해를 최소화하고 골목을 지나는 사람들에게 여유로운 풍경을 제공하고자 하였다. 동네의 모습이 바뀌어가는 시작이 되는 3/1(일삶) 빌딩의 고민들이 앞으로 변화될 건물들에도 공유되길 기대한다.

03 성수동의 기억
지하철 2호선을 타고 내려다보는 성수동은 크고 작은 붉은 벽돌 건물들이 혼재된 모습이다. 3/1(일삶) 빌딩은 기존의 도시 맥락에서 이질적인 형태의 건물이지만 재료를 통해 과거의 기억을 담고 기존 주변 건물과의 조화를 이루고자 한다. 과거의 재료를 이용하지만 새로운 프로그램을 고려하여 기존과는 다른 방식으로 조적하고자 하였다. 두 가지 서로 다른 프로그램의 공존이 입면에서도 드러날 수 있도록 벽돌 쌓기의 밀도를 다르게 하였다.



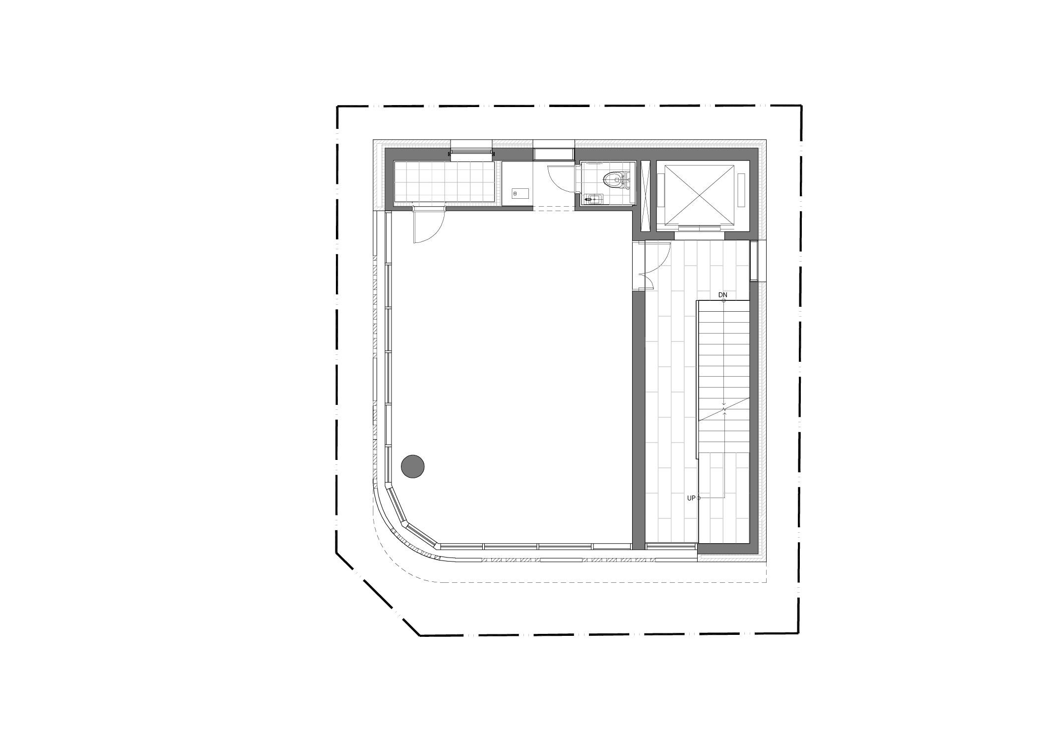
저층의 상업 시설은 이중외피의 커튼월로 계획하여 다소 좁은 실내 공간의 개방감을 극대화하고 고층의 주거 시설은 향후 주변 시설과의 시각적인 간섭을 고려하여 창 계획을 최소화하였다. 벽돌의 다양한 쌓기 방식으로 기존의 막힌 벽들은 빛을 받아들일 수 있도록 열리는 동시에 주변 이웃들의 삶이 지키질 수 있도록 스크린의 역할을 한다.







건축가 소수건축사사무소(SOSU ARCHITECTS)
위치 서울특별시 성동구 연무장7가길
용도 근린생활시설, 다가구주택
대지면적 138.02㎡
건축면적 82.46㎡
연면적 477.55㎡
규모 지상 7층
건폐율 59.74%
용적률 59.74%
설계기간 2017.04. - 2017.09.
시공기간 2017.09. - 2018.10.
준공 2018
대표건축가 김미희, 고석홍
디자인팀 황예슬, 박윤선, 김선아, 양형원
기계엔지니어 ㈜건창기술단
전기엔지니어 ㈜엘림전설
시공 수림종합건설(주)
발주자 이건철 외 1인
사진작가 노경
'Architecture Project > Office' 카테고리의 다른 글
| 코어해체시스템 / 푸하하하 건축사사무소 (0) | 2025.09.25 |
|---|---|
| 켜를 차곡차곡 쌓아, 시간을 전달하는 리모델링 건축 / 네기시 켄치쿠 스튜디오 (0) | 2025.08.29 |
| 반선재, 도자기의 예술과 문화가 만나는 공간 / (주) 지음플러스 (0) | 2025.06.26 |
| 지구를 생각하는 공간, 오피스 리모델링 / 타케시 호사카 아키텍츠 (0) | 2025.06.10 |
| 의류 직조기 모양에 담긴 팩토리 오피스 / 호 쿠에 아키텍츠 (0) | 2025.06.02 |
마실와이드 | 등록번호 : 서울, 아03630 | 등록일자 : 2015년 03월 11일 | 마실와이드 | 발행ㆍ편집인 : 김명규 | 청소년보호책임자 : 최지희 | 발행소 : 서울시 마포구 월드컵로8길 45-8 1층 | 발행일자 : 매일



