
경기도 이천시 신둔면 고척리 636-8에 위치한 ‘반선재’는 도자기 제조 및 활용을 연구하는 제2종 근린생활시설로, 이천도자예술마을 예스파크의 중심에서 도자기의 매력을 탐구하는 공간이다. ‘반선재’라는 이름은 '신선같은 사람들과 함께하는 집'이라는 의미를 지니며, 도예가, 예술가, 문화 기획자, 그리고 요리 연구가들이 함께 모여 다양한 창작 활동을 이어갈 수 있는 문화적 허브로 기능하고자 한다. 반선재는 문화사학자이자 요리 연구가인 건축주가 설계한 공간으로, 음식과 관련된 도예 작품을 디자인하고 전시하는 것은 물론, 디자이너 및 도예가들과의 협업을 통해 다양한 문화적 이벤트를 개최할 예정이다. 이 건물은 2층으로 구성되어 있으며, 1층은 철근 콘크리트 구조로, 2층은 스틸 하우스 구조로 이루어져 있다. 전체 대지의 약 70%를 사용하는 주차장을 포함한 건물은 향후 건축주의 주거 공간이 들어설 예정이다.


반선재의 가장 큰 특징은 하나의 독립된 볼륨이면서도 외부 공간과의 관계를 통해 다양한 장소와 이야기를 만들어내는 점이다. 건물은 “ㄱ”자 형태로 중정을 중심으로 남쪽 중정과 동쪽 중정으로 나뉘어 있다.


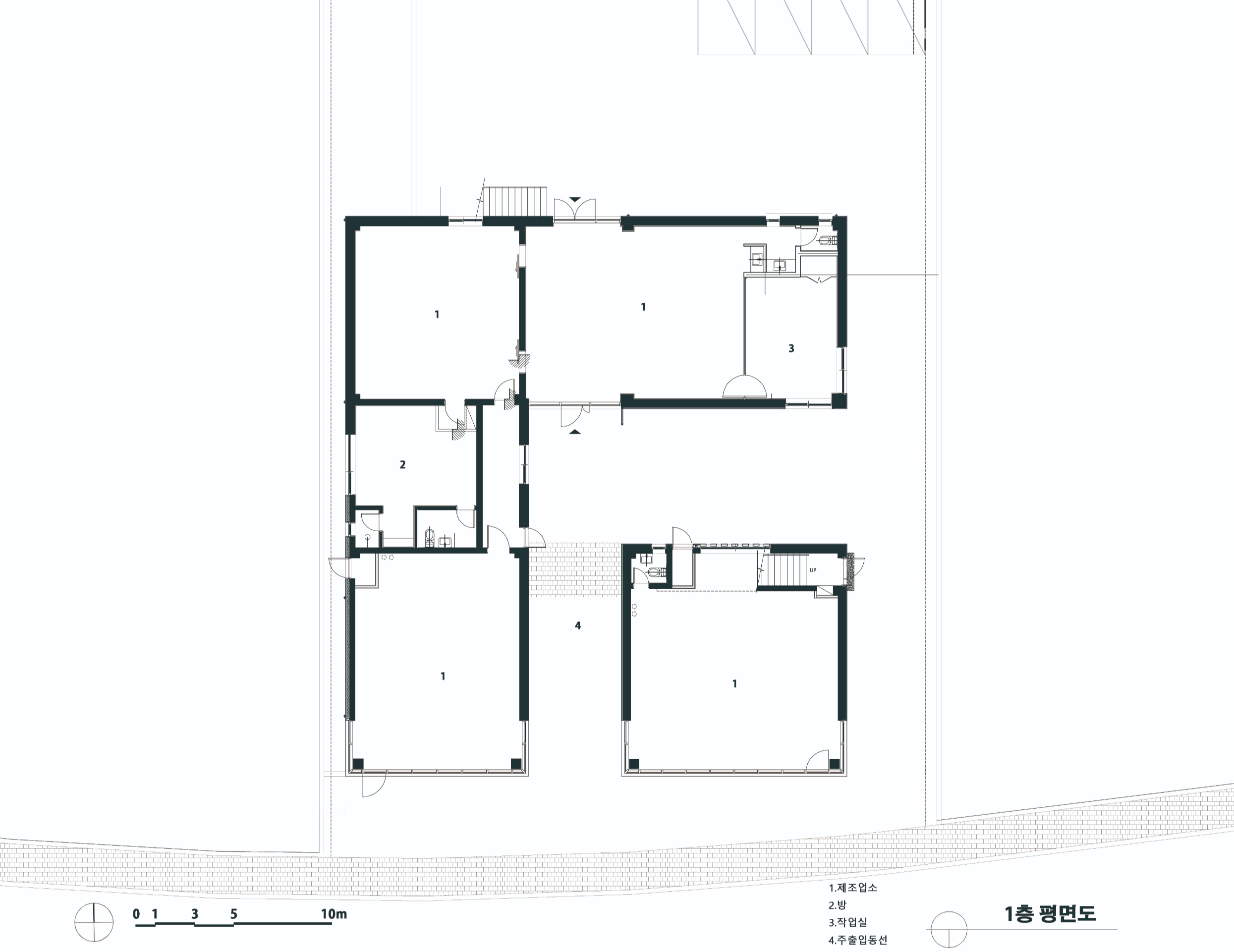
남쪽 중정은 공공 영역과 사적 영역을 구분하는 역할을 하며, 방문객들에게 차경을 제공하는 정원의 기능을 수행한다. “신선”이 물 위를 걷는 듯한 환상적인 풍경을 연출하며, 통행인들이 함부로 접근하지 못하게 하여 공간의 프라이버시를 지킨다. 또한, 도로에서 후정으로 이어지는 깊이와 투명성을 통해 장방형 대지의 장점을 극대화하여, 반선재가 지닌 공간의 풍요로움을 더욱 강조한다. 남쪽 중정은 1층에서는 두 개의 제조업소 및 전시장으로 나뉘고, 2층에서는 서재와 사무실로 구분되어 있다.


동쪽 중정은 반선재의 주 출입구 역할을 하며, 건물의 마당과 같은 기능을 수행한다. 아늑하고 고풍스러운 분위기를 자아내는 조경과 외벽 쪽의 계단은 방문객들에게 친근한 느낌을 준다. 북쪽 후정은 주차장과의 경계를 이루는 북쪽 후정은 건축주가 야외에서 작업할 수 있는 공간이자 이층 테라스로 이어지는 전이 역할을 한다. 후정에서 바라보는 남쪽 중정과 제조업소의 조화는 반선재의 장소적 매력을 더한다.


2층 테라스 공간은 이 공간은 도자기 및 그릇 등을 야외에 전시할 수 있도록 설계된 약 200㎡의 테라스로, 건축주의 의견을 적극 반영하여 조성되었다. 이곳은 도자기의 아름다움을 자연과 함께 만끽할 수 있는 특별한 장소가 될 것이다.
공간의 조직과 연결성
1층은 “ㄱ”자 형태의 중정으로 인해 두 개의 주요 공간으로 나뉘며, 오른쪽의 제조업소는 독립된 영역으로 활용될 수 있다. 그러나 2층의 브릿지 공간은 이들 공간을 유기적으로 연결하여 반선재의 독특한 특징을 부각시킨다. 일자형 계단과 브릿지의 공간적 연결은 단순한 이동 통로가 아닌, 건물을 관통하는 또 다른 공간적 장치로 기능하며, 남쪽 중정, 메인 제조업소, 후정으로 이어지는 축을 통해 공간의 조화로움을 이룬다. 브릿지 공간은 주변 풍경을 끌어들이는 차경 역할을 하여, 대지 내의 시간과 공간의 깊이를 느낄 수 있는 휴식 공간인 “소 전망대”로도 기능한다.


반선재의 주 입면은 남쪽 방향으로, 알루미늄 성형 판넬을 활용하여 도자기의 결을 형상화하고, 다양한 빛과 재료의 물성을 구현하고 있다. 이러한 입면 연출 기법은 도로에서 반선재의 상징성을 부여하며, 성형 판넬이 끝나는 지점에서 공적인 영역과 사적인 영역이 분리된다. 사적인 영역이 시작되는 부분에서는 백고 벽돌 마감을 통해 예스파크 도자 마을의 주변 건물들과 조화를 이루며, 따스하고 아늑한 분위기를 연출한다. 반선재는 도자기와 문화가 어우러진 공간으로, 단순한 건축물 이상의 의미를 지니며, 예술과 창작의 새로운 장을 열어갈 것이다.













건축가 (주)지음플러스
위치 경기도 이천시 신둔면 고척리 636-8
대지면적 1,449.3㎡
건축면적 372.27㎡
연면적 499.54㎡
규모 지상 2층
건폐율 25.69%
용적률 34.74%
설계기간 2020
준공 2021
대표건축가 김성훈
공동실시설계 더웨이 건축사사무소
조경 안상수
시공 ㈜서경종합건설
외장시공 ㈜엠비케이
발주자 (요리연구가, 문화연구가)
사진 이훈구
'Architecture Project > Office' 카테고리의 다른 글
| 켜를 차곡차곡 쌓아, 시간을 전달하는 리모델링 건축 / 네기시 켄치쿠 스튜디오 (0) | 2025.08.29 |
|---|---|
| 일과 삶이 공생하는 곳, 3/1 (일삶)빌딩 / 소수 건축사사무소 (0) | 2025.06.27 |
| 지구를 생각하는 공간, 오피스 리모델링 / 타케시 호사카 아키텍츠 (0) | 2025.06.10 |
| 의류 직조기 모양에 담긴 팩토리 오피스 / 호 쿠에 아키텍츠 (0) | 2025.06.02 |
| 디콜라보 / (주)엘케이에스에이 건축사사무소 (0) | 2025.05.12 |
마실와이드 | 등록번호 : 서울, 아03630 | 등록일자 : 2015년 03월 11일 | 마실와이드 | 발행ㆍ편집인 : 김명규 | 청소년보호책임자 : 최지희 | 발행소 : 서울시 마포구 월드컵로8길 45-8 1층 | 발행일자 : 매일



