
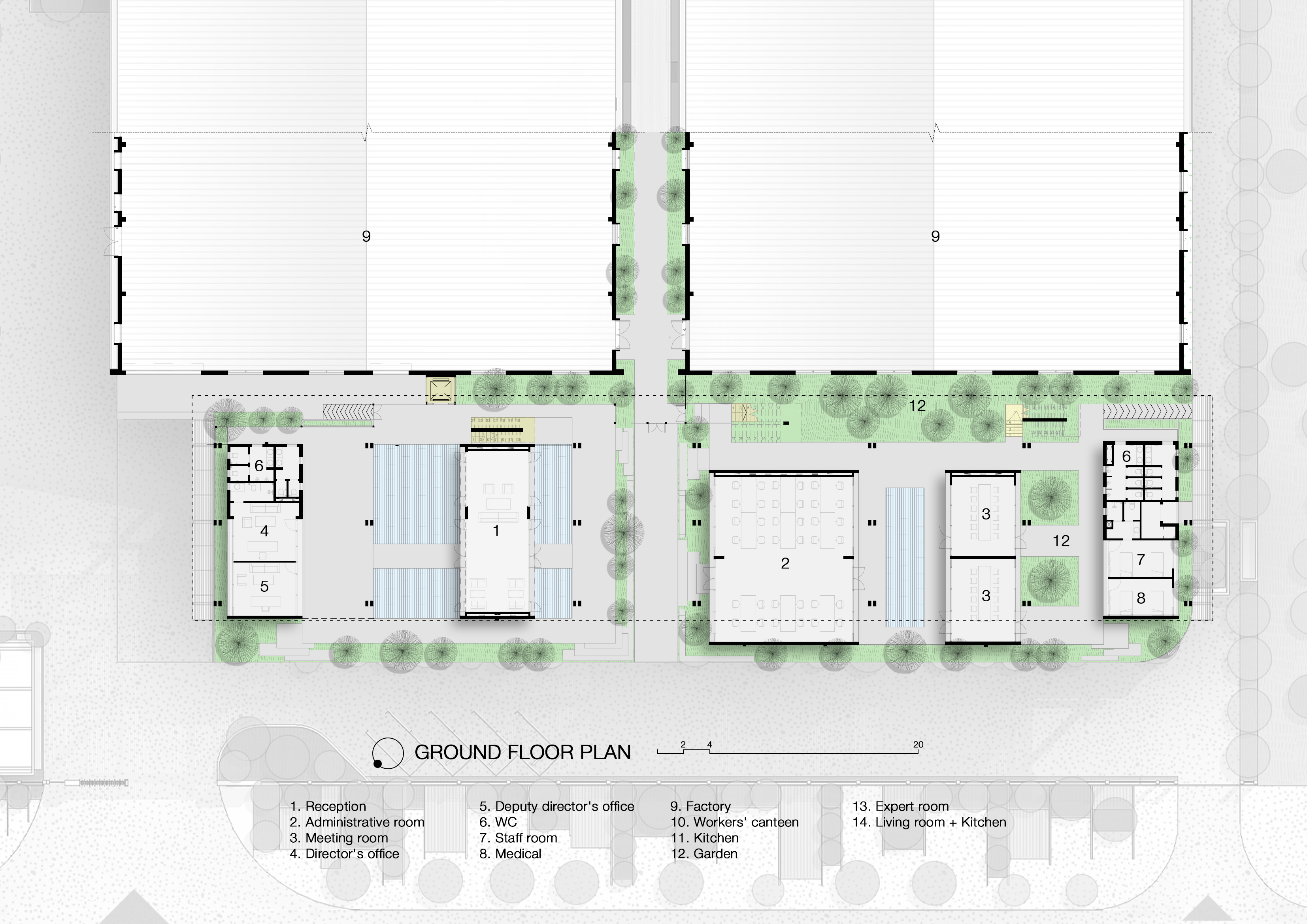
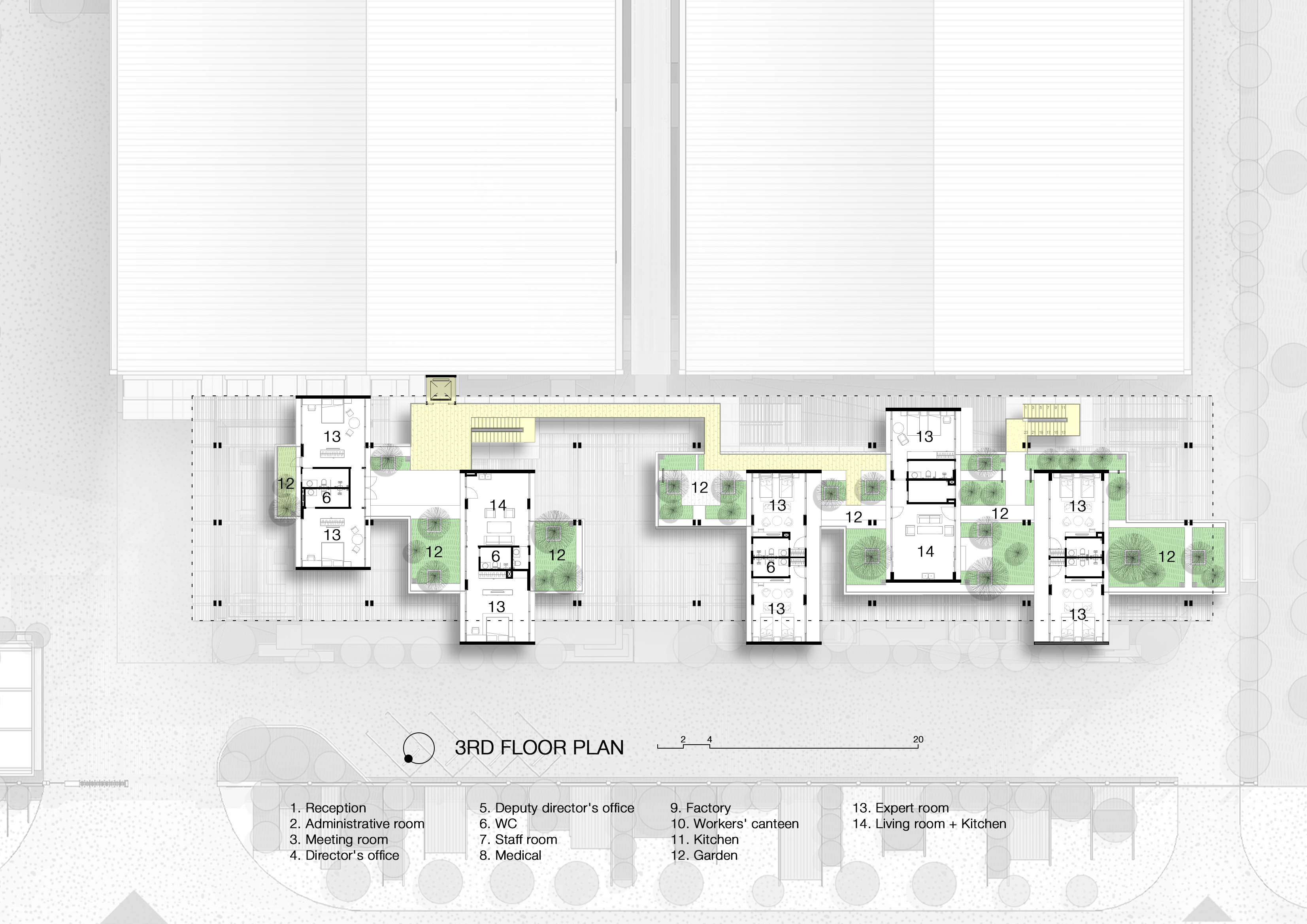
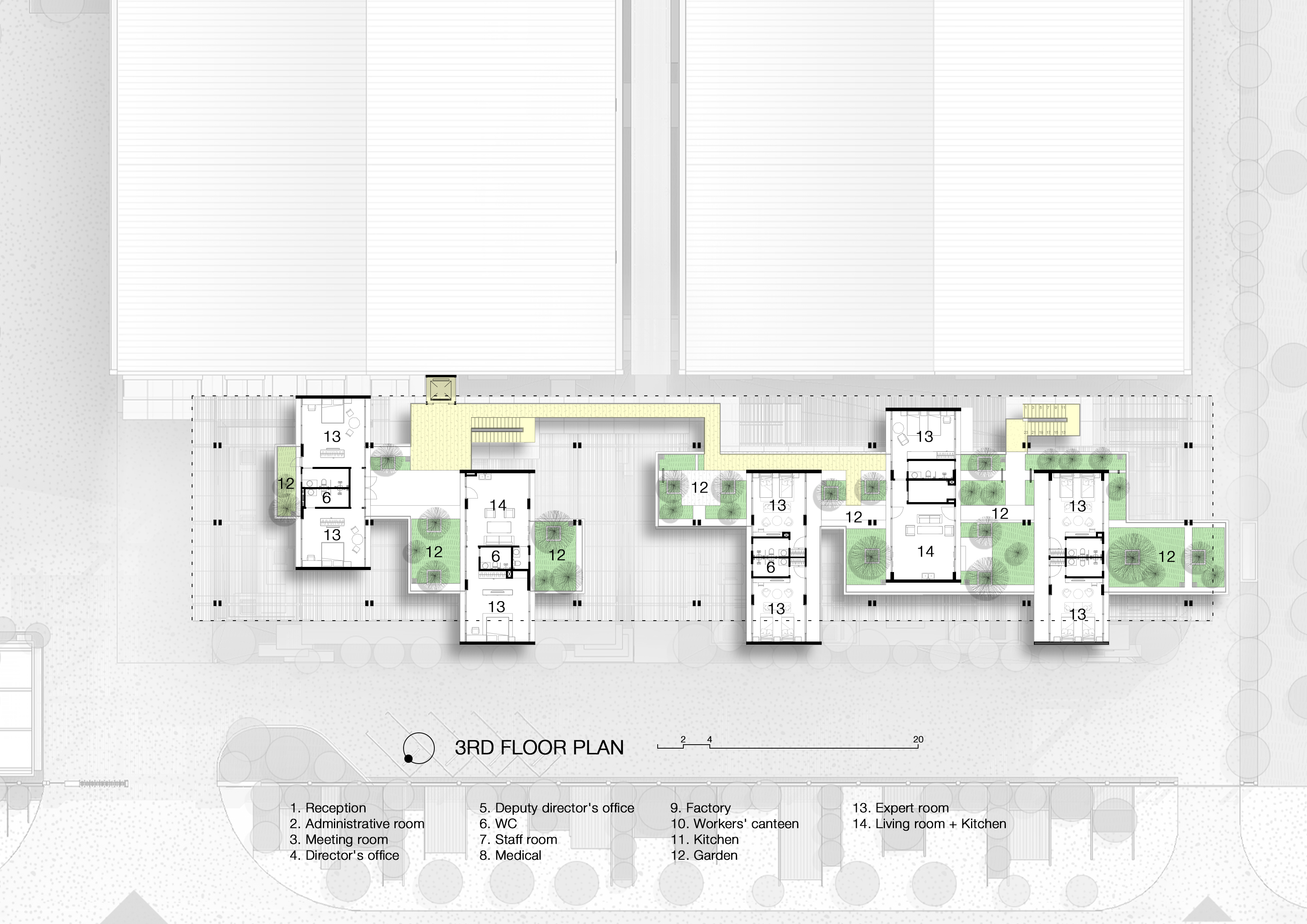
텍스타일 팩토리 오피스는 의류 제조 공장 내에 조성된 사무공간으로, 국가를 대표하는 산업 지구 중 하나에 위치한다. 이 지역은 24시간 운영되며 지역 사회에 일자리를 제공하는 중요한 역할을 하고 있다. 그러나 대규모 노동력을 수용해야 하는 여건 속에서 근무 환경과 공간의 질은 오랫동안 최소한의 수준에 머물러 있었다. 이 프로젝트는 기존 산업 시설의 틀을 넘어, 공장 내 사무공간의 가능성을 새롭게 정의한다. 사용자의 경험을 중심에 두고, 기능적 요구를 충족함과 동시에 몸과 마음을 고양시키는 환경을 제안한다. 산업 생산의 단조로운 흐름 속에서도 자연과 연결되고, 영감을 주며, 치유와 회복이 가능한 장소로서의 사무공간을 지향한다.





건축은 전통 직조기의 목조 프레임에서 착안한 시적인 형태로 구성되었다. 콘크리트 기둥과 보 구조 위에 배치된 사무실 매스들은 서로 엇갈리며 배치되어 마치 직조기 위에서 떠 있는 듯한 인상을 준다. 이는 구조적 안정성과 시각적 아름다움이 조화를 이루는 설계 방식으로, 기능성과 조형미를 동시에 갖춘 공간을 완성한다.

텍스타일 팩토리 오피스는 과거와 미래, 전통과 혁신 사이의 건축적 대화이다. 노동의 현장을 영감의 공간으로 재정의하며, 장인의 정신을 기리고 일상을 품격 있게 만들며, 건축이 인간과 자연을 연결하고 치유하며 감동을 전할 수 있음을 보여준다.







건축가 호 쿠에 아키텍츠 (Ho Khue Architects)
위치 베트남, 다낭
용도 업무시설
규모 지상 3층
대표건축가 HO KHUE
발주자 Vinh Phuc Textile Company
사진작가 Triệu Chiến
'Architecture Project > Office' 카테고리의 다른 글
| 반선재, 도자기의 예술과 문화가 만나는 공간 / (주) 지음플러스 (0) | 2025.06.26 |
|---|---|
| 지구를 생각하는 공간, 오피스 리모델링 / 타케시 호사카 아키텍츠 (0) | 2025.06.10 |
| 디콜라보 / (주)엘케이에스에이 건축사사무소 (0) | 2025.05.12 |
| 주름진 알루미늄 메시로 뒤덮인 본필리올리 본사 / 피터 피클러 아키텍처 (0) | 2025.05.07 |
| 두산빌딩 / (주)오엠엠건축사사무소 (0) | 2025.05.02 |
마실와이드 | 등록번호 : 서울, 아03630 | 등록일자 : 2015년 03월 11일 | 마실와이드 | 발행ㆍ편집인 : 김명규 | 청소년보호책임자 : 최지희 | 발행소 : 서울시 마포구 월드컵로8길 45-8 1층 | 발행일자 : 매일



