
이 프로젝트는 TBWA 하쿠호도의 자회사로 새롭게 설립된 Earth Centric Design Lab(ECD)의 사무실 내부 리노베이션으로, 기존의 인간 중심 디자인에서 지구 중심 디자인으로의 전환을 목표로 한 공간입니다. 건축적 관점에서 핵심은 ‘지구 친화적’ 리노베이션에 있습니다. 기존 사무실에서 나온 가구와 폐자재는 새 사무실 재사용, 다른 장소에서 재사용, 자원으로 재활용, 적절한 폐기 순으로 분류되었고, 약 95.5%의 자재를 재사용하였습니다. 기존 바닥은 철거하지 않고 레벨링 페인트를 덮었고, 벽돌 벽은 그대로 두고 석고보드로 마감하여 폐기물 발생을 최소화했습니다. 조명, 페인트, 카펫 타일, 가구 등도 이전 사무실 또는 폐자재에서 가져와 재활용했으며, 신규 구매 시에도 환경 영향을 고려했습니다.



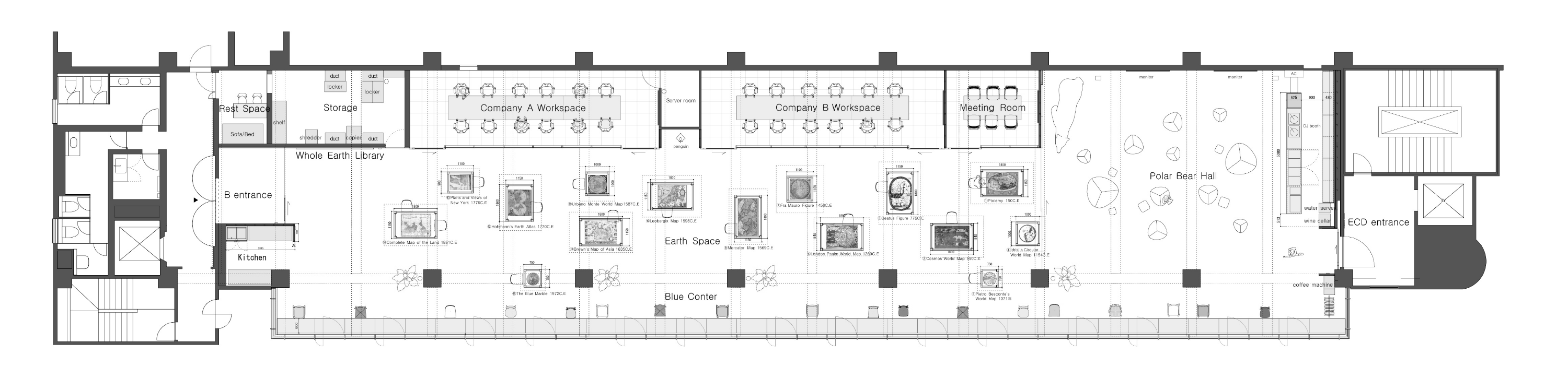
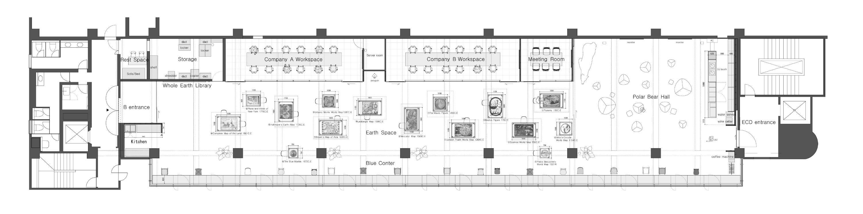
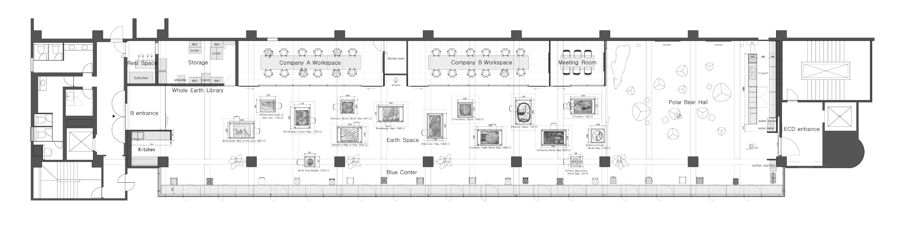
공간 구성 또한 건축적으로 중요한 의미를 지니는데, 총 여섯 개 공간이 '지구를 생각하는 시간과 장소'를 테마로 설계되었습니다. ‘Earth Space’는 고대부터 현재까지의 지도를 강화유리에 인쇄해 테이블로 제작하고, 조명 빛이 바닥에 투사되도록 설계되었습니다. ‘ECD 입구’는 타 현장에서 남은 페인트를 혼합해 벽을 칠하고, 조개껍데기를 재활용한 3D 프린팅 재료로 로고를 제작했습니다.


‘Polar Bear Hall’은 폐목재로 만든 실물 크기 북극곰 조형물이 놓인 휴게 및 워크숍 공간입니다. ‘Blue Counter’는 창가에 설치되어 외부를 보며 작업할 수 있고, 저녁엔 조명이 파란빛으로 그라데이션을 이루며 분위기를 형성합니다. ‘업무 공간과 회의실’은 바닥 타일, 유리 파티션, 슬라이딩 도어, 에어컨 등 모두 재사용 자재로 구성되었습니다.


마지막으로 ‘Whole Earth Library’는 ‘Whole Earth Catalogue’를 벽에 전시해 지구 환경에 대한 인간의 성찰을 담았습니다. 이러한 건축적 요소들은 지속가능성과 재료 순환, 그리고 디자인을 통한 지구 인식의 전환을 효과적으로 보여주는 사례입니다.

건축가 타케시 호사카 아키텍츠 (TAKESHI HOSAKA architects)
위치 일본, 도쿄, 미나토, 시바우라, 1-13-10, 3rd Toun빌딩 9층
용도 업무시설
연면적 527.7㎡
규모 지상 1층
준공 2025
대표건축가 Takeshi Hosaka
시공 Twenty-first century constructions Co.,Ltd.
발주자 ECD (Earth Centric Design Lab)
사진작가 Noboru Inoue
'Architecture Project > Office' 카테고리의 다른 글
| 일과 삶이 공생하는 곳, 3/1 (일삶)빌딩 / 소수 건축사사무소 (0) | 2025.06.27 |
|---|---|
| 반선재, 도자기의 예술과 문화가 만나는 공간 / (주) 지음플러스 (0) | 2025.06.26 |
| 의류 직조기 모양에 담긴 팩토리 오피스 / 호 쿠에 아키텍츠 (0) | 2025.06.02 |
| 디콜라보 / (주)엘케이에스에이 건축사사무소 (0) | 2025.05.12 |
| 주름진 알루미늄 메시로 뒤덮인 본필리올리 본사 / 피터 피클러 아키텍처 (0) | 2025.05.07 |
마실와이드 | 등록번호 : 서울, 아03630 | 등록일자 : 2015년 03월 11일 | 마실와이드 | 발행ㆍ편집인 : 김명규 | 청소년보호책임자 : 최지희 | 발행소 : 서울시 마포구 월드컵로8길 45-8 1층 | 발행일자 : 매일



