
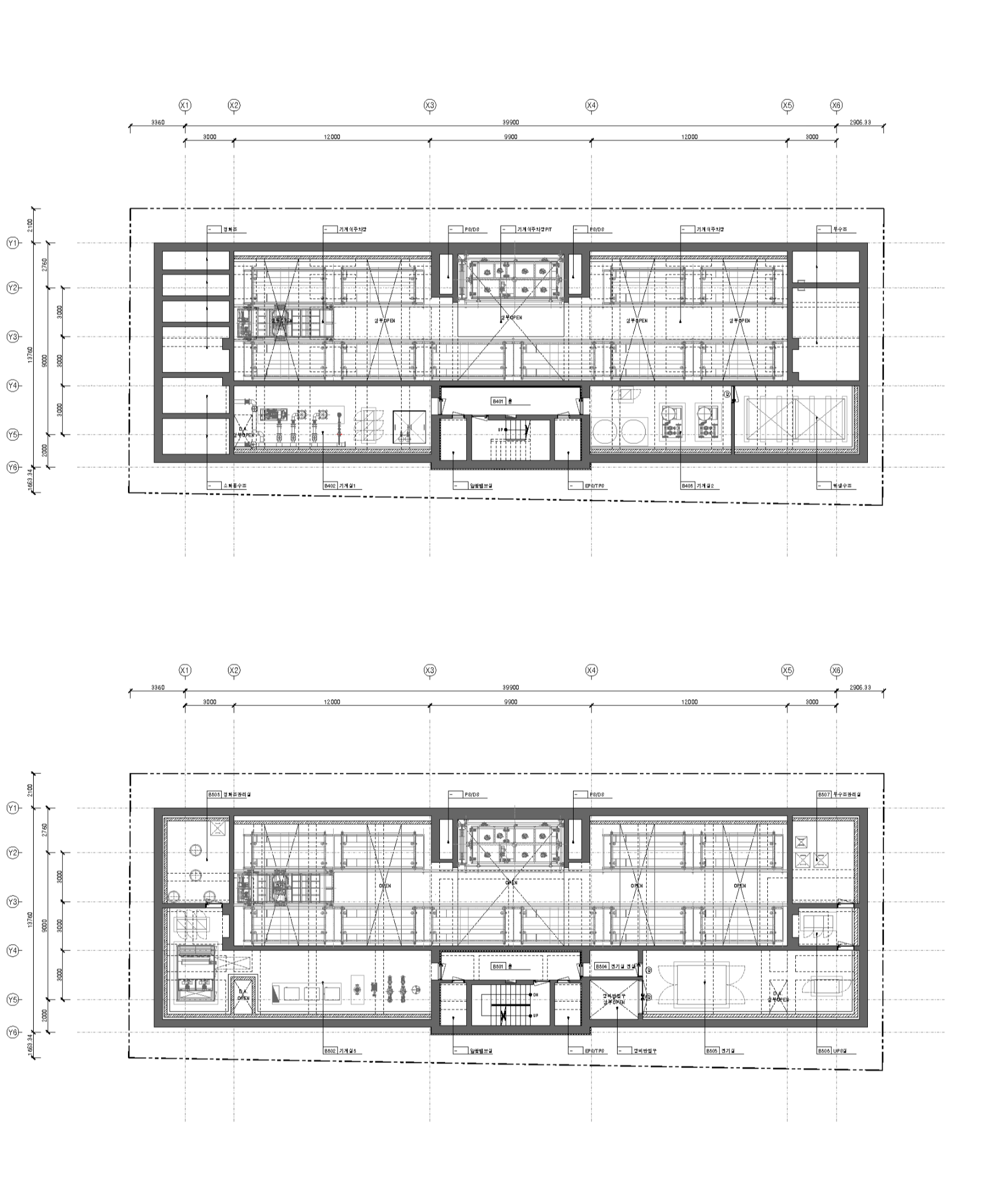
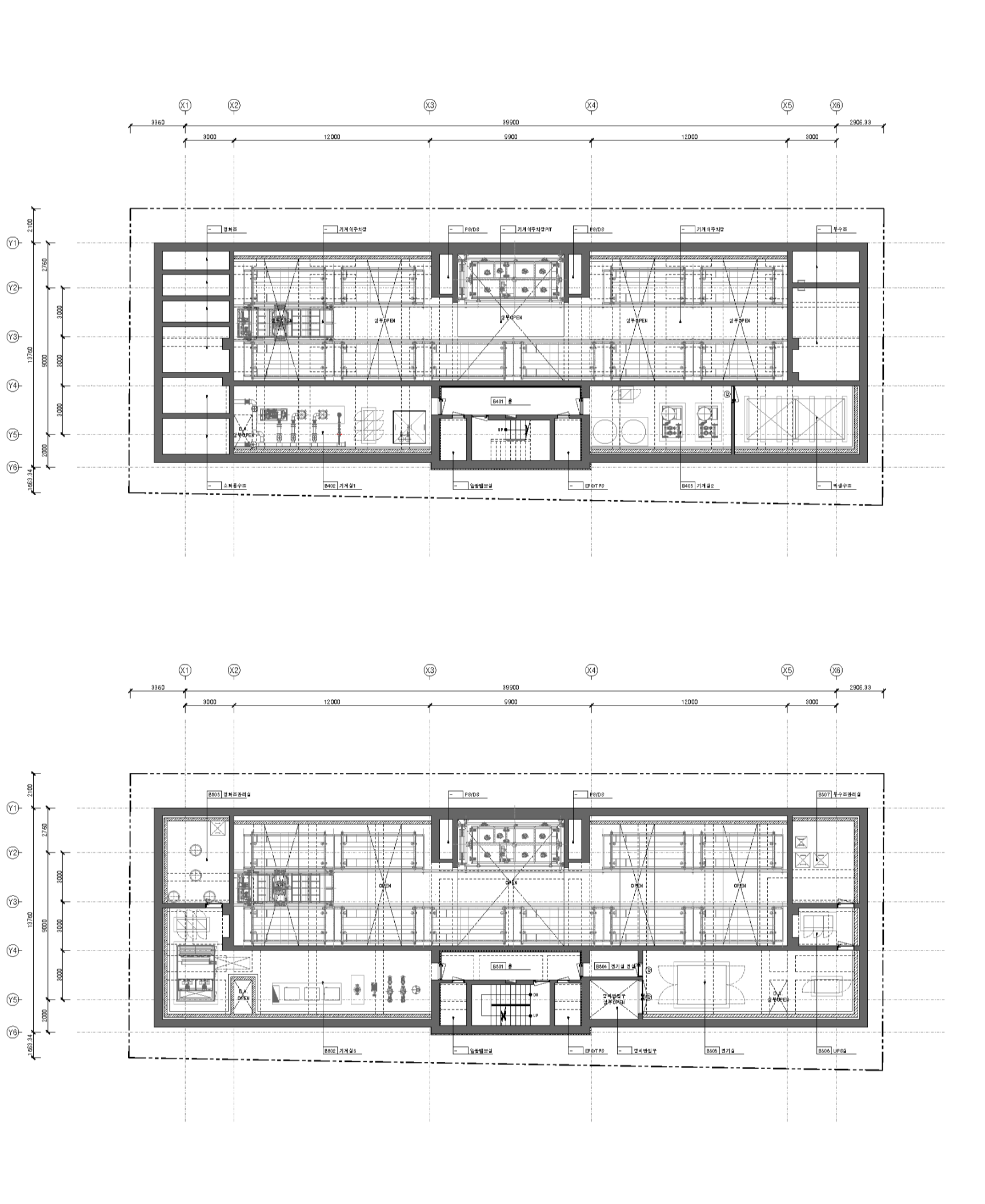
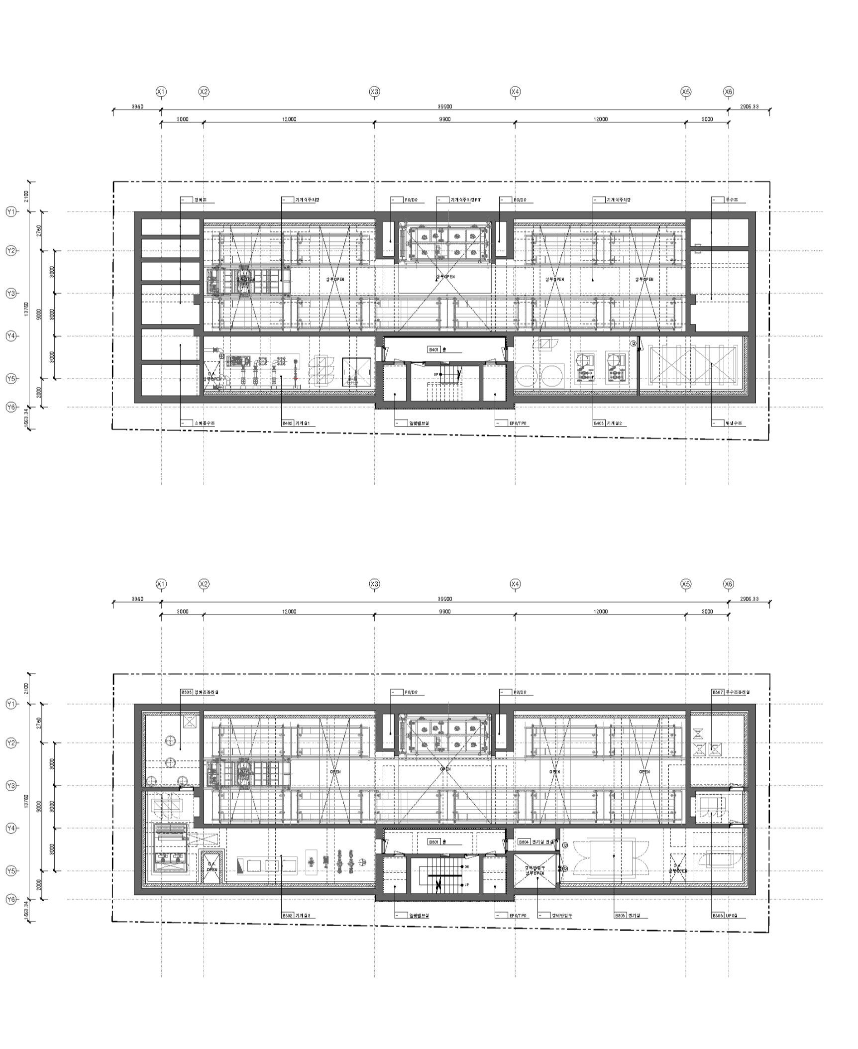
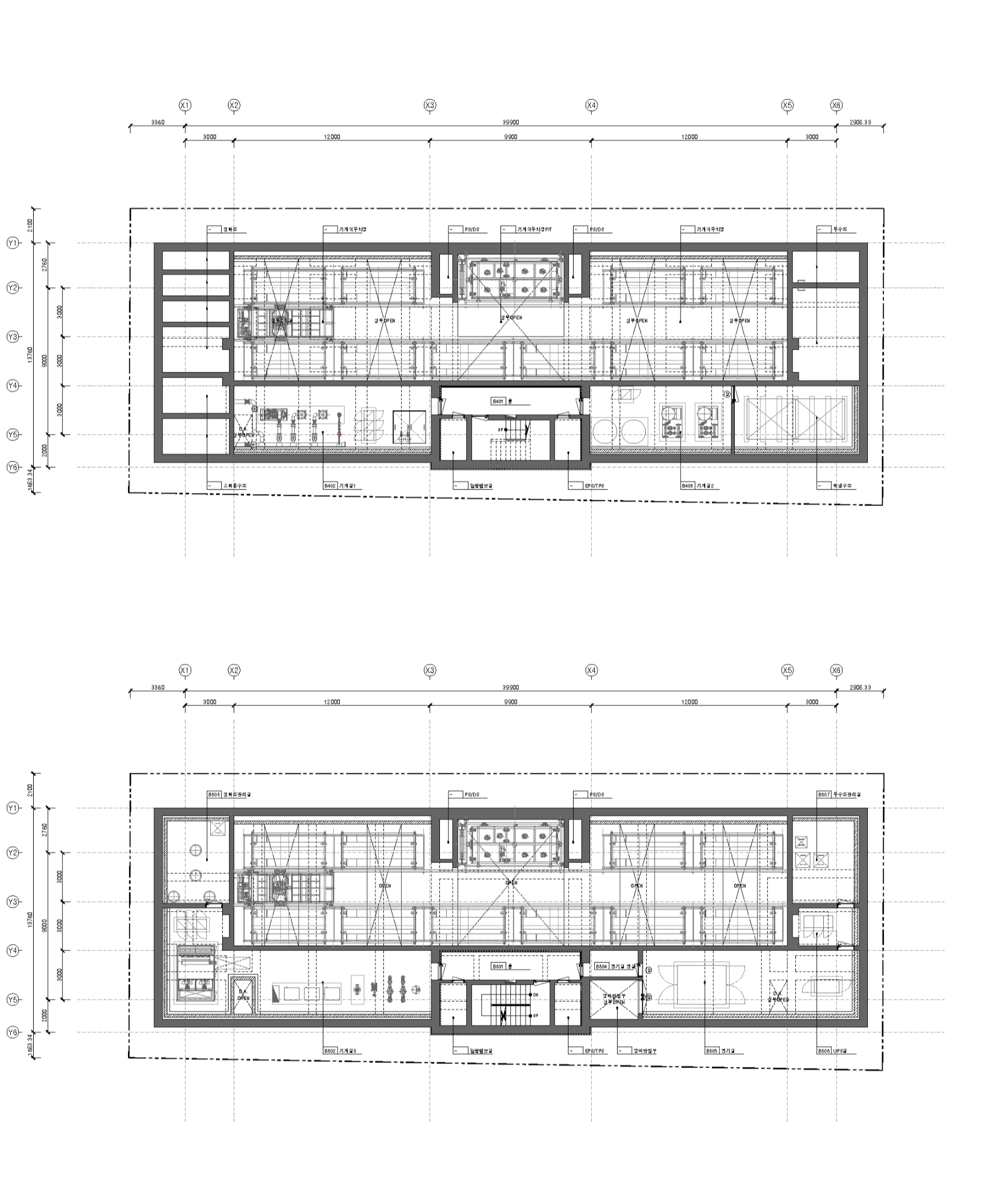
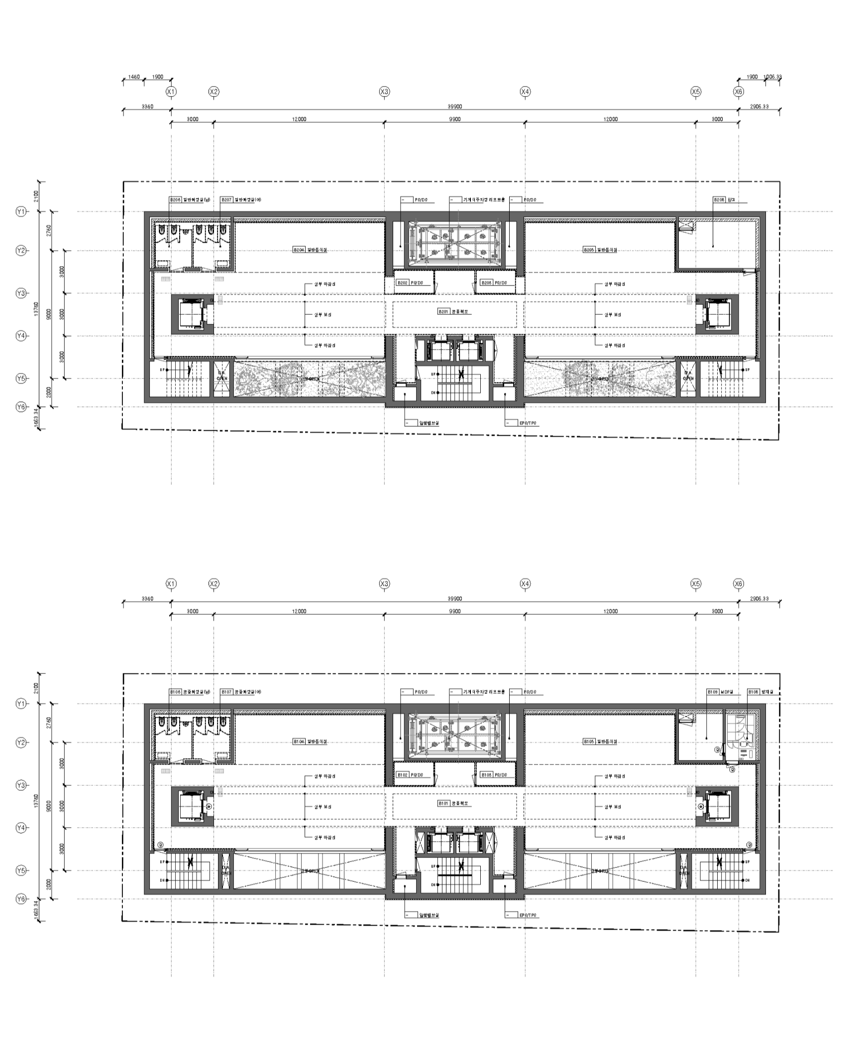
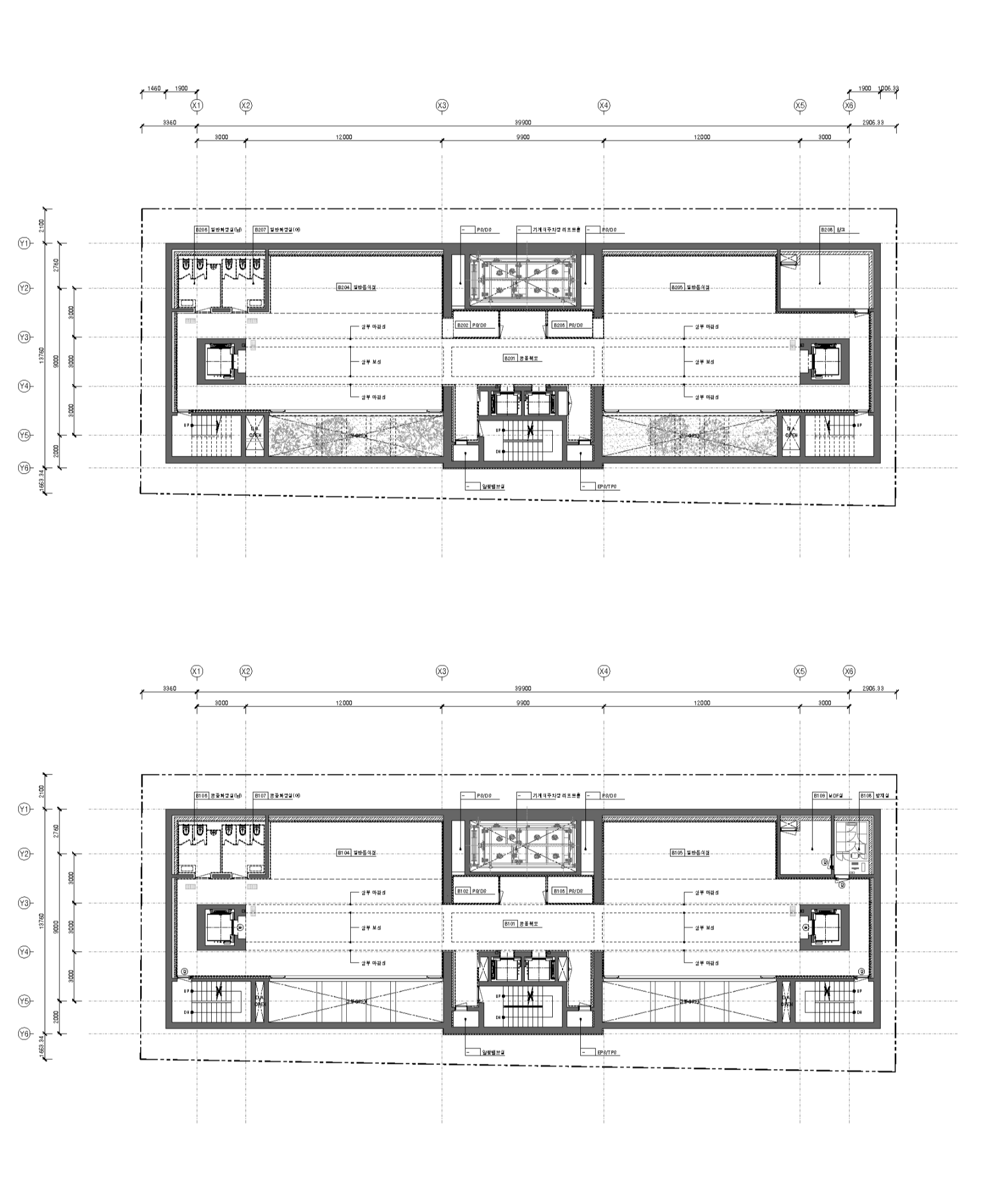
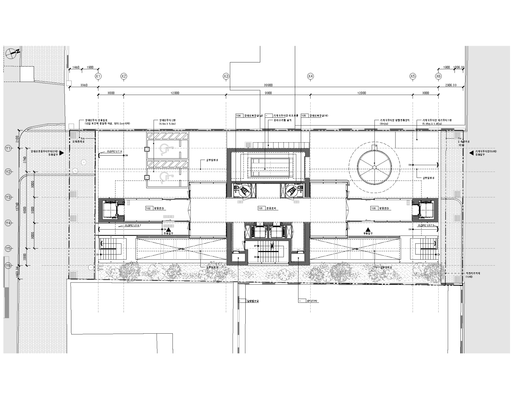
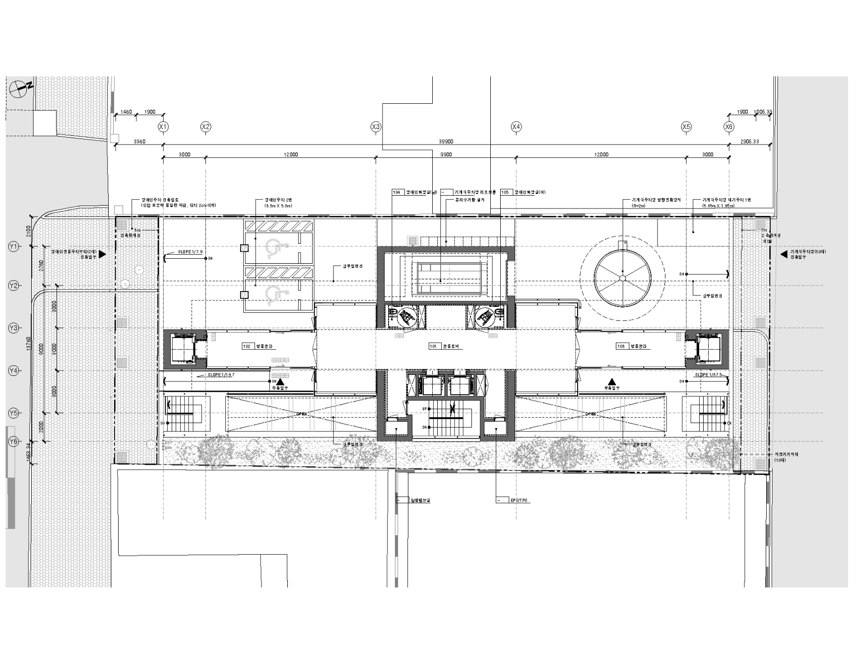
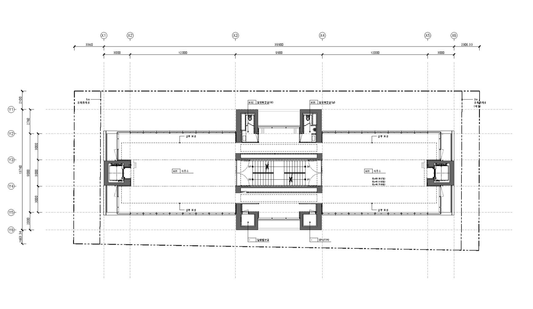
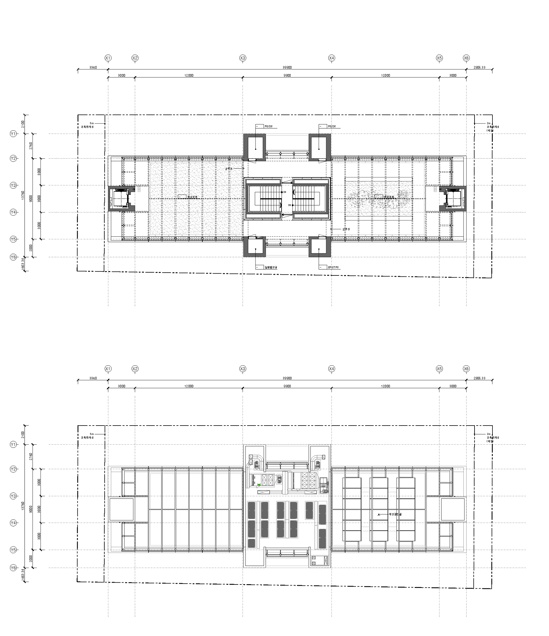
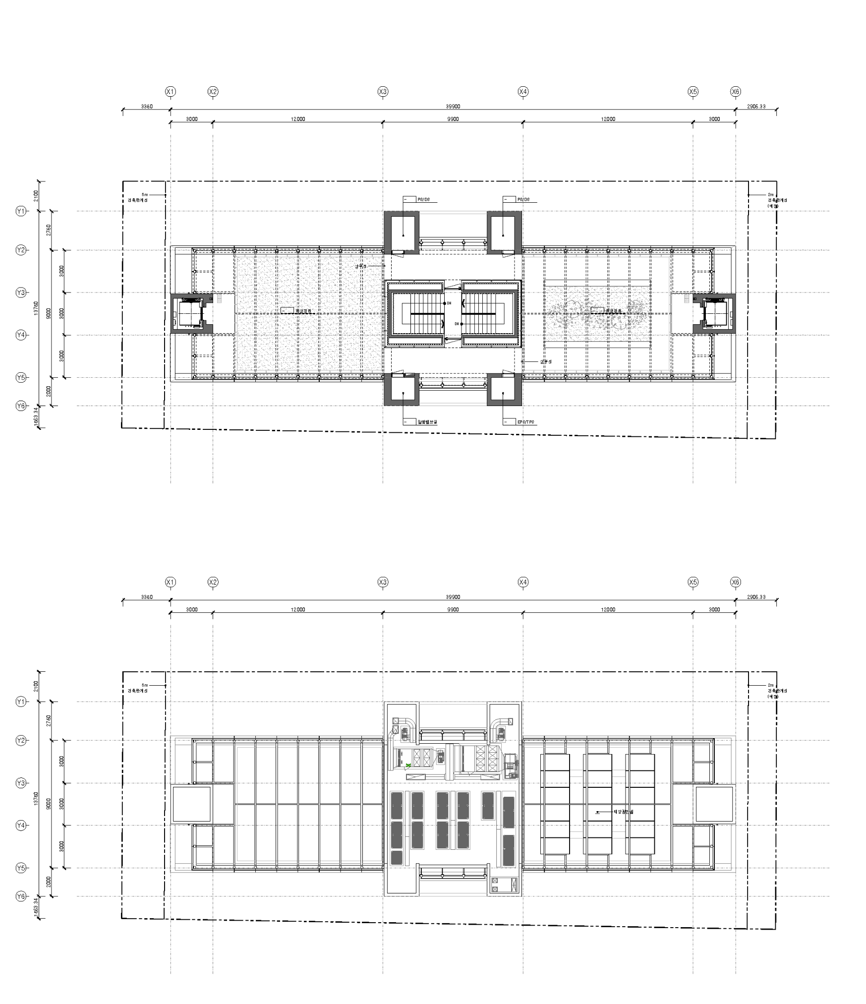
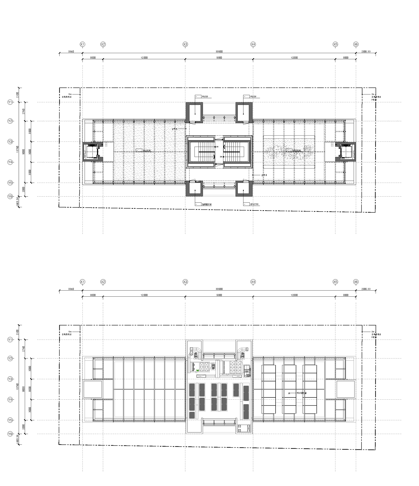
코어해체시스템
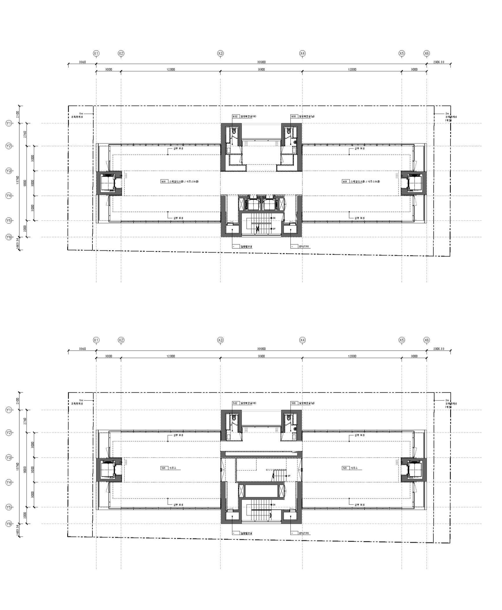
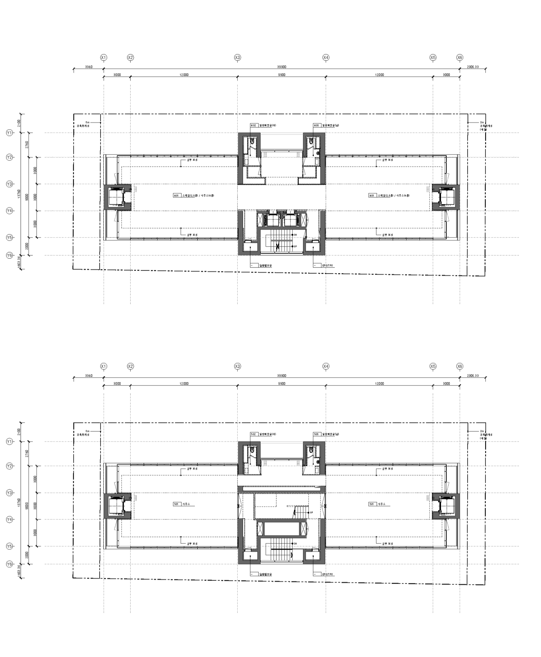
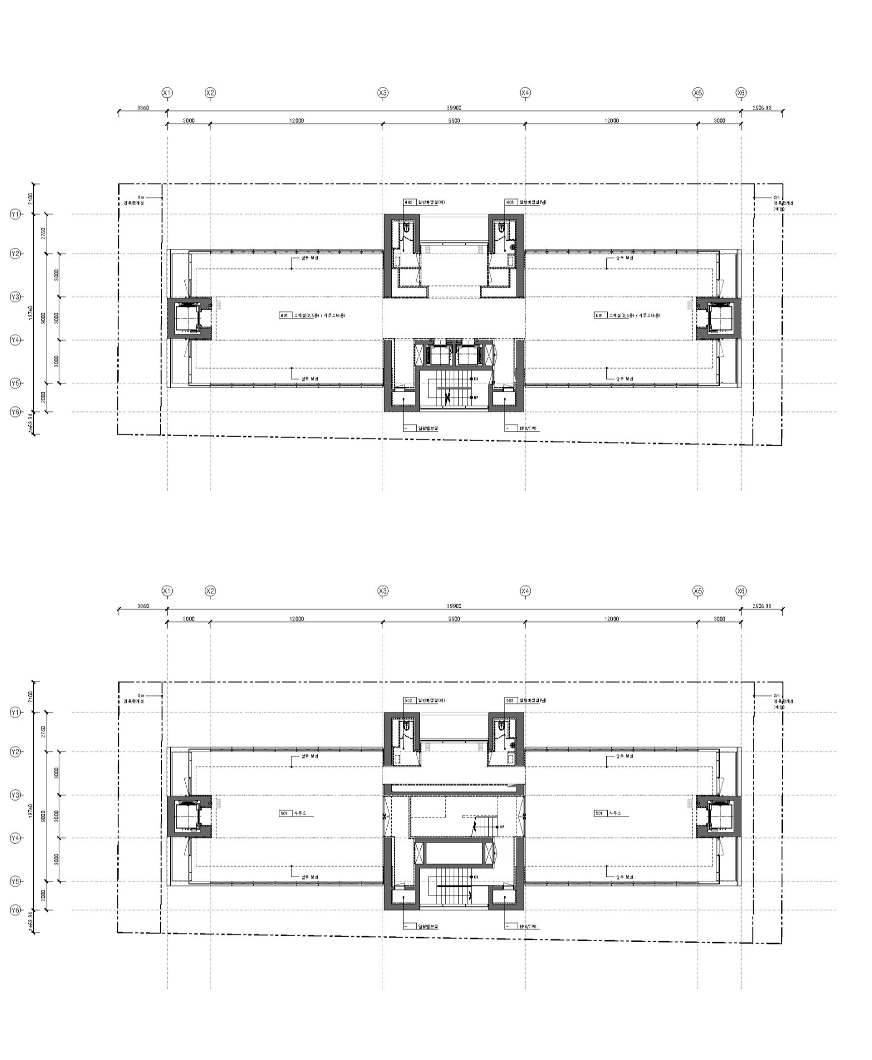
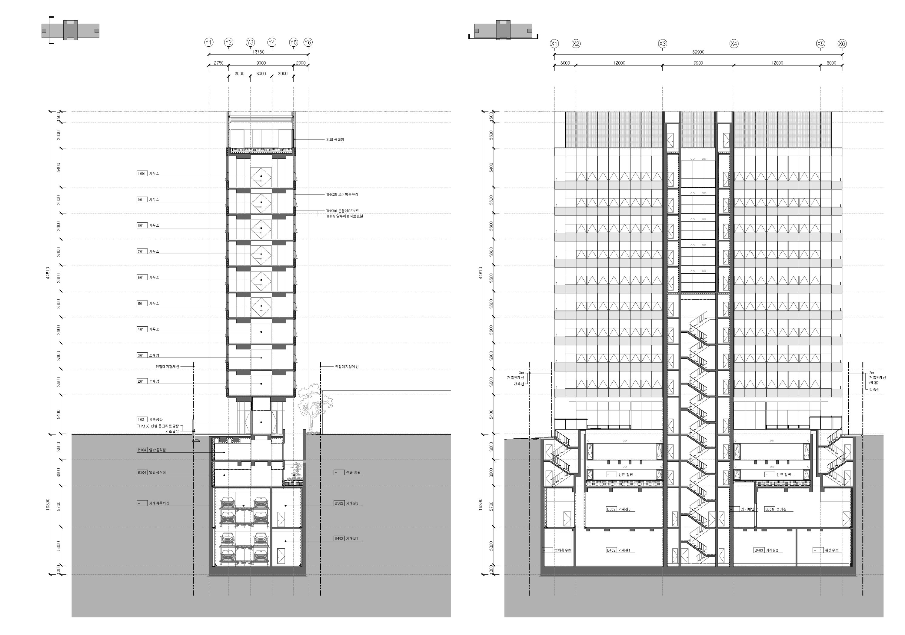
코어를 ‘十’자 모양으로 나누어 배치했다. 그리고 코어를 건축물전체의 수직구조로 사용하고, 교차되는 부위에 ‘ㅁ’자 모양의 포스트텐션보와 연결해서 기둥을 삭제했다. 모든치수를 단위화하고 공간을 다양하게 사용할수 있도록 설비 시스템을 구축했다.
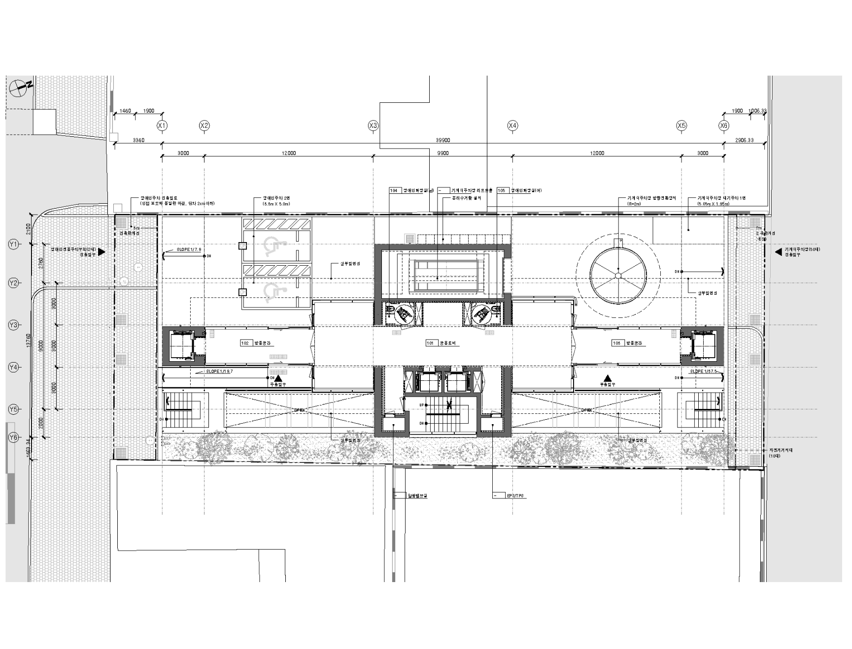
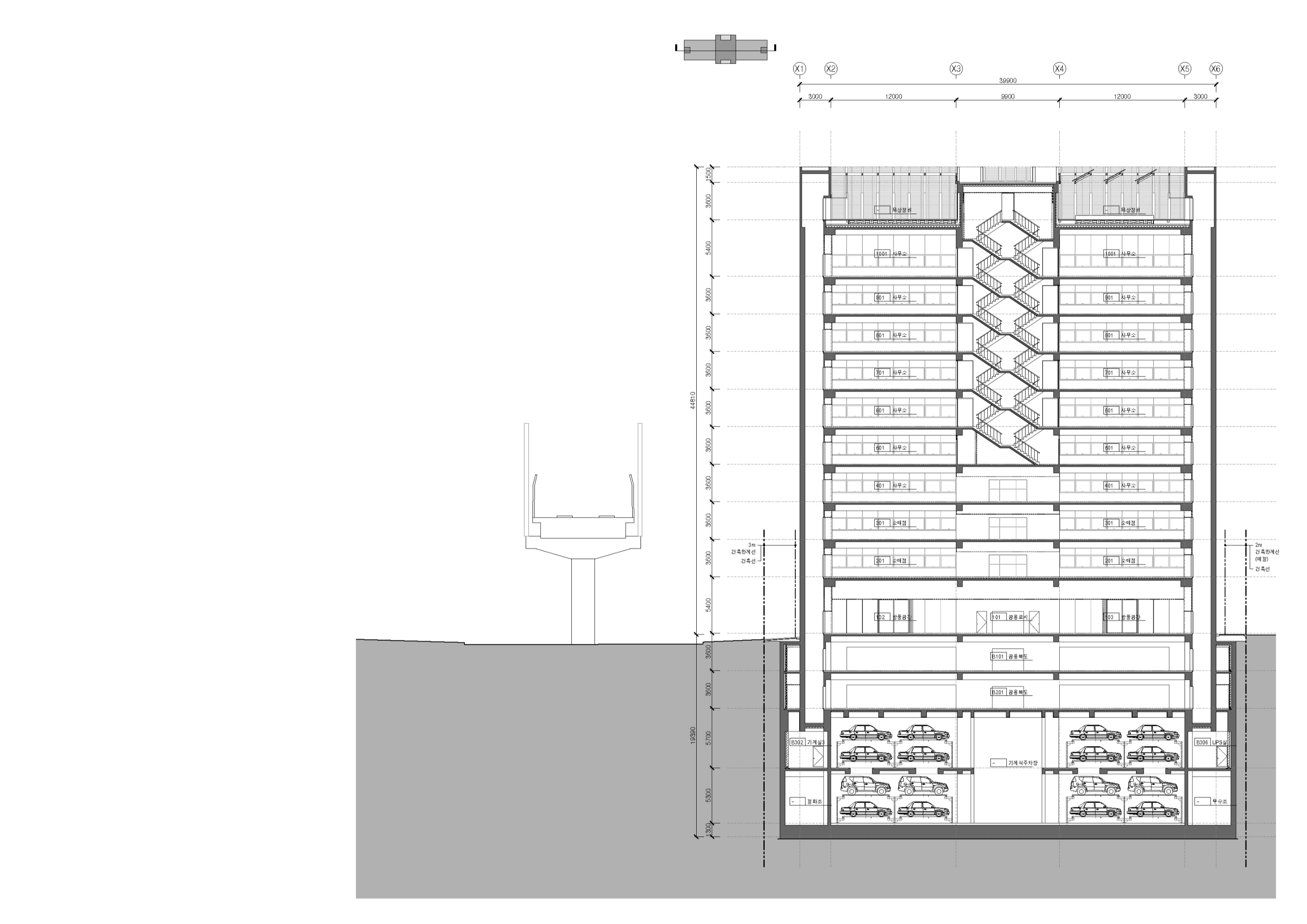
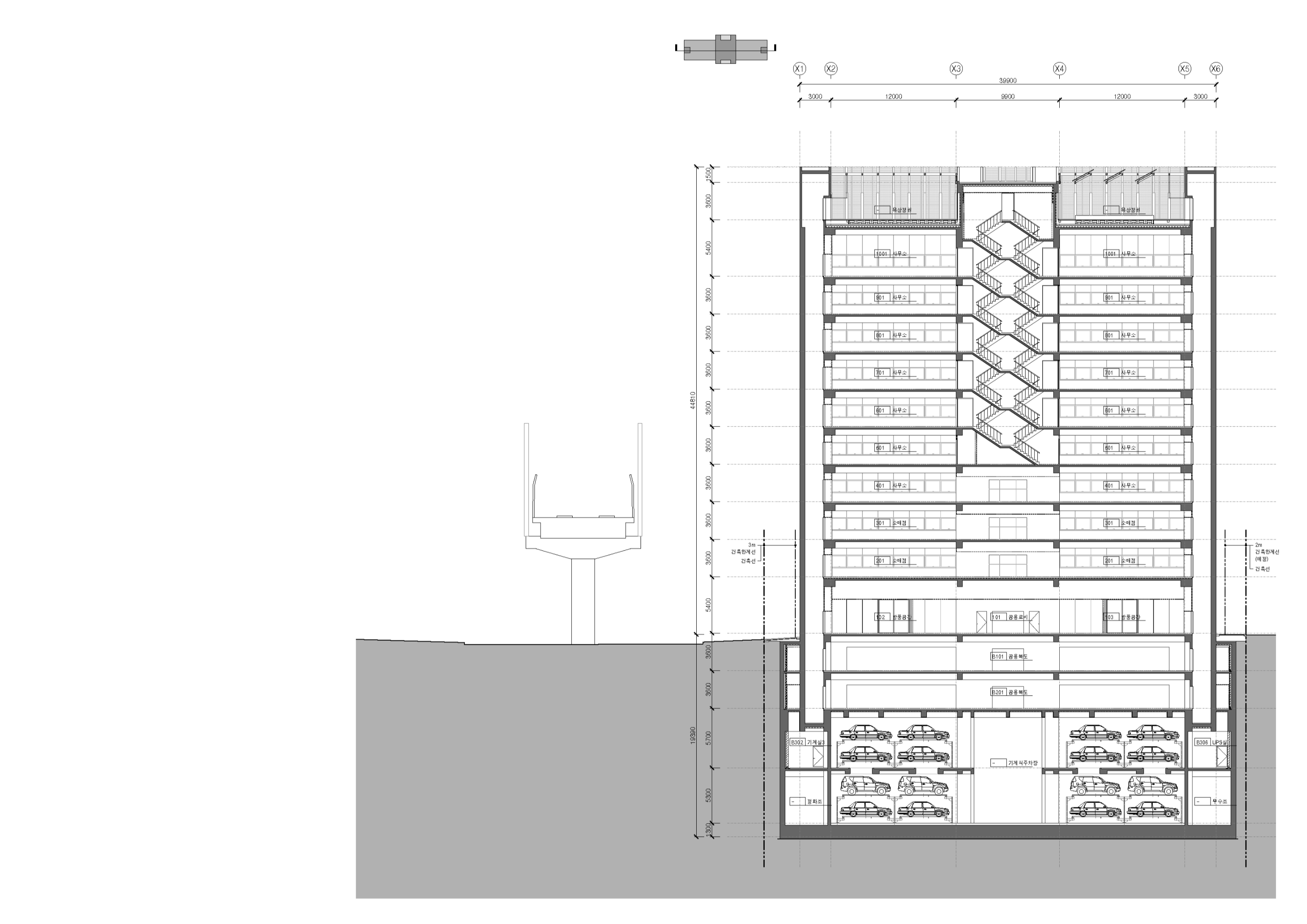
양 옆에서 동시에 출입할 수 있는 계단은 어떨지 생각해 봤다. 이 계단은 돌음계단과 곧은계단을 교차시킨 형태로, 몸의 방향을 꺾지 않고 층간 이동이 가능하다. 우리는 이 계단을 '가위계단' 이라고 부르기로 했다. 백화점 에스컬레이터에서도 볼 수 있는 방식의 가위계단은 한번에 3개의 층을 연결한다. 이 구조는 반층 위아래를 연결하는 스킵플로어 보다 더 강력한 층간 연결 방식이다.
대지 정중앙에 가위계단을 놓는다. 그리고 건축물 양 끝단에 승강기를 놓고, 넓은 복도로 연결했다. 넓은 복도 양옆으로 업무공간을 매달고, 계단과 가까운 중앙부에 화장실, 편의공간, 설비공간을 배치했다.
건축물은 사용성을 고려한 단위계획이 되어 있다. 이 단위계획은 한 사람이 사용하는 영역의 치수를 1.5m로 설정하고, 3m 간격으로 각종설비를 계획해서, 설비의 변경없이 다양한 방식으로 공간을 구획 또는 변경해서 사용할 수 있도록 되어있다.
지하2층~지상3층에는 누구나 이용할 수 있는 근린생활시설이 있다. 이 영역은 별도의 승강기가 건물 중앙에 있어서 업무공간과 분리 운영이 가능하도록 되어 있다. 외부 손님은 근린생활시설과 업무공간에 간섭 없이 4층 회의 공간과 10층 라운지, 옥상으로 접근이 가능하다. 업무시설 이용자는 건물 양끝 엘리베이터를 이용해 건물 건체를 사용할 수 있다.
이 건축물은 보통의 건물과 다르게 끝이 없다. 하루 종일 막힘없이 이동하고 소통하며, 끊임없이 연결 된다.
























건축가 주식회사 푸하하하 건축사사무소 (주식회사 푸하하하건축사사무소)
위치 서울특별시 성동구 성수동2가 277-121
용도 업무시설, 근린생활시설
대지면적 817.50㎡
건축면적 369.02㎡
연면적 4,999.05㎡
규모 지하4층, 지상10층
준공 2024
대표건축가 한양규,윤한진,한승재
인테리어 스튜디오 씨오엠 Studio COM
구조엔지니어 터구조 Teo Structure
기계엔지니어 하나기연 Hana Consulting Engineers
시공 (주)이안알앤씨
발주자 제이케이앤디 주식회사
사진작가 신경섭
'Architecture Project > Office' 카테고리의 다른 글
| 공중 위의 발걸음: 천목리 스테리 오피스 / 퍼니트 디자인 앤 모어 (0) | 2025.10.13 |
|---|---|
| 콘크리트와 유리 사이, 빛의 여정을 담다 / 에어 매터스, 16 아치 스튜디오 (0) | 2025.09.29 |
| 켜를 차곡차곡 쌓아, 시간을 전달하는 리모델링 건축 / 네기시 켄치쿠 스튜디오 (0) | 2025.08.29 |
| 일과 삶이 공생하는 곳, 3/1 (일삶)빌딩 / 소수 건축사사무소 (0) | 2025.06.27 |
| 반선재, 도자기의 예술과 문화가 만나는 공간 / (주) 지음플러스 (0) | 2025.06.26 |
마실와이드 | 등록번호 : 서울, 아03630 | 등록일자 : 2015년 03월 11일 | 마실와이드 | 발행ㆍ편집인 : 김명규 | 청소년보호책임자 : 최지희 | 발행소 : 서울시 마포구 월드컵로8길 45-8 1층 | 발행일자 : 매일



