
경휘재(景輝齋)는 빛이 나는 집이며, 빛나는 사람의 집, 빛나는 사람이 되기 위한 집이라는 뜻이다. 경휘재가 세워진 곳은 서울의 남쪽 경계에 있는 지역인 염곡동이다. 염통(심장)의 형상을 닮았다 하여 염통 골에서 기원하여 명당으로 불리는 동네이다. 대지는 마을 입구에서 완만하게 올라가면서 구룡산 자락 아래 동서로 길게 자리 잡고 있다. 땅에 도착하여 뒤를 돌아보면 우측으로부터 관악산, 청계산, 인릉산이 펼쳐진다. 이 일대는 오랜 기간 단독주택이 늘어선 마을이었다. 경휘재도 이 마을 풍경 속에 간결하고 담백한 모습으로 존재하길 바랐다. 경휘재가 들어선 대지는 전면 도로에서 남측으로 약 2m 정도 경사가 있으며 긴 형태를 가지고 있다. 건축가는 이러한 대지의 특징을 반영하여 수평성을 강조하여 설계했다.


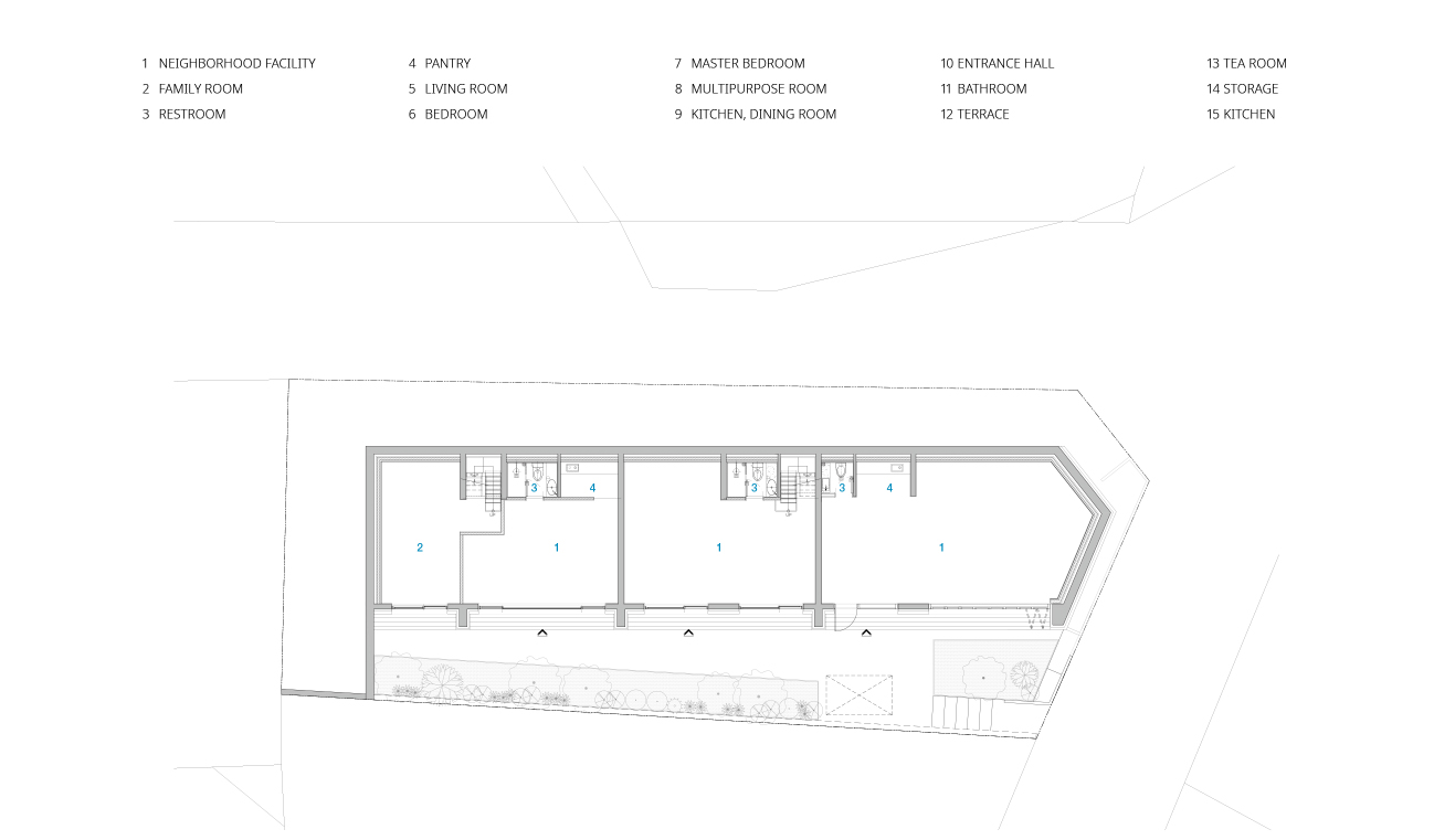
경휘재와 처음 대면할 때 느껴지는 이미지는 중성적이고 무채색인 모습이다. 저층은 무채색의 시멘트 벽돌이 단단한 기단 역할을 하며, 2층은 대조적으로 삼나무 루버가 사용되었다. 삼나무 목재는 유연하면서도 강하며, 부드러우면서도 거친 이중적 느낌을 준다. 경휘재는 세 세대와 작은 근린생활공간으로 구성된다. 긴 박스의 형태는 세 세대가 구분되지 않으며 하나의 안정적인 매스로 보인다. 1층은 두 세대가 거주할 수 있는 공간이 있고, 2층은 건축주의 집이다. 각 세대는 독립된 대문과 단독주택 같이 자연과 가까이 할 수 있는 마당을 가지고 있다. 남측에는 경사지를 따라 만들어진 썬큰 마당이 있다. 마당은 누구나 쉽게 접근할 수 있고 풍요로운 햇살을 맞이하며 쉴 수 있는 공간이다. 마당에는 건축주가 20년 이상 키워온 단풍나무가 심어져 있다.

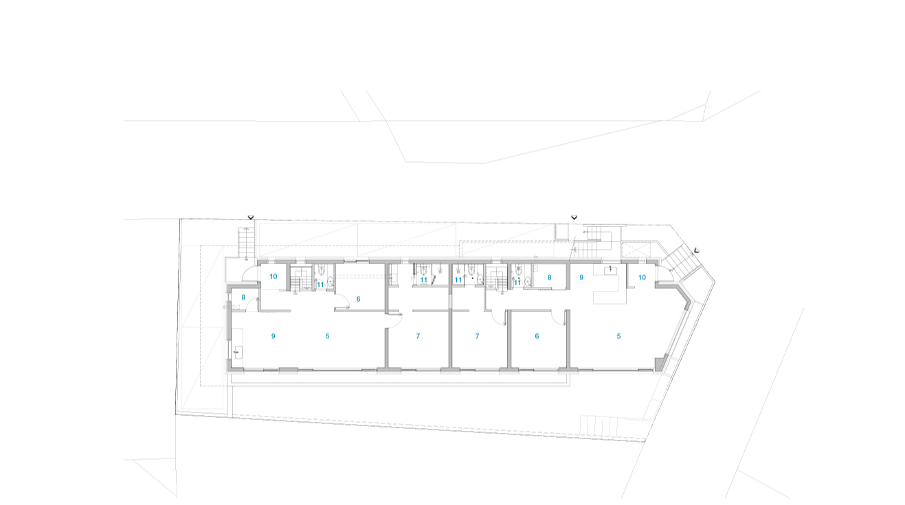
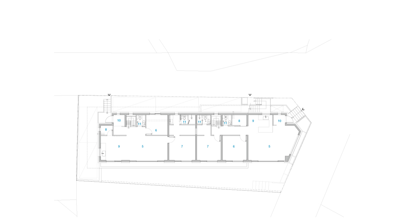
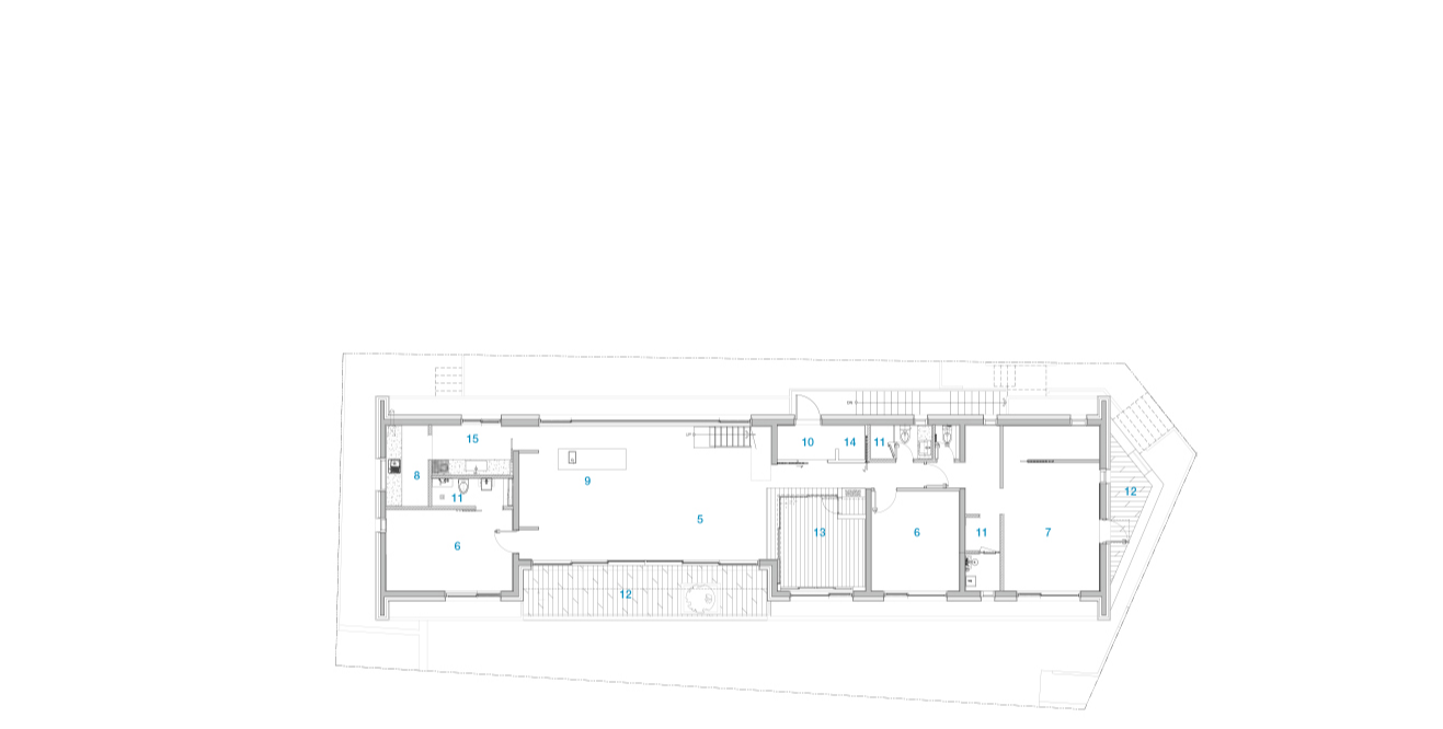
2층 주택의 공간은 길게 공간이 배치되어 있으며 모든 방은 남향이며 멋진 조망을 가지고 있다. 경휘재라는 이름을 잘 보여주는 2층의 거실은 높은 층고와 더불어 남측으로 넓게 열려 있다. 9m의 거실 창은 창밖 너머로 펼쳐진 산 풍경을 품는다. 거실의 한편에는 사랑채와 같은 편백 다실이 있다.

경휘재는 공동주택의 편의성을 내부 공간에 배치하려 하였다. 각 세대 출입구 부분의 작은 정원조차 사람의 신체적, 감각적 한계를 고려한 설계로 단독주택 내에서 찾을 수 있는 요소로 적용하였다. 주택 내부의 공간들은 각각의 공적 사적 공간의 고유성을 잘 살피고 고려해야 한다. 하지만 현대사회에서는 가족 구성원과 기능의 변화에 따른 대응이 중요하다. 주택은 아파트보다는 움직임이 많은 생활방식을 가져야 하기에, 단독주택을 설계할 때 다양한 활동 동선을 담을 수 있는 디자인을 하는 것이 건축가의 의무가 아닌가 생각한다.






건축가 (주)지에이건축사사무소
위치 서울특별시 서초구 염곡안길 39 (염곡동)
용도 다가구주택, 근린생활시설
대지면적 399.00㎡
건축면적 199.00㎡
연면적 422.59㎡
규모 지하 1층, 지상 2층
건폐율 49.87%
용적률 67.02%
설계기간 2022. 1. - 4.
시공기간 2023. 3. - 12.
준공 2023. 12.
대표건축가 경민호
프로젝트건축가 경민호
디자인팀 조기상, 정봉수, 박상희
인테리어 GAdesign (양정선, 이수윤, 권미림, 김선욱)
구조 엔지니어 (주)더나은구조엔지니어링
기계 엔지니어 (주)태림이엔씨
전기 엔지니어 (주)정우디씨
사진작가 김창묵
해당 프로젝트는 건축문화 2024년 12월호(Vol. 523)에 게재되었습니다.
The project was published in the November, 2024 recent projects of the magazine(Vol. 523).
December 2024 : vol. 523
Contents : COMPETITION : RECENT PROJECTUrban Lining - KN GLOBAL Headquarter / ZAIRA Architects & Engineers(주)케이엔글로벌 사옥 / (주)자이라 건축사사무소 yeon.ju.je.sun / SEOGA ARCHITECTS연주제선 / (주)서가건축
anc.masilwide.com
'Architecture Project > Other' 카테고리의 다른 글
| 과거와 현재가 동시에 걷는 곳 / 스튜디오 아흐트 (0) | 2024.12.31 |
|---|---|
| 식스센스 레지던스 더 포레스티아스 / Foster + Partners (0) | 2024.12.18 |
| Renovation and Expansion of the Irura Town Hall (0) | 2024.12.03 |
| INFILM (0) | 2024.11.29 |
| 조리읍 행정복지센터 (0) | 2024.11.27 |
마실와이드 | 등록번호 : 서울, 아03630 | 등록일자 : 2015년 03월 11일 | 마실와이드 | 발행ㆍ편집인 : 김명규 | 청소년보호책임자 : 최지희 | 발행소 : 서울시 마포구 월드컵로8길 45-8 1층 | 발행일자 : 매일



