
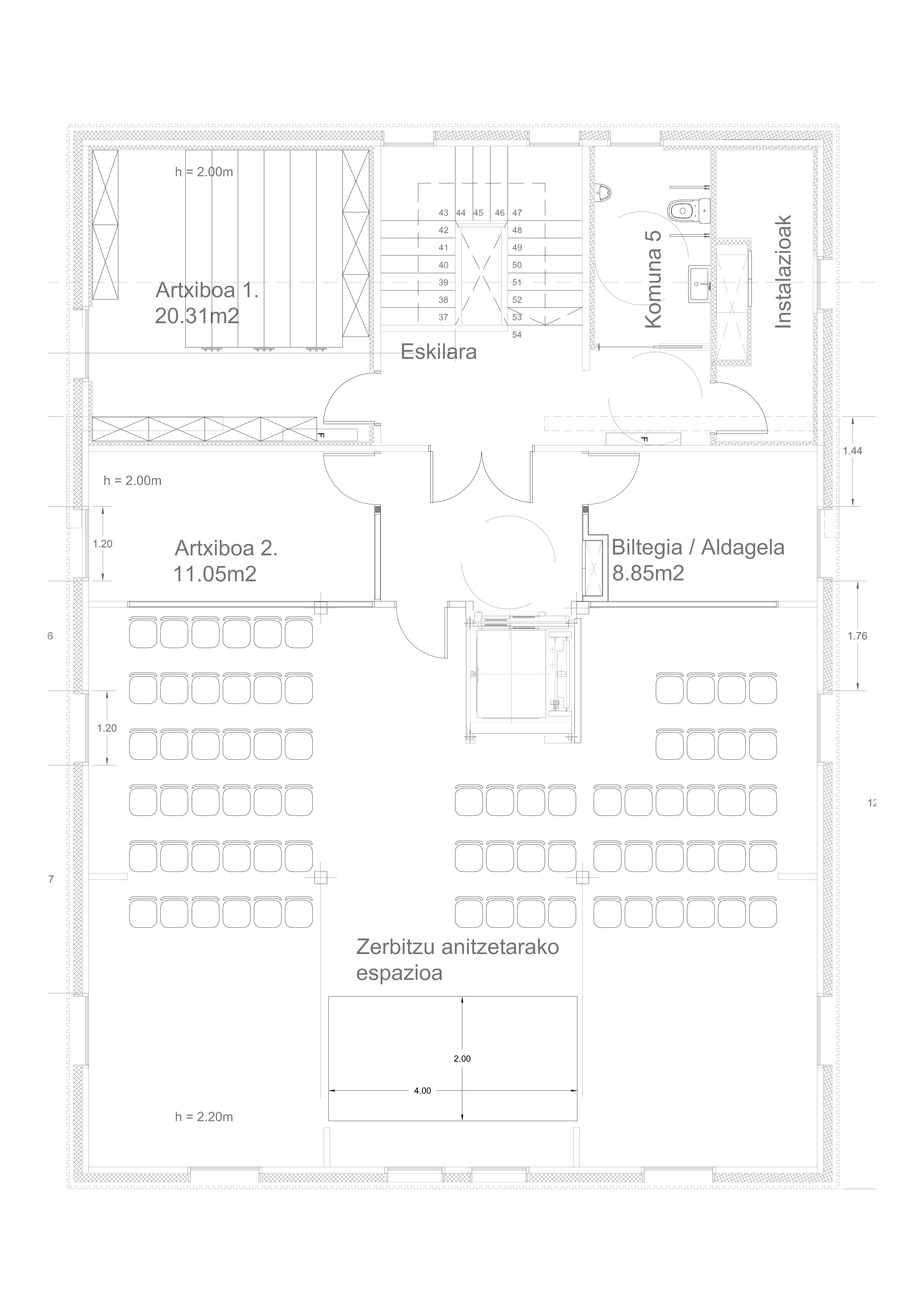
시청 건물은 교회 앞 마을 광장에 위치해 있다. 이 프로젝트의 목적은 독특한 농촌 건축물이 특징인 원래의 사각형 평면 건물을 새롭게 단장하고 확장하는 것이다. 접근성과 에너지 효율 측면에서 결함이 있었기 때문에 포괄적인 리노베이션과 유용한 면적의 50% 확장을 우선시했다.
이 제안은 기존 구조물과 조화롭고 존중받는 공존을 달성하여 입구 및 외관의 중요성과 같은 가장 특징적인 특징을 보존하는 것을 목표로 한다. 동시에 명확하게 구분되는 새로운 볼륨이 추가된다. 내부에는 남북 소통 축이 생성되어 엘리베이터가 기존 건물과 추가된 부분의 계단에 위치한다. 지붕은 전체 프로젝트의 통합 요소로 이해되며 엘리베이터 손잡이는 조명 역할도 한다.

새로운 확장은 기존 건축물과 뚜렷하게 다른 다면체 및 추상적인 체적 측정으로 설계되었다. 외관 입구를 배경으로 남기는 수직 나무 판자 외피를 통해 현대 언어가 적용된 별채 볼륨의 조건을 주장하고 있다. 이 새로운 볼륨은 연속적인 나무 판자 피복 뒤에 몇 개의 구멍만 드러내며 빛이 약한 부분으로 나타난다.

이 볼륨은 모서리를 깎아내어 1층의 도시 보행자 경로에 대응하도록 조각되었다. 반면에 슬레이트는 하루 종일 빛과 그림자에 따라 변형되고 일 년 중 계절에 따라 달라지는 변화하는 따뜻한 질감을 제공한다.


새로운 구조물은 탄소 발자국이 적은 현지에서 조달한 소나무의 CLT(크로스 라미네이팅 목재)를 사용하여 건설되었다. 외관을 만들기 위해 10cm의 목재 섬유 단열재와 방수 및 통기성이 뛰어난 검은색 막을 구조 패널에 배치했다. 마지막 외층으로, 기술적 목재 슬레이트 외피는 수평 목재 조각에 장착된다. 이 건물은 A 에너지 인증을 받았으며 화석 연료를 소비하지 않으며 자체 재생 에너지를 생산한다.






위치 스페인, 기푸스코아, 이루
연면적 660m²
준공 2024
대표건축가 Xabier Barrutieta
디자인팀 Ander Gonzalez (project) / Olaia Goikoetxea (project) / Ander Guerra (competition) / Nahikari Calleja (competition)
사진작가 Jorge Allende
'Architecture Project > Other' 카테고리의 다른 글
| 식스센스 레지던스 더 포레스티아스 / Foster + Partners (0) | 2024.12.18 |
|---|---|
| 경휘재(景輝齋) / (주)지에이건축사사무소 (0) | 2024.12.16 |
| INFILM (0) | 2024.11.29 |
| 조리읍 행정복지센터 (0) | 2024.11.27 |
| 논현동 리모델링 프로젝트 (0) | 2024.11.26 |
마실와이드 | 등록번호 : 서울, 아03630 | 등록일자 : 2015년 03월 11일 | 마실와이드 | 발행ㆍ편집인 : 김명규 | 청소년보호책임자 : 최지희 | 발행소 : 서울시 마포구 월드컵로8길 45-8 1층 | 발행일자 : 매일



