
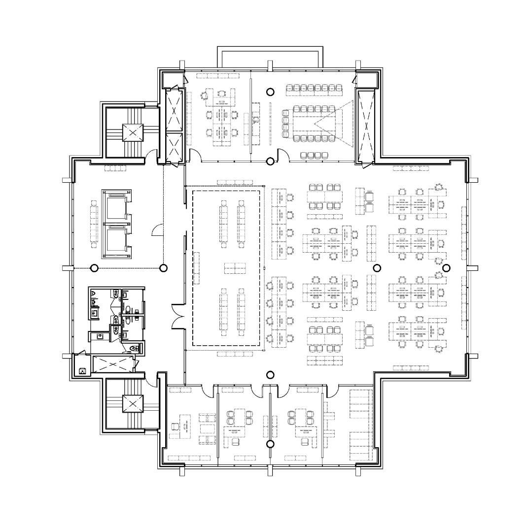
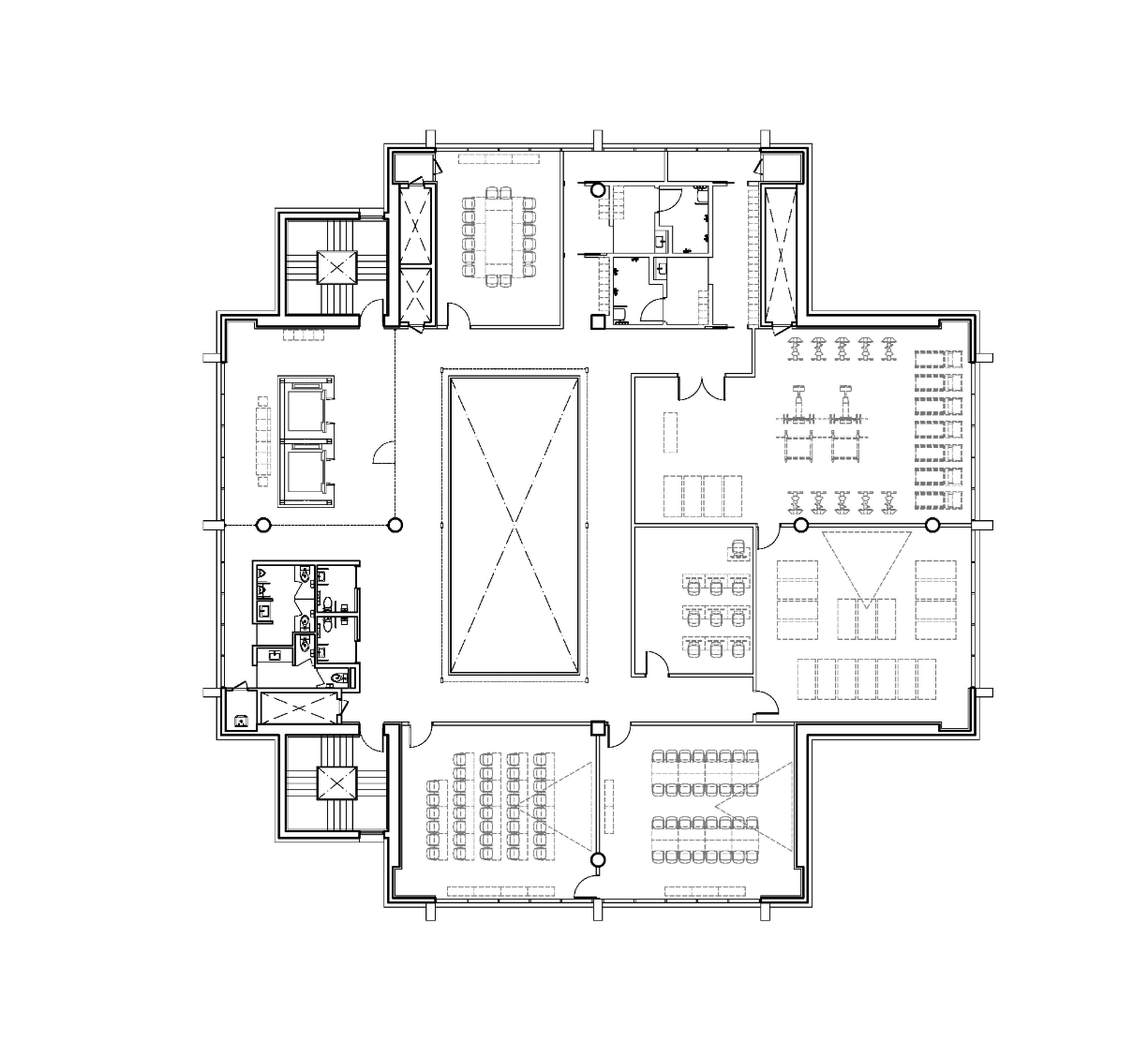
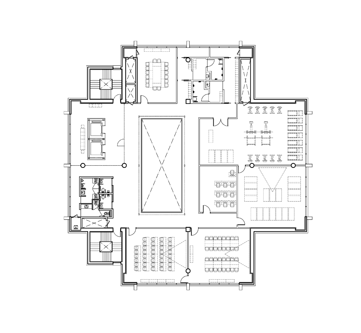
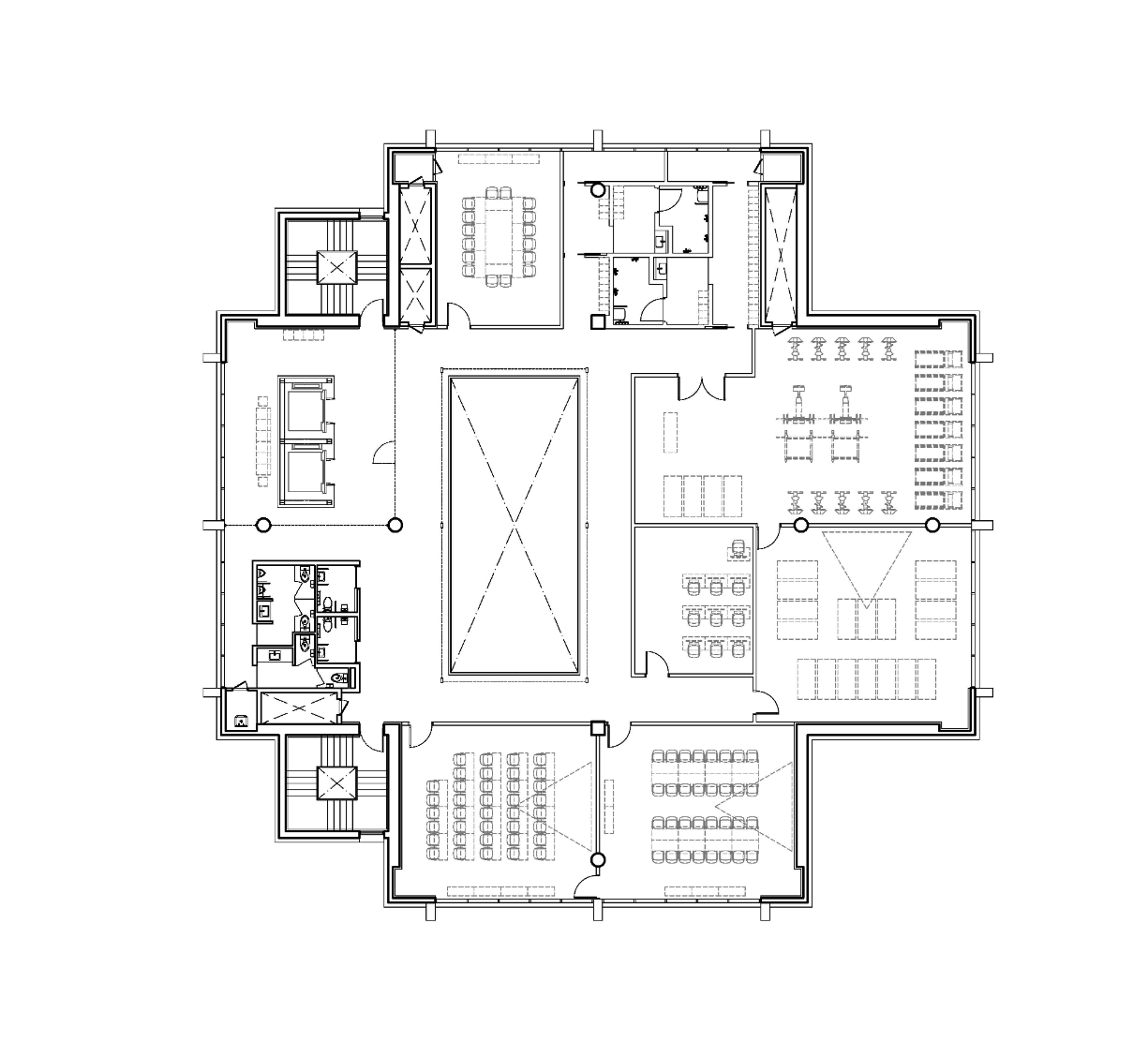
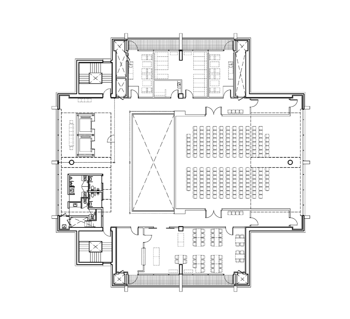
조리읍 행정복지센터는 행정복지센터의 구조물 하부에 광장을 만들고 대지 전체를 공원으로 만들어 사람들이 머물 수 있는 여유 공간을 제공한 일상 속 공공건축물이다.
행정복지센터의 광장은 건물과 지면의 분리에 의해 형성된 ‘수직적 틈’에 해당하고 원형의 산책로(지름 45m)에 의해 규정되며 지하와 연결된 썬큰 광장에 의해 확장된다. 광장은 다양한 이벤트를 수용하여 사회적, 문화적 커뮤니티가 발산되는 지역의 중심 공간이다. 십자형의 평면은 계단실을 외부 코너로 분리하고 4면은 모두 개방된 공간을 가진다. 또한 중심 보이드에 의해 수직 개방공간을 가지고, 십자형 볼트지붕의 고창은 내부 공간을 더 밝고 풍요롭게 만들어 준다. 내부 공간의 중심에 위치한 민원실의 대기홀은 3개층 높이의 개방감을 가진다. 상층부의 주민복지시설과 시각적으로 연결되어 읍 단위의 공공청사에는 할애하기 어려운 근무자와 방문자, 지역 주민 모두를 위한 로비와 같은 역할을 한다.














건축가 엠엠케이엠건축사사무소
위치 경기도 파주시 봉일천리 188-6, 9
대지면적 5,597.00 m²
건축면적 935.40
연면적 4,581.69m²
설계기간 2019. 9. - 2020. 12.
시공기간 2021. 1. - 2022. 8.
준공 2022. 8.
대표건축가 김세경, 민서홍
프로젝트건축가 김세경, 민서홍
디자인팀 임홍량, 박현정, 이현아
구조엔지니어 SDM
기계엔지니어 진원엔지니어링
전기엔지니어 진원엔지니어링
시공 한주종합건설
발주자 파주시청
사진작가 이남선
해당 프로젝트는 건축문화 2024년 11월호(Vol. 522)에 게재되었습니다.
The project was published in the November, 2024 recent projects of the magazine(Vol. 522).
November 2024 : vol. 522
Contents : COMPETITION : RECENT PROJECTAON BLDG / LKSA에이온빌딩 / (주)엘케이에스에이 건축사사무소 N22014 PJ / BSN ARCHI. 논현동 리모델링 프로젝트 / 비에스엔 건축사사무소 GGDD / CIID(Contemporary Idea fo
anc.masilwide.com
'Architecture Project > Other' 카테고리의 다른 글
| Renovation and Expansion of the Irura Town Hall (0) | 2024.12.03 |
|---|---|
| INFILM (0) | 2024.11.29 |
| 논현동 리모델링 프로젝트 (0) | 2024.11.26 |
| QIAOCHENGBEI PARK VISITOR CENTER (0) | 2024.11.25 |
| AON BLDG (0) | 2024.11.25 |
마실와이드 | 등록번호 : 서울, 아03630 | 등록일자 : 2015년 03월 11일 | 마실와이드 | 발행ㆍ편집인 : 김명규 | 청소년보호책임자 : 최지희 | 발행소 : 서울시 마포구 월드컵로8길 45-8 1층 | 발행일자 : 매일



