
영화 같은 순간의 옴니버스
인필름은 대지의 환경적인 특징에서 시작되었다.
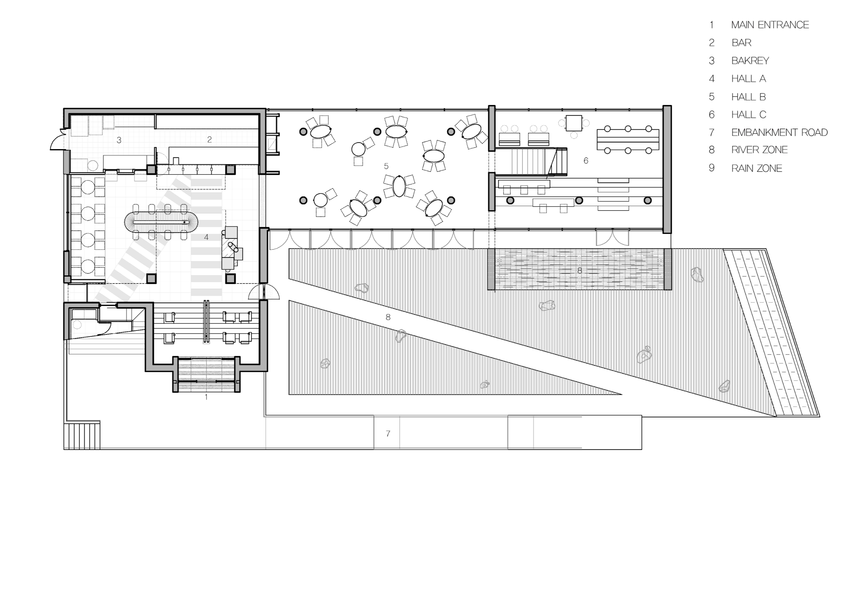
대지는 살짝 내려앉은 터에 자리 잡았으며, 금호강을 따라 기차가 지나가는 풍경이 시야에 들어온다. 강을 따라 사람과 기차가 지나가고, 해가 지며 노을이 스며드는 여유로는 풍경은 마치 영화의 한 장면처럼 펼쳐진다. 인필름의 주요 콘셉트는 하나의 공통된 주제를 중심으로 독립적인 짧은 이야기가 각각 다른 장면으로 함께 펼쳐지는 옴니버스 구성이다. 각각 금호강을 따라 지나가는 기차(랜드마크, Landmark), 뚝방길을 따라 산책하는 사람들(뚝방길, Embankment), 비파 소리를 내는 금호강(리버, River), 산새로 넘어가는 태양이 만드는 노을(선셋, Sunset)의 의미를 담은 공간이 옴니버스식으로 전개된다. 기차에서 영감을 받은 랜드마크 공간은 만남과 헤어짐이 있는 장소이자 약속을 기약하는 공간이다. 경산 지역 주민과 방문객에게 랜드마크가 되기를 바라며, 단순하면서도 기하학적인 형태의 매스로 멀리서도 한눈에 인지할 수 있게 했다.
출입구와 연결 A 매스는 높은 천장과 긴 세로 창을 통해 기차의 역사 같은 공간감을 준다. 뚝방길은 걸음을 통해 사람과 도시, 자연, 공간의 내부와 외부를 연결한 공간이다. 하나의 연속된 길처럼 느껴지도록 연출하여 자유롭게 걷고 순환하며 공간을 경험하게 한다. 리버 공간은 빗방울과 물의 표면 등 다양한 현상적 모습을 담은 사색 공간이다. 금호강의 흐르는 느낌을 대지로 끌어와 물의 움직임을 담은 수공간을 설계했다. C 매스의 낙수 공간은 날씨와 상관없이 비를 맞으며 걸을 수 있는 특별한 경험을 선사한다. 선셋 공간은 빛의 연출을 통해 낮과 밤의 아름다움을 담았다. 천창을 통해 들어오는 빛은 시간대에 따라 변화하며 벽을 향해 다양한 패턴을 만들어 내고, 서향의 통창은 자동으로 커튼이 열려 노을이 지는 순간을 극적으로 바라볼 수 있다.








건축가 공기정원
위치 경상북도 경산시 하양읍 금호강변로 690
대지면적 2,899m²
건축면적 356.38m²
연면적 434.99m²
건폐율 12.20%
용적률 15.00%
설계기간 2022. 1. - 4.
시공기간 2023. 3. - 2024. 2.
준공 2024. 3.
구조설계 (주)자의누리건축사사무소
시공 우석종합건설(주)
인테리어 공기정원
발주자 박현옥, 최연교
사진작가 박우진
해당 프로젝트는 건축문화 2024년 11월호(Vol. 522)에 게재되었습니다.
The project was published in the November, 2024 recent projects of the magazine(Vol. 522).
November 2024 : vol. 522
Contents : COMPETITION : RECENT PROJECTAON BLDG / LKSA에이온빌딩 / (주)엘케이에스에이 건축사사무소 N22014 PJ / BSN ARCHI. 논현동 리모델링 프로젝트 / 비에스엔 건축사사무소 GGDD / CIID(Contemporary Idea fo
anc.masilwide.com
'Architecture Project > Other' 카테고리의 다른 글
| 경휘재(景輝齋) / (주)지에이건축사사무소 (0) | 2024.12.16 |
|---|---|
| Renovation and Expansion of the Irura Town Hall (0) | 2024.12.03 |
| 조리읍 행정복지센터 (0) | 2024.11.27 |
| 논현동 리모델링 프로젝트 (0) | 2024.11.26 |
| QIAOCHENGBEI PARK VISITOR CENTER (0) | 2024.11.25 |
마실와이드 | 등록번호 : 서울, 아03630 | 등록일자 : 2015년 03월 11일 | 마실와이드 | 발행ㆍ편집인 : 김명규 | 청소년보호책임자 : 최지희 | 발행소 : 서울시 마포구 월드컵로8길 45-8 1층 | 발행일자 : 매일


