
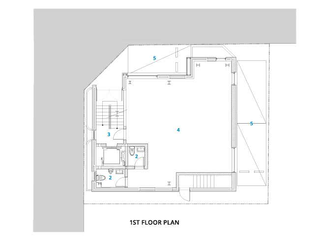
이면도로변 작은 가로에 자리 잡은 기존 건축물은 주변 환경의 콘텍스트 속에서 개성을 나타내지 않고 묻혀 있는 모습이었다. 30년 이상 주거 용도로 사용되며 내외부의 구성 요소들이 노후하였으나, 공간 자체의 의미는 퇴색하지 않았다. 이에 따라 건축가는 대수선을 통해 공간을 확장하고 재구성하여 새로운 가치를 담을 수 있는 건축물을 제안했다.
일부 노출되어 있는 지하층을 유지하며 채광과 환기가 가능한 창호 계획을 더했고, 피난을 위한 별도의 출입구와 계단을 신설했다. 도로의 경사면으로 단절된 공간에 주차장과 조경 공간을 배치하고, 출입구의 위치를 유지하여 도로와 연결된 레벨에서 출입에 불편함이 없도록 했다. 내부는 확장과 재구성을 위해 내력벽을 철거한 후 철골로 구조를 보강하고, 승강기를 신설하여 편리성을 더했다.마감재는 주변 붉은 벽돌 건물들과 조화를 위해 롱브릭타일로 선정했다. 세로쌓기 마감을 통해 수직성을 강조한 디자인을 적용했다. 옥탑은 난간벽을 높게 쌓고 세로로 긴 비율의 창호를 적용하여 전체적으로 통일성 있는 건축 어휘로 표현했다. 기존 주택의 확장 발코니를 철거하자 전체적인 입체감이 드러났다. 난간벽과 오픈 구간으로 둘러싸인 옥상은 위요감 있는 공간감을 만든다.












건축가 비에스엔 건축사사무소
위치 서울특별시 강남구 논현동
대지면적 180.90 m²
건축면적 108.43 m²
연면적 458.88m²
건폐율 59.94%
용적률 198.26%
설계기간 2022. 6. - 10.
시공기간 2022. 11. - 2023. 7.
준공 2023. 7.
대표건축가 김준석
프로젝트건축가 안유주
디자인팀 박창수, 박기정, 박호형, 오수진
구조엔지니어 (주)마루엔지니어링
기계엔지니어 (주)마루엔지니어링
전기엔지니어 (주)마루엔지니어링
시공 (주)응력C&D
발주자 (주)사과먹는공룡
사진작가 최수영
해당 프로젝트는 건축문화 2024년 11월호(Vol. 522)에 게재되었습니다.
The project was published in the November, 2024 recent projects of the magazine(Vol. 522).
November 2024 : vol. 522
Contents : COMPETITION : RECENT PROJECTAON BLDG / LKSA에이온빌딩 / (주)엘케이에스에이 건축사사무소 N22014 PJ / BSN ARCHI. 논현동 리모델링 프로젝트 / 비에스엔 건축사사무소 GGDD / CIID(Contemporary Idea fo
anc.masilwide.com
'Architecture Project > Other' 카테고리의 다른 글
| INFILM (0) | 2024.11.29 |
|---|---|
| 조리읍 행정복지센터 (0) | 2024.11.27 |
| QIAOCHENGBEI PARK VISITOR CENTER (0) | 2024.11.25 |
| AON BLDG (0) | 2024.11.25 |
| Healing Hills Villa (0) | 2024.11.22 |
마실와이드 | 등록번호 : 서울, 아03630 | 등록일자 : 2015년 03월 11일 | 마실와이드 | 발행ㆍ편집인 : 김명규 | 청소년보호책임자 : 최지희 | 발행소 : 서울시 마포구 월드컵로8길 45-8 1층 | 발행일자 : 매일



