
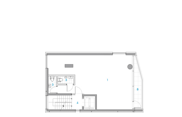
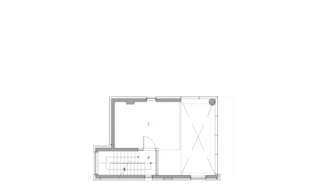
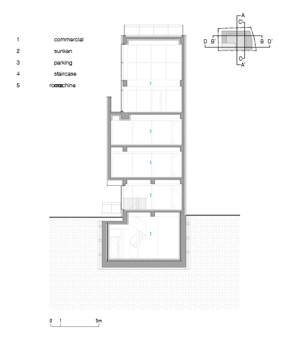
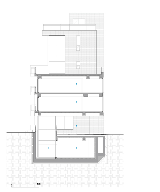
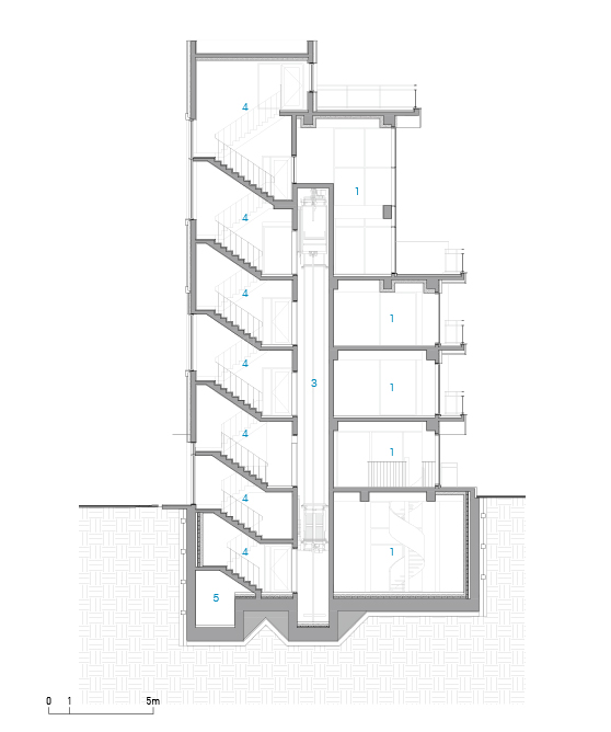
대지는 경의선 숲길의 말단부에 위치하며, 전면의 20m 도로와 후면의 공원은 대비되는 콘텍스트를 갖고 있었다. 도로 측으로는 개구부를 적정량 이하로 구성하여 묵직한 양감을 부여하고, 공원 측으로는 창의 면적을 최대화하여 숲과 시지각적 교감을 만들고자 하였다. 건축물의 석재 가로 메지는 50mm마다 커팅하여 질감의 변화를 주고, 창대석과 인방은 혹두기 처리하여 묵직한 개구부의 매듭을 만들었다. 전면의 인접한 대지는 충분한 거리가 있어 일조권 제약을 받지 않아 자유롭게 공간을 구성할 수 있었다. 근린생활시설의 용도에 따라 다양한 하부 프로그램이 수용될 수 있도록 전용공간을 대공간으로 구성하였고, 각층에 외부 공간을 구성하여 자연과 자연스러운 교감의 기회를 만들었다. 경의선 숲길의 자연과 깊은 교감을 나누고 공간의 가치를 누릴 수 있을 것으로 기대한다.














건축가 LKSA
위치 서울특별시 마포구 연남동 361-45
대지면적 166.00m²
건축면적 99.56m²
연면적 423.12m²
건폐율 59.98%
용적률 199.45%
설계기간 2022. 1. -7.
시공기간 2023. 2. 2024. 3.
준공 2024. 3.
대표건축가 이근식
디자인팀 이근식, 김동현, 문태석
구조엔지니어 (주)라임
기계엔지니어 (주)익스플래니트
전기엔지니어 (주)익스플래니트
시공 (주)피에스엔지니어링
발주자 주식회사 에이온프로퍼티
사진작가 구의진
해당 프로젝트는 건축문화 2024년 11월호(Vol. 522)에 게재되었습니다.
The project was published in the November, 2024 recent projects of the magazine(Vol. 522).
November 2024 : vol. 522
Contents : COMPETITION : RECENT PROJECTAON BLDG / LKSA에이온빌딩 / (주)엘케이에이 건축사사무소 N22014 PJ / BSN ARCHI. 논현동 리모델링 프로젝트 / 비에스엔 건축사사무소 GGDD / CIID(Contemporary Idea for Int
anc.masilwide.com
'Architecture Project > Other' 카테고리의 다른 글
| 논현동 리모델링 프로젝트 (0) | 2024.11.26 |
|---|---|
| QIAOCHENGBEI PARK VISITOR CENTER (0) | 2024.11.25 |
| Healing Hills Villa (0) | 2024.11.22 |
| BMW Foshan Baochuang Center (0) | 2024.11.21 |
| Pavillon Jardins (0) | 2024.11.18 |
마실와이드 | 등록번호 : 서울, 아03630 | 등록일자 : 2015년 03월 11일 | 마실와이드 | 발행ㆍ편집인 : 김명규 | 청소년보호책임자 : 최지희 | 발행소 : 서울시 마포구 월드컵로8길 45-8 1층 | 발행일자 : 매일



