
BMW 포산 바오촹 센터는 그린 스타(Green Star) ‘BEACON’ 인증과 리드(LEED) ‘BD+C’ 골드 인증을 받은 친환경 건축물이다. 중국 남부의 고온 기후와 도시 열섬 효과에 대처하기 위해 건축가는 개방형 층고와 냉각 통로를 적용하여 자연풍을 최대한 활용했다. 두 건물의 커튼 월은 안쪽으로 건축물 외벽에서 안쪽으로 더 들어와 있으며 캔틸레버 구조의 아케이드를 형성한다. 1층의 아케이드는 높은 회랑의 통로를 형성하여 차양 효과와 쇼케이스, 창고 등 다기능 공간을 더했다. 아케이드의 차양 통로는 아열대 기후에
대응 가능하도록 설계된 것이다. 실내 공간이 과열되는 것을 막아주며, 방문자들은 이곳에서 햇빛, 열, 바람, 비를 피할 수 있다.
2층의 통로는 넓은 테라스로 만들어졌는데, 외벽의 메시가 햇빛을 일부 차단하고 바람이 잘 통하게 해준다. 남동측의 차량 진출입 공간의 아케이드는 타공 알루미늄 판으로 설계하여 열 상승 효과를 최소화했다. 이외에도 모듈형 워크 스테이션, 분리형 칸막이가 설치된 사무 공간, 자동 쉐이딩 시스템, 지능형 조명 제어를 통한 에너지 제어 등 지속 가능성을 고려한 요소가 설계에 반영되었다.
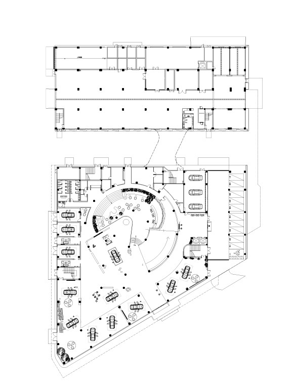
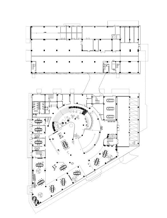
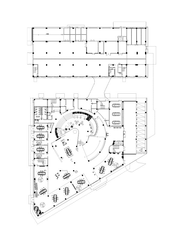
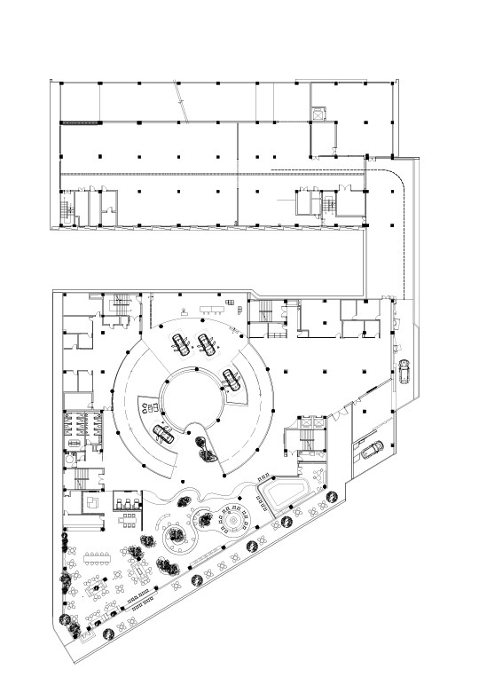
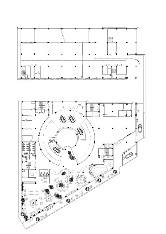
두 개의 대지에 지어진 건물은 회랑을 중심으로 하나의 볼륨으로 형성되었다. 남측 건물은 자동차 전시장, 고객 응대 공간, 카페, 사무실, 주차장 등 업무시설과 서비스 공간으로, 북측 건물은 차량 작업 공간으로 구성되었다. 사용자 중심의 다기능적인 쇼룸이자 사회적인 상호작용을 지지하는 업무시설을 형성하기 위해 통합적인 동선을 계획하였고, 차량을 통해 건물의 내외부 모든 층과 공간, 최상층까지 자유롭고 기능적으로 접근할 수 있다.
두 건물 사이는 연결 통로를 통해 이동할 수 있으며, 북측 건물의 차량 작업 공간부터 최상층까지 자동차 주행로가 마련되어 있어 시운전이 가능하다. 실내는 밝고 따뜻한 분위기로 조성하여 편안하고 자유로운 시각 경험을 제공한다. 방문객은 미술관처럼 열린 전시 공간을 체험할 수 있다. 실내는 픽셀 모듈화를 콘셉트로 하여 확대한 픽셀을 다양한 모양으로 쌓아 전시 차량과 매칭했다. 중앙의 아트리움은 채광창을 통해 자연광을 유입하며, 건물 외부에서 내부로 바람의 순환을 일으켜 건물 내부의 미시기후를 효과적으로 조절한다.






건축가 ARCHIHOPE Ltd.
위치 China, Guangdong, Foshan, Chancheng, Jihua West Road
연면적 16,535.65m2
준공 2024. 3. 30.
대표건축가 Hihope Zhu
디자인팀 Jane Fang, Xu Chang, He Mengjun
인테리어 Shenzhen SIAD CO., LTD.
사진작가 Vincent Wu
해당 프로젝트는 건축문화 2024년 11월호(Vol. 522)에 게재되었습니다.
The project was published in the November, 2024 recent projects of the magazine(Vol. 522).
November 2024 : vol. 522
Contents : COMPETITION : RECENT PROJECTAON BLDG / LKSA에이온빌딩 / (주)엘케이에이 건축사사무소 N22014 PJ / BSN ARCHI. 논현동 리모델링 프로젝트 / 비에스엔 건축사사무소 GGDD / CIID(Contemporary Idea for Int
anc.masilwide.com
'Architecture Project > Other' 카테고리의 다른 글
| AON BLDG (0) | 2024.11.25 |
|---|---|
| Healing Hills Villa (0) | 2024.11.22 |
| Pavillon Jardins (0) | 2024.11.18 |
| THE GERLAND AQUATIC AND SPORTS CENTER (0) | 2024.11.15 |
| Estadio de Béisbol “Manuel Vargas Izquierdo” (0) | 2024.11.13 |
마실와이드 | 등록번호 : 서울, 아03630 | 등록일자 : 2015년 03월 11일 | 마실와이드 | 발행ㆍ편집인 : 김명규 | 청소년보호책임자 : 최지희 | 발행소 : 서울시 마포구 월드컵로8길 45-8 1층 | 발행일자 : 매일



