
With the aim of revitalizing public life in Jalpa de Méndez, Tabasco, an urban master plan was designed for SEDATU, renewing the city's most representative public spaces, including the High-Performance Sports Complex and the Baseball Stadium Manuel Vargas Izquierdo. A covered corridor connects the complex, ensuring safe pedestrian transit between these vibrant and inclusive spaces, which offer a variety of sports and recreational activities.
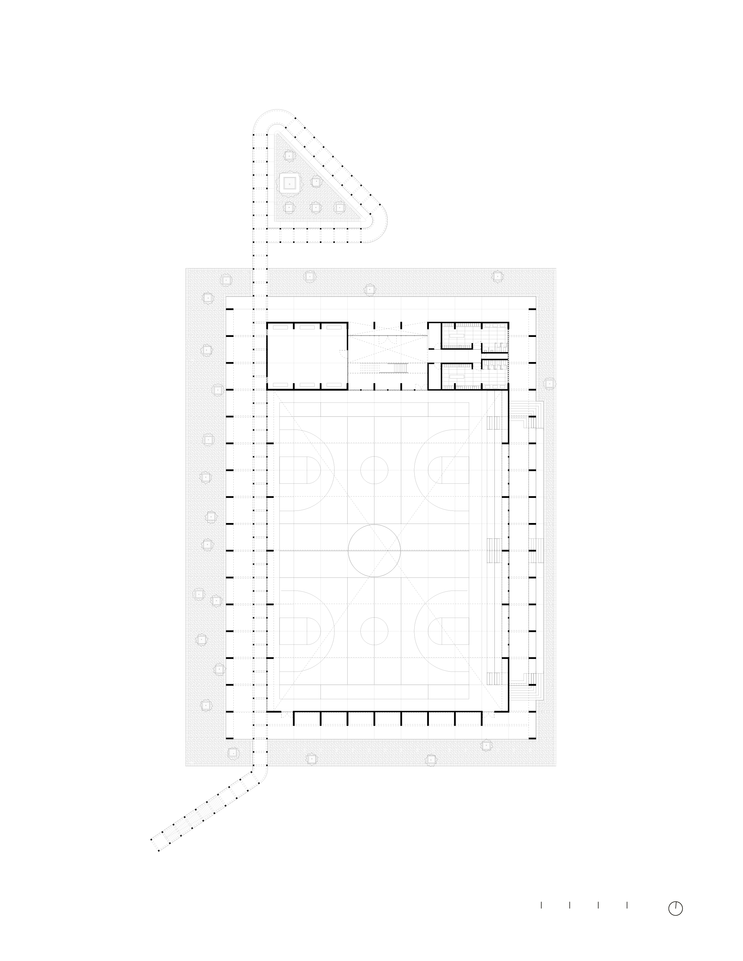
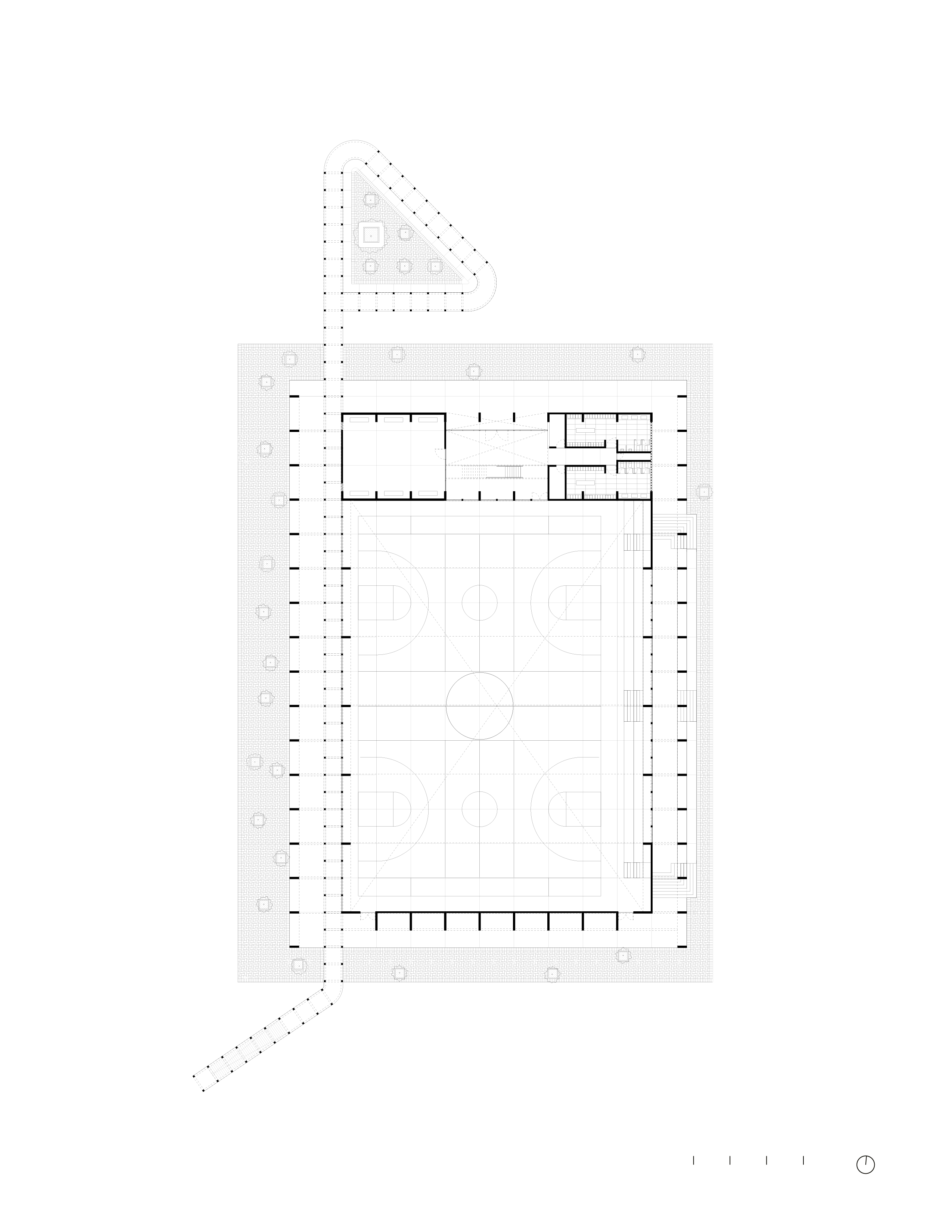
In the Sports Complex, the existing courts and service areas were remodeled, and a new building was designed to house basketball and volleyball courts, as well as rooms for practicing karate and judo. Additionally, a skate park and a children's play area were built in the outdoor space.
Regarding the structural solution applied in the Sports Complex, a consistent and functional structure was sought. Exposed concrete brackets were chosen to support a steel truss structure. This structure creates shaded areas and open spaces, allowing users to participate in activities comfortably, regardless of the weather.
The Baseball Stadium Manuel Vargas Izquierdo consists of ten exposed concrete umbrellas, supported both visually and structurally by a series of tubular tensioners. These umbrellas provide shade to the stadium stands, where side ramps were designed to offer universal access to the complex.
The complex is conceived so that the project itself is the structure, made of orange-toned concrete, evoking the color of the regional quarry stone present in the balustrade of the main arcade in the historic center of Jalpa de Méndez. This choice also responds to the region's climate, reflecting heat and preventing moisture accumulation.
Additionally, in terms of sustainability, the complex features natural cross-ventilation, as well as rainwater collection and harvesting systems.









건축가 CCA | Bernardo Quinzaños
위치 Tabasco, Jálpa de Mendez
연면적 4,744m²
준공 2023
대표건축가 Bernardo Quinzaños
디자인팀 Andrés Suárez, André Torres, Miguel Izaguirre, Javier Castillo, Carlos Cruz, Gabriela Horta, Florencio de Diego, Lorenza Hernández, Mara Calderón de la Barca, Norma Mendoza, Jair Rodríguez, Santiago Vélez, Begoña Manzano, Fernanda Ventura, Victor Zúñiga
시공 CLAVE. Luis Trinidad, Eber Castellanos Ramos, Erick Álvarez Aguilar, Tirso Cuesta Guillen. TRASGO. José Fernando Orozco González, Gerardo González Gutiérrez, Eber Castellanos Ramos
건축주 SEDATU, Municipio de Jalpa de Méndez
사진작가 Jaime Navarro
'Architecture Project > Other' 카테고리의 다른 글
| Pavillon Jardins (0) | 2024.11.18 |
|---|---|
| THE GERLAND AQUATIC AND SPORTS CENTER (0) | 2024.11.15 |
| Paddington Square (0) | 2024.11.12 |
| Mission Rock Building B (0) | 2024.11.11 |
| Wraxall Yard (0) | 2024.11.08 |
마실와이드 | 등록번호 : 서울, 아03630 | 등록일자 : 2015년 03월 11일 | 마실와이드 | 발행ㆍ편집인 : 김명규 | 청소년보호책임자 : 최지희 | 발행소 : 서울시 마포구 월드컵로8길 45-8 1층 | 발행일자 : 매일



