
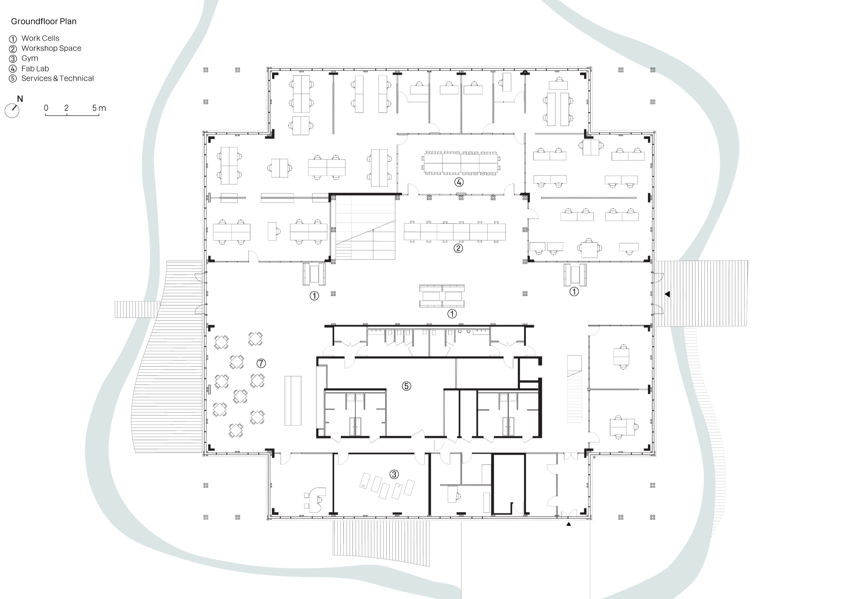
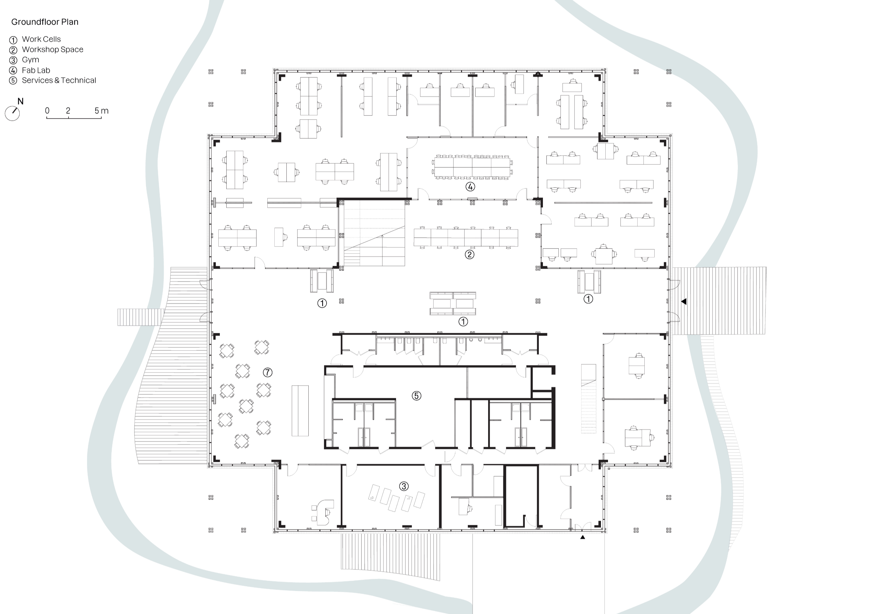
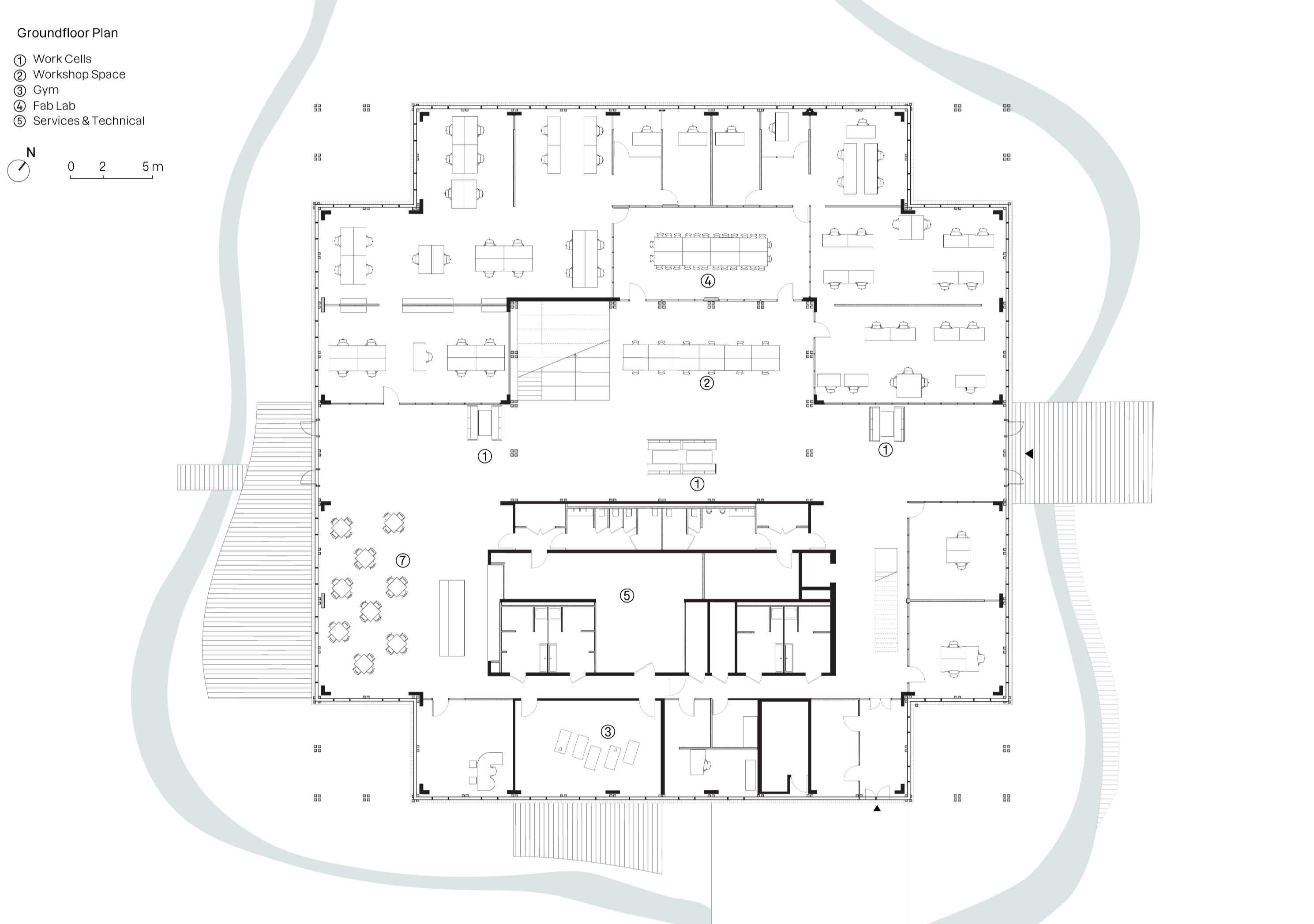
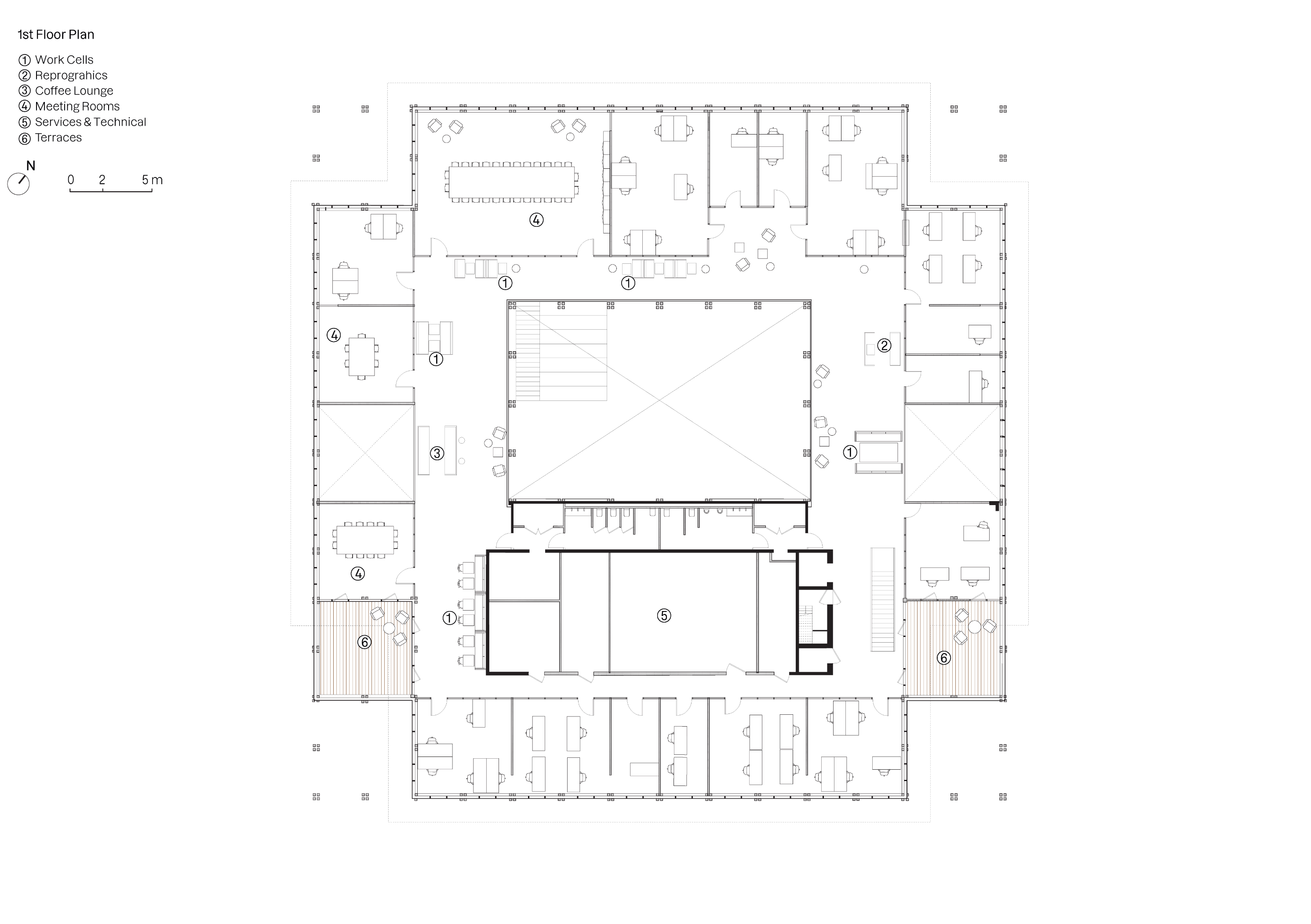
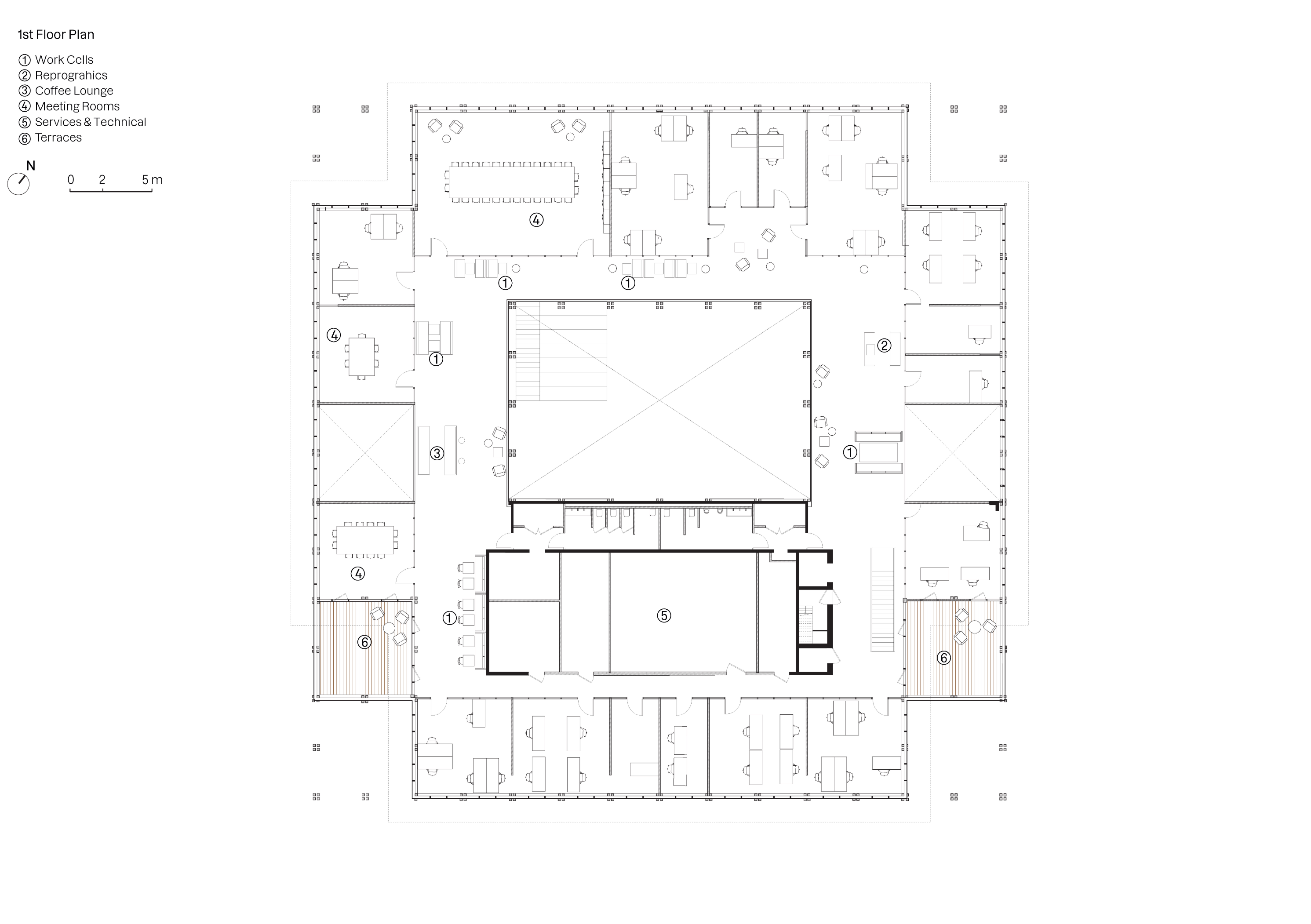
파빌리온 자딘스는 라빌레트 공원(Parc de la Villette)의 공원과 문화센터를 운영하는 팀을 위한 새로운 거점으로 지어진 베이스 캠프다. 시테 자르댕(Cité Jardin)에 입주한 9개의 조립식 건물이었던 기존 건축물이 노후화됨에 따라 개선이 필요했다. 새로운 거점시설은 건축가 베르나르 추미(Bernard Tschumi)가 설계한 라빌레트 공원과 ‘Folies’ 프로젝트의 마스터 플랜을 따르며, 효율적인 작업 공간을 제시하기 위해 총 155개의 작업대를 배치할 수 있도록 설계했다. 주변의 녹지 공간은 시민들을 위한 공원으로 복원하며, 공원의 자연 유산과 생물 다양성을 보존하였다. 파빌리온 자딘스는 강도와 관성을 위한 콘크리트 구조와 중량과 탄소 영향을 낮춘 목구조가 맞물리는 구조가 특징이다. 12m 폭의 건축물은 충분한 실내 공간을 확보한다.


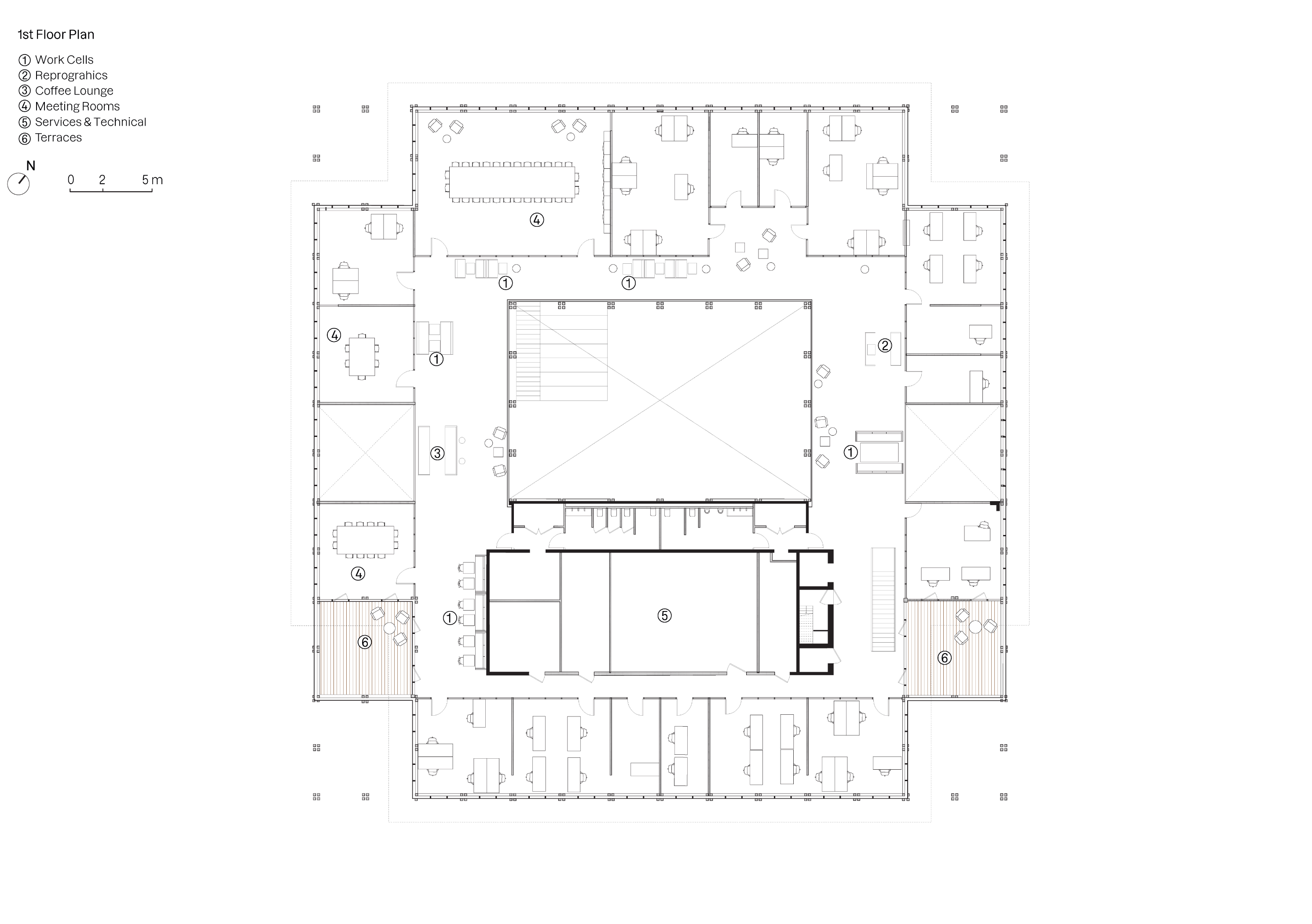
기하학적이고 가변적인 건축물은 구조를 통해 자연광이 유입되며 다양한 프로그램에 따라 조정 가능하다. 중앙 아트리움을 중심으로 두 개의 층으로 구성되어 있으며, 계단형 홀은 프레젠테이션, 컨퍼런스 등 다양한 행사를 지원한다. 내부에는 맞춤형의 공간(Micro - architectures)이 배치되어 회의실, 복사실, 커피 라운지의 역할을 한다. 건축가는 예비 사용자들과 긴밀히 협력하여 설계를 진행하였는데, 구조적인 가구를 자유롭게 구성하고 라빌레트 팀에서 제작한 가구를 설치하였다.








건축가 Atelier du Pont
위치 France, Paris
연면적 3,000m² (5,000m² of green space restored)
준공 2024
대표건축가 Anne-Cécile Comar, Philippe Croisier
사진작가 Charly Broyez, Fred Delangle, Vincent Leroux
해당 프로젝트는 건축문화 2024년 11월호(Vol. 522)에 게재되었습니다.
The project was published in the November, 2024 recent projects of the magazine(Vol. 522).
November 2024 : vol. 522
Contents : COMPETITION : RECENT PROJECTAON BLDG / LKSA에이온빌딩 / (주)엘케이에이 건축사사무소 N22014 PJ / BSN ARCHI. 논현동 리모델링 프로젝트 / 비에스엔 건축사사무소 GGDD / CIID(Contemporary Idea for Int
anc.masilwide.com
'Architecture Project > Other' 카테고리의 다른 글
| Healing Hills Villa (0) | 2024.11.22 |
|---|---|
| BMW Foshan Baochuang Center (0) | 2024.11.21 |
| THE GERLAND AQUATIC AND SPORTS CENTER (0) | 2024.11.15 |
| Estadio de Béisbol “Manuel Vargas Izquierdo” (0) | 2024.11.13 |
| Paddington Square (0) | 2024.11.12 |
마실와이드 | 등록번호 : 서울, 아03630 | 등록일자 : 2015년 03월 11일 | 마실와이드 | 발행ㆍ편집인 : 김명규 | 청소년보호책임자 : 최지희 | 발행소 : 서울시 마포구 월드컵로8길 45-8 1층 | 발행일자 : 매일



