
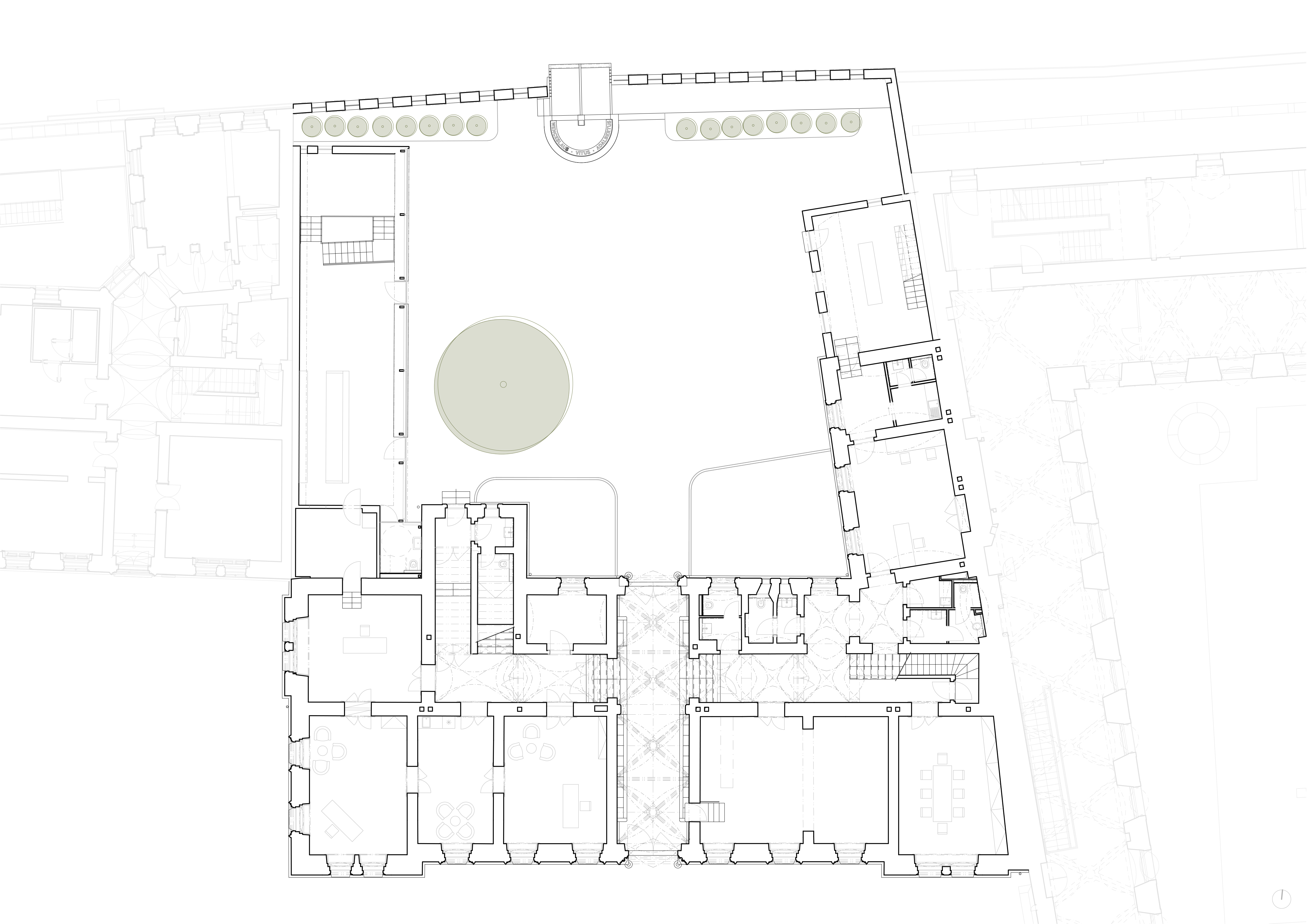
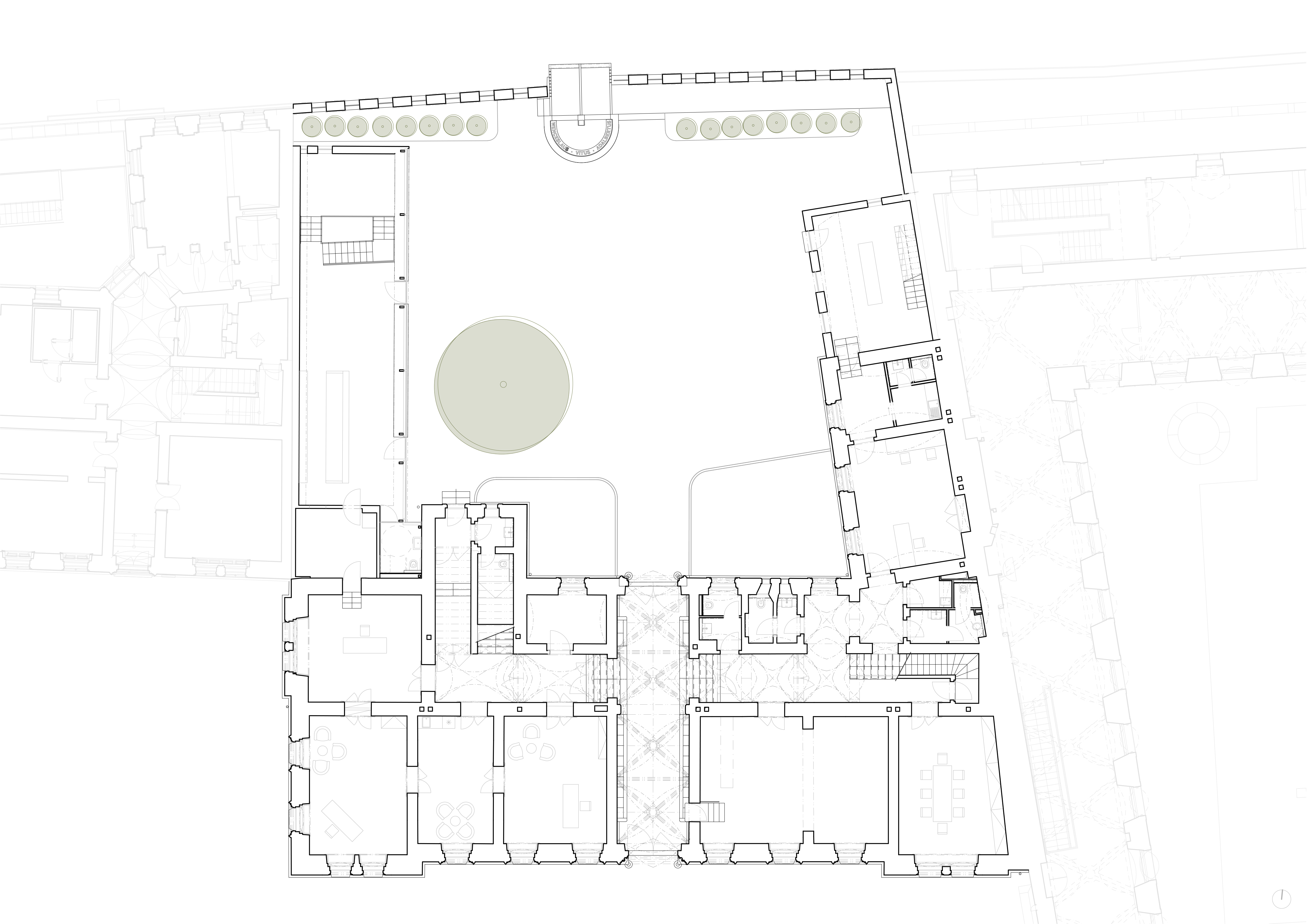
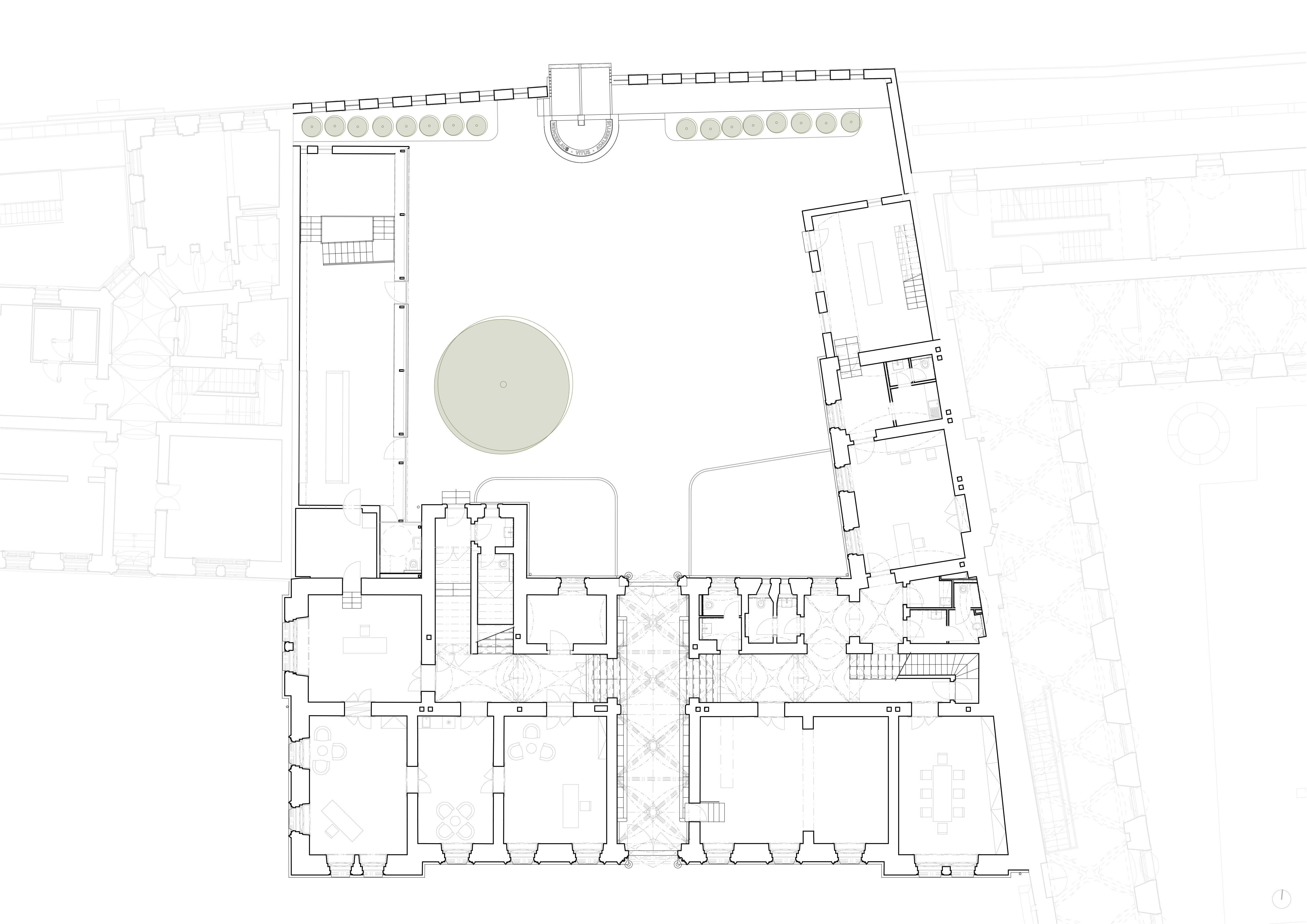
뉴 프로보스트리는 1877년에 건립된 역사적인 건물로, 신고딕 양식으로 세워졌으며 프라하 성의 중심부에 위치한 성 비투스 대성당 옆에 있습니다. 원래는 프로보스트(주교)의 거주지로 계획되었으나, 1950년대 초에 압수되어 그 이후로 대부분 방치되었습니다. 공산주의 시대에는 안뜰과 관련된 부속 건물들이 완전히 파괴되었고, 주 건물은 건설 노동자들의 막사로 사용되었습니다. 2016년, 뉴 프로보스트리는 반환법에 따라 교회에 반환되었습니다.
새로 증축하는 건물은 예전의 부속 건물이 있던 자리에 두 개 새로 지어졌습니다. 하나는 카페로, 다른 하나는 다목적 상업 공간으로 사용됩니다. 이 확장 건물들은 유리 입면재료를 사용해 채광이 잘 되게 했습니다. 서쪽 확장은 보다 개방적이고 수직적인 형태로, 식음료 서비스용으로 설계되었습니다. 동쪽 확장은 보다 컴팩트하고 폐쇄적인 형태로 다양한 용도로 사용될 수 있도록 디자인되었습니다. 새 건물에서 사용된 주요 재료는 Vyhnánov 채석장에서 가져온 사암 외장재, 파티네된 구리로 만든 세부 요소들, 섬세하게 조화를 이루는 타일과 나무 바닥, 그리고 미세한 강철 프레임을 가진 유리 외관이 특징입니다.
안뜰 북쪽 가장자리는 전망대와 그라니트 및 브론즈로 제작된 분수로 더욱 풍성해졌습니다. 재건축의 주요 목적은 역사적인 건물을 보존하고 건물의 내부와 외부를 복원하는 것이었습니다. 외관은 19세기 말의 모습을 재현할 수 있도록 정밀하게 복원되었습니다. 내부는 역사적 상태로 부분적으로 복원되었으며, 현대의 기준에 맞게 리모델링 되어 현대적 요소와 원래의 특성이 조화롭게 결합된 모습을 보여줍니다. 현재 이 건물은 원래의 목적을 되찾아 교회 기관의 행정 중심지로 사용되고 있으며 특히 성 비투스 대성당의 대주교 회의가 이곳에서 운영되고 있습니다.








건축가 스튜디오 아흐트 (Studio acht)
위치 체코, 프라구에 1, 흐라트츠아니 34
대지면적 1,249㎡
건축면적 589㎡
설계기간 2020 - 2023
준공 2023
디자인팀 Barbora Janu, Anna Halaburtová, Lukáš Dejdar
구조엔지니어 Jan Zima
발주자 The Metropolitan Chapter of St. Vitus in Prague
사진작가 Tomáš Slavík
'Architecture Project > Other' 카테고리의 다른 글
| 도남동 근생주택 / 오피스툴 건축사사무소(손종남) + 오성헌(광주대학교) (0) | 2025.01.13 |
|---|---|
| 퇴계동 행정복지센터 / 장인수건축사사무소 + 심미건축사사무소 (0) | 2025.01.07 |
| 식스센스 레지던스 더 포레스티아스 / Foster + Partners (0) | 2024.12.18 |
| 경휘재(景輝齋) / (주)지에이건축사사무소 (0) | 2024.12.16 |
| Renovation and Expansion of the Irura Town Hall (0) | 2024.12.03 |
마실와이드 | 등록번호 : 서울, 아03630 | 등록일자 : 2015년 03월 11일 | 마실와이드 | 발행ㆍ편집인 : 김명규 | 청소년보호책임자 : 최지희 | 발행소 : 서울시 마포구 월드컵로8길 45-8 1층 | 발행일자 : 매일



