
도남동 근생주택은 제주 도심지의 동서를 연결하는 주요 축인 연북로 가운데 세워졌다. 건축가는 지방 소도시의 콘텍스트를 고려하여 최대의 임대 공간을 확보하면서도 연북로의 도시 경관과 조화로운 건축물로 설계했다. 건물은 연북로 가로 경관에 따라 축선에 맞춘 장방형 형태이다. 제주시라는 작은 규모의 도시의 근린생활시설들은 낮은 건물 밀도로 인해 건축물마다 특성이 도드라진다.


도남동 근생주택은 이러한 환경에서 가로 경관을 새롭게 만들어주는 시작점의 의미를 가진다. 건축물의 기둥의 배열이 입면에 드러나 그 자체로 입면이 되며, 이 기둥 입면은 연북로 가로 공간의 분위기를 바꾼다. 입면 디자인을 위해 건축물의 주 진입부는 후면에 있다. 이러한 건축가의 설계의도는 자연녹지지역 내 세워진 다른 근린생활시설과 차이점을 만든다.

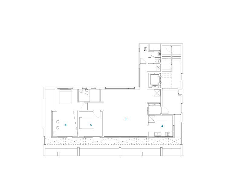
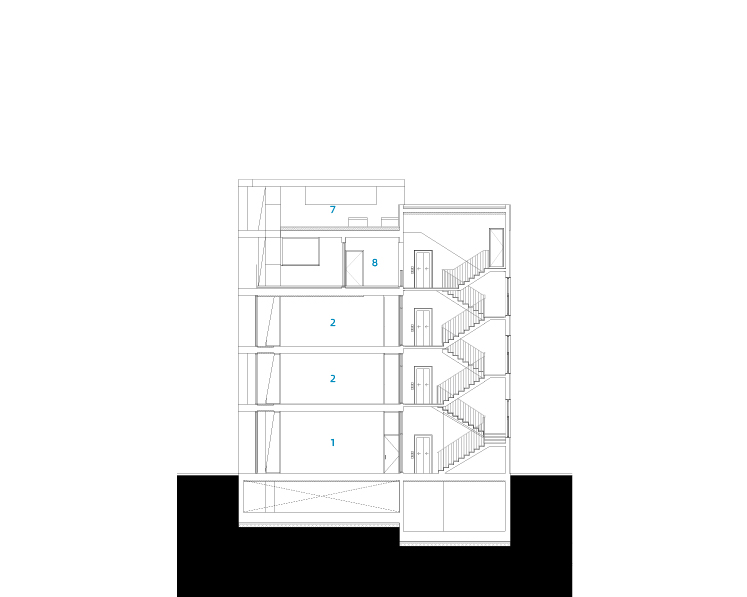
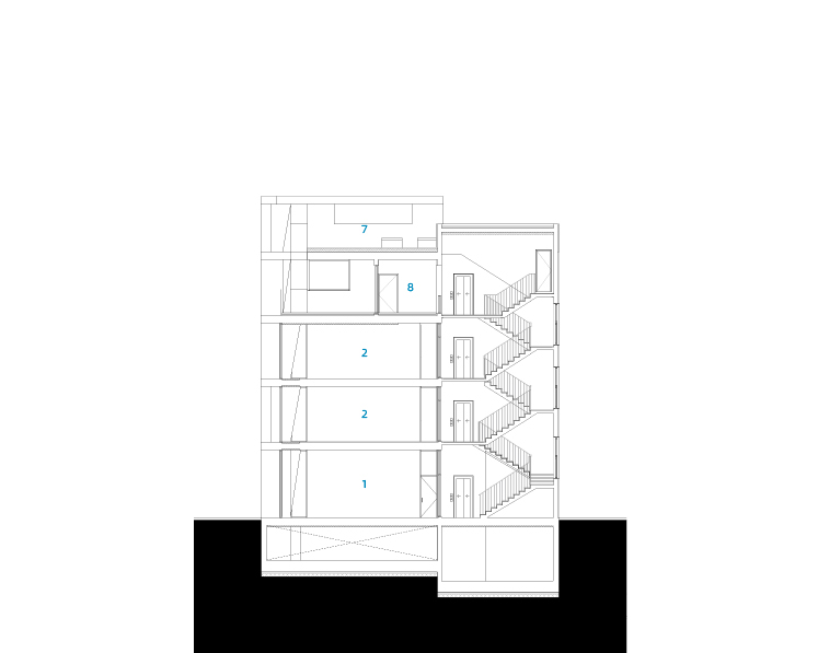
도남동 근생주택의 지상 1층부터 3층까지는 임대 공간이며, 4층은 주거 공간이다. 입면에서부터 드러나는 기둥과 건축물의 구조는 무량판 구조로 만들어졌으며, 무량판 구조는 공간의 높은 층고를 가능하게 했다. 발코니와 내부 공간에서는 탁 트인 제주의 조망을 볼 수 있다.







위치 제주특별자치도 제주시 연북로 437
용도 근린생활시설, 단독주택
대지면적 892.00㎡
건축면적 178.23 ㎡
연면적 679.11 ㎡
규모 지상 4층
건폐율 19.98%
용적률 76.13%
설계기간 2019. 1. - 2020. 9.
시공기간 2020. 10. - 2023. 6.
대표건축가 오피스툴 건축사사무소(손종남), 오성헌(광주대학교)
준공 2023. 6.
구조엔지니어 SDM구조기술사사무소
기계엔지니어 (주)한성이앤지
발주자 오맹기, 강계순
사진작가 윤태준(광주대학교)
해당 프로젝트는 건축문화 2025년 1월호(Vol. 524)에 게재되었습니다.
The project was published in the November, 2024 recent projects of the magazine(Vol. 524).
January 2025 : vol. 524
Contents : RECORDS : COMPETITION : BOOKS : RECENT PROJECT Toegye-dong Community Center / ZANGINSOO.ARCHITECTS + SIMMI ARCHITECTURE & ENGINEERING퇴계동 행정복지센터 / 장인수건축사사무소 + 심미건축사사무소 Kanagawa De
anc.masilwide.com
'Architecture Project > Other' 카테고리의 다른 글
| 비울수록 널리 퍼지는 것은 / 아틀리에 오이 (0) | 2025.01.15 |
|---|---|
| 마음의 불을 켜고, 기리며 / 미올크 아르히텍티 (0) | 2025.01.14 |
| 퇴계동 행정복지센터 / 장인수건축사사무소 + 심미건축사사무소 (0) | 2025.01.07 |
| 과거와 현재가 동시에 걷는 곳 / 스튜디오 아흐트 (0) | 2024.12.31 |
| 식스센스 레지던스 더 포레스티아스 / Foster + Partners (0) | 2024.12.18 |
마실와이드 | 등록번호 : 서울, 아03630 | 등록일자 : 2015년 03월 11일 | 마실와이드 | 발행ㆍ편집인 : 김명규 | 청소년보호책임자 : 최지희 | 발행소 : 서울시 마포구 월드컵로8길 45-8 1층 | 발행일자 : 매일



