
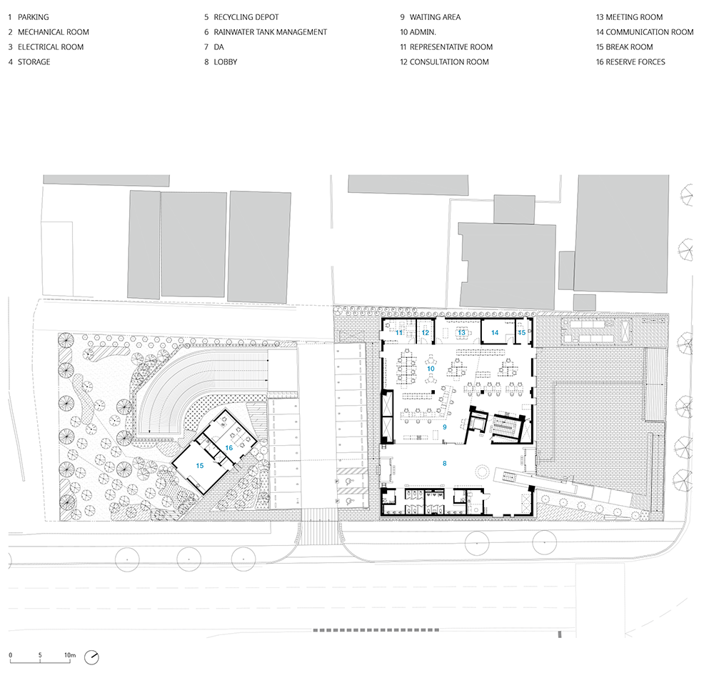
춘천시 퇴계동 행정복지센터는 춘천 진입도로와 남춘천역 인근에 있어 도시의 첫인상을 형성하는 중요한 거점으로 자리 잡고 있다. 남서 측은 공원과 접해 있어 도시와 공원을 연결하는 매개 공간의 역할을 한다. 남춘로를 마주한 북동 측에는 다양한 지역 행사를 수용할 수 있는 광장이 있어 도시와 연장선을 이룬다. 반면, 공원과 접한 남서 측에는 주민들의 휴식을 위한 녹지가 공원의 연장을 이룬다.

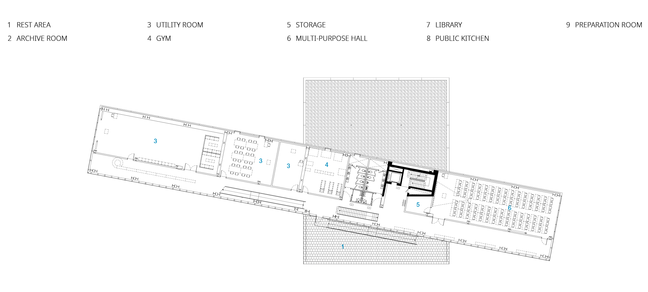
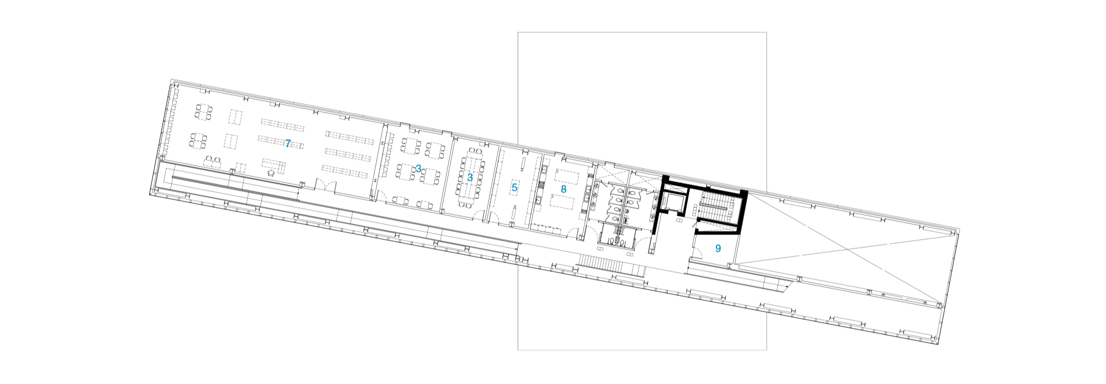
행정복지센터의 본 건물은 지렛대와 같은 기하학적 구성을 통해 지면 점유 면적을 최소화하면서 광장과 녹지 사이의 균형을 중재하는 형태로 설계됐다. 캔틸레버로 돌출된 건물은 도시와 공원을 조망할 수 있는 공간을 제공하며, 하부 공간을 자유롭게 활용할 수 있게 한다. 철골 트러스 구조는 이러한 거대 캔틸레버 형태를 가능하게 했다. 남동 측, 경춘선 방향의 입면은 반사 유리가 낮에는 도시의 풍경을 담아내는 캔버스 역할을, 밤에는 내부에서 이루어지는 다양한 문화 행위를 외부에 드러내는 스크린 역할을 한다. 또한, 녹지와 연결된 외부 경사로, 광장과 연결된 관통형 계단, 내부의 아트리움을 가로지르는 경사로가 곳곳에 배치되어 있다. 이러한 동선 구성은 주민들에게 도시를 새로운 시점에서 경험할 수 있는 기회를 제공한다. 단순한 기하학적 구성으로 설계된 퇴계동 행정복지센터는 대상지와 주변 환경의 새로운 가능성을 재발견하고 발전시키는 전환점이 되고 있다. 특히 주변과 연결되는 관계를 통해 대지와 건축의 공공성을 강화한다.






위치 강원특별자치도 춘천시 퇴계로 1234
용도 공공업무시설
대지면적 3,341.00㎡
건축면적 1,604.32㎡
연면적 4,988.53㎡
규모 지하 1층, 지상 4층
건폐율 48.02%
용적률 80.48%
설계기간 2020. 6. - 2021. 5.
시공기간 2021. 6. - 2024. 7.
준공 2024. 7.
대표건축가 장인수
지역건축가 심순보
디자인팀 이재웅
구조엔지니어 원구조
기계엔지니어 오성이앤씨
전기엔지니어 오성이앤씨
통신엔지니어 오성이앤씨
소방엔지니어 오성이앤씨
토목엔지니어 나우엔지니어링
조경 하랑디자인
시공 더원종합건설
발주자 춘천시
사진작가 박우진
해당 프로젝트는 건축문화 2025년 1월호(Vol. 524)에 게재되었습니다.
The project was published in the November, 2024 recent projects of the magazine(Vol. 524).
January 2025 : vol. 524
Contents : RECORDS : COMPETITION : BOOKS : RECENT PROJECT Toegye-dong Community Center / ZANGINSOO.ARCHITECTS + SIMMI ARCHITECTURE & ENGINEERING퇴계동 행정복지센터 / 장인수건축사사무소 + 심미건축사사무소 Kanagawa De
anc.masilwide.com
'Architecture Project > Other' 카테고리의 다른 글
| 마음의 불을 켜고, 기리며 / 미올크 아르히텍티 (0) | 2025.01.14 |
|---|---|
| 도남동 근생주택 / 오피스툴 건축사사무소(손종남) + 오성헌(광주대학교) (0) | 2025.01.13 |
| 과거와 현재가 동시에 걷는 곳 / 스튜디오 아흐트 (0) | 2024.12.31 |
| 식스센스 레지던스 더 포레스티아스 / Foster + Partners (0) | 2024.12.18 |
| 경휘재(景輝齋) / (주)지에이건축사사무소 (0) | 2024.12.16 |
마실와이드 | 등록번호 : 서울, 아03630 | 등록일자 : 2015년 03월 11일 | 마실와이드 | 발행ㆍ편집인 : 김명규 | 청소년보호책임자 : 최지희 | 발행소 : 서울시 마포구 월드컵로8길 45-8 1층 | 발행일자 : 매일



