
간결하게, 그러나 다채롭게_Mighty, but Variety
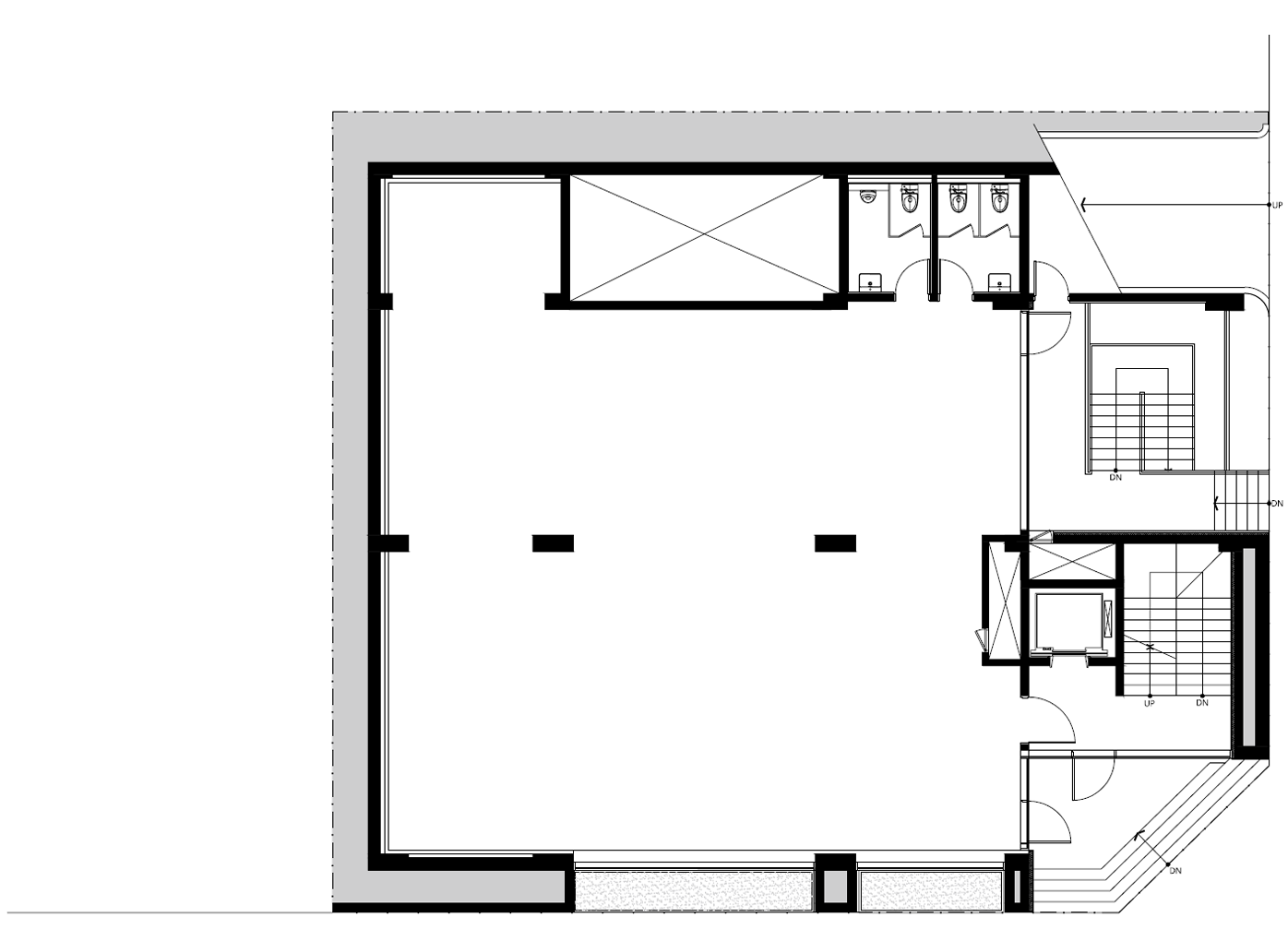
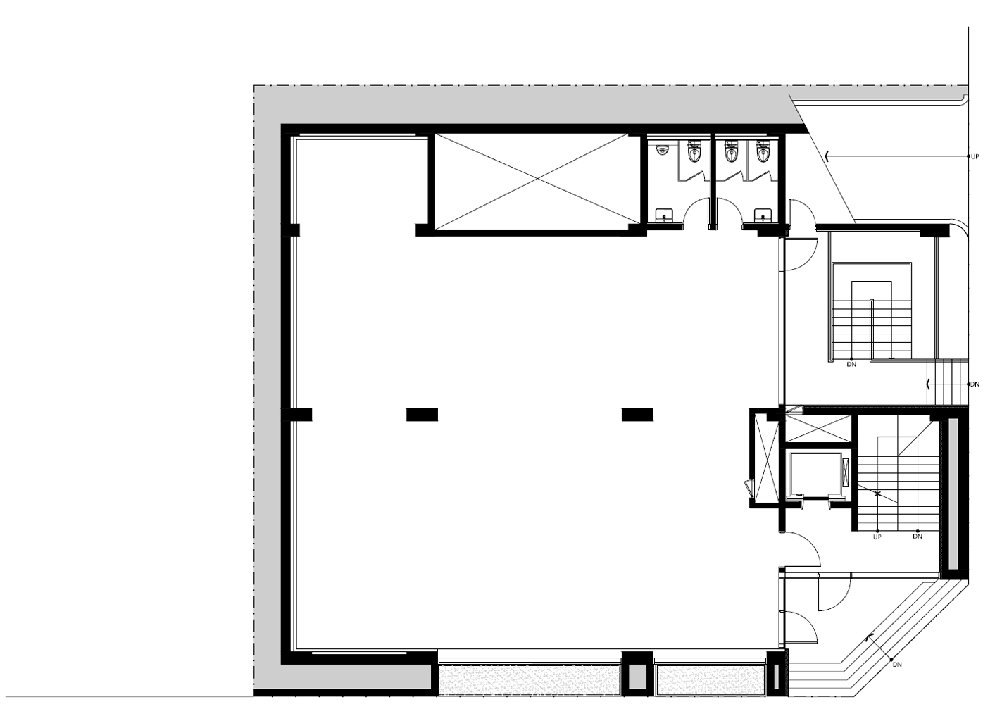
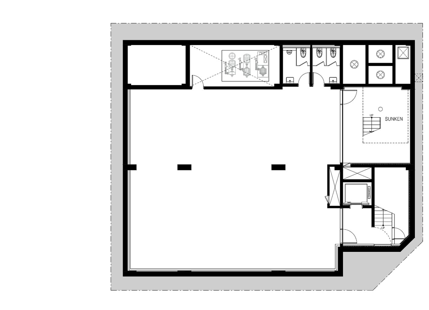
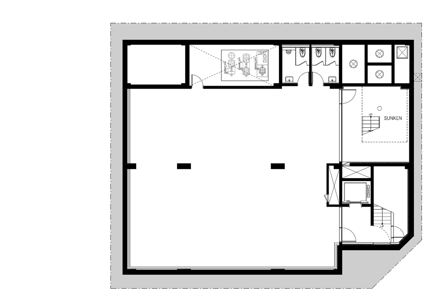
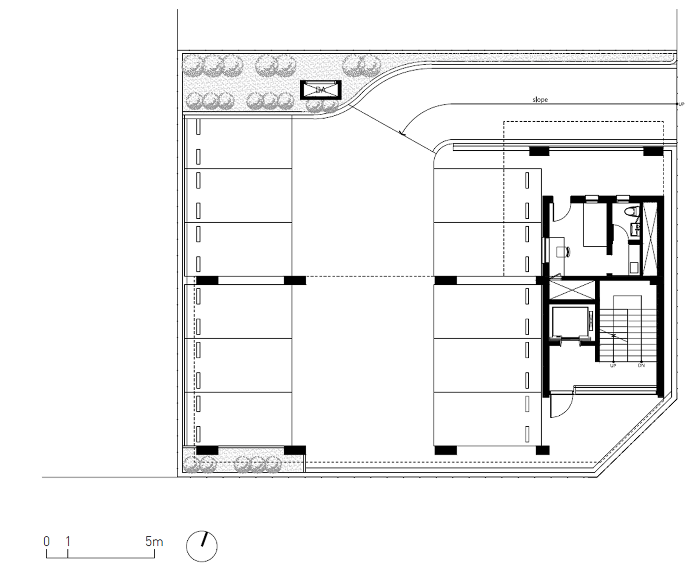
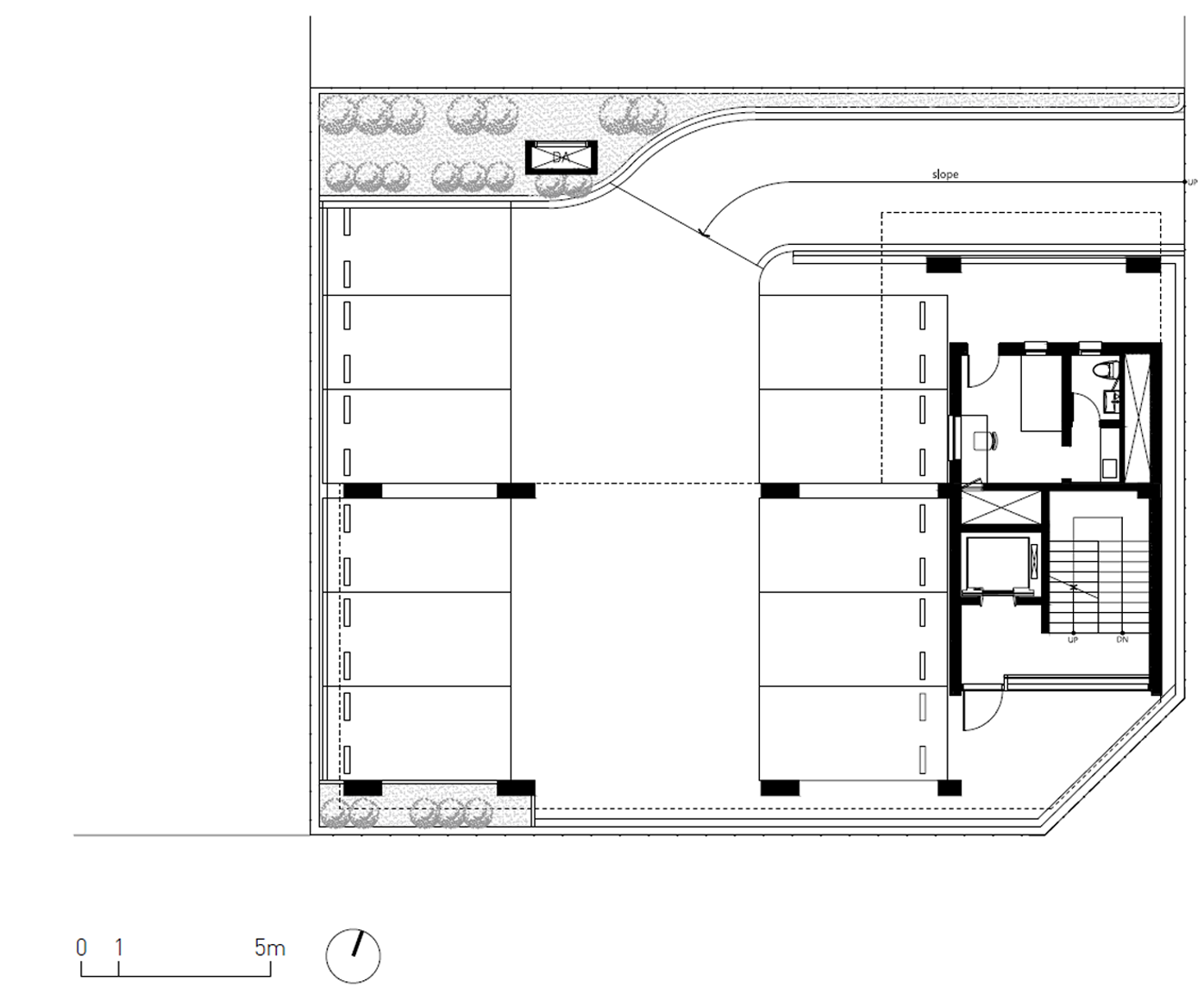
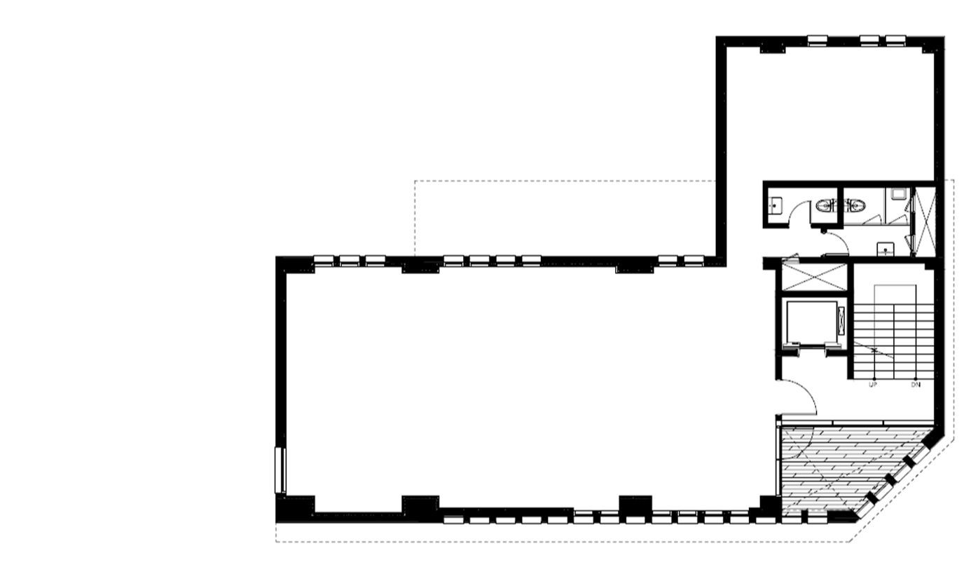
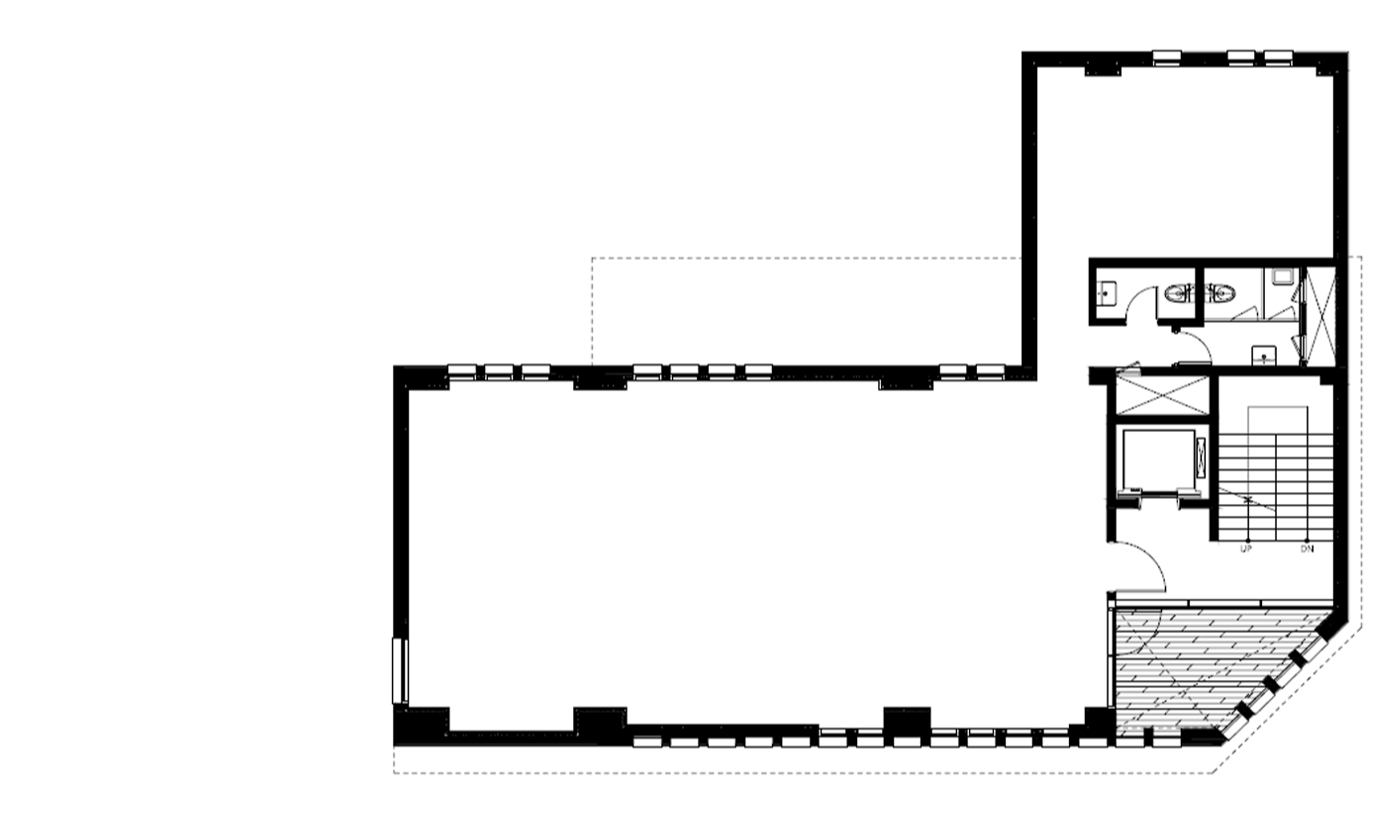
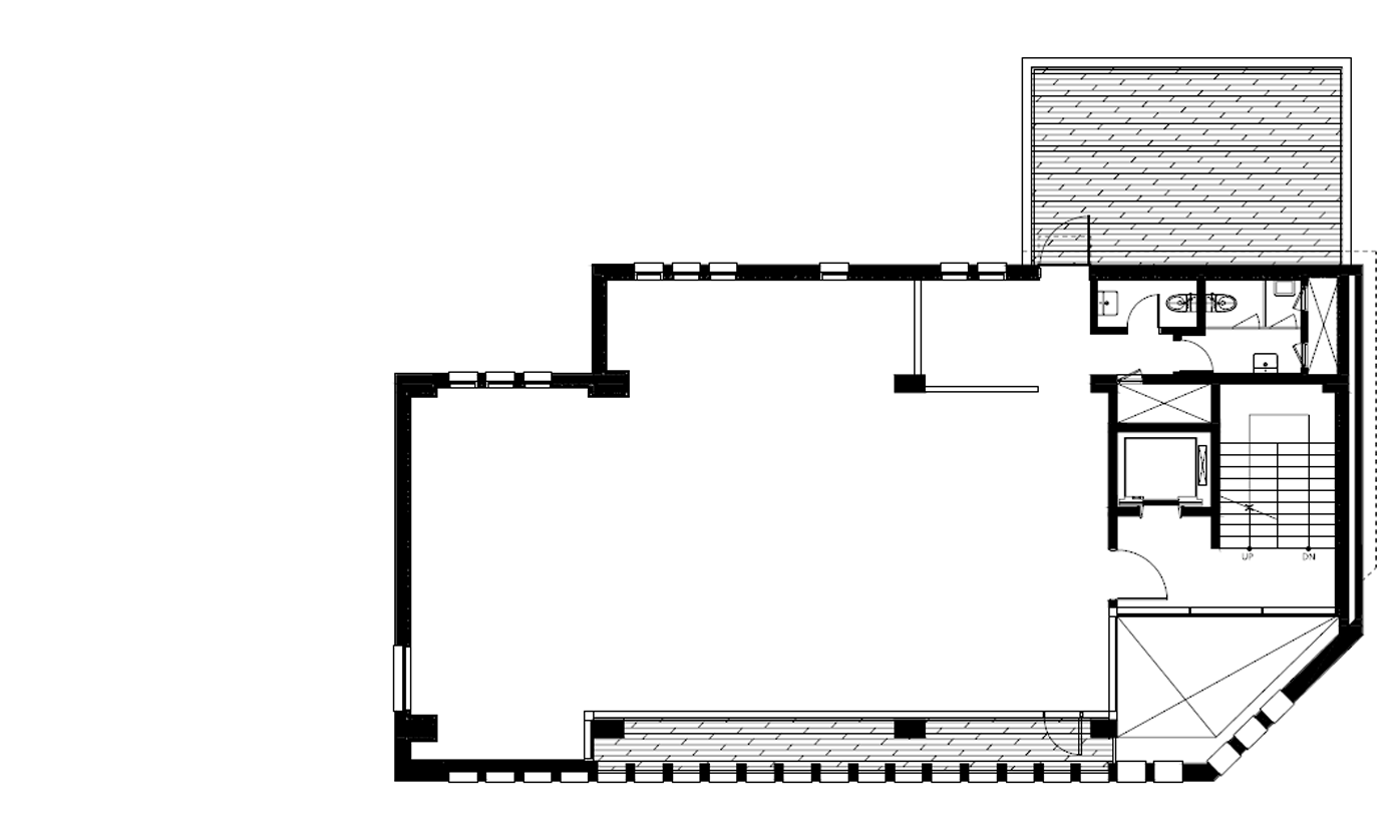
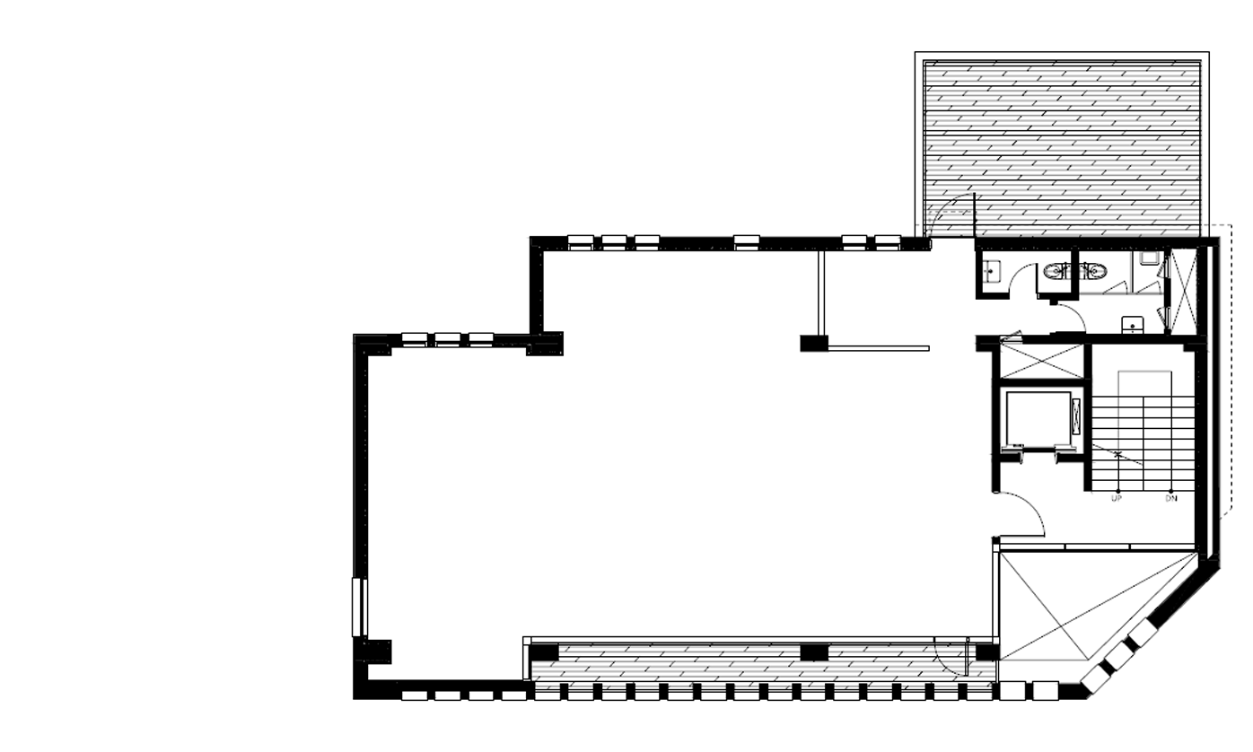
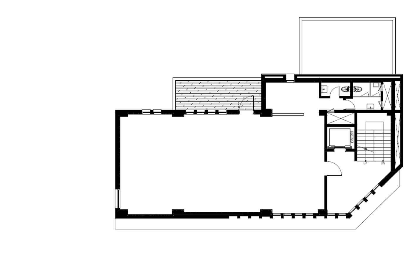
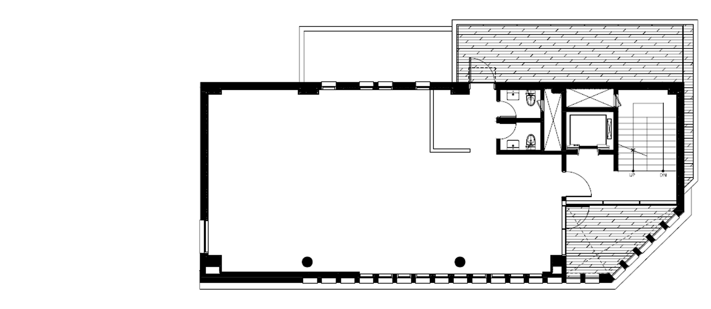
꼼비빌딩은 고급 주택과 근린생활시설이 섞인 서울시 강남구 논현동의 주택가 언덕의 중간에 위치한 근린생활시설 건물이다. 건축가는 비교적 조용하고 단정한 골목길 풍경 속에서 간결하지만 힘 있고 인상적인 모습으로 보여지되, 다채로운 공간을 만들고자 했다. 경사지에 들어선 건물은 지하층이 반쯤 거리에 노출되어 있다. 지하는 골목길과 소통하며 건축물의 주진입로를 가지고 있다. 도로보다 높은 레벨의 지상 1층에 필로티 주차장이 있으며, 지하 2층까지 관통하는 선큰을 통해 공간의 높은 활용도를 보여준다. 상부 매스는 층마다 조금씩 어긋나게 쌓아올린 모습이다. 이 어긋남은 형태에 변화를 주면서도 다양한 모양의 테라스와 발코니들을 만들었다. 일정한 간격으로 리듬감을 만드는 입면의 개구부 패턴은 건축물 전체에 적용되어 통일된 느낌을 주고, 전면도로 방향으로 형성된 테라스들을 숨겨주는 가림벽이 된다. 층마다 있는 테라스는 노출 콘크리트 가벽 속에서 논현동의 골목길과 가볍게 교감한다. 두 골목길이 만나는 대지의 모서리 두 곳은 빈 공간이 있다. 이 오픈된 공간은 골목길을 지나는 사람들과 시선의 교차를 불러오고, 이어진 계단실을 통해 오르내리는 사람들과 서로 다른 내부공간 사이 소통을 유도한다.
2진법의 입면과 숨은 테라스_Binary Concrete Facade and Hidden Terraces
입면은 650x3,000mm의 슬릿한 구멍이 막힌 면과 뚫린 면으로 반복되면서 패턴을 이룬다. 동일한 크기의 개구부는 내부 공간 기능에 따라 유리, 막힌 면, 난간, 보이드로 구분된다. 노출 콘크리트 입면 벽은 그 뒤에 숨은 테라스를 시각적으로 보호한다. 외벽이 서향의 빛을 차단하는 루버 역할을 할 수 있도록 내단열 마감 끝에 창호를 붙여 마감했으며, 태양빛과 조명에 따라 다양한 파사드 장면이 연출된다. 건축물의 전면과 후면은 대조적인 얼굴을 가지고 있다. 골목길에 노출된 전면은 간결한 개구부 패턴을 가지고 있지만, 후면은 중첩된 매스 덩어리로 보이도록 연출되어 있다. 건축가는 어긋나면서 올라간 매스가 혼잡한 이미지를 줄 것을 우려하여 개구부가 있는 전면을 제외하고는 단순한 면으로 보이도록 재료의 연결 매지가 없는 노출 콘크리트를 주재료로 정했다. 하부는 꼼비빌딩을 바라볼 때, 입면이 주는 특별한 느낌을 강조하기 위해 주황색의 선명한 칼라 강판이 적용되어 있다. 발코니에는 노출 콘크리트와 외부 천장에서 보이는 주황색과 비슷한 코르텐색 페데스탈용 석재가 사용되었다.


















건축가 omm architects
위치 서울특별시 강남구 학동로9길 13용도 근린생활시설
대지면적 454.20m2
건축면적 270.24m2
연면적 1,489.67m2
규모 지하 2층, 지상 6층
건폐율 59.50%
용적률 199.74%
설계기간 2020. 11. - 2021. 11.시공기간 2021. 11. - 2023. 3.
준공 2023. 3.
대표건축가 박남규, 김원영, 이종희프로젝트건축가 이종희
디자인팀 배지훈, 이창훈, 장정인
구조엔지니어 드림구조
기계엔지니어 (주)정연엔지니어링
전기엔지니어 (주)정연엔지니어링
시공 다산건설엔지니어링(주)
발주자 고선우
사진작가 김창묵
해당 프로젝트는 건축문화 2024년 10월호(Vol. 521)에 게재되었습니다.
The project was published in the October, 2024 recent projects of the magazine(Vol. 521).
October 2024 : vol. 521
Contents : COMPETITION : RECENT PROJECTSilver for Rest / so-ul architects은빛 숲 / 소을건축사사무소Ginkgo Gallery / MORE Architecture긴코 갤러리 / 모어 아키텍처The April House / YAYArchitects사월애가(四月愛家) / (주
anc.masilwide.com
'Architecture Project > Office' 카테고리의 다른 글
| BLUM 본사 (0) | 2024.11.06 |
|---|---|
| JK Tower (0) | 2024.10.22 |
| Onuelnal Ziggurat (0) | 2024.09.06 |
| DK&D Office Building Renovation (0) | 2024.09.05 |
| White Cliff (0) | 2024.09.04 |
마실와이드 | 등록번호 : 서울, 아03630 | 등록일자 : 2015년 03월 11일 | 마실와이드 | 발행ㆍ편집인 : 김명규 | 청소년보호책임자 : 최지희 | 발행소 : 서울시 마포구 월드컵로8길 45-8 1층 | 발행일자 : 매일



