
제이케이타워는 서울특별시 성수동에 위치한 지식산업센터다. 대지는 성수역에서 약 250m 거리에 있어 지하철역에서 도보로 쉽게 접할 수 있다. 설계를 시작할 당시 인근에는 아파트와 준공업지역의 용적률을 활용한 지식산업센터가 여럿 지어지고 있었다. 건축주는 이러한 대지의 주변 환경과 도로 현황 등의 여건에 따라 임대 목적의 건축물을 짓고자 했다.
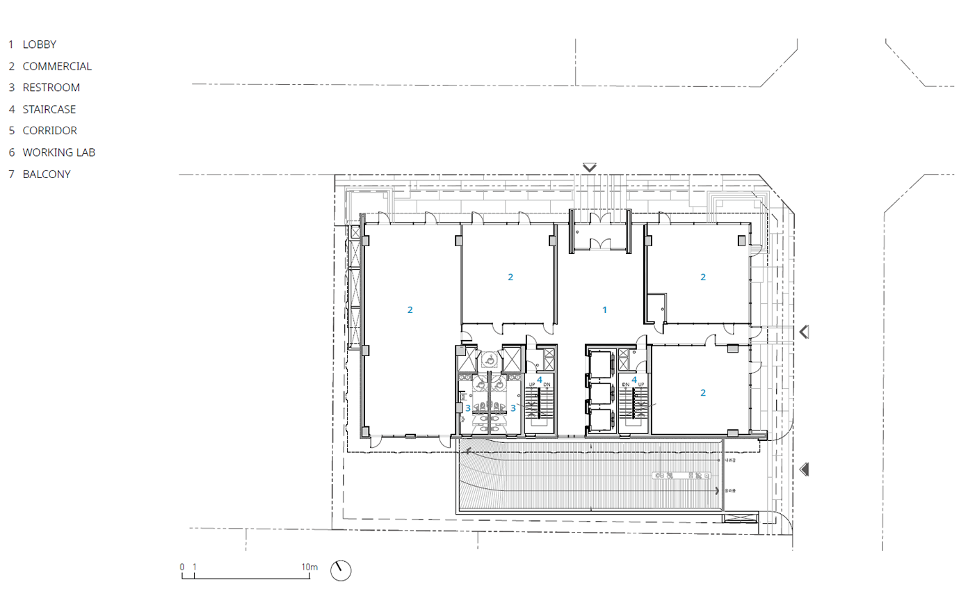
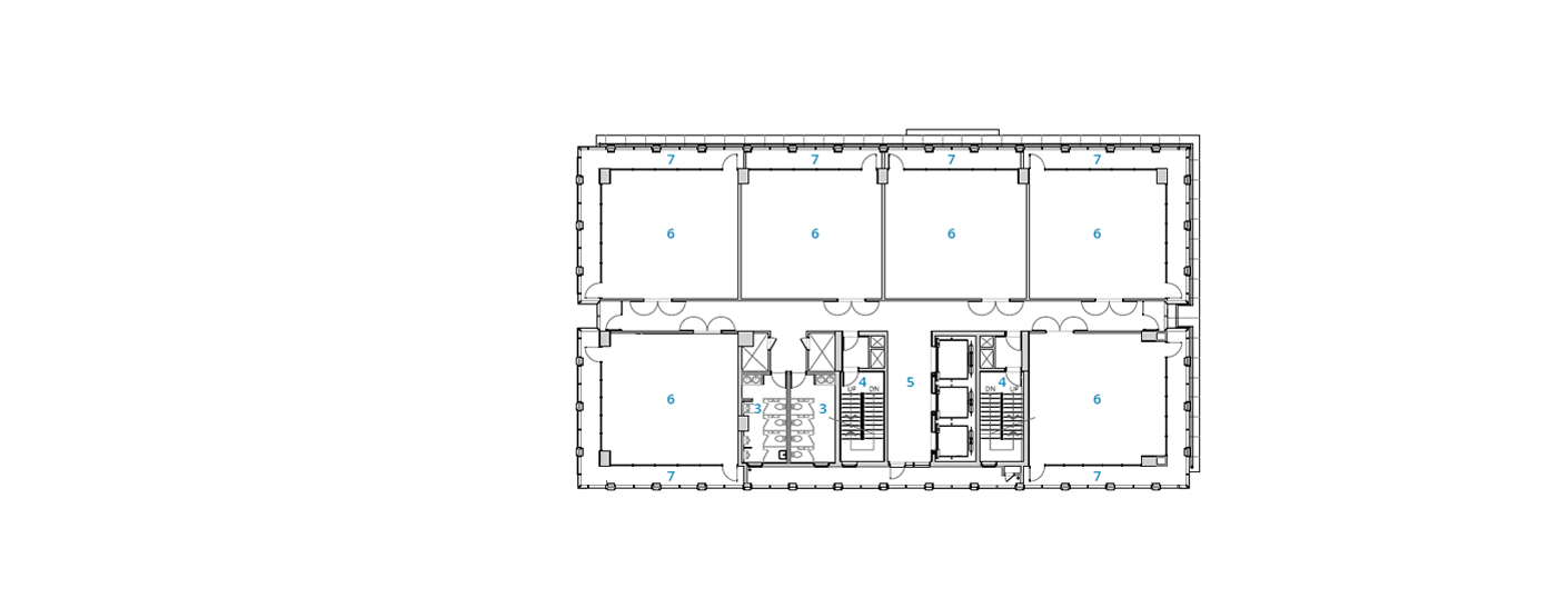
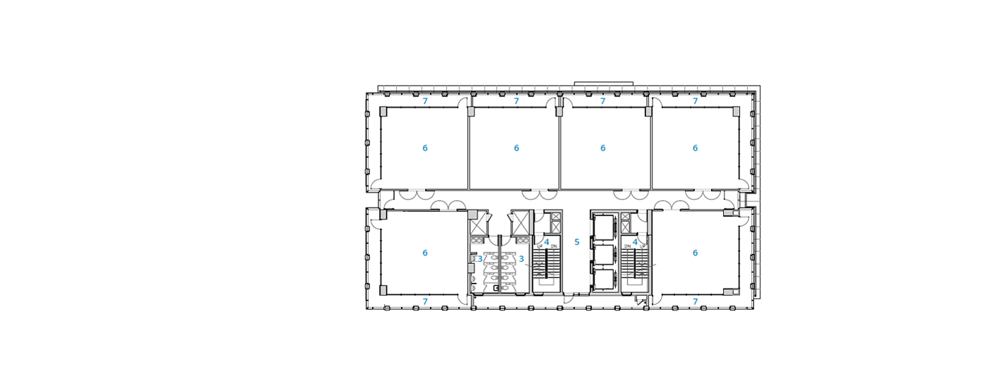
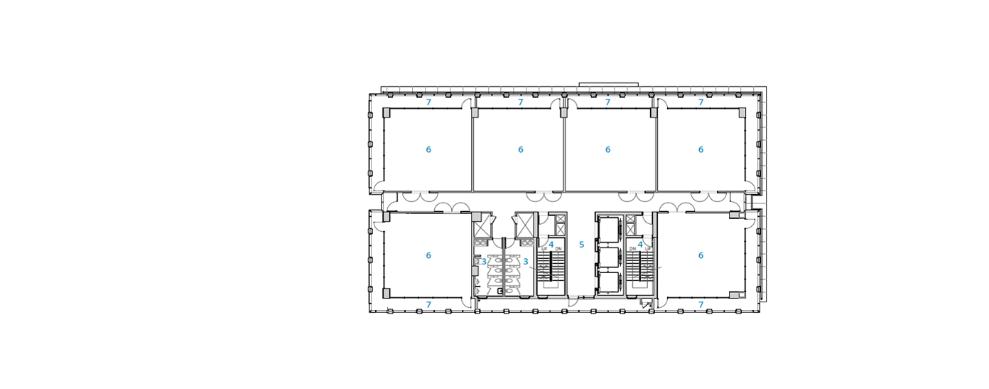
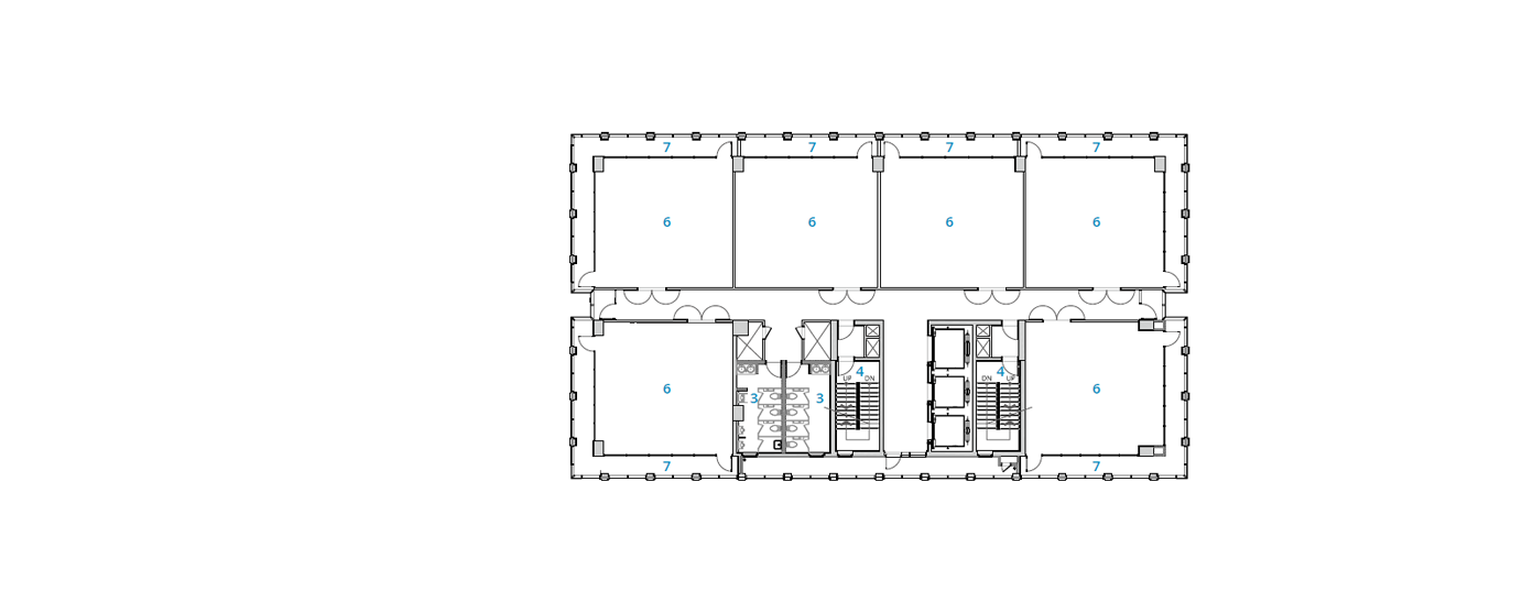
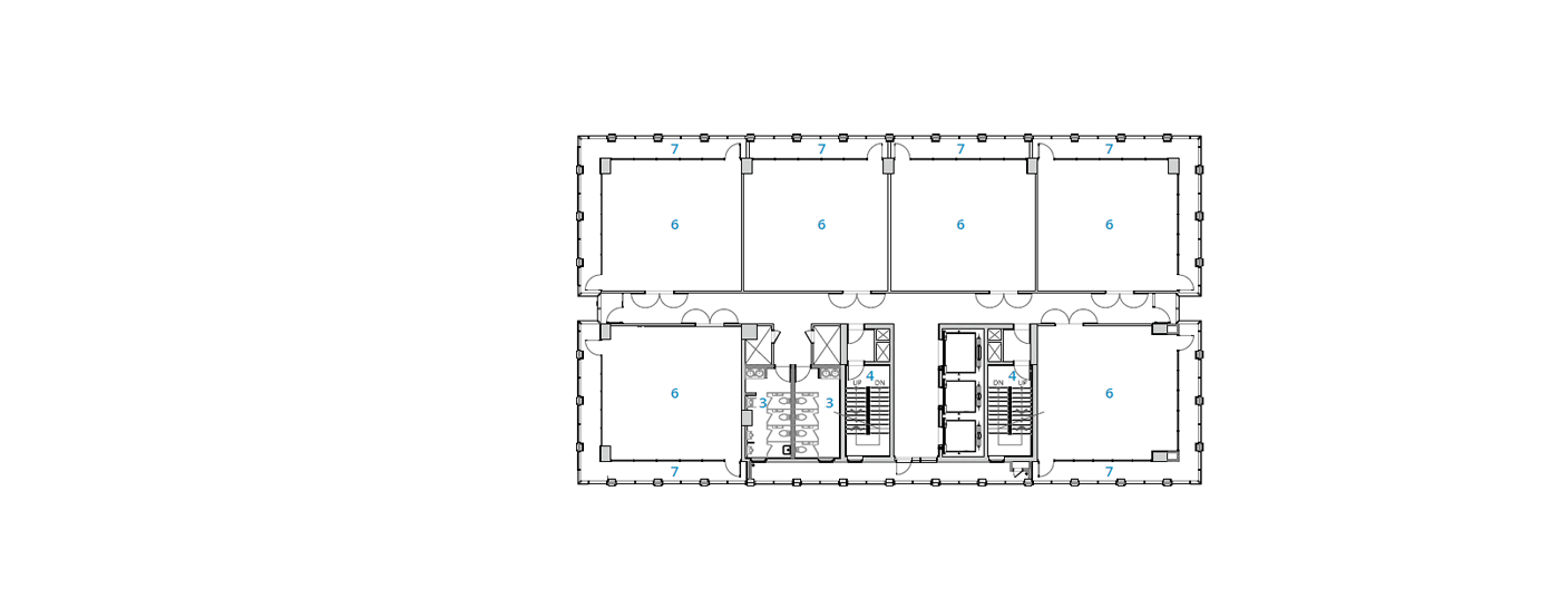
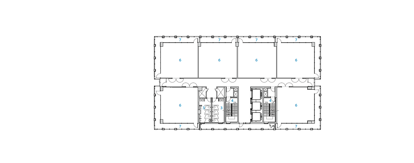
대지에 접한 두 개의 도로에서 다방향의 정면성을 확보하면서, 업무형 지식산업센터에 적합한 코어 계획을 수립했다. 장변 방향인 성수이로에 면한 보행자 주출입구와 연무장길에 계획한 주차장 출입구는 남측에 면한 사무실의 시야를 고려한 것이며 남측에 코어와 화장실을 계획하여 실내에서도 개방성을 확보했다. 또한 북측과 서측에는 외부로 열린 사무실을 배치했다. 지상 1층에는 로비와 근린생활시설, 지상 2층부터 지상 9층까지는 업무형 지식산업센터를 계획하여 임대계획에 따라 각각 1개에서 6개 실로 구별 사용이 가능한 가변성을 고려했다.
건축물의 외관은 시간이 지나도 낡지 않도록 저층부는 점토벽돌과 유리를 사용하고, 기준층은 석재와 유리를 사용하였다. 두 부분이 만나는 곳에는 마천석을 활용한 캐노피가 설치되어 구역을 구별한다. 기준층의 각층에는 수평 알루미늄 시트와 커튼월에서 돌출된 석재 수직 루버를 통해 각각 수평성과 수직성을 강조하였다.









건축가 플라건축사사무소
위치 서울특별시 성동구 성수동2가 273-36
용도 업무시설, 근린생활시설
대지면적 1,323.30㎡
건축면적 737.06㎡
연면적 9,414.16㎡
규모 지하 4층, 지상 9층
건폐율 55.74%
용적률 399.86%
준공 2019. 5.
구조 철근 콘크리트조
대표건축가 정준철
프로젝트건축가 (플라 건축사사무소)정준철 / (건축사사무소 한마루21)김수명
디자인팀 (플라 건축사사무소)신나영 / (건축사사무소 한마루21)서혜진, 안수연
발주자 제이케이
사진 이남선
해당 프로젝트는 건축문화 2024년 10월호(Vol. 521)에 게재되었습니다.
The project was published in the October, 2024 recent projects of the magazine(Vol. 521).
October 2024 : vol. 521
Contents : COMPETITION : RECENT PROJECTSilver for Rest / so-ul architects은빛 숲 / 소을건축사사무소Ginkgo Gallery / MORE Architecture긴코 갤러리 / 모어 아키텍처The April House / YAYArchitects사월애가(四月愛家) / (주
anc.masilwide.com
'Architecture Project > Office' 카테고리의 다른 글
| 지지디디(그와 그녀의 뚱딴지) (0) | 2024.11.28 |
|---|---|
| BLUM 본사 (0) | 2024.11.06 |
| KKOMBI Building (0) | 2024.10.16 |
| Onuelnal Ziggurat (0) | 2024.09.06 |
| DK&D Office Building Renovation (0) | 2024.09.05 |
마실와이드 | 등록번호 : 서울, 아03630 | 등록일자 : 2015년 03월 11일 | 마실와이드 | 발행ㆍ편집인 : 김명규 | 청소년보호책임자 : 최지희 | 발행소 : 서울시 마포구 월드컵로8길 45-8 1층 | 발행일자 : 매일



