
제약사항을 관통하는 새로운 개념의 구조미 해석
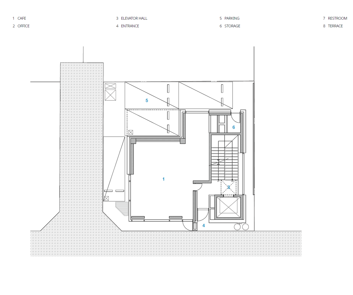
3종 일반주거지역의 이면도로에 있는 작은 대지는 일조에 따른 높이 제약이나 주차 계획으로 인해 1층의 바닥면적 감소를 감안해야 하는 등 까다로운 설계 과정을 수반했다. 프로젝트는 7층까지 용적률을 꽉 채워야 했고, 각종 법과 규제를 감안하여 위로 올라갈수록 고깔처럼 좁아질 수밖에 없는 체적이었다. 여기에 사업성을 위한 각 층의 테라스, 넓고 많은 창호 계획은 구조적 부하를 높였고, 프라이버시 보호를 위한 차면시설까지 더해지면서 클라이언트의 요구사항을 수행하는데 난항을 겪었다.
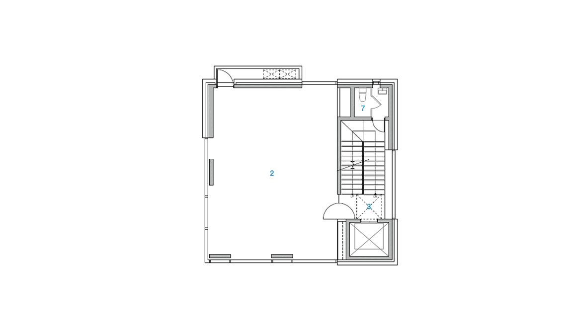
건축가는 구조적 합리성과 여러 목표를 만족시키기 위해 필요한 핵심 요소로 벽식과 기둥식의 복합 구조를 취했다. 철근 콘크리트조로 엘리베이터와 계단실, 화장실이 이루는 코어를 단순화하여 중심을 잡고, 나머지 공간은 방향성을 가진 벽처럼 기둥을 만들어 좌굴과 횡력의 저항을 용이하게 했다. 동시에 인접 건물과 차면되는 벽의 길이를 늘일 수 있게 했다. 구조체를 감싸는 유리는 매트해 보이는 입면 재료와 상대적인 요소로 작용한다. 이를 통해 건물을 더욱 매끈하고 빛나며 건축물이 더욱 개방적으로 보이게 한다. 또한, 3층 이상의 바닥 슬래브는 무량판 구조로 계획해 층별 테라스로 인한 수직 구조체의 전이에 따른 부하를 감소시키고, 가로구역별 높이제한 구역과 일조에 의한 높이 한계에 대응하여 보춤의 깊이 축소를 극대화하는 것으로 쾌적한 층고를 확보할 수 있었다. 이러한 구조적 해결 방법은 자연스럽게 건물의 입면 디자인까지 같은 맥락으로 이어진다. 각 층 테라스의 형태와 무량판 구조를 디자인 모티브로 삼아 수평적 요소를 강조하는 것이 이 건축물을 가장 잘 표현할 방법이었다. 각 층의 벽으로 보이는 기둥과 그것을 감싸는 유리면은 주경과 야경에 따라 다르게 보인다. 이는 건축물이 극적으로 보이도록 톤을 어둡게 하여 또 다른 감각으로 구조미를 표현했다.
인간 욕망의 충족을 위한 위대한 시도
지구라트는 인간이 신에게 다가서기 위한 메소포타미아 문명의 방법 중 하나였다. 벽돌을 하나씩 쌓아 올리며 만든 넓은 면적의 사각형 테라스 형태의 기단이 반복되는 방식으로, 위로 올라갈수록 점점 좁아지는 형태의 한계가 있었다. 시간이 흐르며 기술이 발전하자 수백 미터의 초고층 빌딩으로 다양한 형태의 지구라트 구현이 가능하게 되었다. 과거 물리적 한계에 부딪혔던 것과는 다르게, 현대 건축에서는 복잡한 이해관계와 규제로 인한 제약이 생겼다. 인간은 과거 지구라트를 만들었던 것처럼 각종 현실적 제약을 응용 또는 역이용하거나, 새로운 방법을 찾는 창의성을 발휘하여 이상의 목표에 다다르려 하는 노력을 반복하고 있다. 이것은 새로운 세상으로 나아가는 진화의 매개가 되고 있다. 오늘날 지구라트는 그렇게 만들어지고 있다.

A New Interpretation of Structural Aesthetics that Transcends Limitations
The small site, located on a narrow street for vehicles and pedestrians in a Type 3 General Residential Area, presented significant design challenges due to height restrictions and parking requirements, resulting in a reduction in the first-floor area. The project needed to maximize the floor area ratio up to seven floors, resulting in a volume that tapered upwards like a cone to comply with various laws and regulations. The client’s requests for terraces on each floor, many large windows, and privacy screens increased the structural load, complicating the design even further.
To address these issues, the architect adopted a hybrid structure combining wall and column systems, which became the key to meeting both structural demands and design goals. A simplified reinforced concrete core, containing the elevator, stairwell, and restrooms, provided stability, while the remaining space was arranged with column-like walls designed to resist buckling and lateral forces. This approach also allowed for extended walls that provided privacy by shielding the building from neighboring properties. The glass façade contrasts with the matte exterior materials, giving the building a sleek, glowing appearance, and makes it feel more open and accessible. Additionally, the floor slabs used for the third floor and up employed a flat-slab structure, which reduced the vertical load from the terraces, minimized beam depths, and maximized ceiling height—all while adhering to height and sunlight-related restrictions. This structural solution naturally influenced the façade design. The best way to express the architecture was to emphasise the horizontal elements, such as the form of the terraces and the structure of the flat-slab structure as design motifs. The columns, which appear as walls, and the glass surfaces encasing them change in appearance depending on the time of day. This creates a dramatic visual effect, especially at night, emphasizing structural beauty.
A Bold Attempt to Fulfill Human Ambition
In ancient Mesopotamia, the ziggurat was a monumental attempt to bring humans closer to the gods. These structures were constructed as large, square terraces, stacked one on top of the other, gradually tapering as they ascended. With modern advancements, we now reinterpret the ziggurat in the form of towering skyscrapers that reach hundreds of meters into the sky. Whereas past builders faced physical limitations, today’s architecture must navigate complex regulations and stakeholder demands. Just as ancient builders used creativity to overcome their constraints, modern architects find new ways to push boundaries or even leverage restrictions to achieve their goals. This continual effort to adapt and innovate is what drives architectural evolution. Present-day ziggurats are born through this process.











건축가 CIID(Contemporary Idea for Interactive Design)
위치 서울특별시 강남구 삼성동 119-15
용도 근린생활시설
대지면적 193.10㎡
건축면적 95.09㎡
연면적 599.73㎡
규모 지하 1층, 지상 7층
건폐율 49.24%
용적률 249.76%
설계기간 2021. 1. – 7.
시공기간 2021. 8. – 2022. 8.
준공 2022. 10.
대표건축가 주익현
프로젝트건축가 주익현(씨:드) / 송정은(에이메이커스건축사사무소)
디자인팀 주익현
구조엔지니어 한길구조기술사사무소
기계엔지니어 수양엔지니어링
전기엔지니어 수양엔지니어링
시공 (주)라우종합건설
발주자 법인
사진작가 노경
해당 프로젝트는 건축문화 2024년 9월호(Vol. 520)에 게재되었습니다.
The project was published in the September, 2024 recent projects of the magazine(Vol. 520).
September 2024 : vol. 520
Contents : RECORDS Worldwide Architectural Festival, ‘Serpentine Pavilion’ Meets in Seoul세계적인 건축 축제, ‘서펜타인 파빌리온’을 서울에서 만나다 : COMPETITION : RECENT PROJECT PICT. SQUARE(The PICT.‘s
anc.masilwide.com
'Architecture Project > Office' 카테고리의 다른 글
| JK Tower (0) | 2024.10.22 |
|---|---|
| KKOMBI Building (0) | 2024.10.16 |
| DK&D Office Building Renovation (0) | 2024.09.05 |
| White Cliff (0) | 2024.09.04 |
| PICT. SQUARE(The PICT.‘s Company Building) (0) | 2024.09.03 |
마실와이드 | 등록번호 : 서울, 아03630 | 등록일자 : 2015년 03월 11일 | 마실와이드 | 발행ㆍ편집인 : 김명규 | 청소년보호책임자 : 최지희 | 발행소 : 서울시 마포구 월드컵로8길 45-8 1층 | 발행일자 : 매일



