
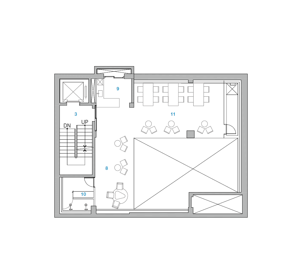
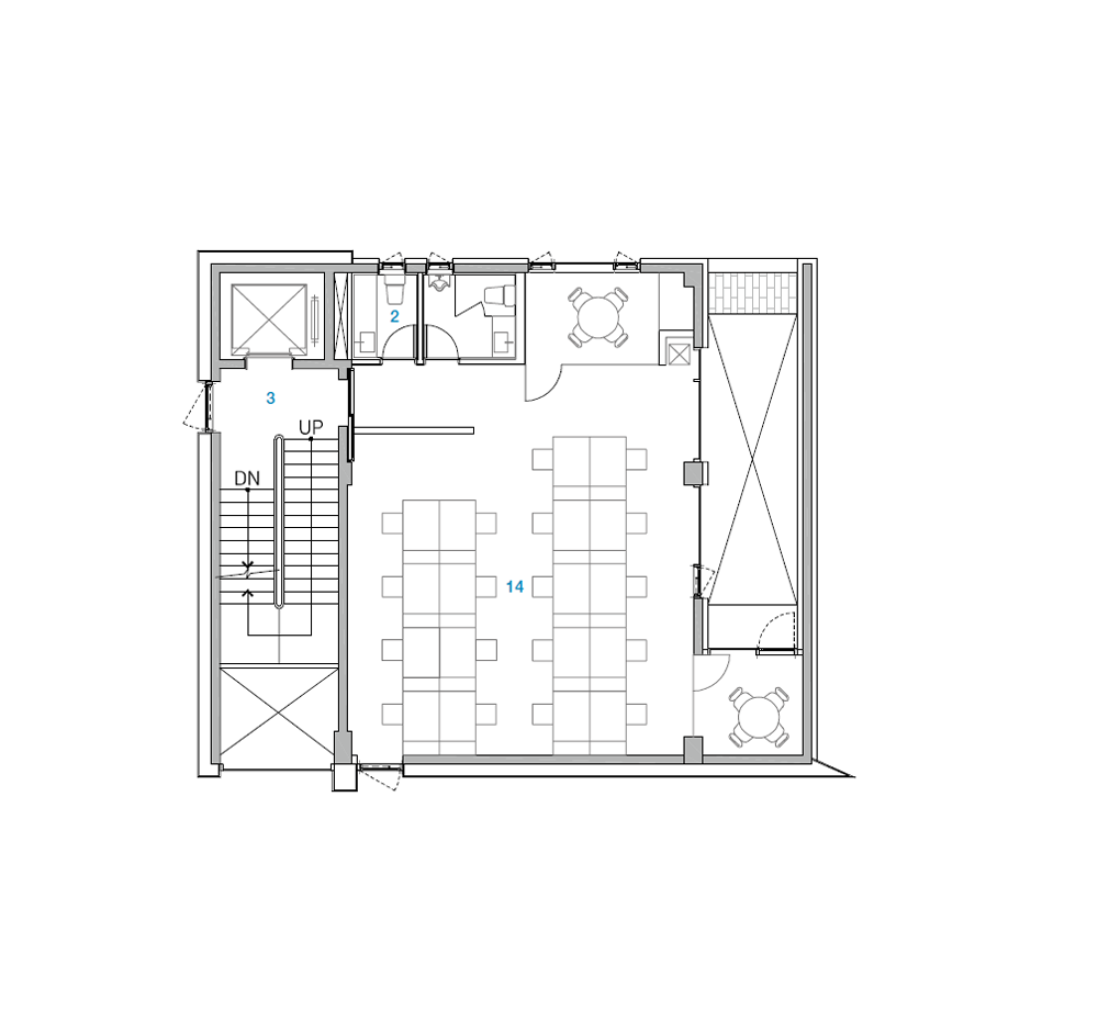
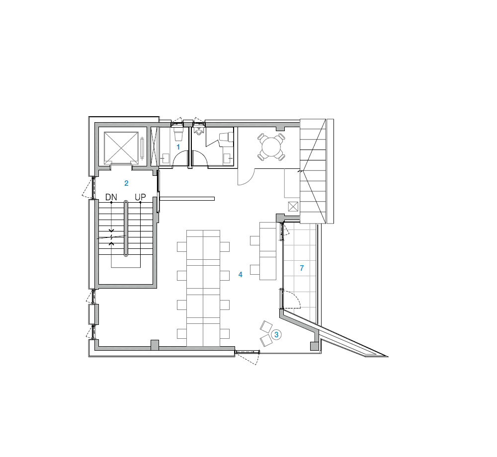
카테고리 믹싱 존
서울시의 3종 일반주거지역은 건폐율이 50%인 관계로 넓은 건축면적을 확보하기 어렵다. 필연적으로 수직으로 프로그램이 나누어지며 층별 카테고리 분리가 이루어졌고, 단면 구조가 단순해지는 만큼 평이한 계획이 되지 않도록 신경써야 했다. 오랫동안 기업의 업무 특성을 연구한 결과 2가지의 핵심 업무환경 포인트를 발견했다. 먼저 IT기업의 특성상 높은 집중력과 협업을 위한 팀워크가 중요하기에 집중 업무 구역과 휴게 · 놀이구역을 철저히 구분하는 것이 배치의 중점이었다. 한편 창의적인 아이디어는 책상 앞에 앉아 있을 때가 아니라, 놀다가 문득 떠오르기도 한다. 건축가는 1층 라운지를 기준으로 하여 놀이공간과 업무공간을 명확하게 구분했다. 라운지는 서로 다른 영역으로의 이동이나 접근의 선택적 제한, 사람이나 정보가 모이고 흩어지는 기준이 되는 카테고리 믹싱 존으로, 사옥의 기준이자 핵심 프로그램이다. 2층 이상의 공간은 집중 업무 구역으로 모니터로 반사되는 자연 직사광이나 인접 건축물과의 상호 프라이버시 등 여러 불편 요소를 줄이기 위해 최소 크기의 창을 배치했다. 북측의 창은 간접적인 자연광으로 답답함을 해소하고, 복도나 회의실, 휴게공간 등 공용공간에 맞추어 선택적 개방을 유도함으로서 조도를 확보했다. 지하 2개 층은 직원들을 위한 공간으로 마련하여 마음껏 공간을 누리게 했다. 2개 층 사이가 수직으로 열린 보이드 공간은 다양한 레벨에서 각자의 놀이를 지켜볼 수 있는데, 이를 통해 참여 유도 심리를 발현시켜 다양한 동료 및 그룹에 쉽게 접근하고 소통할 수 있도록 했다. 궁극적으로 팀워크를 위한 준비 과정과 직무 참여자 간 정보교환이 이루어질 수 있는 분위기가 형성되고 창의적 잠재력이 창출되는 장소로 거듭났다.
도심 속 낯선 화이트 클리프
사옥은 한 기업의 가치관과 인상을 표현하는 상품으로서의 가치를 가져야 한다. 일련의 적층된 프로그램은 각 공간이 가진 개성과 특징을 입면으로 고스란히 드러내는 방식으로 치환되어 거대한 벽체를 이룬다. 데페이즈망 기법을 차용한 화이트 클리프 1층 라운지의 투명한 유리창 위로 높게 이어지며 좁은 도로와 복잡한 골목 풍경에 극명하게 대비된 신비로운 오브제가 된다. 일조사선제한의 경계를 아슬아슬하게 넘나들며 뾰족하게 깎인 전면부 매스는 도로에 대면하는 면적을 극단적으로 늘리며 낯선 감각을 더욱 극대화하고 역에서부터 이 사옥을 걸어오는 방문자에게 생경한 첫인상을 선사한다.

Category Mixing Zone
In Seoul’s Type 3 General Residential Area, the building-to-land ratio is capped at 50%, making it difficult to secure a large building footprint. As a result, the program had to be arranged vertically, with distinct categories assigned to each floor. Since the cross-sectional structure was relatively simple, special attention was given to prevent the overall design from becoming too conventional. After extensive research into the nature of corporate work environments, two key design principles emerged. First, given the nature of IT companies—where intense focus and team collaboration is vital—the layout focused on distinctly separating work areas from rest and recreational spaces. At the same time, creativity often strikes not while sitting at a desk, but during moments of play or relaxation. The architects separated the play and work areas, using the ground-floor lounge as a boundary. This lounge is the core space of the building, a ‘category mixing zone’ where people and information can converge or disperse, also allowing selective movement and restricted access to different areas. From the second floor and above, of which spaces are designated for focused work, windows are minimized to reduce visual distractions such as direct sunlight on screens and privacy concerns with neighboring buildings. North-facing windows bring in soft, indirect natural light to prevent the spaces from feeling confined, while communal areas like hallways, meeting rooms, and rest zones feature strategically placed openings to ensure optimal lighting. The two basement floors are designed as employee spaces, offering freedom and flexibility. The vertical void connecting these floors creates visual connections across different levels, encouraging interaction and fostering a sense of community. Ultimately, this design promotes collaboration and the free exchange of ideas, cultivating an environment where creative potential can flourish.
White Cliff, a Stranger In The City
An office building should reflect the values and identity of the company. In this design, the layered program is reflected in the façade, with the unique character and function of each space coming together to form a massive, unified wall. Using the dépaysement technique, the transparent glass façade of the first-floor lounge stretches upwards, creating a stark contrast with the narrow streets and dense alleyways surrounding it, transforming the building into a mysterious and striking object within the urban landscape. The sharply angled front mass of the building, which pushes the limits of the Restrictions on Height of Buildings for Securing Sunshine, expands the building’s presence along the street, enhancing the sense of unfamiliarity. This bold design creates a memorable first impression for visitors as they approach the building from the nearby station.

















건축가 CIID(Contemporary Idea for Interactive Design)
위치 서울특별시 강남구 삼성동 118-25
용도 근린생활시설
대지면적 229.20㎡
건축면적 114.52㎡
연면적 713.41㎡
규모 지하 2층, 지상 5층
건폐율 49.97%
용적률 219.13%
설계기간 2022. 2. – 5.
준공 2023. 1.
대표건축가 주익현
프로젝트건축가 주익현
디자인팀 조병호
구조엔지니어 한길구조기술사사무소
기계엔지니어 수양엔지니어링
전기엔지니어 수양엔지니어링
시공 (주)다우ENC
발주자 법인
사진작가 노경
해당 프로젝트는 건축문화 2024년 9월호(Vol. 520)에 게재되었습니다.
The project was published in the September, 2024 recent projects of the magazine(Vol. 520).
September 2024 : vol. 520
Contents : RECORDS Worldwide Architectural Festival, ‘Serpentine Pavilion’ Meets in Seoul세계적인 건축 축제, ‘서펜타인 파빌리온’을 서울에서 만나다 : COMPETITION : RECENT PROJECT PICT. SQUARE(The PICT.‘s
anc.masilwide.com
'Architecture Project > Office' 카테고리의 다른 글
| Onuelnal Ziggurat (0) | 2024.09.06 |
|---|---|
| DK&D Office Building Renovation (0) | 2024.09.05 |
| PICT. SQUARE(The PICT.‘s Company Building) (0) | 2024.09.03 |
| Mangwon 40426 (0) | 2024.09.02 |
| Ruian Qiaomao Tower (0) | 2024.08.27 |
마실와이드 | 등록번호 : 서울, 아03630 | 등록일자 : 2015년 03월 11일 | 마실와이드 | 발행ㆍ편집인 : 김명규 | 청소년보호책임자 : 최지희 | 발행소 : 서울시 마포구 월드컵로8길 45-8 1층 | 발행일자 : 매일


