
ICT기업 더픽트는 기업의 확장을 위해 춘천시청 맞은편에 위치한 기존 사옥을 떠나 구도심인 춘천 효자동에 새로운 사옥으로 이전했다. 건축주는 젊은 기업의 에너지를 잘 담아내는 사옥을 짓고, 춘천 구도심에 새로운 활력소가 될 공간을 원하였다.
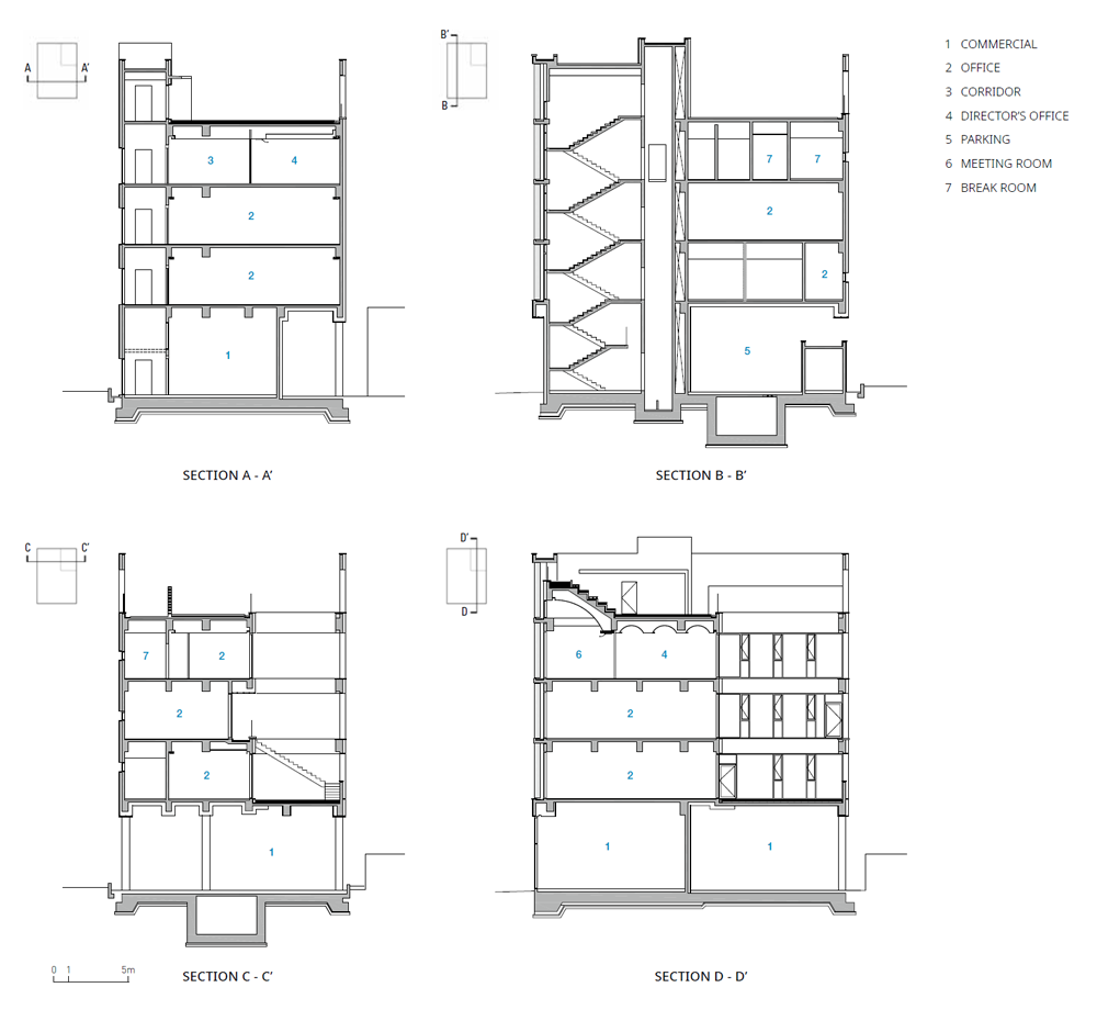
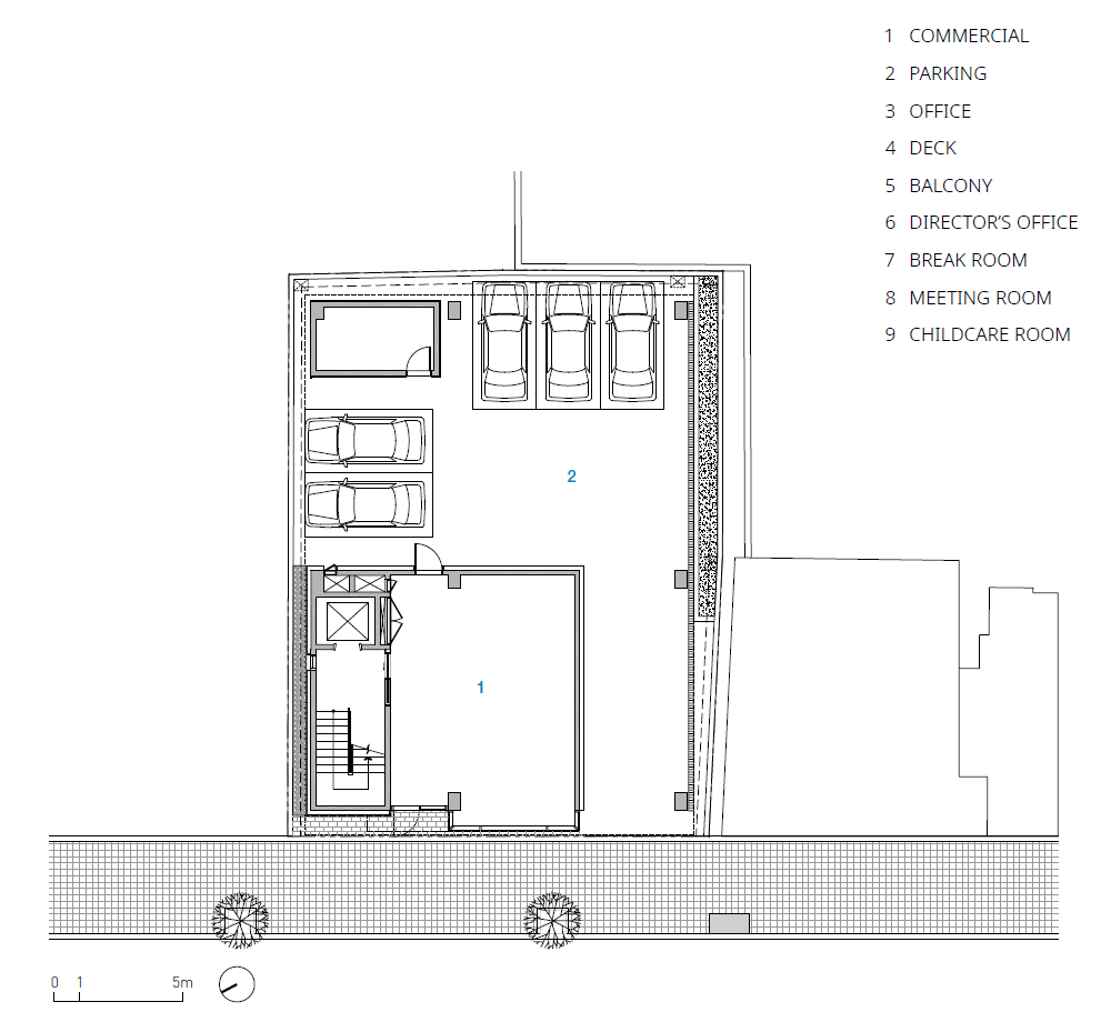
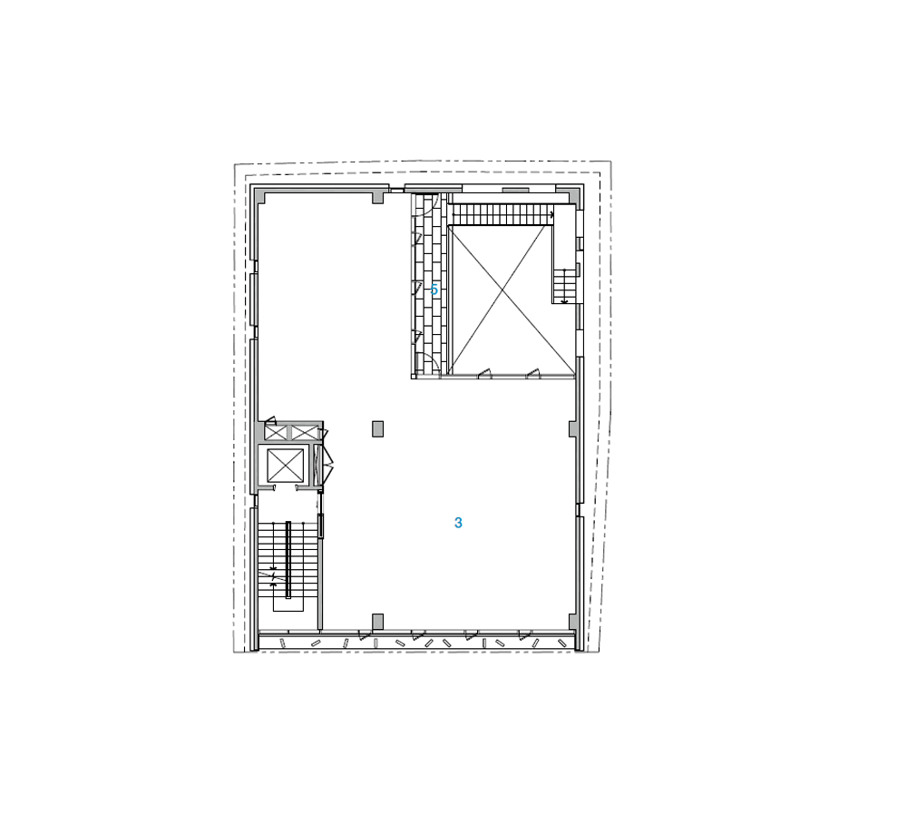
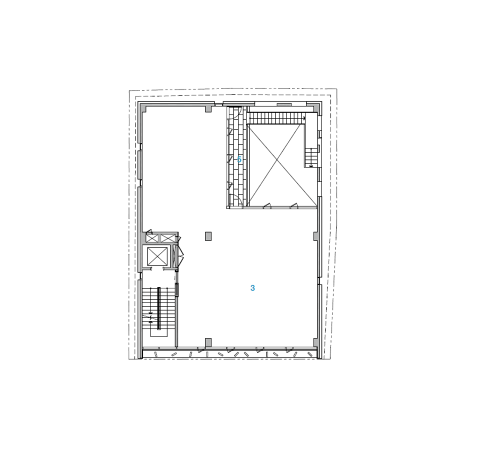
동서로 장방형인 대지는 서측의 20m 도로와 접한다. 다른 3면은 방화지구로서 창을 내는데 제약이 있었다. 유일하게 자유로운 입면 구성이 가능한 서측 전면도로의 맞은편은 유흥가가 형성되어 있어 시각적인 필터가 필요했다. 사옥의 업무 환경을 위해 일조의 확보는 가장 중요하게 다뤄져야 할 개념이었기에, 일조를 확보하기 위해 건물의 남동측 코너에 빛을 받아들일 수 있는 2~4층을 관통하는 중정을 계획하였다. 중정은 빛을 전달하는 전이공간인 동시에 직원들의 휴식공간이며, 동북측에 배치한 4층 보육실까지 쾌적한 일조환경을 확보한다.
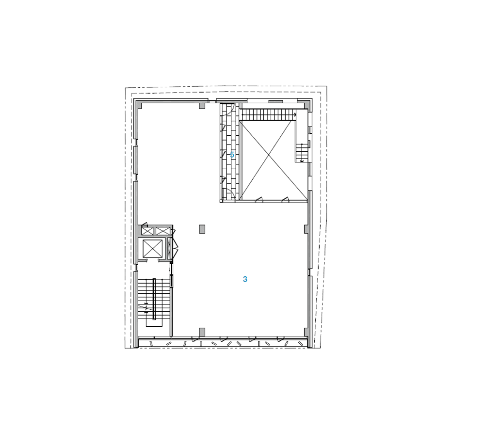
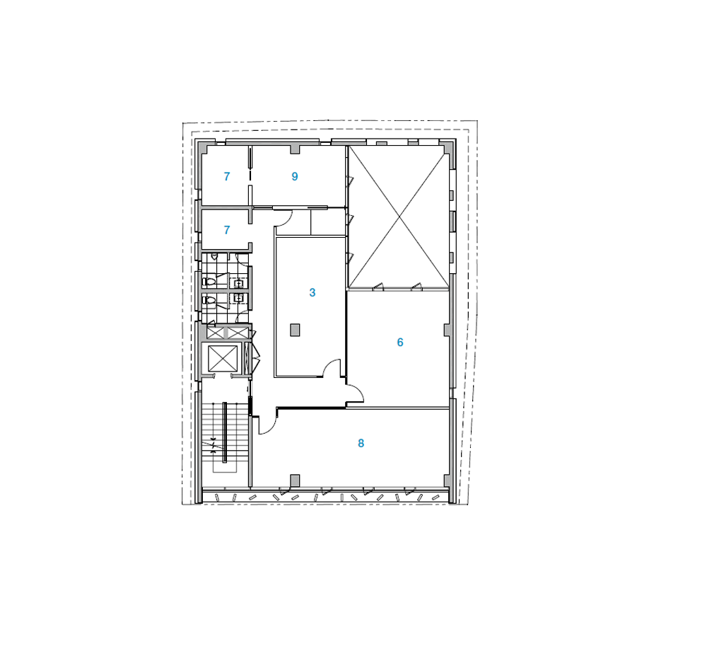
더픽트 사옥은 총 4개층으로 구성되었다. 옥상 파라펫의 높이를 기준층의 층고와 동일하게 계획하여 직원들의 소통과 휴식을 위한 위요된 옥상휴게공간을 제안했다. 1층은 6m 층고의 개방적인 공간으로 진입홀 겸 카페로 계획하여 직원뿐만 아니라 카페 이용객의 동선을 함께 고려하고, 후면부 주차장은 물품 이동이 원활하게 했다. 2, 3층은 가변적인 활용을 고려한 업무공간으로 중정을 직접 이용할 수 있다. 4층은 리더실, 사업관리실, 대회의실 등과 함께 직원복지를 위한 작은 보육실이 있다. 옥상에는 4층 대회의실 상부와 연결된 계단식 휴게공간을 두어 자유로운 휴식 및 토론이 가능하고, 하부 공간은 대회의실의 층고를 확보하여 공간의 효율성을 높였다.
입면 계획은 방화지구 제약에 따라 서측 도로변을 제외한 3면의 창을 최소화했다. 중정의 안쪽은 전면이 창으로 구성되어 개방감을 가진다. 사옥의 정면인 서측 입면의 각 층은 전면 창으로 계획하고 수직 루버를 설치했다. 일률적인 방식이 아닌 불규칙적인 방식으로 디자인하여 각 층별로 개성있고 다양한 빛 환경이 조성된다. 루버 디자인은 남동측의 중정 개구부 디자인까지 확장되어 건물에 정체성을 만든다. 4개층에 걸쳐 45개의 알루미늄 루버로 구성된 전면 파사드 디자인은 규칙과 불규칙의 긴장감으로 젊은 기업의 에너지를 담아 더픽트 사옥의 정체성을 구축한다.
외부는 수평 패턴의 화이트계열 롱브릭 타일이 사용됐으며, 내부는 노출 콘크리트가 주요 마감재로 사용되었다. 중정에는 내부에서 확장된 노출 콘크리트가 롱브릭 타일과 함께 교차된다. 저층부에는 더픽트의 새로운 로고칼라로부터 차용한 검은색 롱브릭 타일을 적용하여 상부의 화이트 계열 매스가 경쾌하게 보인다. 창과 루버는 수직성을 강조하여 수평적인 마감 패턴과의 대비를 통해 긴장감을 부여한다.

“The Pict,” an ICT company, has relocated from its original location across Chuncheon City Hall to a new, larger building in the old downtown area of Chuncheon, Hyoja-dong. The client wanted the new Headquarters to embody the company’s youthful energy and serve as a space that would bring new vitality to the old downtown area of Chuncheon.
The site is rectangular, oriented east to west, and borders a 20-meter-wide road on the west side. The other three sides are within a fire protection zone, limiting the placement of windows. Across from the west side, the only façade where windows could be placed without restriction, a visual filter was necessary due to the view of bars and nightlife venues across the street. Ensuring sufficient daylight was essential for the work environment, so a courtyard extending from the second to fourth floors was planned at the southeast corner to bring light into the building. This courtyard functions as a transitional space for light and a rest area for employees while ensuring a pleasantly lit environment for the childcare facility on the northeast side of the fourth floor.
The Pict Headquarters is composed of four floors. The rooftop parapet was designed at the same height as the other floors, creating an enclosed rooftop rest area for employees to take breaks and communicate. The first floor, with a 6-meter-high ceiling, is an open space serving as both an entrance hall and a café, and the circulation was planned to accommodate employees and café customers. The rear parking area was designed to enable the efficient flow of goods. The second and third floors are flexible office spaces with direct access to the courtyard. The fourth floor houses executive offices, a business management office, a large conference room, and a small childcare facility for employee welfare. The rooftop includes a stepped seating area connected to the top of the fourth-floor conference room, allowing for lounging and discussion, and the space below provides additional ceiling height in the conference room, improving spatial efficiency.
Due to fire safety regulations, the façade design minimized windows on three sides of the building, except for the west-facing side. The inner side of the courtyard is fully glazed, creating a sense of openness. The front of the building, the west-facing façade, was designed with large windows for each floor, and vertical louvers were installed. These louvers were arranged irregularly, creating unique and varied lighting for each floor. The louver design extends to the opening of the southeast courtyard, contributing to the building’s overall identity. The front façade, composed of 45 aluminum louvers spanning four floors, creates a dynamic balance between regularity and irregularity, capturing the energy of a young company and establishing the identity of The Pict Headquarters.
White-toned long-brick tiles with horizontal patterns were used for the exterior, while exposed concrete was used as the primary interior finishing material. In the courtyard, exposed concrete extends from the interior and intersects with the long-brick tiles. The lower section of the building features black long-brick tiles, inspired by The Pict’s new logo colors, providing contrast and making the white-toned upper mass appear buoyant. The windows and louvers emphasize verticality, creating a sense of tension through contrast with the horizontal tile patterns.















건축가 디엠 건축사사무소
위치 강원도 춘천시 효자동 652-16
용도 근린생활시설
대지면적 372.00㎡
건축면적 292.13㎡
연면적 792.49㎡
규모 지상 4층
건폐율 78.53%
용적률 213.61%
설계기간 2022. 8. - 2023. 2.
시공기간 2023. 3. - 2024. 2.
준공 2024
대표건축가 조준호
프로젝트건축가 조준호
디자인팀 김지우, 이주원
구조엔지니어 마루구조 기술사사무소
기계엔지니어 (주)선화설계사무소
전기엔지니어 (주)선화기술단사무소
소방엔지니어 (주)선화설계사무소
시공 (주)태준종합건설
발주자 (주)더픽트
사진작가 이한울
해당 프로젝트는 건축문화 2024년 9월호(Vol. 520)에 게재되었습니다.
The project was published in the September, 2024 recent projects of the magazine(Vol. 520).
September 2024 : vol. 520
Contents : RECORDS Worldwide Architectural Festival, ‘Serpentine Pavilion’ Meets in Seoul세계적인 건축 축제, ‘서펜타인 파빌리온’을 서울에서 만나다 : COMPETITION : RECENT PROJECT PICT. SQUARE(The PICT.‘s
anc.masilwide.com
'Architecture Project > Office' 카테고리의 다른 글
| DK&D Office Building Renovation (0) | 2024.09.05 |
|---|---|
| White Cliff (0) | 2024.09.04 |
| Mangwon 40426 (0) | 2024.09.02 |
| Ruian Qiaomao Tower (0) | 2024.08.27 |
| KEITOKU BLDG. (0) | 2024.08.20 |
마실와이드 | 등록번호 : 서울, 아03630 | 등록일자 : 2015년 03월 11일 | 마실와이드 | 발행ㆍ편집인 : 김명규 | 청소년보호책임자 : 최지희 | 발행소 : 서울시 마포구 월드컵로8길 45-8 1층 | 발행일자 : 매일



