
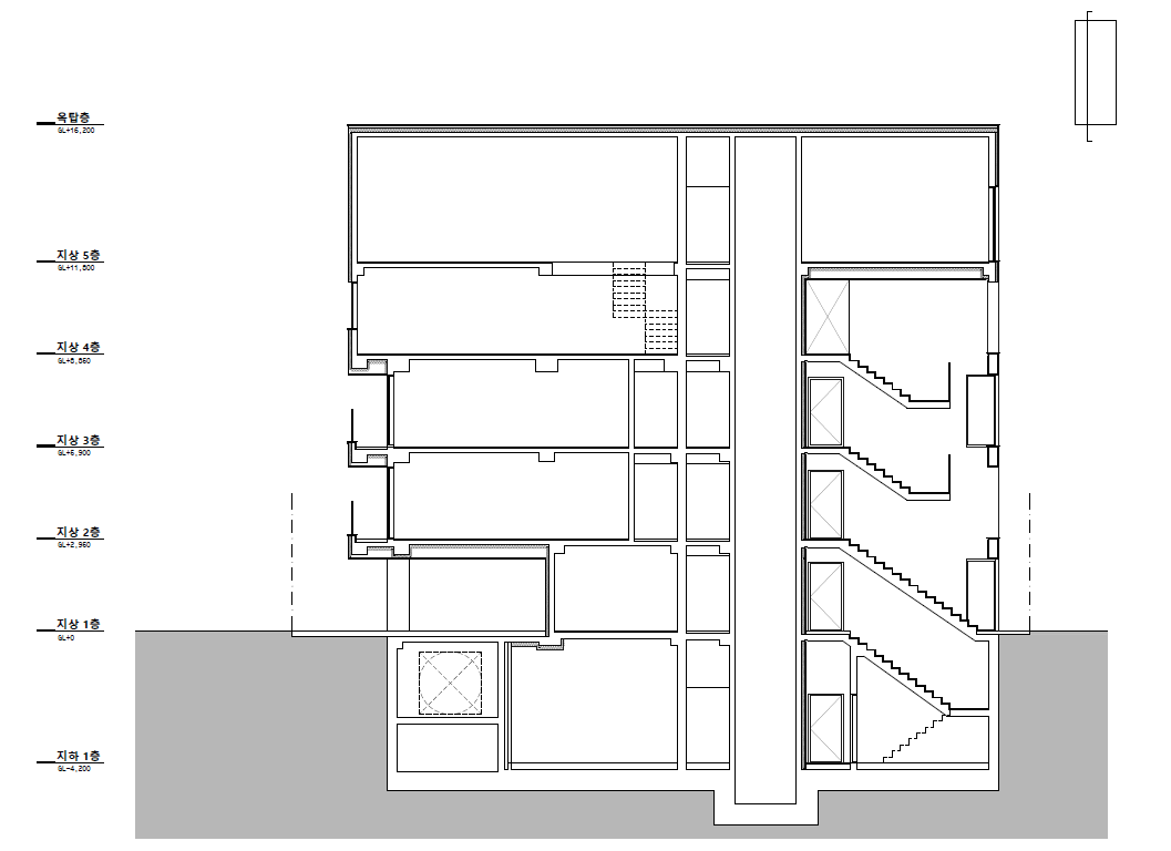
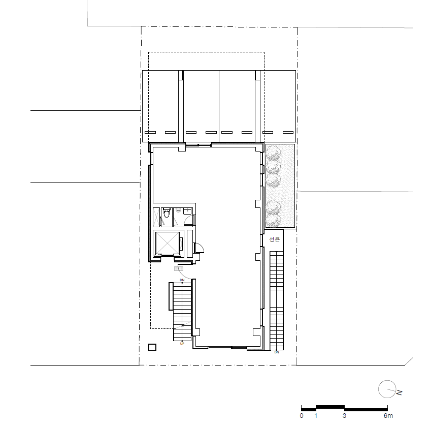
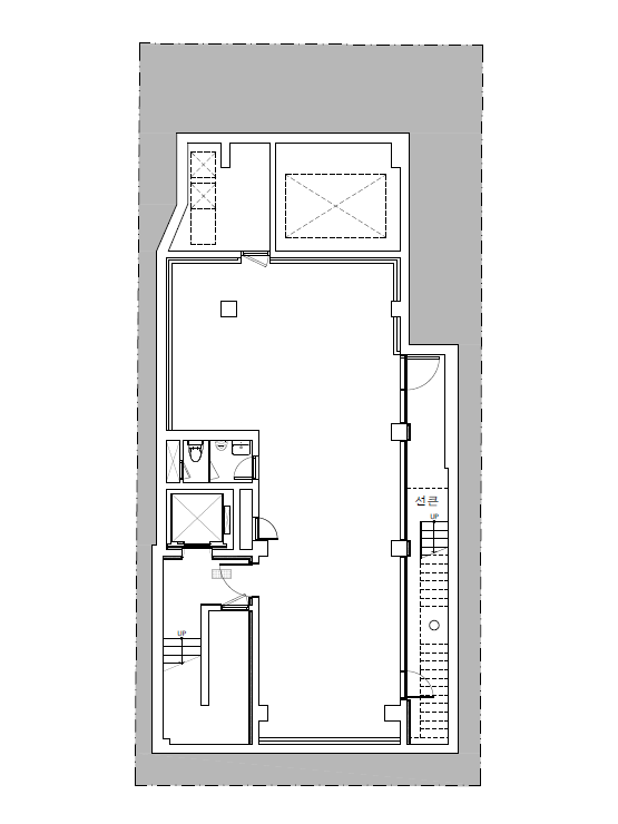
망원 40426은 망리단길이라 불리는 활발한 상업거리에 위치한 근린생활시설 건축물이다. 대지는 폭이 좁고 긴 사각형의 형태인데, 좁은 면이 대로변에 면해있고 정북 방향의 긴 면은 일조권 사선제한을 받아 상업적인 매력을 나타내기에는 불리한 조건이었다. 건축가는 도로를 지나는 사람들에게 시각적, 공간적인 매력을 느끼게 하는 파사드 디자인에 초점을 맞추었다. 일반적으로 공간의 효율을 위해 구석으로 배치하는 주계단을 외부 계단으로 만들어 전면에 적극적으로 노출시켜, 인접한 거리와 입체적으로 공간적인 관계를 구축하도록 계획했다. 4층까지 연결된 외부 계단은 5층 규모의 매스를 지탱하는 구조 역할을 겸한다. 건물의 외형을 따라 입면화된 가벽을 거리에 노출시키자 상업 건물의 개방성과 영역성 사이에 느슨한 영역을 만들어 모호한 경계가 형성되었다. 가벽으로 둘러싸인 외부 계단 영역은 무채색의 벽돌타일 외장과 대비되는 선명한 원색의 도장으로 마감하여 시각적 흡입력을 가지게 했다. 프레임을 없앤 모서리의 코너창은 외부 계단 공간과 중첩되어 계단을 오르내리는 사람들과 시각적으로 소통한다. 거리에서부터 가벼운 경계의 가벽을 지나면 외부 계단을 따라 자연스럽게 4층의 옥상정원까지 연결된다. 작지만 입체적으로 공공과 반응하는 공용 공간으로서 입체적인 확장 영역으로 작동하길 기대하였다. 전면에서 건물의 후면도로까지 관통하는 북측의 작은 조경 공간에는 선큰을 두어 쾌적한 지하 공간을 만들었다. 또한 사선의 영향으로 가용면적이 좁은 4, 5층은 내부 계단으로 연결하여 공간의 효율을 높였다.






Mangwon 40426 is a neighborhood commercial resource located on Mangridangil, a bustling commercial street. The site is a long, narrow rectangle, with the short side facing the main road and the long side facing due north, making it subject to sunlight setback restrictions, resulting in less favorable commercial appeal. The architect focused on designing a facade that would provide visually and spatially attract passersby. Typically, the main staircase would be placed in a corner for efficiency, but in this case, it was designed as an external staircase, prominently exposed at the front to establish a three-dimensional relationship with the adjacent street. The staircase, which extends to the fourth floor, also serves as a structural support for the five-story mass of the building. Exposing the facade-like screen wall along the building's exterior created a blurred boundary between the openness and territoriality of a commercial building. The external staircase area, surrounded by the screen wall, was finished with bright primary colors that contrast with the neutral-toned brick tiles of the exterior, creating visual attraction. The corner windows, without frames, overlap with the external staircase space allowing visual interaction with those ascending and descending the stairs. From the street, after passing through the light boundary of the screen wall, one can naturally follow the external staircase to the rooftop garden on the fourth floor. Although small, this space is intended to be a three-dimensional extension that interacts with the public. A small landscaped space on the north side, which penetrates from the front to the rear road, includes a sunken area which creates a pleasant underground place. Additionally, the fourth and fifth floors, which have limited usable space due to the setback angle, are connected by internal stairs to maximize efficiency.












건축가 (주)오엠엠건축사사무소
위치 서울특별시 마포구 망원동 404-26
용도 근린생활시설
대지면적 252.00㎡
건축면적 150.83㎡
연면적 601.57㎡
규모 지하 1층, 지상 5층
건폐율 59.85%
용적률 191.03%
설계기간 2020. 8. - 2021. 2.
시공기간 2021. 4. - 2022. 5.
대표건축가 이종희, 김원영, 박남규
프로젝트건축가 이종희, 권순정(아주대학교)
디자인팀 이창훈, 배지훈, 장정인
구조엔지니어 새창구조
기계엔지니어 (주)정연엔지니어링
전기엔지니어 (주)정연엔지니어링
시공 아뜰리에 건설(주)
발주자 권용희 외 2인
사진작가 김창묵
해당 프로젝트는 건축문화 2024년 8월호(Vol. 519)에 게재되었습니다.
The project was published in the October, 2024 recent projects of the magazine(Vol. 519).
August 2024 : vol. 519
Contents : SKETCH Imagine the Details / Pavel Muradov 디테일을 상상하기 / 파벨 무라도프 : COMPETITION : RECENT PROJECT Anyang Logistics Center / SAC INTERNATIONAL, LTD. + JAS ARCHITECTS안양물류센터 / (주)서
anc.masilwide.com
'Architecture Project > Office' 카테고리의 다른 글
| White Cliff (0) | 2024.09.04 |
|---|---|
| PICT. SQUARE(The PICT.‘s Company Building) (0) | 2024.09.03 |
| Ruian Qiaomao Tower (0) | 2024.08.27 |
| KEITOKU BLDG. (0) | 2024.08.20 |
| SK hynix Cheongju SUPEX Center (0) | 2024.08.15 |
마실와이드 | 등록번호 : 서울, 아03630 | 등록일자 : 2015년 03월 11일 | 마실와이드 | 발행ㆍ편집인 : 김명규 | 청소년보호책임자 : 최지희 | 발행소 : 서울시 마포구 월드컵로8길 45-8 1층 | 발행일자 : 매일



