
디케이앤디사옥은 1989년 8월에 지하 1층, 지상 5층 규모로 지어졌다. 기존 건축물은 지하 1층부터 지상 4층까지는 철근 콘크리트 라멘조이고, 지상 5층만 연화조(조적조)라는 구조적 특성을 가지고 있다. 공간 활용에서 크게 부족하지 않아 신축 대신 리모델링으로 결정하여 진행했다.
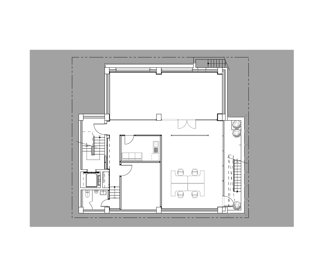
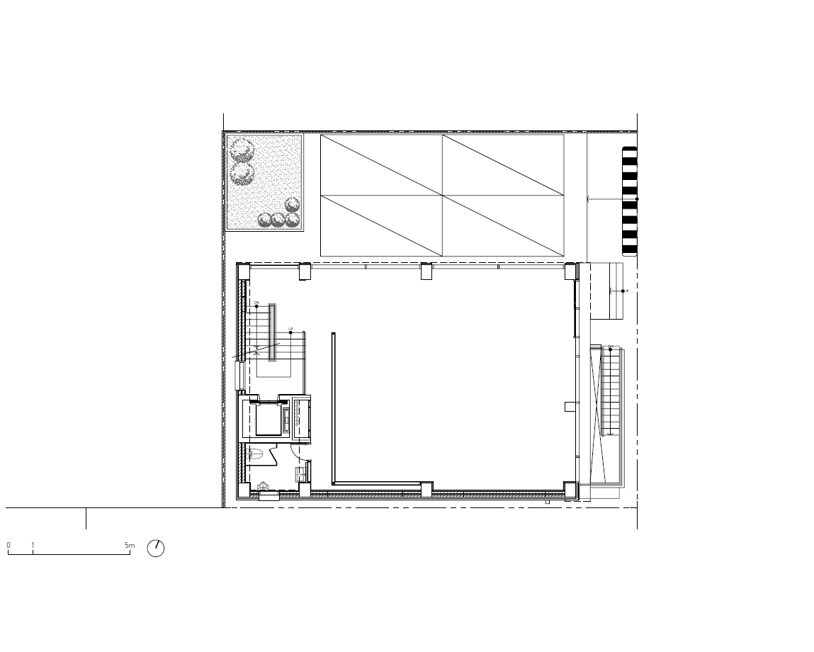
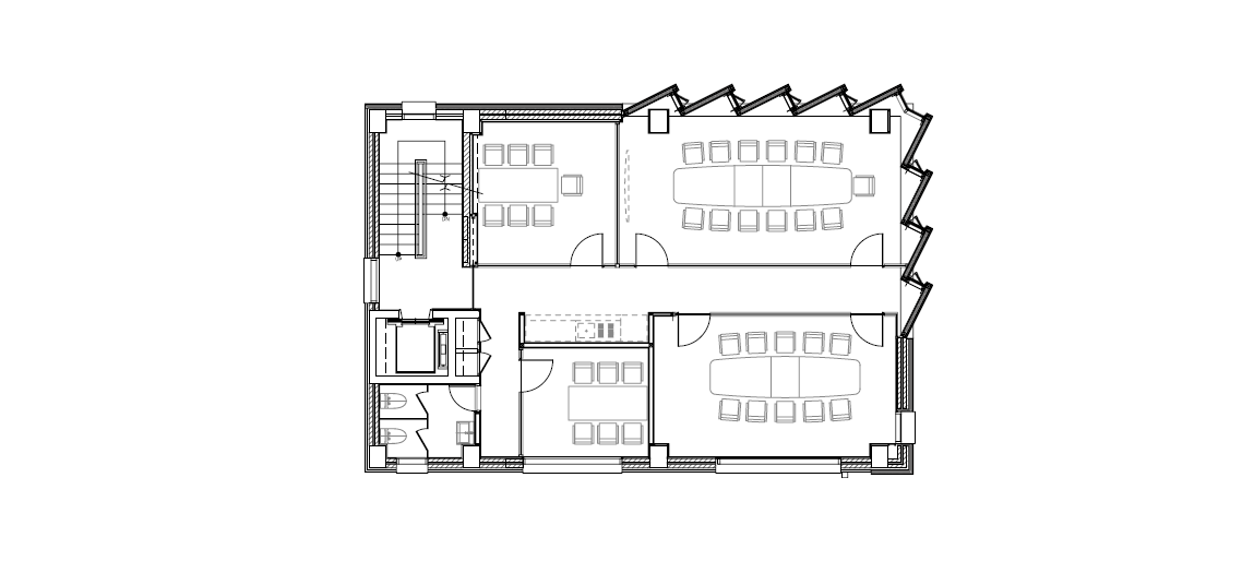
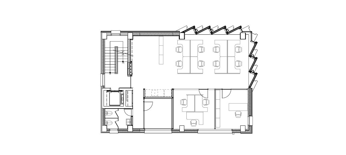
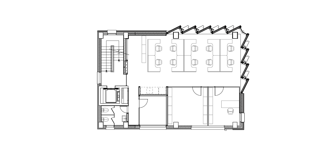
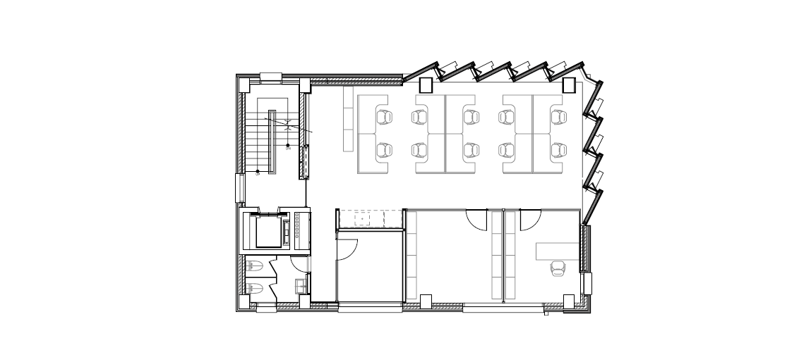
공간 구조를 개선하기 위해 층별 분리임대가 아닌 단일회사의 사옥으로 변경하고, 주출입구를 도로측으로 옮겨 접근성을 높였다. 기존 주출입구로 진입하던 1.5m 통로 공간을 주차공간으로 활용할 수 있었다. 다음으로 전면 수평주차장에 썬큰을 만들고 지하층 비상탈출구를 전면으로 옮겨 지하공간의 접근성을 높였다. 자연스럽게 지하층에 자연채광과 환기가 가능해지며 환경개선을 이뤘다. 이 두 가지의 조정으로 확보된 북측 옥외 공간에는 4대의 주차공간을 통합함으로써 자연스럽게 주차효율을 높일 수 있게 되었다. 외부로 빠져나간 옥내 주차장은 지상 1층 공간으로 사용하여 실내공간의 면적 효율을 높였다. 지상 5층은 개인 공간이 필요한 임원진과 경영진이 근무하는 공간으로 계획하고 기존 연화조를 존치하면서 최소한만의 조적벽체 이동을 통해 공간을 재구성할 수 있었다. 섬유 회사의 정체성을 반영한 외관 조형은 새로운 외장재(새옷)의 들춰진 외부 스킨들이 가로를 지나다니는 사람들에게 위치에 따라 서로 다른 다양한 표정의 얼굴을 가지게 한다.

The DK&D Headquarters was constructed in August 1989, with one basement level and five stories above ground. The structure of the original building is reinforced concrete frame from the basement up to the fourth floor, while the fifth floor was built using masonry. Since the space was still functional, it was decided to renovate rather than rebuild.
To improve the building’s layout, it was converted from a multi-tenant to single-tenant structure, and the main entrance was relocated to the roadside to enhance accessibility. The 1.5-meter pathway that previously served as the main entrance was repurposed for parking space. A sunken garden was added in the front parking area, and the basement emergency exit was moved to the front. This improves access to the basement and allows for natural light and ventilation, significantly upgrading the basement environment. With these adjustments, the newly created outdoor space on the north side accommodated four parking spots, naturally increasing parking efficiency. The indoor parking area was moved outside, and the resulting space on the first floor was utilized to increase indoor space efficiency. The fifth floor was planned as a private workspace for executives and senior management. By preserving the existing masonry structure, the space was reconfigured with minimal movement of the masonry walls. The exterior design reflects the company’s identity as a textile manufacturer, with the new façade (a “new outfit”) featuring layers of external skins. These layers create a face with varying expressions, offering a dynamic visual to passersby.














건축가 omm architects + Seongwon Jeong(Sejong University)
위치 서울특별시 강남구 도곡동 546-6,7번지
용도 근린생활시설
대지면적 262.80㎡
건축면적 131.13㎡
연면적 617.47㎡
규모 지하 1층, 지상 5층
건폐율 49.90%
용적률 234.96%
설계기간 2021. 3. - 10.
시공기간 2021. 10. - 2022. 4.
대표건축가 박남규, 김원영, 이종희
프로젝트건축가 박남규(주.오엠엠건축사사무소) / 정성원(세종대학교)
디자인팀 이창훈, 양욱진
구조엔지니어 드림구조
기계엔지니어 (주)정연엔지니어링
전기엔지니어 (주)정연엔지니어링
시공 (주)이립건설
발주자 (주)디케이앤디
사진작가 김창묵
해당 프로젝트는 건축문화 2024년 9월호(Vol. 520)에 게재되었습니다.
The project was published in the September, 2024 recent projects of the magazine(Vol. 520).
September 2024 : vol. 520
Contents : RECORDS Worldwide Architectural Festival, ‘Serpentine Pavilion’ Meets in Seoul세계적인 건축 축제, ‘서펜타인 파빌리온’을 서울에서 만나다 : COMPETITION : RECENT PROJECT PICT. SQUARE(The PICT.‘s
anc.masilwide.com
'Architecture Project > Office' 카테고리의 다른 글
| KKOMBI Building (0) | 2024.10.16 |
|---|---|
| Onuelnal Ziggurat (0) | 2024.09.06 |
| White Cliff (0) | 2024.09.04 |
| PICT. SQUARE(The PICT.‘s Company Building) (0) | 2024.09.03 |
| Mangwon 40426 (0) | 2024.09.02 |
마실와이드 | 등록번호 : 서울, 아03630 | 등록일자 : 2015년 03월 11일 | 마실와이드 | 발행ㆍ편집인 : 김명규 | 청소년보호책임자 : 최지희 | 발행소 : 서울시 마포구 월드컵로8길 45-8 1층 | 발행일자 : 매일



