


The land where the house is located has a regular, longitudinal shape and is perpendicular to Campo da Bola Street, in the parish of Mundão, located northeast of Viseu. The solar orientation (from the street to the interior) is West - East. Regarding the topography, the plot has a steep slope, ascending from the entrance. This morphological condition of the land influenced the programmatic and volumetric shape of the building.
With a decidedly intimate design, the house is essentially oriented towards the east-facing garden, where all the living spaces are located. This arrangement establishes a perfect connection with the outdoor space, in harmony with the leisure area that includes a barbecue and a swimming pool.



Regarding materials, the house was built using a combination of elements that provide solidity, coziness, durability, and a timeless design. The main material used is reinforced concrete, offering austere plasticity and ensuring its stability over time. The natural wood slats used both outside and inside create a cozy environment and integration with the surrounding landscape.
The constantly changing natural light, which penetrates through the glazed openings, the patio, and the skylights, continuously transforms the spaces and creates a mutable and dynamic atmosphere throughout the day and across the different seasons of the year, promoting tranquility and family refuge.
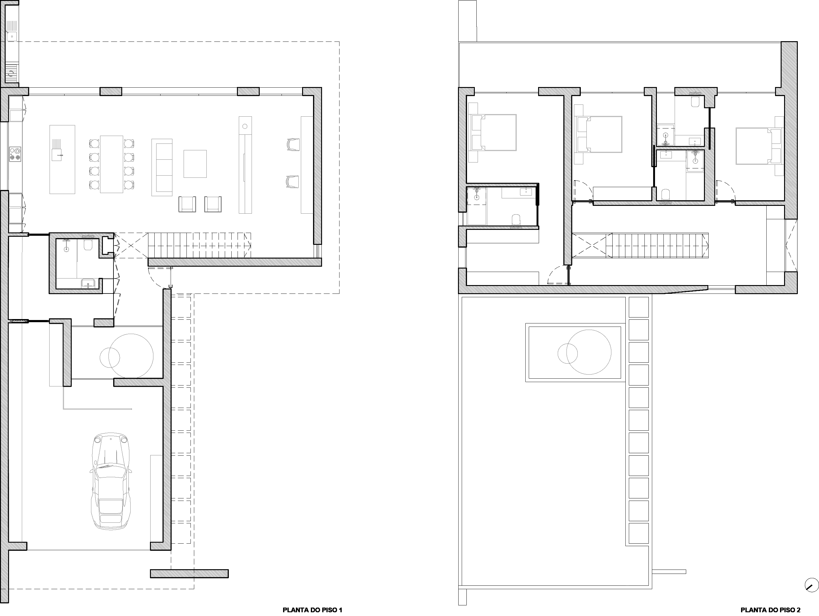
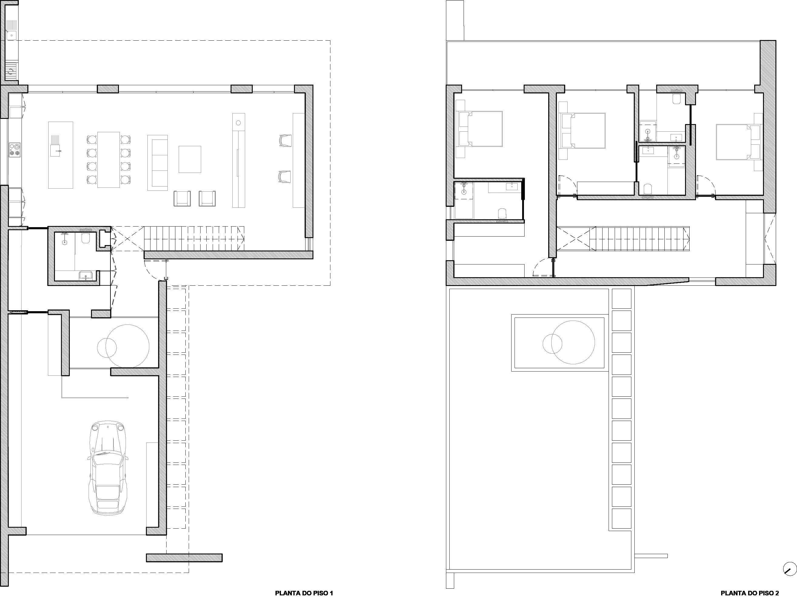
As for the house's layout, the interior spatial distribution is separated by function and floors. The social/service area on the ground floor consists of the garage and laundry room, separated by an exterior patio facing the entrance hall, a service bathroom, an open space with kitchen, dining room, and living room, and also an office.
On the first floor, the private area consists of a living/reading area, bedrooms, all with private bathrooms, and the master suite with a walk-in closet. All bedrooms have direct access to an east-facing balcony overlooking the pool.



건축가 Um para Um
위치 비세우, 포르투갈
용도 단독주택
연면적 370 ㎡
준공 2023
대표건축가 Paulo Pereira Teixeira
협업 Vitor Glória Soares, Luís Filipe Marques, João Pedro Pedrosa, Inês Dias Lopes
인테리어 디자인 Christal Oliveira
엔지니어링 및 조경 Um para Um
사진작가 IVO TAVARES STUDIO
'Architecture Project > Single Family' 카테고리의 다른 글
| House IV (0) | 2024.08.28 |
|---|---|
| Roam Ranch House (1) | 2024.08.27 |
| Granero House (0) | 2024.08.26 |
| ITZAE (0) | 2024.08.12 |
| Gong's House (0) | 2024.08.05 |
마실와이드 | 등록번호 : 서울, 아03630 | 등록일자 : 2015년 03월 11일 | 마실와이드 | 발행ㆍ편집인 : 김명규 | 청소년보호책임자 : 최지희 | 발행소 : 서울시 마포구 월드컵로8길 45-8 1층 | 발행일자 : 매일


