

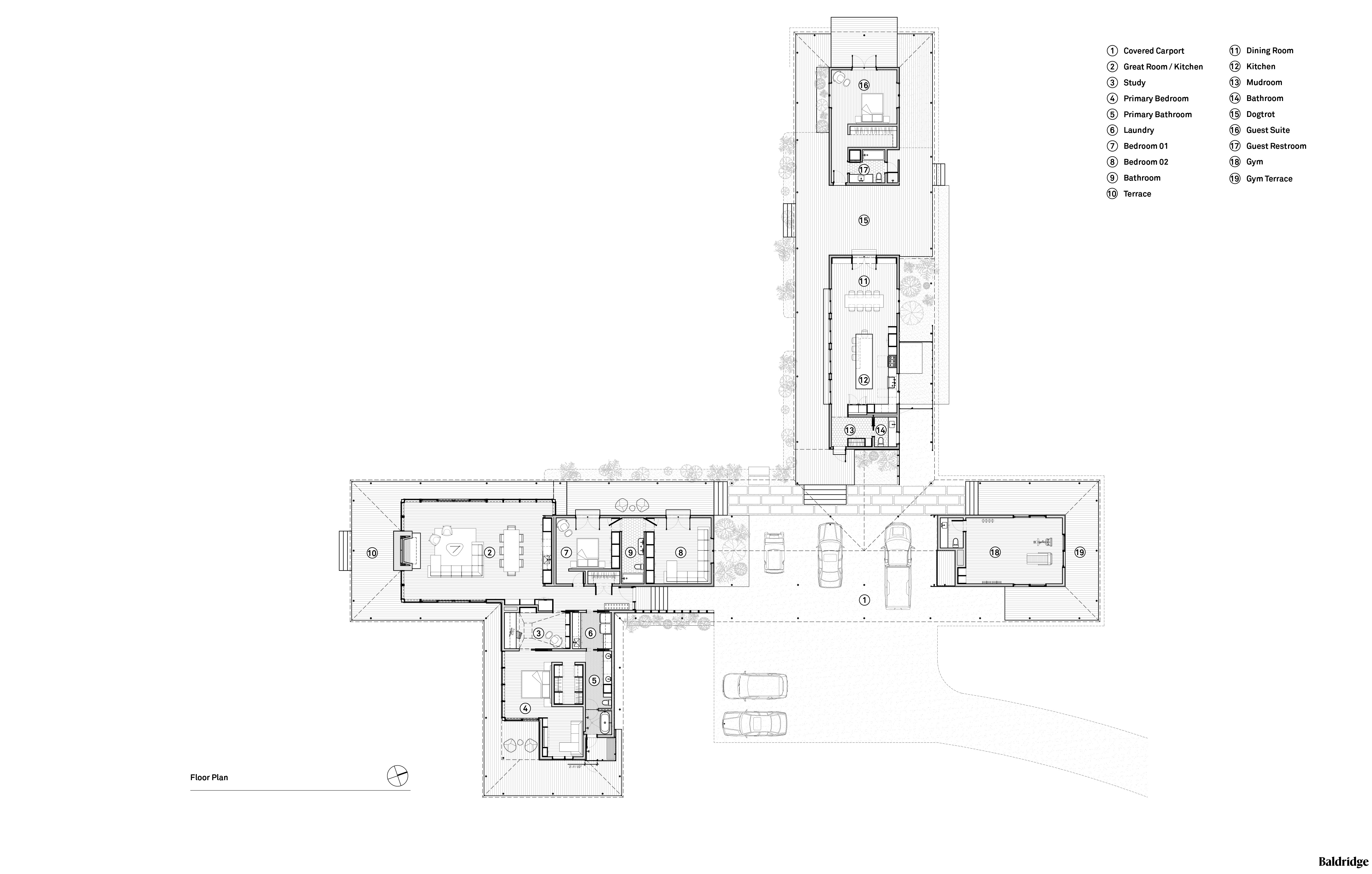
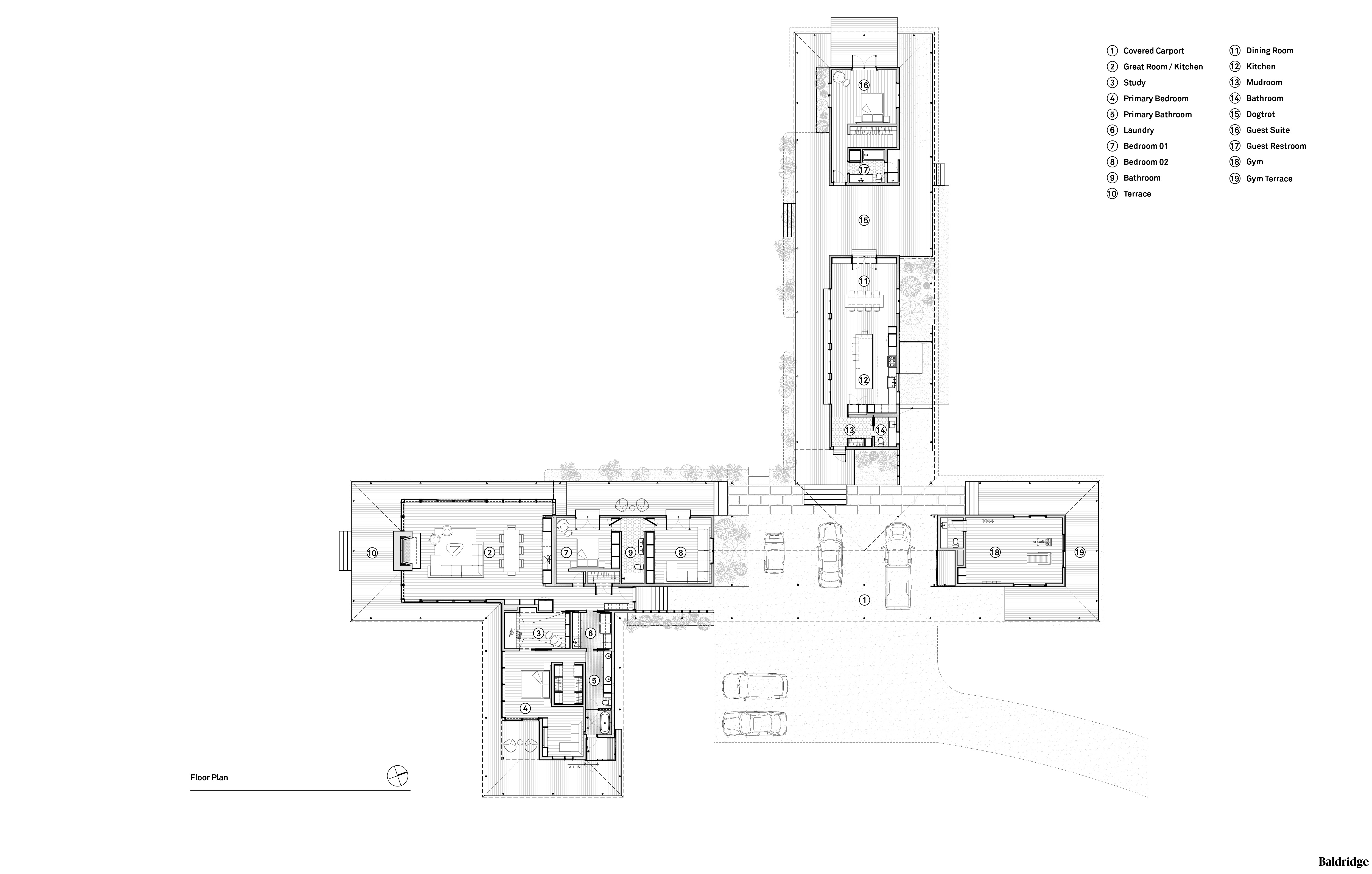
Roam Ranch is a 4,362-square-foot single-family home on a working ranch outside of Fredericksburg, Texas. It is a testament to rigorous modern design presented in a central Texas vernacular in its form, finishes, and spirit—a unique assembly of contemporary and traditional design.
The clients had previously commissioned the firm for a stylistically modern Austin home. During the pandemic, the couple acknowledged that they were dissatisfied with city life and again commissioned the firm to design a new home on the ranch where they sustainably raise bison and turkeys under the name “Force of Nature.” Unlike their city house, this new home also needed to function for their business operations, including podcasts and educational events.




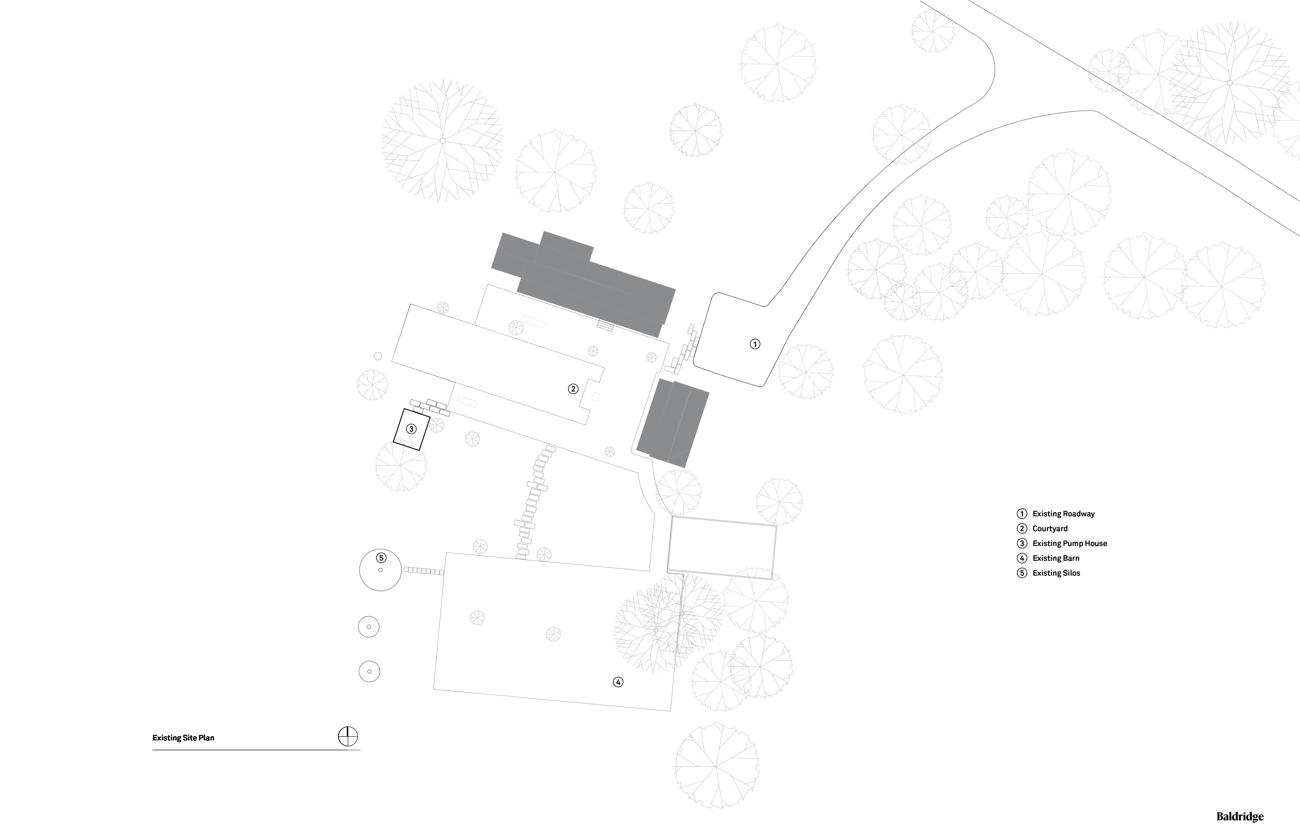
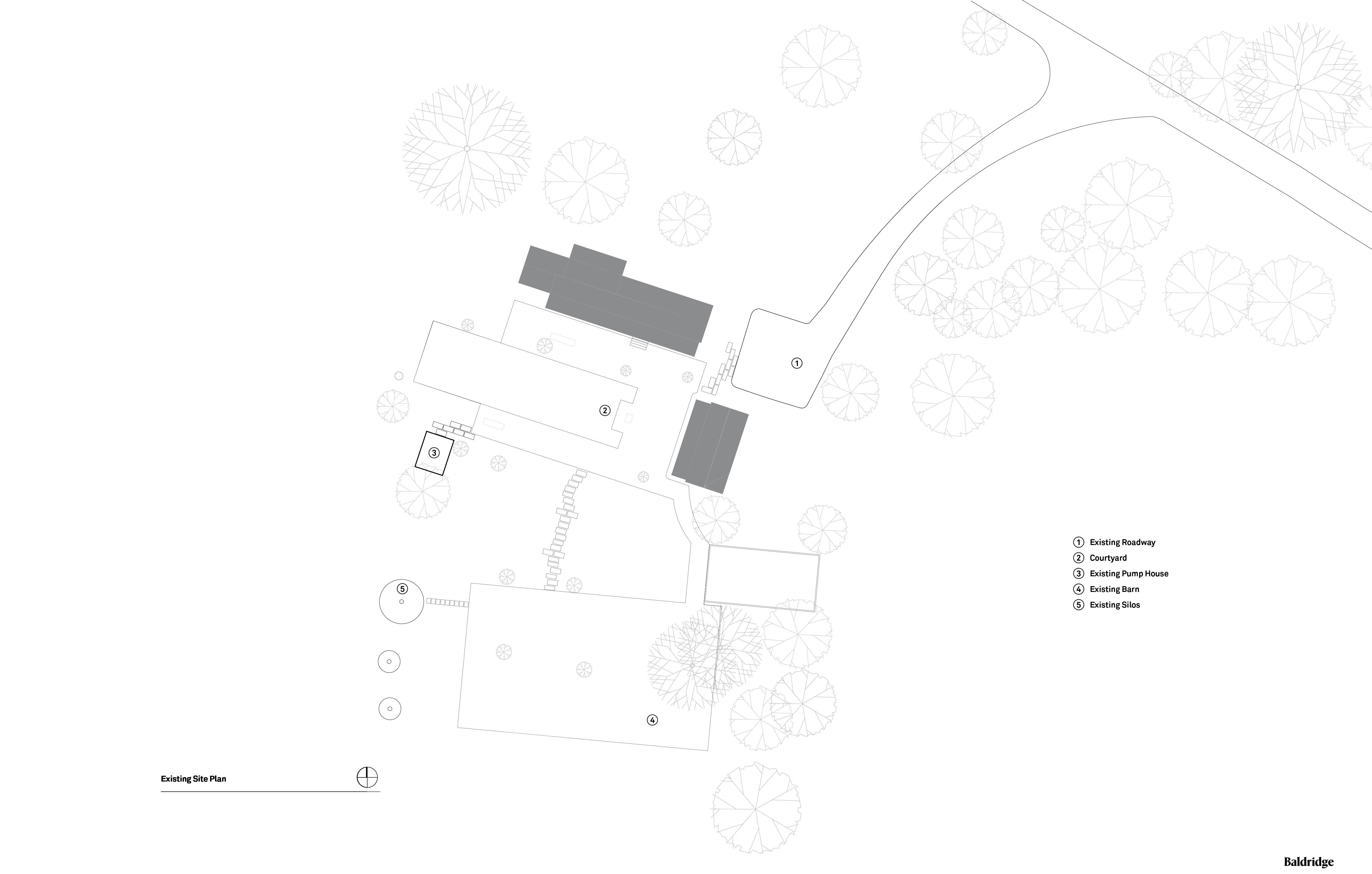
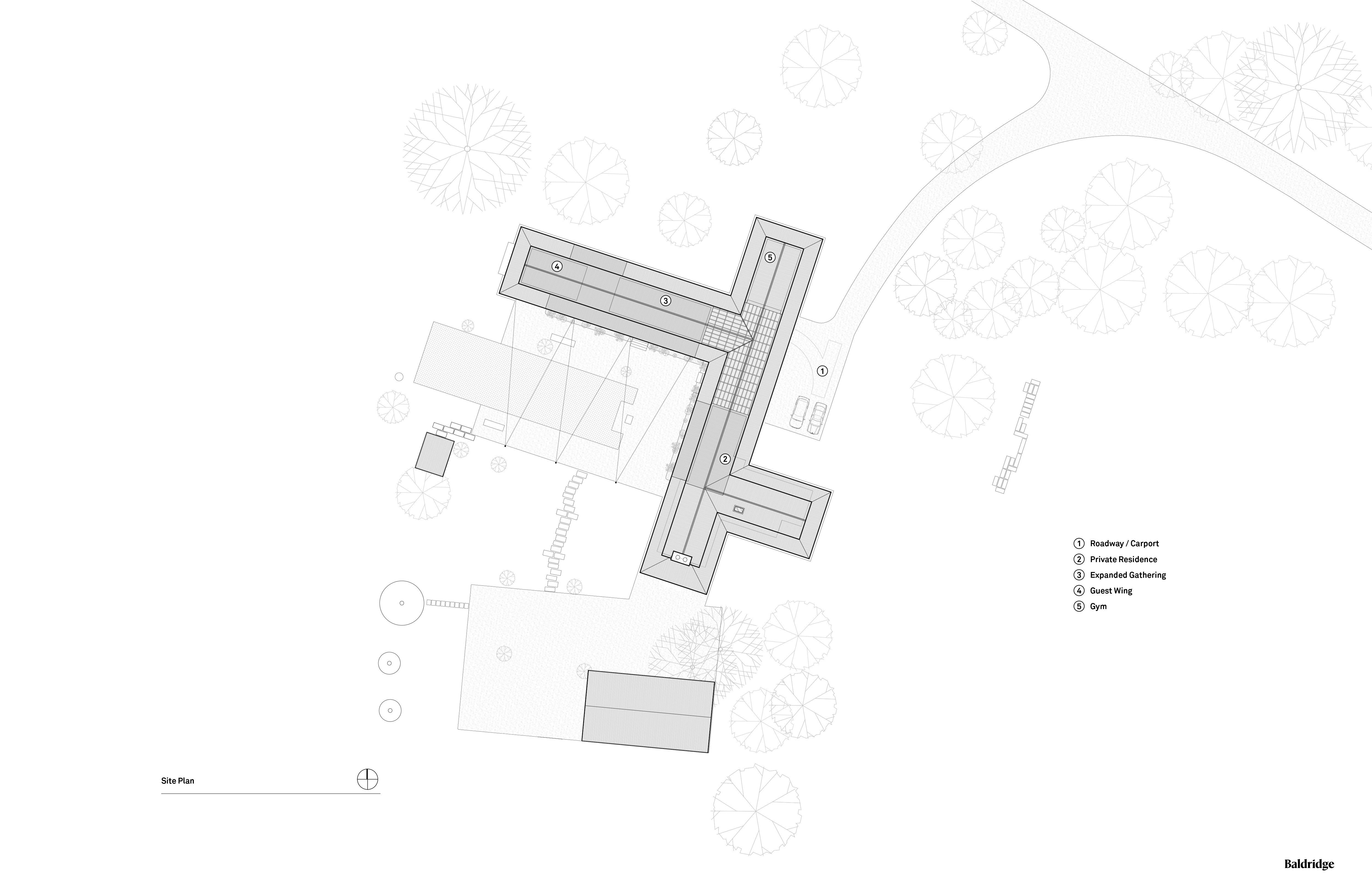
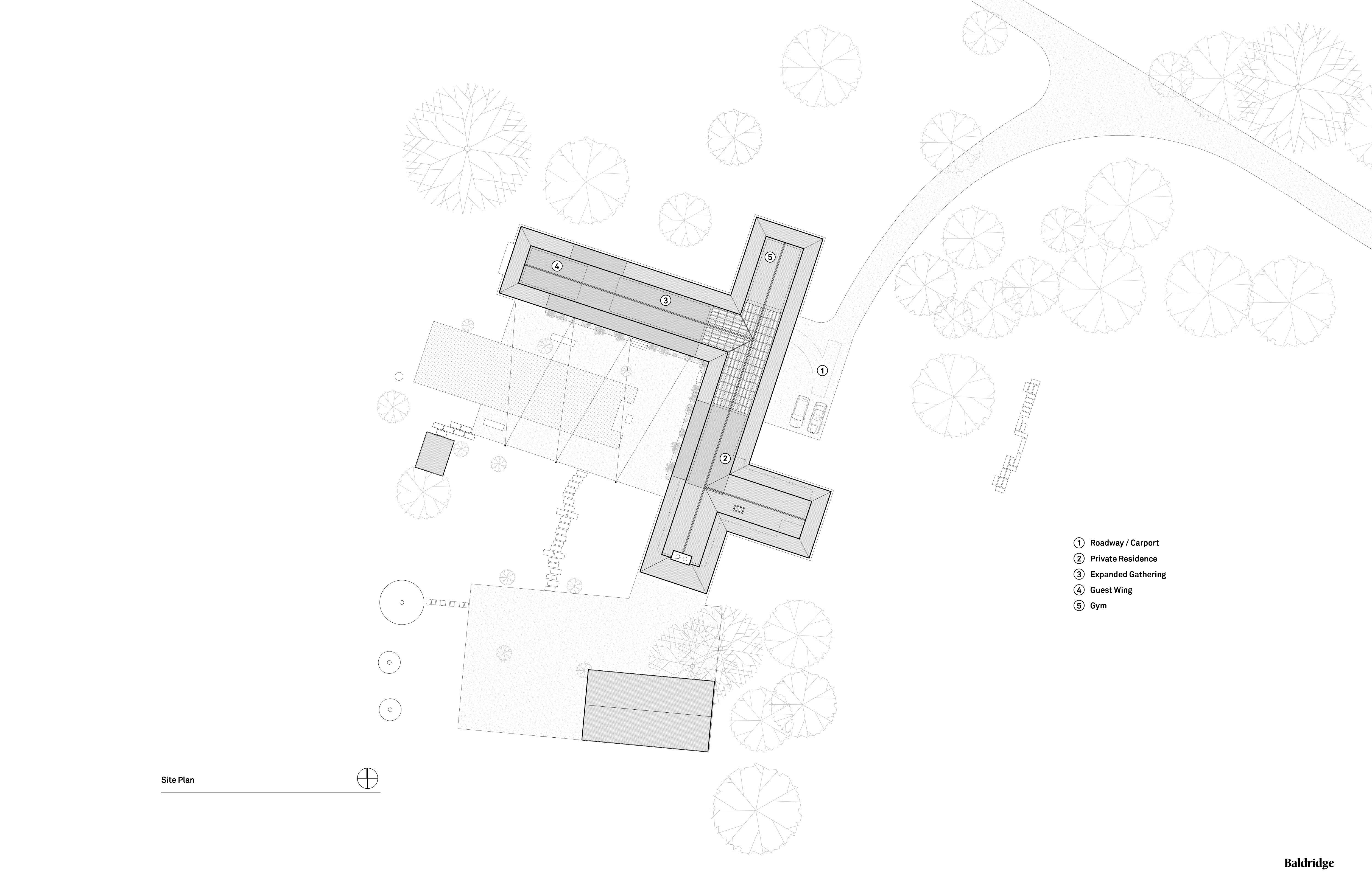
The clients were adamant that this new dwelling retain a true ranch feel, while accommodating certain modern flourishes and amenities. Above all, both wanted to retain the two buildings they had built on the property—a kitchen / dining structure and a detached single bedroom volume.
The resulting design preserves a conceptual legibility. Bedrooms, carport, kitchen, offices, great room, and gym all reside as volumes under a single roof gesture. New corrugated polycarbonate roofing matching the preexisting roof to create a stunning entry / carport, while allowing light into the existing rooms. Together, these spaces become the focal point that is, itself, a distillation of a central Texas dog-trot.
The ingenuity of the plan was born of pragmatic constraints. At all times, the clients needed to live in the structures amidst the chaos and mess of construction…with a newborn, no less. The design needed to contemplate the finished structure, but also the necessary logistics to accommodate uninterrupted occupation. While those logistics played a role in the design, one cannot see that in the resulting structure—it is fully resolved and clean. This is especially true in the small moments; the way the raw stone hearth allows the floor to seamlessly slip beneath with a 1/4” reveal or the way the flitched wood and steel structure invisibly allows for additional support at the compound cantilevers.



건축가 Baldridge Architects
위치 프레데릭스버그, 미국
용도 주택
연면적 4362 ft²
준공 2022
프로젝트 건축가 Burton Baldridge
수석 디자이너 Drew McMillian
프로젝트 매니저 Brian Bedrosian
시공 Duecker Construction Company
구조 엔지니어링 Dennis Duffy Engineering
조경 디자인 Campbell Landscape Architecture (preexisting)
사진작가 Casey Dunn
'Architecture Project > Single Family' 카테고리의 다른 글
| Freebird Residence (0) | 2024.08.30 |
|---|---|
| House IV (0) | 2024.08.28 |
| Casa em Mundão (0) | 2024.08.27 |
| Granero House (0) | 2024.08.26 |
| ITZAE (0) | 2024.08.12 |
마실와이드 | 등록번호 : 서울, 아03630 | 등록일자 : 2015년 03월 11일 | 마실와이드 | 발행ㆍ편집인 : 김명규 | 청소년보호책임자 : 최지희 | 발행소 : 서울시 마포구 월드컵로8길 45-8 1층 | 발행일자 : 매일



