
잇재가 위치한 지역은 1980년대 대규모 택지지구로 개발된 신시가지 아파트 단지와 인접하여 다가구와 단독주택이 많은 곳이다. 인근 지역의 주거 형태는 대체로 다세대 및 다가구주택으로 형성되어 있지만, 사람의 통행량이 많지 않아 다소 조용하고 무관심한 이미지를 갖고 있었다. 건축주는 이러한 동네 속에서 기존의 마을과는 다른 건축적인 언어로 마을에 과감한 신호를 주기를 원했다. 동시에 집을 통해 좋은 인연으로, 더 좋은 세상으로 연결되길 바라는 건축주의 오랜 소망을 실현했다. ‘잇재’라는 이름은 낯선 동네의 새로운 마을 공동체 일원으로서 다음을 이어 나갈 수 있길 바라는 마음으로 지었다.
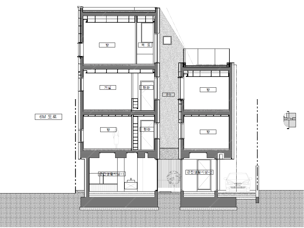
건축가는 모서리 대지가 지닌 잠재적 가능성을 찾고자 수차례 입면 스터디를 거쳤다. 작은 땅에서 마을과의 관계, 세대 간의 관계, 도시 속 자연 환경과의 관계를 제공하고자 폭넓은 개념으로 작업이 진행되었다. 잇재는 골목길에서 과감한 시각적 액티비티를 구현하고, 규제에 따른 도시 주거공간의 관습화를 탈피하는 것을 목표로 설계되었다. 이를 위해 세 가지 구체적인 디자인 전략을 취하였다.
Urban corner: 골목을 연결하다
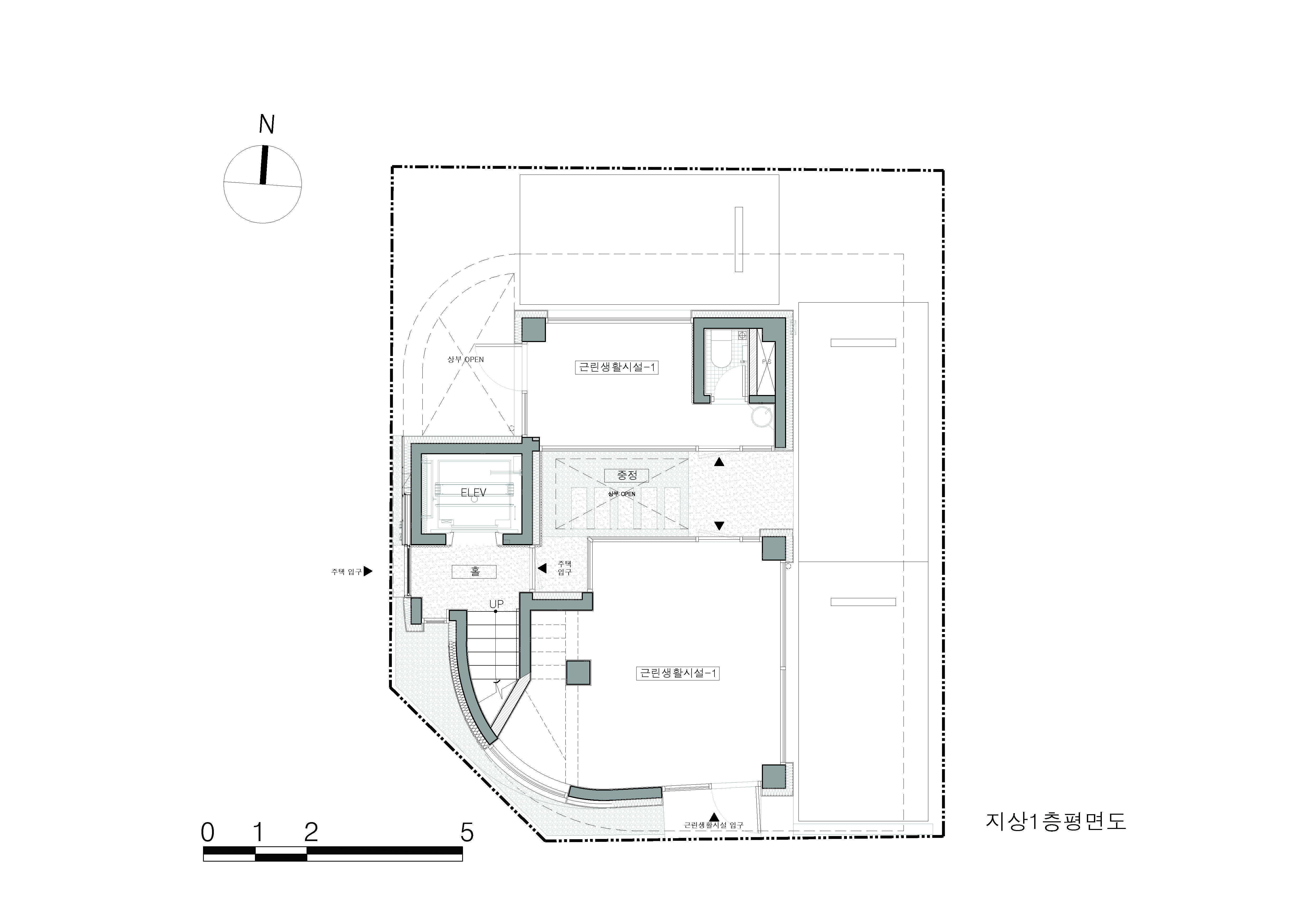
잇재는 골목과 건축물의 직접적인 물리적 연결은 없지만 기존 동네와의 시각적 연결성을 구현하여 지속성을 유지한다. 대지는 2면이 도로에 면한 코너의 각진 땅이다. 이러한 모서리의 장점을 이용하여 주택의 모양은 보행자의 접근 방향에 따라 점진적인 변화를 가진다. 코너부 세 개의 곡선형 매스는 미세하게 분절되다가 다시 하나로 합쳐진다. 멀리서 바라보고, 지나치고, 가까이서 바라볼 때의 상황별로 동네 골목에 다른 풍경을 선사한다.
White house: 빛을 들인 하얀 집
잇재는 각기 다른 재료와 형태를 가진 동네 풍경에서 눈에 띄는 하얀 건물이 되었다. 높은 밀도와 복잡한 동네에서 시각적 여유를 준다. 잇재는 재료의 강한 물성이 아닌 빛의 변화로 채워지는데, 내부는 열린 중정과 다른 크기를 가진 창을 통해 곳곳으로 빛이 스며들고 시간별, 계절별로 다른 빛을 갖게 된다.
Open community: 도심 속 열린 집
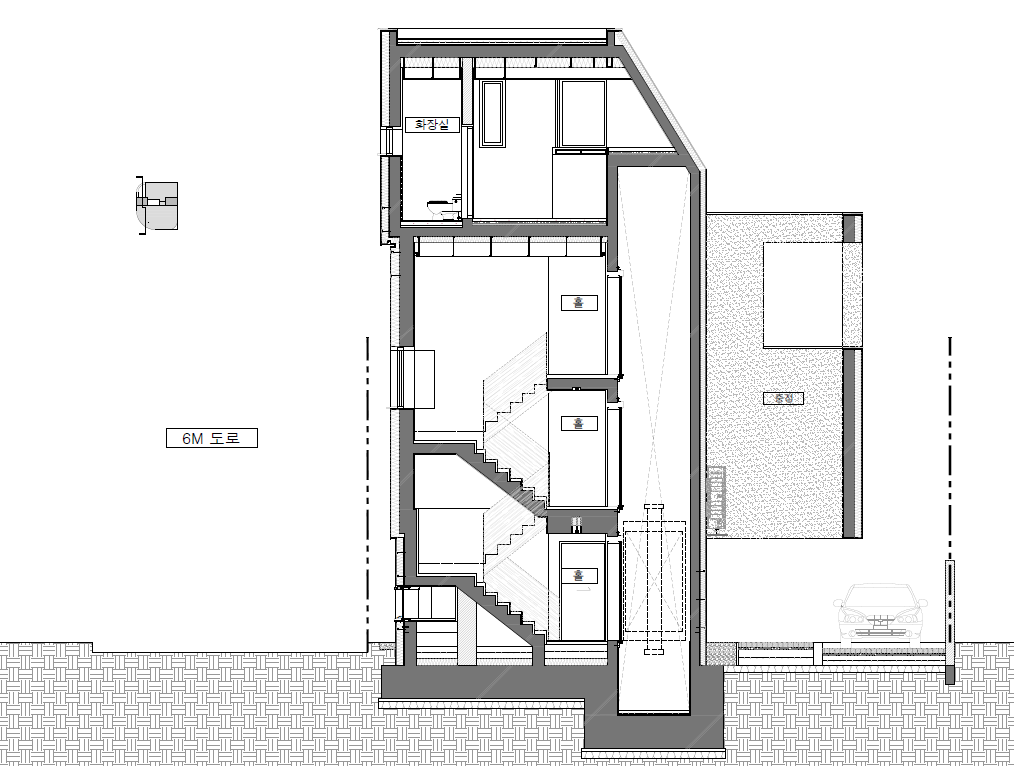
건축물 가운데는 전층으로 열린 중정이 핵심 공간이다. 일반주거지역의 차면창의 규제를 피해 내부에 중정과 통창을 설치하여 모든 층의 공간들이 중정 공간을 향해 열려있다. 벽을 향해 반사되는 간접광은 모든 공간에 빛을 공급하며, 세대 간의 시각적인 커뮤니티를 형성하는 잇재만의 공간이 된다.




ITZAE is located adjacent to a city apartment complex developed as a large-scale residential district in the 1980s, and is in an area with many multi-family and single-family houses. The residential forms of the surrounding neighborhoods are generally multi-family and multi-household homes, but due to the low foot traffic, the area had a somewhat quiet and indifferent image. The client wanted to project a bold signal to the neighborhood with an architectural language different from that of the existing village. At the same time, the client's long-standing wish was to connect people to a better world through the house, fostering good relationships. The name “ITZAE” was given with the hope that it would continue as a new member of the village community in this unfamiliar neighborhood.
The architect conducted several elevation studies to determine the potential possibilities of the corner site. The work on this small plot of land was carried out with a broad concept to provide relationships with the village, between generations, and with the natural environment in the city. Itzae was designed to implement bold visual activities in the alleyways and to break away from the conventionalization of urban residential spaces regulated by laws. To achieve this, three specific design strategies were adopted.
Urban corner: Connecting the Alleys
There is not a direct physical connection between the alleys and Itzae, but it maintains continuity by implementing visual connectivity with the existing neighborhood. The site is a corner lot with two sides facing the road. Utilizing the advantages of this corner, the shape of the house gradually changes subject to the direction of pedestrian's approach. The three curved masses at the corner subtly segment and then merge back into one. Depending on whether it is viewed from afar, passed by, or seen up close, it offers different setting for the neighborhood alley.
White house: A White House Filled with Light
ITZAE became a striking white building amidst a neighborhood constructed from various materials and forms, and provides visual relief in a dense and complex neighborhood. ITZAE is filled with changes in light rather than the strong physical properties of materials. Light penetrates various parts of the interior through the open courtyard and differently sized windows, offering different lighting conditions based on the time of day and season.
Open community: An Open House in the City
At the center of the building, an open courtyard spans all floors and serves as the core space. To circumvent the regulations on privacy windows in residential areas, the design incorporates the courtyard and full-length windows, which open toward the courtyard. Indirect light reflected off the walls supplies light to all areas, creating a unique space that forms a visual community between generations.

















건축가 건축사사무소 예하파트너스
위치 서울특별시 양천구 목동 732-24
용도 단독주택(다가구주택)
대지면적 133.29㎡
건축면적 79.94㎡
연면적 252.47㎡
규모 지상 4층
건폐율 59.97%
용적률 189.41%
설계기간 2021. 8. - 2022. 2.
시공기간 2022. 3. - 12.
준공 2023. 1.
대표건축가 조한재
프로젝트건축가 박효진
디자인팀 송승곤, 박혜인, 김동화
구조엔지니어 SDM 구조기술사사무소
기계엔지니어 코담기술단
전기엔지니어 코담기술단
시공 아르케디자인빌드
발주자 박정현
사진작가 윤준환
해당 프로젝트는 건축문화 2024년 7월호(Vol. 518)에 게재되었습니다.
The project was published in the July, 2024 recent projects of the magazine(Vol. 517).
July 2024 : vol. 517
Contents : SKETCH Strange and Ornate Line in Paris / Anastasia Lavru파리의 이상하고 화려한 선들 / 아나스타샤 라브루 : COMPETITION : RECENT PROJECT ITZAE / YEHA PARTNERS architects 잇재 / 건축사사무소
anc.masilwide.com
'Architecture Project > Single Family' 카테고리의 다른 글
| Casa em Mundão (0) | 2024.08.27 |
|---|---|
| Granero House (0) | 2024.08.26 |
| Gong's House (0) | 2024.08.05 |
| Irori Refuge (0) | 2024.07.30 |
| Tate House (0) | 2024.07.17 |
마실와이드 | 등록번호 : 서울, 아03630 | 등록일자 : 2015년 03월 11일 | 마실와이드 | 발행ㆍ편집인 : 김명규 | 청소년보호책임자 : 최지희 | 발행소 : 서울시 마포구 월드컵로8길 45-8 1층 | 발행일자 : 매일



