
Gong's House, designed by Various Associates, prioritizes functionality and comfort to address the real needs of the family. The design team has developed and incorporated localized building materials, integrating the urban lifestyle with the natural environment of the countryside, and offering a comfortable gathering and dwelling space for the family and their friends in the ancient village of Yongjia.
Chapter I
Village and family residence
Amidst the misty drizzle, the waters and mountains of Jiangnan unfold as if they were ink paintings, creating a serene setting for Gong's House. Nestled in a village in northern Yongjia, Zhejiang, at the source of the Nanxi River, the house is embraced by peaks on three sides and terraced fields in the middle. During Jiangnan's continuous rains, distant meadows morph into lakes, transforming the landscape into a secluded realm exclusive to Yongjia.



Chapter II
Built for reunion
The elderly of the Gong family live in the countryside, while the younger generation has settled in different cities. Mr. Gong, the homeowner, has been living in Beijing for many years, where his lifestyle has evolved significantly. With a large family, when all six siblings come back with their family and gather in the countryside during festivals, the old village house could not satisfy the needs of over 30 family members.
Additionally, the changes in Yongjia's countryside and Mr. Gong's adaptation to urban life have made returning home inconvenient. As a result, the siblings visit less frequently and for shorter periods due to the unsatisfactory rural living facilities. Consequently, the family has embarked on a project to build a house in the countryside suitable for comfortable reunions for families and friends.
Beyond the perimeter wall of Gong's House stands an octagonal pavilion, a beloved community hub where the village's elderly gather early each morning. The courtyard design masterfully balances privacy with openness, featuring a main gate that invites both villagers and curious visitors to peek inside. The hospitable elderly Gong couple often lead new acquaintances on tours of the house, making it a beloved base for both old and new friends.
The design of the doors and windows reflects designer Dongzi Yang's impression of Jiangnan. "The vernacular houses exude a sense of layered and staggered orderliness, creating a picturesque scene when viewed from a distance through the misty rain. The glowing windows piercing through the haze form an abstract composition of varying sizes of cubes, leaving a lasting impression. Beyond its natural beauty, Jiangnan offers an abundance of natural light and flowing wind, elements often artificially replicated in urban settings. Various Associates intended to seamlessly blend urban lifestyle with rural architecture, crafting a residence that perfectly complements modern living while embracing the tranquility of Yongjia."



Chapter III
Breathable materials & Breathable building
Throughout the three-year deduction and development of the project, Various Associates have delved deeply into traditional construction approaches for rural dwellings, such as rammed earth walls. However, these local methods face significant implementation challenges due to the scarcity of rural labor and specialized skills. Conversely, urban construction methods offer simplicity, feasibility, and efficiency, making them easier to adopt and promote in modern rural construction. However, these approaches often fail to resonate with the local context. In response, Various Associates embarked on a journey to fundamentally address these challenges starting from the choice of building materials.
This exploration facilitated the development of the herbal brick, an environmentally friendly modular material tailored for efficient rural construction. Composed of recycled herbal plants such as straws, other plant fibers, and cementing substances, the herbal brick embodies a "breathable" quality. Its formula, derived from natural elements, supports mass production and allows for easy localization and customization to meet specific size requirements. It presents a contemporary yet natural aesthetic to the walls with a range of brick patterns.
Incorporating the architectural principles into the configuration of doors and windows, the Various Associates team harnessed natural ventilation effectively, negating the necessity for a centralized ventilation system. Experiments evaluating the intensity, brightness, and ambient feel of natural light throughout the day inform the layout to enhance daily family activities. Indoors, the herbal bricks provide exceptional thermal stability, significantly reducing energy usage for temperature regulation. They even mitigate moisture retention ("stop sweating") during Wenzhou's most humid rainy seasons.
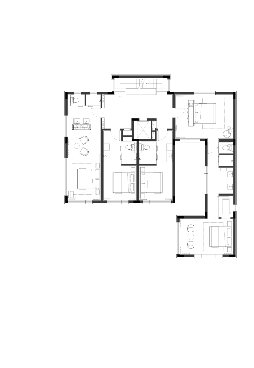
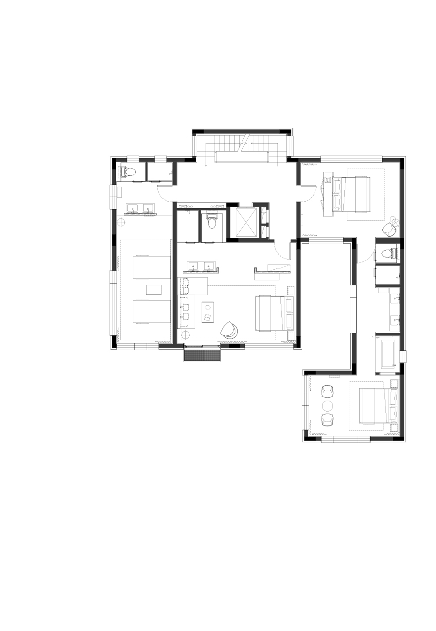
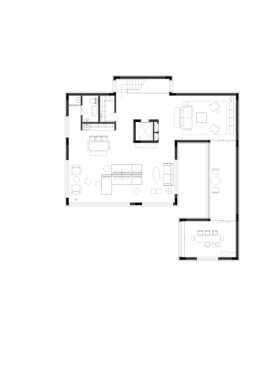
Upon entering the Gong House, residents are embraced by a spacious, welcoming environment adorned in warm brown tones that evoke simplicity and tranquility. The teak wood design radiates a sense of enveloping and accommodates the large Gong family, totaling 30 members spanning multiple generations including siblings, in-laws, grandparents, and grandchildren. This space facilitates gatherings where family members can enjoy each other's company. The facade features a window system reminiscent of floral lattice windows in Jiangnan, complemented by herbal bricks made from a mix of herbal plants and straws, showcasing a natural aesthetic and enhancing both functionality and beauty.
The ground floor is carefully planned, with a dining area and a side hall connected by a long corridor that serves logistical purposes. The side hall is a favorite spot for elderly Gong family members to gather for mahjong, conveniently connected to the courtyard and fish pond through adjacent doors. Usually, opening doors and windows ensures comfortable cross-ventilation, maintaining a cool and pleasant indoor environment. Additionally, the relaxed atmosphere is further enriched by the tradition of elderly family members conversing with neighbors outdoors, adding a communal charm to daily life at Gong House.



Chapter IV
Have fun together & Enjoy multi-faceted shared spaces
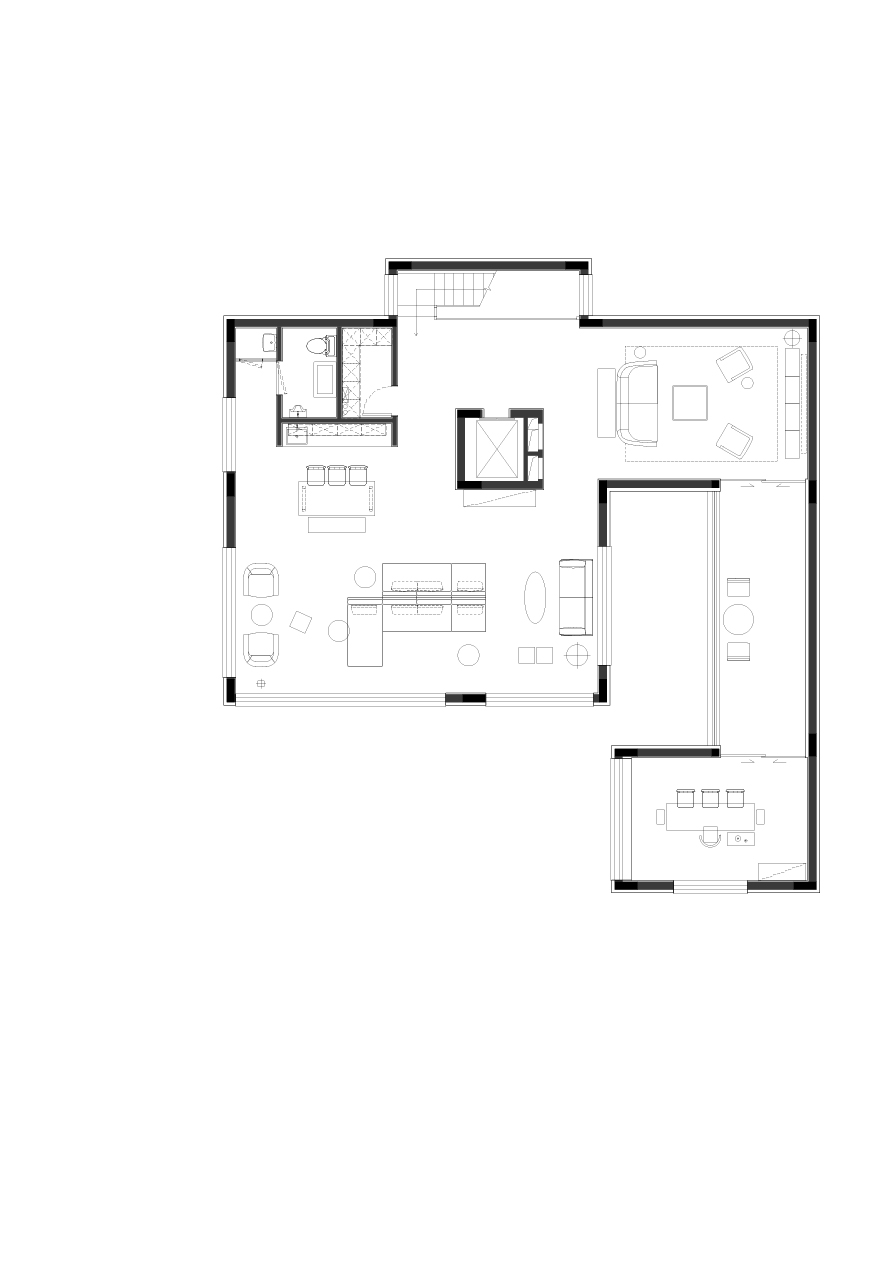
The upper area above the main hall has been thoughtfully designed with children in mind, featuring a continuous space that seamlessly connects to both the main hall and the side hall. This layout allows children to play freely while observing the activities of their elders, fostering a sense of connection within the family. Parents and grandparents can easily interact with the children and supervise them closely from any vantage point. The semi-high cabinet serves a dual purpose, providing storage and ensuring the safety of the children. This small mezzanine area is dedicated to safe playful exploration for children.
The slightly sloping roof preserves the rural house aesthetic while introducing ample natural light into the interior, creating a soft and stable daylight environment during the day.
The top-level reception space features distinctive breathtaking views framed by two large horizontally symmetrical scroll windows. Its open and clustered layout integrates seamlessly with the scenic vistas of Yongjia, creating pockets of space for diverse family activities. Thoughtful spatial planning maximizes functionality while leaving room for spontaneous interactions and flexible creative uses.
In the living room on the top floor, four groups of sofas and a small dining table are strategically arranged, offering designated areas for enjoying the scenery, sipping tea, eating snacks, watching movies, and engaging in conversations. This versatile environment encourages relaxed and comfortable gatherings, where the serene beauty of the countryside unfolds just beyond the expansive windows.
Chapter V
Enframed scenery of Yongjia with an urban refinement
During spring, the surroundings of Gong House come alive with a lush enchanting atmosphere, while winter transforms the landscape into a serene scene of snow-covered mountains and rivers. This ever-changing scenery creates a comfortable and relaxed ambiance throughout the year. The seemingly casual arrangement of windows conceals a thoughtful design logic, offering "zoomable" views that enhance the experience of the landscape. Each window's length-to-width ratio has been meticulously studied and tested, and its depth within the wall carefully considered. This consideration extends to the reflection of sunlight at different times and the relationship with neighbors. Beyond their outward vistas, the windows serve as conduits for internal enrichment.
Varied in height and size, they not only adorn public areas but also frame greenery into the rooms, infusing vitality into every living space. Despite housing seven rooms, Gong House never feels overcrowded; each room enjoys its own framed view, heightening the anticipation and enjoyment of family and friends during their stay.


Chapter VI
Harmony throughout the interior and exterior
"When you gaze at this house from the outside, the number of floors remains a mystery, " remarked Dongzi Yang, founder and design director of Various Associates. "It's a meticulously planned engineering marvel, not a haphazard creation." The design epitomizes interlocking elements, meaningful dialogue, seamless connections, and mutual accomplishments, not just within the house itself but also within its surrounding context.
This private residence seamlessly integrates architectural features, interior design, and materials, harmoniously blending into the rural landscape while asserting its unique identity. Emphasizing practical comfort and meeting the genuine needs of the family, it has evolved into a space that fosters genuine togetherness.






건축가 Various Associates
위치 저장성, 중국
용도 단독주택
건축면적 Building 800 ㎡ / Landscape 248 ㎡
준공 2024
대표건축가 Qianyi Lin, Dongzi Yang
디자인팀 Yongliang Huang, Liangji Lin, Chao Luo, Yuewen Cao
사진작가 Jonathan Leijonhufvud
'Architecture Project > Single Family' 카테고리의 다른 글
| Granero House (0) | 2024.08.26 |
|---|---|
| ITZAE (0) | 2024.08.12 |
| Irori Refuge (0) | 2024.07.30 |
| Tate House (0) | 2024.07.17 |
| SL House (0) | 2024.07.12 |
마실와이드 | 등록번호 : 서울, 아03630 | 등록일자 : 2015년 03월 11일 | 마실와이드 | 발행ㆍ편집인 : 김명규 | 청소년보호책임자 : 최지희 | 발행소 : 서울시 마포구 월드컵로8길 45-8 1층 | 발행일자 : 매일



