


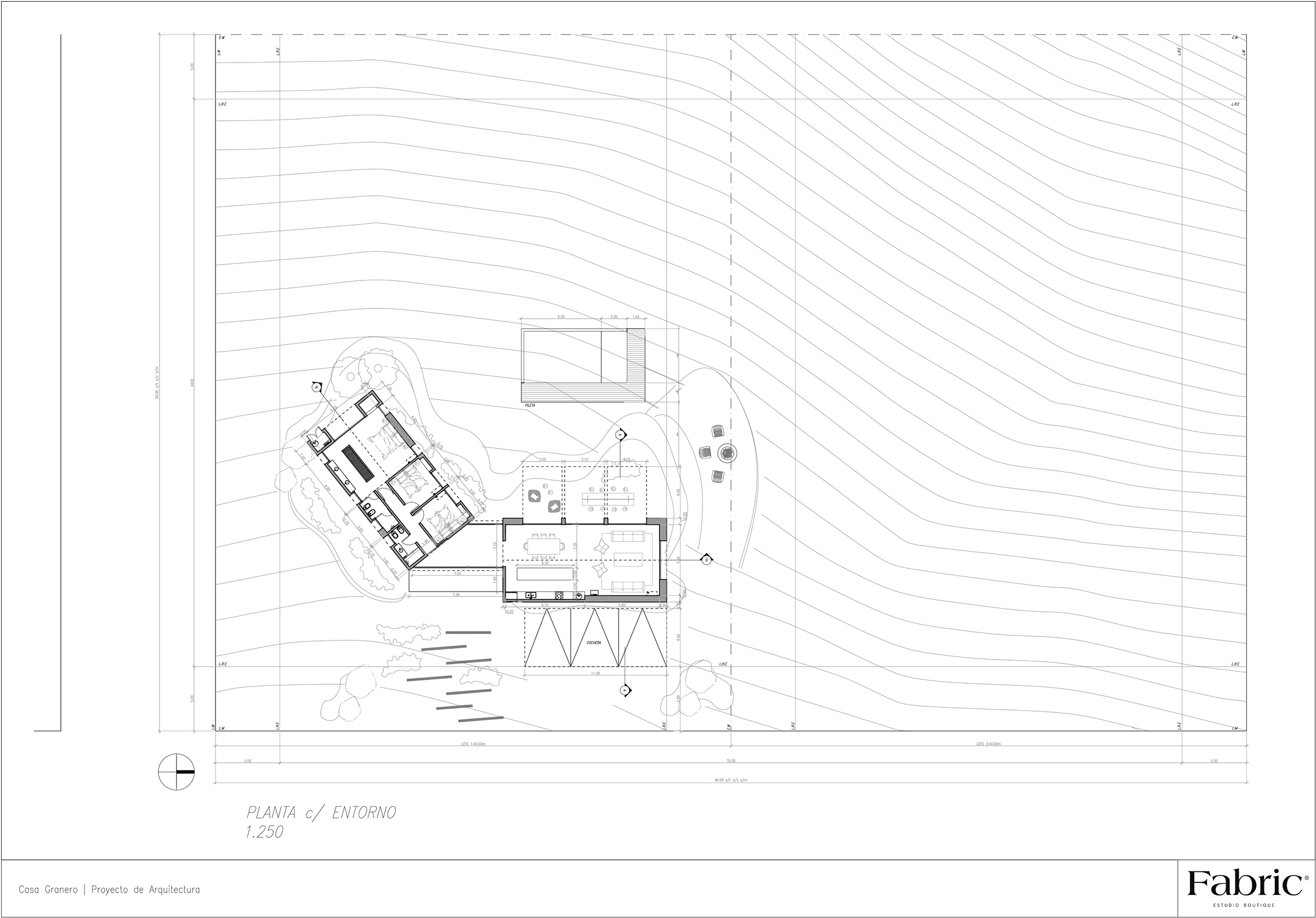
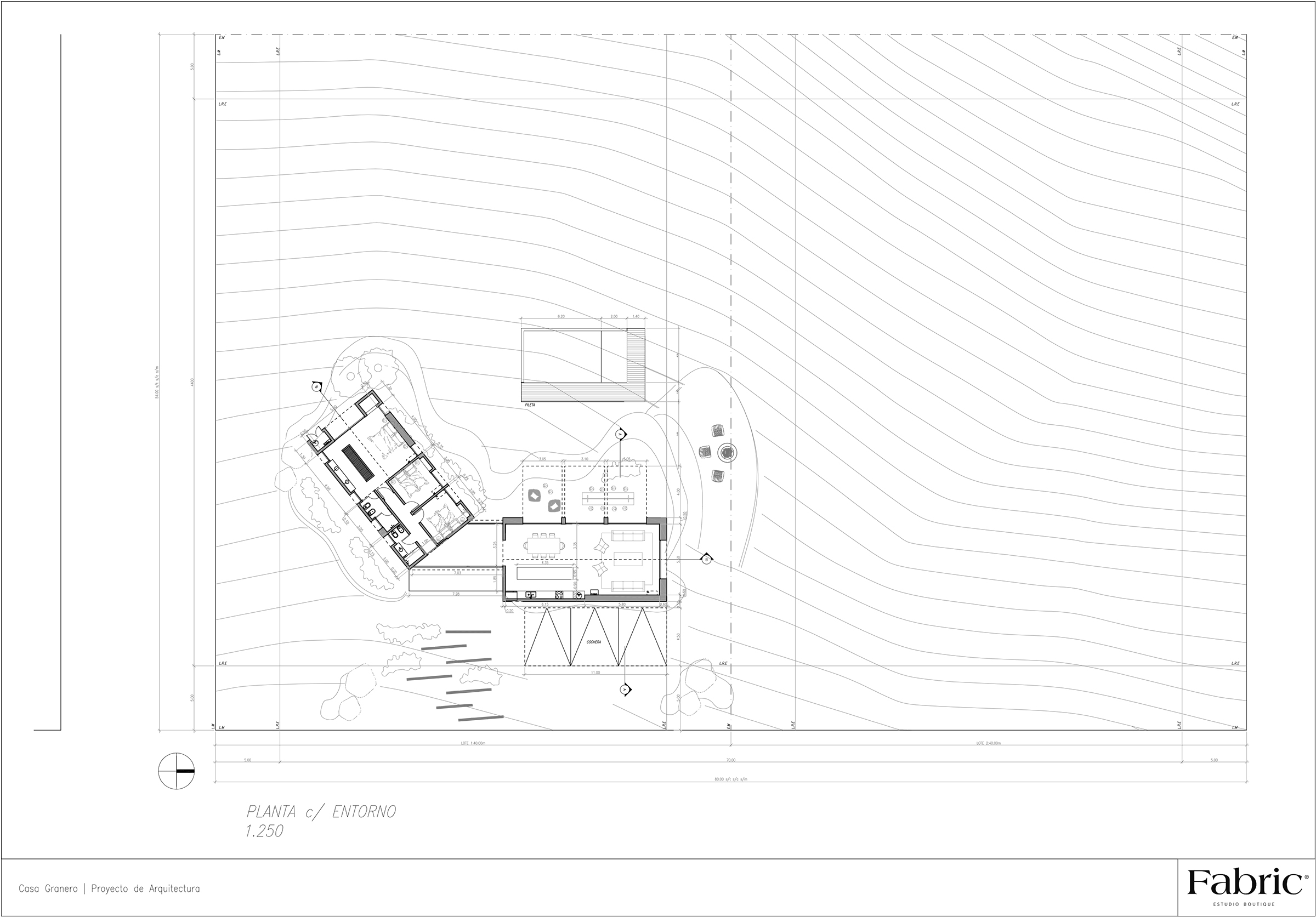
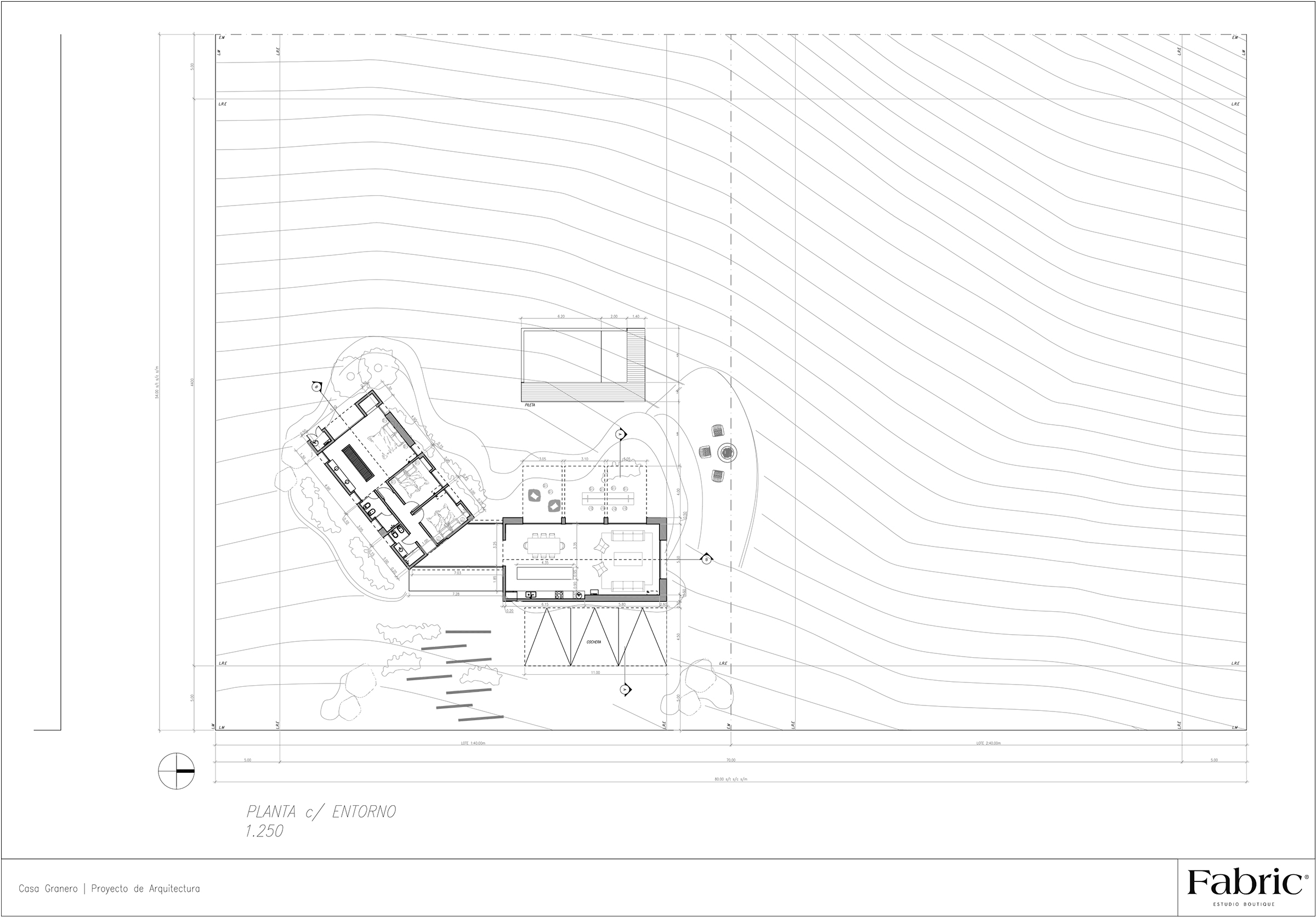
This architectural project is defined by the interaction of two independent volumes, each with gabled roofs, connected by a glass corridor that highlights panoramic views of the mountains. The volumes feature a clearly defined morphology, characterized by pure and simple forms that emphasize the modern style of the house. Large openings recessed into the walls allow generous natural light, framing the landscape and creating a seamless connection between the interior and the exterior.
The floor plan is organized into two separate volumes. The first houses the social areas, with an integrated kitchen, dining room, and living area that extend to a gallery open to the north, maximizing natural light and interaction with the outside. The second, more private volume includes two independent bedrooms with a shared bathroom, and a master suite located at the end, offering privileged views and an en-suite bathroom.





The exterior cladding, composed of light-colored fiber cement siding panels, creates an elegant contrast with the black openings, further highlighting the purity of the volumes. This contrast is complemented by a fluid and curvilinear landscape design, softening the geometric rigidity of the construction and harmonizing the architectural ensemble.
The interior and exterior of the house maintain a monochromatic palette, creating a sense of coherence and serenity. This neutral backdrop contrasts with the movable furnishings, which introduce a rustic, colorful, and relaxed touch, adding vitality and warmth to the spaces.



건축가 Fabric Estudio
위치 코르도바, 아르헨티나
용도 단독주택
건축면적 220㎡
준공 2024
대표건축가 Arato María Belen, Josefina falco
인테리어 디자인 Arato María Belen, Josefina falco
조경 Silvina Gregoret
공동협업 Set Ideas
엔지니어링 SET Ideas
사진작가 Arq. Gonzalo Viramonte
'Architecture Project > Single Family' 카테고리의 다른 글
| Roam Ranch House (1) | 2024.08.27 |
|---|---|
| Casa em Mundão (0) | 2024.08.27 |
| ITZAE (0) | 2024.08.12 |
| Gong's House (0) | 2024.08.05 |
| Irori Refuge (0) | 2024.07.30 |
마실와이드 | 등록번호 : 서울, 아03630 | 등록일자 : 2015년 03월 11일 | 마실와이드 | 발행ㆍ편집인 : 김명규 | 청소년보호책임자 : 최지희 | 발행소 : 서울시 마포구 월드컵로8길 45-8 1층 | 발행일자 : 매일



