

Alexis Dornier Makings is proud to announce the completion of 'The Free Bird Project, ' a private residence in Berawa, Bali, that seamlessly blends contemporary Japanese design with tropical modernism. This innovative home reflects architect Alexis Dornier’s commitment to integrating built environments with nature.
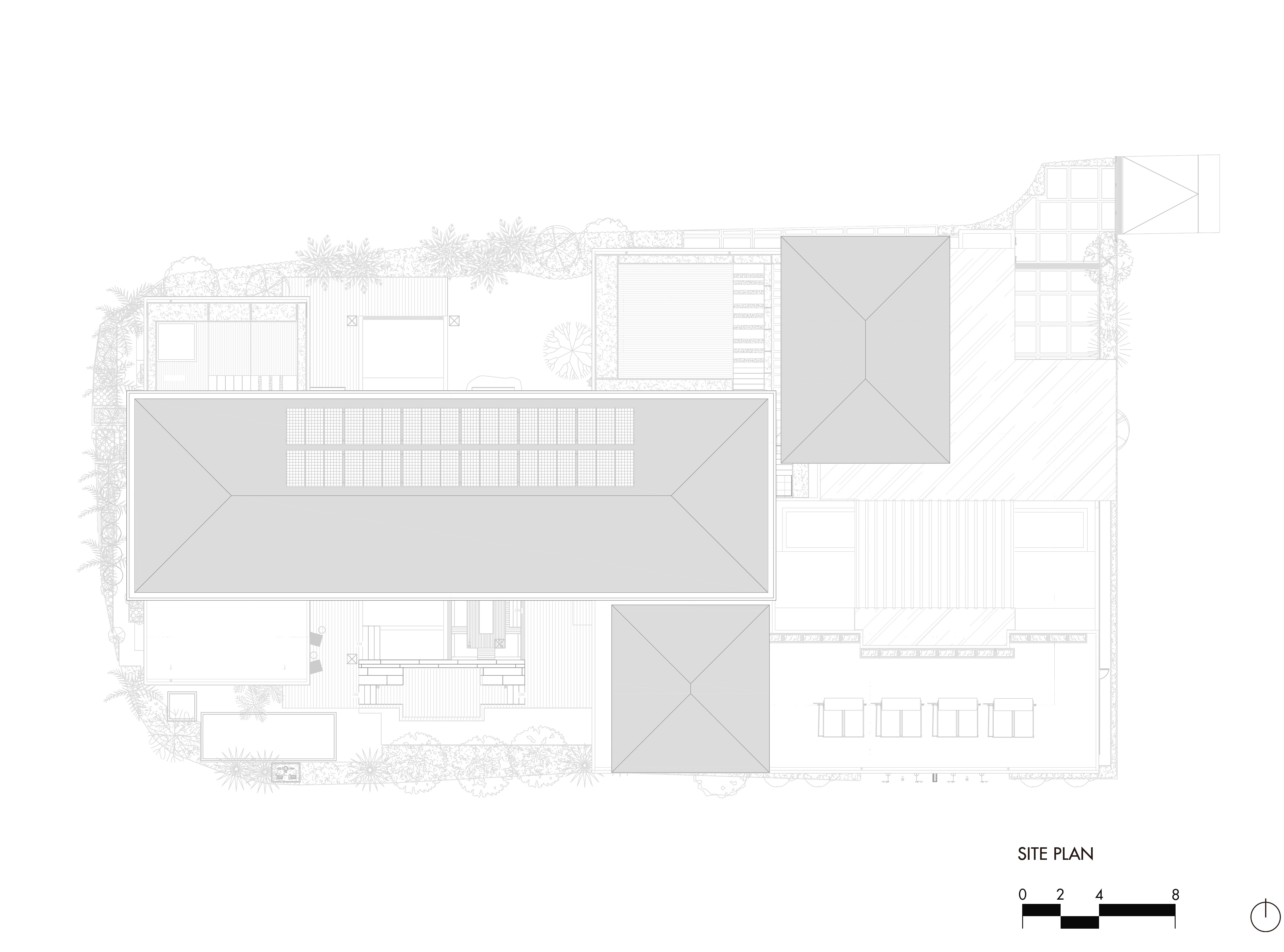
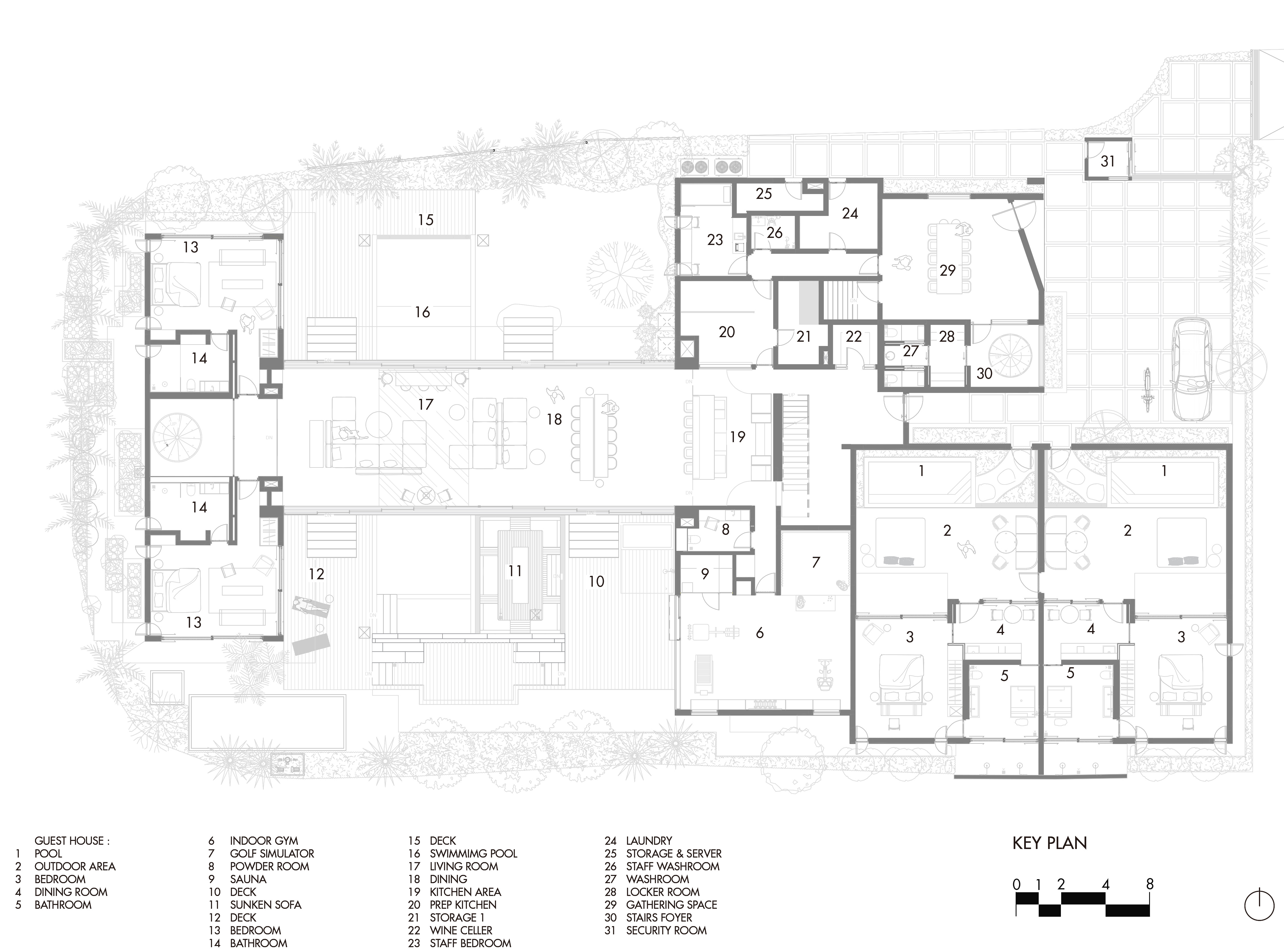
The centerpiece of 'The Free Bird Project' is a living room positioned above the swimming pool, connecting two wings of the house and forming an 'H'-shaped layout from above. This area features retractable glass walls that transform it into an outdoor space, with a glass floor offering views of the pool below, reminiscent of Stanley Kubrick’s "2001: A Space Odyssey."



Sustainability is a core component of the residence, with our sustainability management partners, Eco Mantra, playing a pivotal role. Their expertise has significantly reduced the home's energy consumption and carbon footprint, underscoring our commitment to environmentally responsible design.
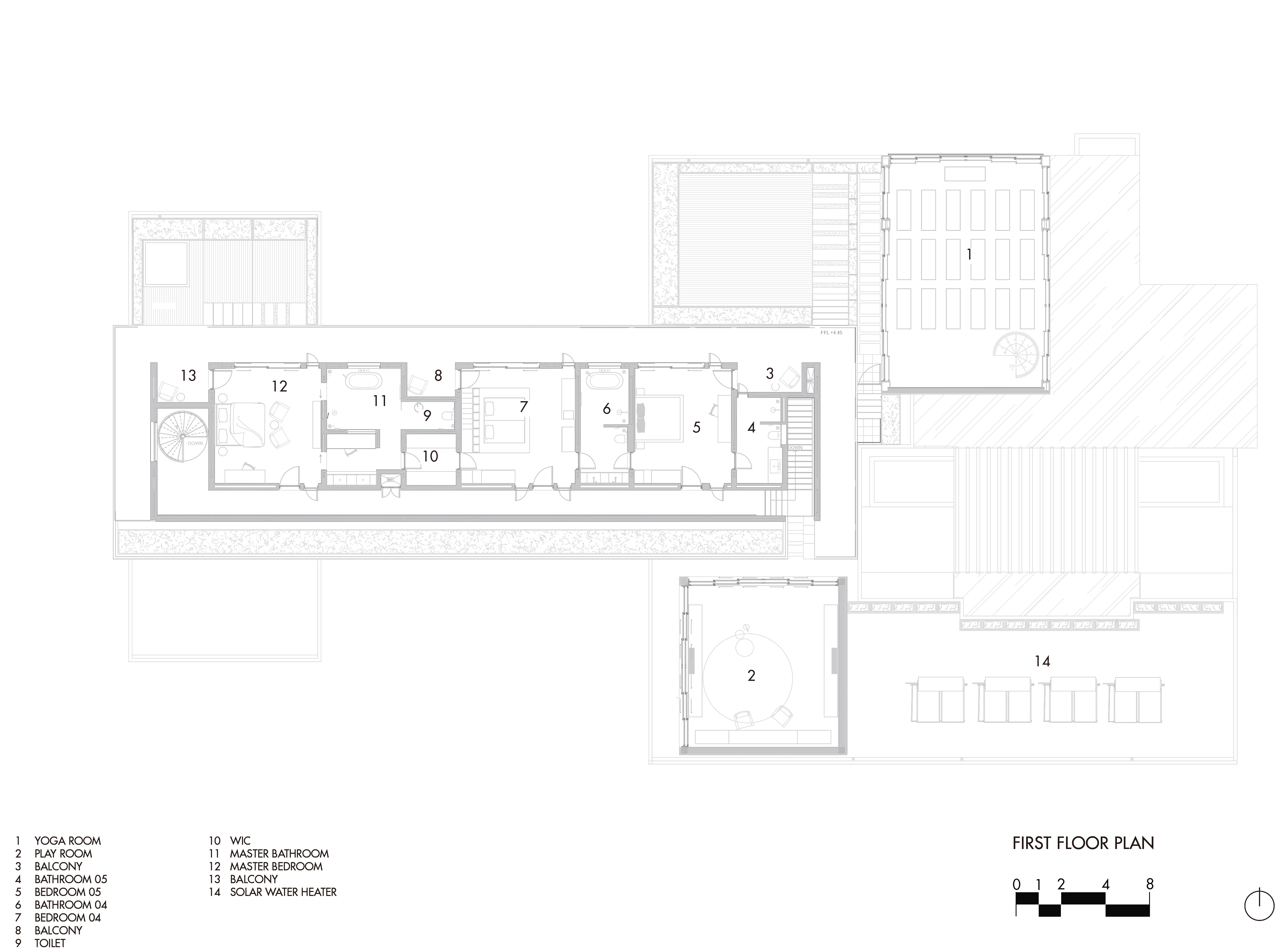
The tropical garden, designed by Bali Landscape Company, is integral to the home's design, creating a lush backdrop that enhances the indoor-outdoor living experience. The ground floor houses a gym and two guest rooms, all designed to maximize views and access to the garden. The yoga area, inspired by Rumah Kaca Kengo Kuma, features extensive use of glass to maintain a connection with the natural surroundings.



Materials throughout the residence showcase local craftsmanship, featuring paras kerobokan stone walls and wooden ceilings with fluted patterns, paired with a variety of textiles and fabrics that add depth and warmth to the clean architectural lines. A distinctive feature near the entrance is an expansive wine fridge, serving as both a practical insulation solution and a striking sculptural element.
Interior design by Kosame has greatly influenced the ambiance of each room, with their selection of furniture that combines functionality with sculptural aesthetics to enhance the living spaces. 'The Free Bird Project' is not just a residence; it's a model of how architecture can harmonize with its environment to offer a serene, sustainable, and immersive living experience.









건축가 Alexis Dornier
위치 쿠타, 인도네시아
용도 단독주택
연면적 770 m²
준공 2023
대표건축가 Alexis Dornier
환경공학 Eco Mantra
조경디자인 Bali Landscape Company
인테리어 디자인 Kosame
사진작가 KIE
'Architecture Project > Single Family' 카테고리의 다른 글
| Jocheon Yockjang (0) | 2024.09.12 |
|---|---|
| Ihyunjae (0) | 2024.09.11 |
| House IV (0) | 2024.08.28 |
| Roam Ranch House (1) | 2024.08.27 |
| Casa em Mundão (0) | 2024.08.27 |
마실와이드 | 등록번호 : 서울, 아03630 | 등록일자 : 2015년 03월 11일 | 마실와이드 | 발행ㆍ편집인 : 김명규 | 청소년보호책임자 : 최지희 | 발행소 : 서울시 마포구 월드컵로8길 45-8 1층 | 발행일자 : 매일



