
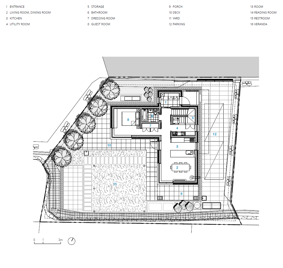
이현재(二賢齋)는 설악산의 근사한 경치와 울산바위를 바라보는 대지에 지어졌다. 건축주는 주말주택으로 이용할 수 있는 주택을 짓고, 서울에서의 삶을 정리한 뒤 노후를 보낼 곳을 필요로 했다. 울산바위를 바라볼 수 있는 조망을 가진 집이자, 전원생활에 따른 외부로부터의 안전, 프라이버시를 보호할 수 있는 집을 원하였다. 주택의 이름인 이현재는 장성한 두 자녀의 돌림자를 써서 건축주가 직접 정했다. 이현재는 설악산의 조망과 시시각각 변화하는 자연의 아름다움을 즐기며 복잡한 일상을 떠나 자연과 함께하는 여유로운 삶의 공간이다.
건축가는 울산바위의 풍경을 건축물 안으로 담고자 했다. 동, 서측의 인접대지와 1.5m의 차이가 있었고, 남측 인접대지는 3m 낮았다. 북측도로에서 진입하여 주차하고 집으로 진입하는 과정을 생각하며 배치가 정해졌고, 조망과 프라이버시라는 상반된 요구 사항에 대응하기 위해 ‘ㄴ’자 형태가 되었다. 북측 도로와는 마주하며, 남서측의 설악산 조망을 향해 열리는 배치로 마당을 안는 형태이다.
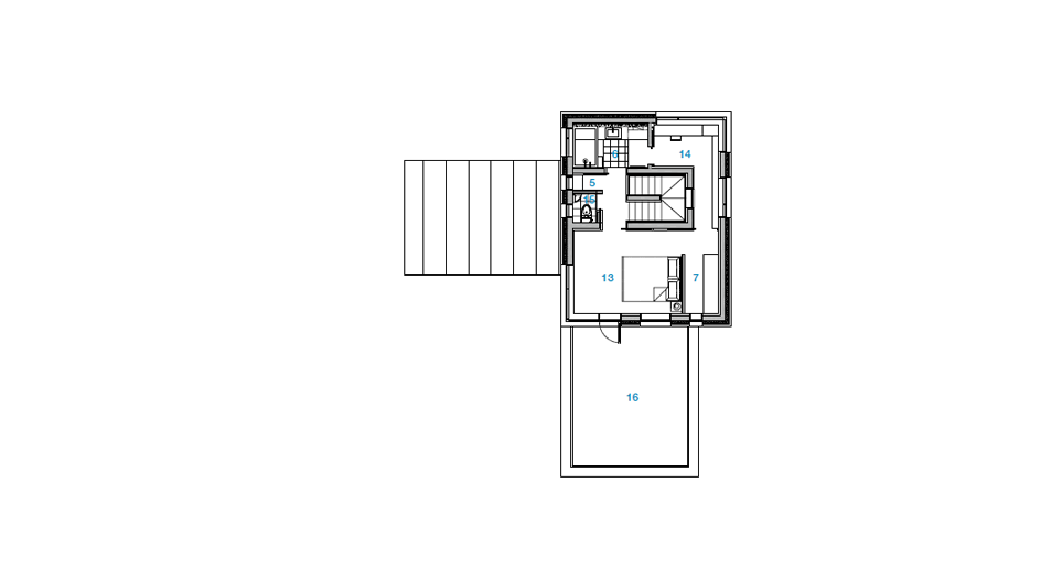
건축가는 건축주의 요청에 따라 서울에서의 복잡한 일상을 뒤로 하고 도착한 전원 속 주택에서 자연과 관계 맺을 방법을 고민했다. 이를 위해 대지에서 경험할 수 있는 자연과의 접점을 위해 주요한 공간마다 큰 창과 코너창을 설치하였다. 밝은 빛이 맞이하는 현관에 진입하여 거실에 들어서면 마당과 설악산의 원경이 펼쳐진다. 거실 겸 식당, 주방, 다용도실 등 공용공간을 1층에 두었고, 마당과 면한 부분에는 자연을 느낄 수 있는 포치와 데크가 있어 외부활동을 적극적으로 지원한다. 2층은 안방과 서재, 욕실이 있으며, 계단을 중심으로 각 공간이 연결되어 있다. 각 공간들을 순환하는 동선이 있어 이는 공간의 연속성을 경험하게 만든다. 내부에서는 이동하는 곳마다 창문이 있어 창밖 자연을 느낄 수 있는데, 내부 공간은 시선을 따라 외부로 확장된다. 서재에서는 마을의 전경과 먼 바다까지 바라볼 수 있다. 안방의 옥상테라스는 1층에서 보는 조망과는 다른 자연으로 둘러싸인 파노라마 뷰를 선사한다.

Ihyeonjae (二賢齋) was built on a site with magnificent views of Seoraksan Mountain and Ulsanbawi Rock. The client wished to build a weekend home that could eventually serve as a retirement home once they left Seoul. They wanted the house to provide views of Ulsanbawi, while also ensuring the security and privacy that are key to living in the countryside. The name “Ihyeonjae” was chosen by the client, using the character shared by his two grown children. Ihyeonjae is a retreat where one can escape the complexities of city life and enjoy the ever-changing beauty of nature; a peaceful space in harmony with the natural surroundings.
The architect designed the home to bring the landscape of Ulsanbawi into its spaces. The site had a 1.5-meter elevation difference with the neighboring plots to the east and west and a 3-meter drop on the southern side. The layout was planned to provide an intuitive flow from the north road, through the parking area, and into the house. To balance the client’s need for both views and privacy, the house was designed in an “L” shape, facing the northern road while opening toward the southwest to embrace a courtyard and the view of Seoraksan.
At the client’s request, the architect incorporated large windows and corner windows in key spaces, allowing the site’s natural surroundings to be fully experienced from the inside. Upon entering through a brightly lit foyer, the living room reveals a view of the courtyard and the distant Seoraksan range. The first floor houses shared spaces such as the living room, dining area, kitchen, and utility room, with a porch and deck facing the courtyard to encourage outdoor activities. The second floor includes the master bedroom, a study, and a bathroom, with each room connected around a central staircase, creating a sense of flow throughout the house. Inside, windows are placed throughout the space, offering views of the surrounding nature, visually extending to the outdoors. From the study, one can see the village and even the distant sea. The rooftop terrace off the master bedroom provides a panoramic view of the natural surroundings, distinct from the views from the first floor, offering a truly immersive experience of nature.










건축가 DANDAN_architects
위치 강원도 고성군 신평리
용도 단독주택
대지면적 437.60㎡
건축면적 100.55㎡
연면적 138.24㎡
규모 지상 2층
건폐율 22.98%
용적률 31.59%
설계기간 2022. 7. - 2023. 7.
시공기간 2023. 10. - 2024. 5.
준공 2024. 5.
대표건축가 장경환
프로젝트건축가 장경환
기계전기엔지니어 성일이앤씨
시공 니즈하우스
발주자 홍승수, 권순라
사진작가 최진보
해당 프로젝트는 건축문화 2024년 9월호(Vol. 520)에 게재되었습니다.
The project was published in the September, 2024 recent projects of the magazine(Vol. 520).
September 2024 : vol. 520
Contents : RECORDS Worldwide Architectural Festival, ‘Serpentine Pavilion’ Meets in Seoul세계적인 건축 축제, ‘서펜타인 파빌리온’을 서울에서 만나다 : COMPETITION : RECENT PROJECT PICT. SQUARE(The PICT.‘s
anc.masilwide.com
'Architecture Project > Single Family' 카테고리의 다른 글
| House H (0) | 2024.09.17 |
|---|---|
| Jocheon Yockjang (0) | 2024.09.12 |
| Freebird Residence (0) | 2024.08.30 |
| House IV (0) | 2024.08.28 |
| Roam Ranch House (1) | 2024.08.27 |
마실와이드 | 등록번호 : 서울, 아03630 | 등록일자 : 2015년 03월 11일 | 마실와이드 | 발행ㆍ편집인 : 김명규 | 청소년보호책임자 : 최지희 | 발행소 : 서울시 마포구 월드컵로8길 45-8 1층 | 발행일자 : 매일



