
제주 북동쪽 바닷가에 위치한 작은 마을, 조천(朝天). 해 돋는 아침을 맞이하는 바닷가에 위치한 갯마을이라는 지명이다. 북측으로는 푸른 바다가 펼쳐져 있고, 바다 앞쪽으로는 땅에서 담수가 솟아난다. 조천은 예부터 지표면에서 물이 솟아나는 용천수가 흐르는, 물이 깨끗하고 풍성한 마을이다. 대지는 조천의 바닷가와 담수의 경계선에서 고요히 바다를 바라보는 곳이었다.
건축가는 여행지에서 하루를 마무리하고 시작하는 시간을 보내는 스테이에서의 경험을 제공하기 위해, 조천의 바닷가가 품고 있는 ‘물’이라는 요소에 집중했다. 그리고 가장 일상적인 것을 비일상적으로 경험할 수 있는 공간을 계획했다. 몸을 씻는 것은 단순하고 일상적인 행위지만, 몸을 재정비하고 정신적, 신체적 피로를 풀어주는 강력한 힘을 가진 행위기도 하다. 쏟아지는 물, 솟아나는 물, 담겨있는 물, 바라보는 물 그리고 수증기로 피어나는 물로 가득한 공간에서 씻어냄과 닦아냄이라는 행위에 집중하며 휴식과 재정비를 할 수 있는 공간으로 계획했다.
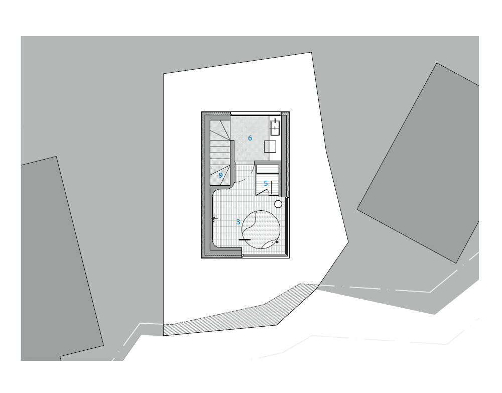
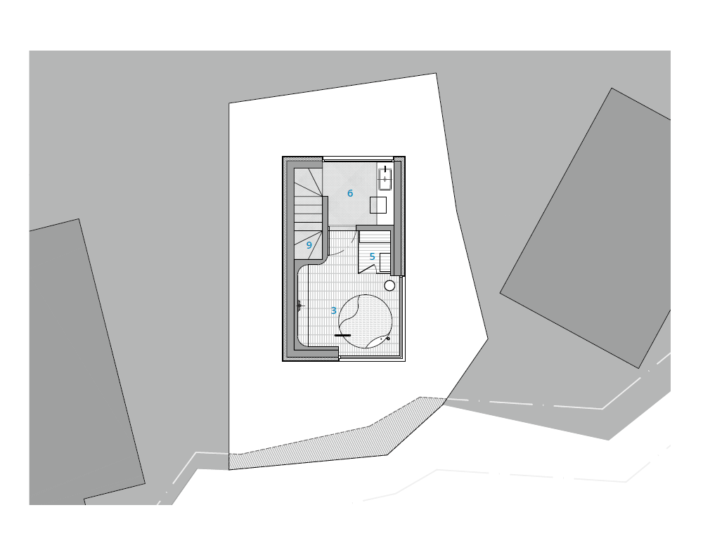
조천욕장은 4.5평씩 세 개의 층으로 이루어진 작은 욕장(浴場)이다. 주차공간을 확보하는 대신 마당 공간을 최대로 활용하기 위해 15평 이내의 작은 건물로 설계해 두 명만을 위한 프라이빗한 욕장이 되도록 했다. 3층에는 바다가 전경으로 보이는 다채로운 샤워 경험이 가능한 욕장의 공간으로, 2층은 침실, 1층은 주방으로 구성했다. 수직적 형태의 콘크리트 건축물은 자연을 받아들일 수 있는 곳으로만 열린다. 바다를 향하는 뷰와 빛을 받아들이는 부분만을 열어주고 다른 면은 외부와 완전히 단절시켰다. 나무의 결을 담은 콘크리트의 외관은 빛의 움직임을 담는 것으로 건물의 인상을 표현했다. 현무암으로 조성된 담장을 따라 길게 돌아 들어오는 길은 내부의 정원으로 다시 열리고, 정원을 지나 내부로 향하게 된다. 진입로를 길게 하여 공간으로의 몰입을 높이고, 예측되지 않는 공간의 변화를 통해 공간을 다채롭게 경험하도록 했다.
입구로 들어서면 작은 센서의 불빛이 손님을 반기며 따스하게 맞이한다. 정원 오른편의 작은 족욕탕은 원형으로 둘러싸인 공간에서 남향의 빛을 받으며 발의 피로를 푸는 색다른 경험을 제공한다. 왼편으로는 작은 주방과 식탁 그리고 폴딩도어로 완전히 열 수 있는 테라스 공간을 두어 제주의 따스한 바람을 느낄 수 있도록 했다. 2층의 콘크리트와 채도가 낮은 나무 마감재는 자연의 빛을 담는 배경이 된다. 바닥과 천장의 카펫은 공간에 따스함을 더하고, 간접 조명만을 사용해 은근하고 편안한 분위기를 조성한다. 3층의 큰 창으로는 한라산의 풍경과 함께 남향의 빛이 쏟아져 들어온다. 바다의 뷰와 함께 욕장이 자리하고 있어, 다양한 물의 움직임을 통한 풍족한 샤워 경험으로 노곤한 여독을 풀어낼 수 있는 공간이 되길 바란다.

Jocheon is a small seaside village on the northeastern coast of Jeju Island, its name meaning “greeting the morning sky” as it greets the sun rising over the ocean. To the north lies the vast blue sea, and fresh spring water bubbles up from the ground along the shoreline. Historically, Jocheon has been known for its pure and abundant spring water. The project site sits quietly along the boundary between the coastline and freshwater, offering serene views of the sea.
The architect focused on the theme of “water,” a natural element that defines Jocheon’s landscape, to create a space where guests can experience something extraordinary in as they start and end their day. The goal was to turn a simple activity like bathing into a special and rejuvenating experience. Washing the body is an ordinary task, but it also has the power to refresh the body and mind. The bathhouse was designed as a space where guests can focus on the soothing experience of water in its many forms—whether pouring, flowing, contained, reflected, or rising as steam—while finding rest and renewal.
Jocheon Bathhouse is a small, three-story building, with each floor measuring 4.5 pyeong (approximately 15 square meters). Rather than prioritizing parking, the plan maximized the use of the courtyard to create an intimate, private bathhouse for two guests. The third floor features a bath space with diverse shower experiences and panoramic views of the ocean. On the second floor is the bedroom, and the kitchen is on the first floor. The structure opens only where it embraces nature, offering views of the sea and sunlight while remaining otherwise sealed off from the outside. The exterior, crafted from concrete with wood grain patterns, captures and reflects the changing light. A basalt stone wall leads visitors along a long path that eventually opens into an internal garden, guiding them to the interior. An extended entry heightens the sense of immersion, allowing guests to experience a gradual transition into the space and its unique atmosphere.
Upon entering, a small motion sensor light warmly greets visitors. To the right of the garden with a rounded wall is a small foot bath, where guests can relax their feet in the sun. To the left is a compact kitchen and dining area with folding doors that opens up completely to a terrace, allowing guests to enjoy Jeju’s gentle breeze. The second floor’s concrete and muted wood finishes provide a natural backdrop, capturing the daylight and adding a warm tone to the space. Soft carpeting on both the floors and ceiling creates a warm space, and only indirect lighting was used to create a calm and peaceful environment. The third floor features a large window that frames the stunning view of Hallasan Mountain, and allows sunlight from the south to flood the space. Overlooking the ocean, the bathhouse offers a relaxing and immersive experience, where the soothing movement of water and the scenic views come together to wash away the fatigue of the journey.










건축가 Atelier ITCH
위치 제주도 제주시 조천읍
대지면적 62.00㎡
건축면적 15.90㎡
연면적 47.70㎡
규모 지상 3층
건폐율 25.65%
용적률 76.94%
프로젝트건축가 아틀리에 이치
브랜딩 아틀리에 이치
시공 아틀리에 이치
사진작가 Joel Moritz
해당 프로젝트는 건축문화 2024년 9월호(Vol. 520)에 게재되었습니다.
The project was published in the September, 2024 recent projects of the magazine(Vol. 520).
September 2024 : vol. 520
Contents : RECORDS Worldwide Architectural Festival, ‘Serpentine Pavilion’ Meets in Seoul세계적인 건축 축제, ‘서펜타인 파빌리온’을 서울에서 만나다 : COMPETITION : RECENT PROJECT PICT. SQUARE(The PICT.‘s
anc.masilwide.com
'Architecture Project > Single Family' 카테고리의 다른 글
| MyouKei-An House (0) | 2024.09.18 |
|---|---|
| House H (0) | 2024.09.17 |
| Ihyunjae (0) | 2024.09.11 |
| Freebird Residence (0) | 2024.08.30 |
| House IV (0) | 2024.08.28 |
마실와이드 | 등록번호 : 서울, 아03630 | 등록일자 : 2015년 03월 11일 | 마실와이드 | 발행ㆍ편집인 : 김명규 | 청소년보호책임자 : 최지희 | 발행소 : 서울시 마포구 월드컵로8길 45-8 1층 | 발행일자 : 매일



