
주거지역과 공장 사이 C - 사옥은 일본 술(酒)를 무역하는 회사의 의뢰에서 시작됐다. 부지는 경기도 남양주 이패동에 위치하며, 주변은 일반주거지역이지만 공장과 창고군집으로 둘러싸여 있다. 현황도로가 맞물려 있어 매우 불리한 조건을 가지고 있고, 주거지역이기 때문에 일조권 제한과 대지 내 레벨을 해결해야 하는 부지였다. 또한, 주변 공장지대에서 발생하는 소음과 비산먼지로 인해 사옥 건물로서 위치하기에는 다소 불편한 여건을 가지고 있었다.
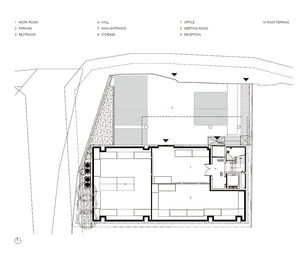
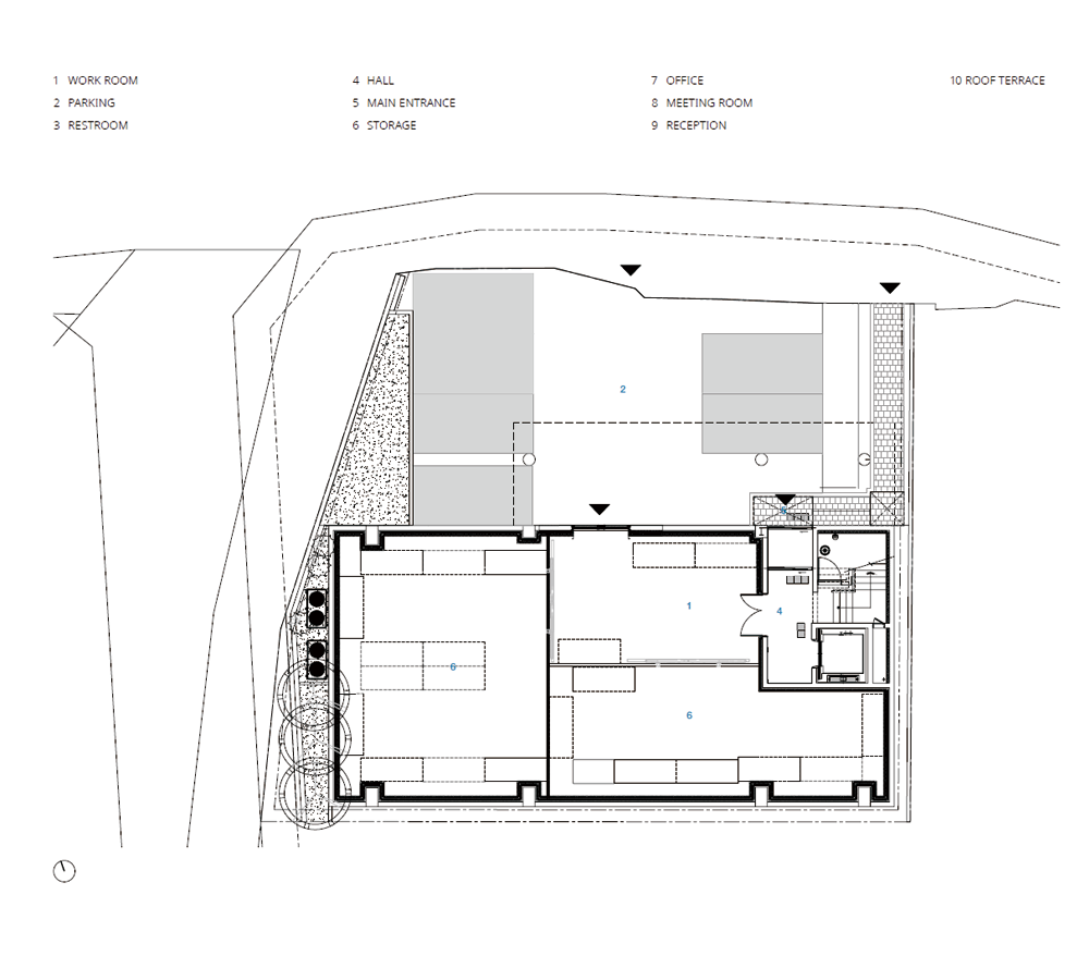
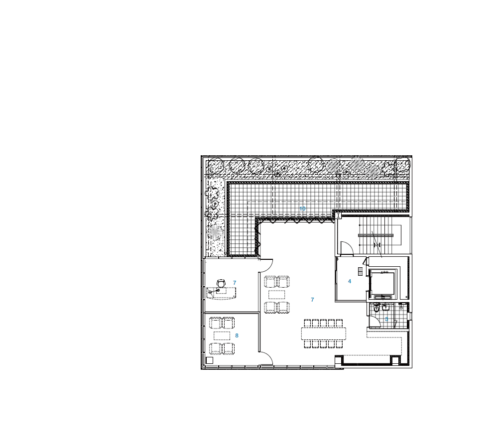
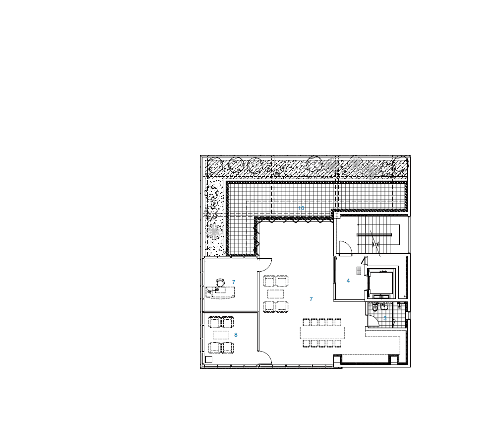
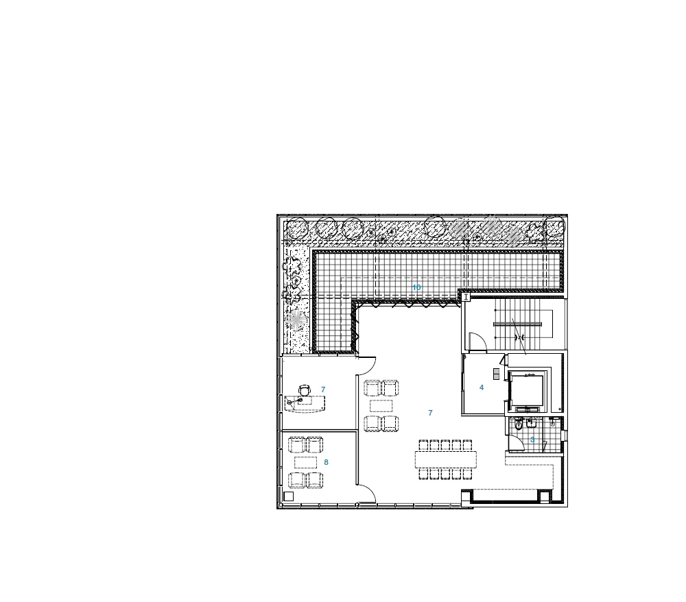
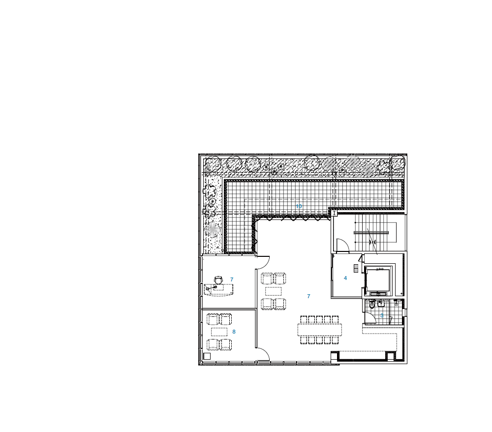
프로그램 건물 규모는 지상 3층으로 구성되며, 1층은 술을 저장하는 저장공간과 2, 3층은 직원 또는 개인 업무공간으로 구성된다. 술을 저장하는 1층 저장공간은 외부에서 접근성과 내부 이동 지게차를 고려한 동선계획이 필요했다. 저장공간은 저온과 상온 공간으로 나뉘어 술을 보관하는 공간으로 계획하기 위해 내부 별도 특수 제작한 단열시스템 벽체를 설치해야 했다. 그 단열시스템은 시스템 벽체가 콘크리트 박스 안에 이중박스형 공간으로 만들어지는 것을 말한다. 또한 많은 저장 물품을 고려해 층고를 6m로 계획해야 했다. 2층 업무공간은 되도록 차분하면서도 내부에서 외부 테라스를 바라보면서 업무가 가능한 공간으로 만들고자 했다. 건축주의 개인 공간인 3층은 외부로부터 시선을 차단하면서 답답하지 않은 공간으로 계획했다. 행사를 즐기는 건축주의 취향을 반영해 외부 정원으로 열린 공간이며, 외부 창호는 접이식 폴딩도어를 설치해 내부 공간이 외부로 확장되면서 연계할 수 있는 공간으로 계획했다.
재료의 새로운 접근 외피는 본 건물이 저장 창고이면서 업무공간이라는 점을 고려하면서 부지 주변 공장과 창고 건축물에서 아이디어를 얻었다. 공장 건축물이 가지는 매스의 단순함과 철재 패턴이 가지는 기하학적 느낌을 외피에 차용하여, 신축 건물이지만 주변과 조화로운 풍경을 만들고자 했다. 이에 따라 다양한 외장재를 사용하는 것보다 여러 성격을 모두 만족시키는 단일 외피로 계획했다. 건물은 기본적으로 “저장시설” 이라는 특성을 고려해 견고한 느낌을 표현하고자 전체적인 모습을 노출콘크리트 매스로 계획했다. 오피스는 업무 공간이므로 프라이빗한 분위기 연출이 필요했다. 외장은 더블스킨으로 계획해 외피를 통해 내부에 깊이감이 있는 다양한 채광을 만들었다. 또한, 외피는 프라이버시를 확보하는 동시에 바람을 통하게 하는 역할을 하기도 한다. 갈바판재를 타공하고 절곡하여 이어붙여서 빛의 흐름을 느낄 수 있는 외장재를 사용했다. 외피의 원형 구멍들은 균등하게 수직 방향으로 계획해 적정 개구율을 확보하였다. 타공 외피에는 열림과 닫힘을 균등하게 계획하여 업무공간의 기능을 효율성을 높였다. 접힌 타공판은 자체적 구조적 강성을 가지게 되면서 타공판들을 지지하는 고정 부속 자재의 양을 최소화했다. 또한 이 접힌 면들이 보는 각도에 따라 점과 선 그리고 면으로 다양한 반응을 이끌어내는 입면을 만들어 낸다. 이러한 변화는 육중한 매스와 중첩되면서 시시각각 다채로운 깊이감을 만들었다.











건축가 GAGAHOHO ARCHITECTS
위치 경기도 남양주 이패동 591-16
용도 근린생활시설
대지면적 565.0㎡
건축면적 334.59㎡
연면적 690.94㎡
건폐율 59.21%
용적률 117.64%
설계기간 2023. 1. - 5.
시공기간 2023. 6. - 2024. 1.
규모 지상 3층
구조설계 S.D.M 구조기술사사무소
기계설계 (주)한길엔지니어링
전기설계 (주)한길엔지니어링
시공 명진건영(주)
발주자 CR트레이딩
사진작가 이한울
해당 프로젝트는 건축문화 2024년 5월호(Vol. 516)에 게재되었습니다.
The project was published in the May, 2024 recent projects of the magazine(Vol. 516).
May 2024 : vol. 516
Contents : SKETCH City of Lost Memories / Hossain Mousavi 잃어버린 기억의 도시 / 허세인 무사비 : COMPETITION : RECENT PROJECT g:ign / g:ign architects 지아인(地我因) / 건축사사무소 지아인Arc and
anc.masilwide.com
'Architecture Project > Office' 카테고리의 다른 글
| Raffine (0) | 2024.05.17 |
|---|---|
| DGB Financial Center Remodeling (0) | 2024.05.16 |
| g:ign (0) | 2024.05.13 |
| Seegene Medical Foundation Daejeon & Chungcheong Laboratory Center (0) | 2024.04.25 |
| Narakium Seonhwa-dong Building (0) | 2024.04.04 |
마실와이드 | 등록번호 : 서울, 아03630 | 등록일자 : 2015년 03월 11일 | 마실와이드 | 발행ㆍ편집인 : 김명규 | 청소년보호책임자 : 최지희 | 발행소 : 서울시 마포구 월드컵로8길 45-8 1층 | 발행일자 : 매일



