
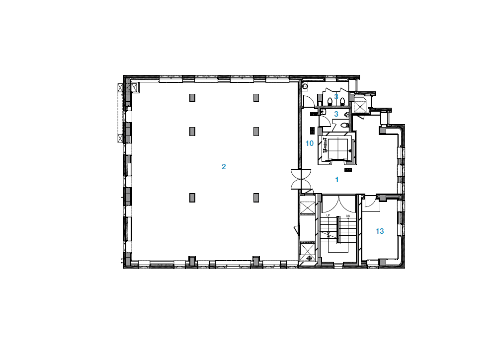
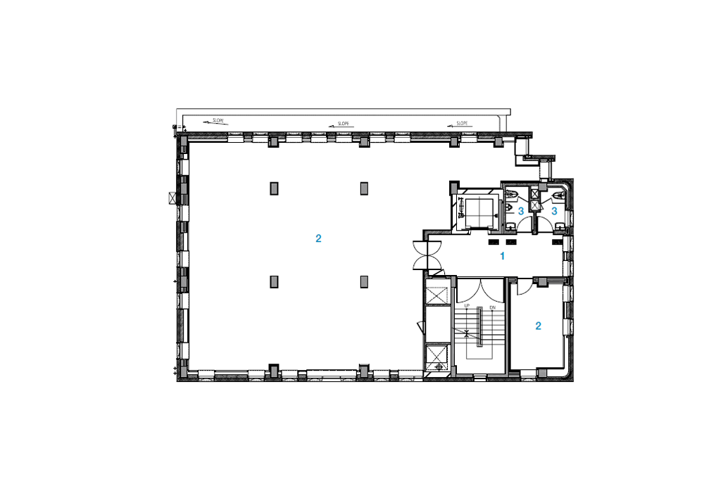
준공 31년 된 나라키움 선화동 빌딩은 국유재산관리기금 재원을 투입하여 업무시설과 민간임대시설을 포함시킨 복합시설이자 노후 건축물의 에너지 효율까지 높인 그린리모델링 프로젝트이다. 건축가는 초기 설계 단계에서부터 기존 건축물을 현재의 법적기준에 준하는 건축물로 보완하되, 사용 가능한 시설(계단실, 주차장 입구)은 최대한 존치시키면서 공사 범위를 축소하고자 하는 설계 방안을 채택하였다. 또한 에너지효율 향상 설계 단계에서는 기존 건축물 외피이자 입면을 가장 중요한 검토 사항으로 선정하였다. 선화동 빌딩은 향후 기후위기시대에 냉·난방 에너지 사용이 적은 건축물이면서도, 대전 구도심에 미래 건축의 이미지를 부여하겠다는 설계 의도를 건축물 입면에 담고자 했다.
먼저 에너지 효율 향상을 위해 건물 외피 전체적으로 외단열을 적용하였고, 외장 마감재는 모던한 롱 브릭타일을 습식으로 부착하여 열교를 최소화하였다. 향과 무관하게 설치된 노후화 된 수평창을 전면 철거하고 단열과 기밀 성능이 확보된 시스템 창호을 적용하였다. 이로 인해 창 면적 축소, 개구부 위치 조정 그리고 개폐면적 확대가 가능해지면서 실내 열적 쾌적성과 자연 환기를 향상시킬 수 있었다. 이 이외에도 15.05kW의 태양광 모듈을 건축물 일체형 후면 통풍 방식 (BAPV, Building Attached Photovoltaic System)으로 남동측 입면에 부착함으로써 에너지를 직접 생산할 수 있는 건축물이라는 이미지를 부여하였다. 현재의 법적 기준을 만족시키기 위해 엘리베이터실과 계단실 벽체의 두께를 보강하면서 내진 성능를 확보하였고, 구조적 안정성이 확보된 상황에서 기존 승강기를 장애인 탑승 가능한 승강기(15인승)로 교체하였다. 기존 건축물의 층고(2,400㎜)가 매우 낮은 점을 감안하여 노출 천정으로 계획하되 스프링쿨러, GHP/EHP, EHP 배수배관 등은 질서있는 배열과 화이트 색상으로 마감하면서 내부 공간의 개방성도 확보하였다. 건물 주변에는 조경 및 휴게데크를 설치하고 옥상에는 옥상정원 이외에도 장기적으로 태양광을 추가 설치할 수 있는 면적도 계획하였다.
나라키움 선화동 빌딩은 녹색건축인증 그린 2등급, 건축물 에너지효율등급 인증 1++등급을 취득함으로써 리모델링 전보다 1차 에너지 소요량은 64% 절감된 건축물로 개선되었다. 국내 그린리모델링 정책에 발맞춰 다시 태어난 선화동 빌딩은 에너지 절약 및 생산 기술이 적용된 21세기 지속 가능한 건축물로 자리매김하면서 앞으로 31년의 역사를 다시 쓰게 될 것이다.
글: 이명주
















건축가 ZED Architects Co.,Ltd
위치 대전광역시 중구 선화서로 37
용도 근린생활시설, 업무시설
대지면적 852.60㎡
건축면적 346.66㎡
연면적 2,866.95㎡
규모 지하 1층, 지상 8층
건폐율 40.66%
용적률 288.32%
준공 2023. 6.
대표건축가 조중석, 이명주
발주자 한국자산관리공사(캠코)
사진작가 김용수
해당 프로젝트는 건축문화 2024년 3월호(Vol. 514)에 게재되었습니다.
The project was published in the March, 2024 recent projects of the magazine(Vol. 514).
March 2024 : vol. 514
Contents : COMPETITION : SKETCH Silent River / Nikita Batrakov 침묵하는 강 / 니키타 바트라코프 : RECENT PROJECT Villa Seung Seung / MANDLDA Architects 빌라승승 / 만들다 건축사사무소 Samsong1957 / Unsangdong Architects 삼송1957 /
anc.masilwide.com
'Architecture Project > Office' 카테고리의 다른 글
| g:ign (0) | 2024.05.13 |
|---|---|
| Seegene Medical Foundation Daejeon & Chungcheong Laboratory Center (0) | 2024.04.25 |
| IRIS Headquarters (0) | 2024.03.14 |
| HaneulJae (0) | 2024.03.04 |
| Company Headquarters Küng Holzbau (0) | 2024.02.08 |
마실와이드 | 등록번호 : 서울, 아03630 | 등록일자 : 2015년 03월 11일 | 마실와이드 | 발행ㆍ편집인 : 김명규 | 청소년보호책임자 : 최지희 | 발행소 : 서울시 마포구 월드컵로8길 45-8 1층 | 발행일자 : 매일


