
큉 홀츠바우는 10년 전부터 목조 건축에 매진한 목재 회사이다. 이들은 목재 보드와 접착제를 사용한 목조 건축에서 점차 발전하여 나무만을 사용한 건축물의 수요가 증가했다는 것에 주목했다. 이에 따라 ‘홀츠푸어(Holzpur)’라는 목조 건축 시스템을 개발했고, 이를 큉 홀츠바우 본사에 적용하며 독창적인 건축물을 설계했다.
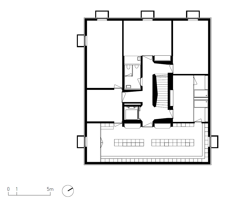
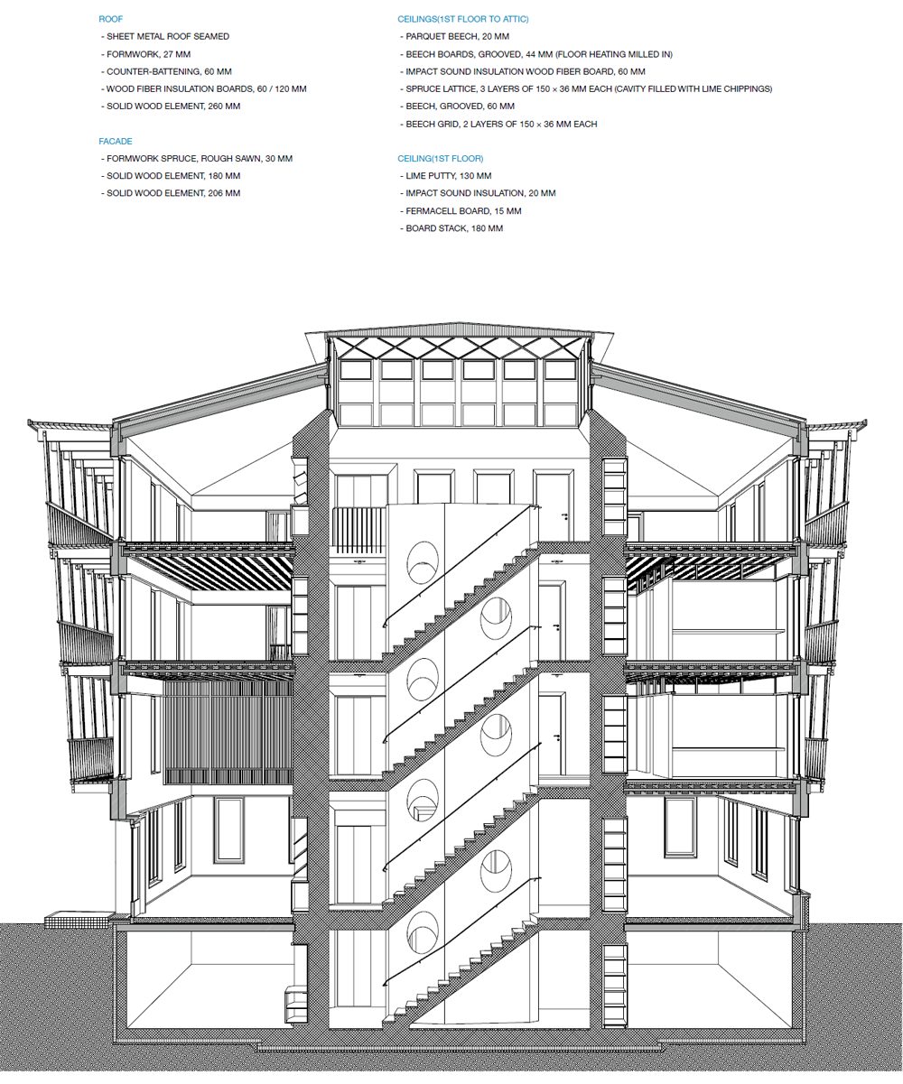
홀츠푸어는 목재 보드 일곱 개를 겹쳐서 20cm 두께의 벽 구조로 건축물을 만드는 기술을 가진다. 큉 홀츠바우 본사에는 이 두 개의 벽을 겹쳐 총 40cm에 달하는 벽이 설치됐다. 외벽을 이루는 홀츠푸어 건축 시스템에는 습기가 적은 목재가 사용됐다. 나무를 벌목할 때 습기가 가장 적은 시기는 전통적으로 월말에 해당한다. 새로운 달이 뜨기 전에 벌목한 나무라 하여 ‘문 우드(Moon wood)’라 지칭한다. 특히 크리스마스 시즌에 벌목한 목재는 습기가 가장 적어 수축 범위가 작고 병충해를 입을 확률도 줄어든다. 반면 내부 벽에는 주로 파이버보드(Fiberboard)로 가공되는 저품질 목재를 사용했다. 내부에 공기층이 많아 내구성은 떨어지지만, 단열성은 우수하기 때문이다.
건축물 외관은 스위스 중부 지방 전통 건축물의 발코니를 연상케 한다. 쾌적한 야외 공간이자 햇빛을 차폐하는 수단이기도 하다. 외장재로는 참나무와 가문비나무를 사용했고, 창문 위 린텔에는 CNC 밀링으로 ‘문 우드’를 연상시키는 초승달 패턴을 새겼다.
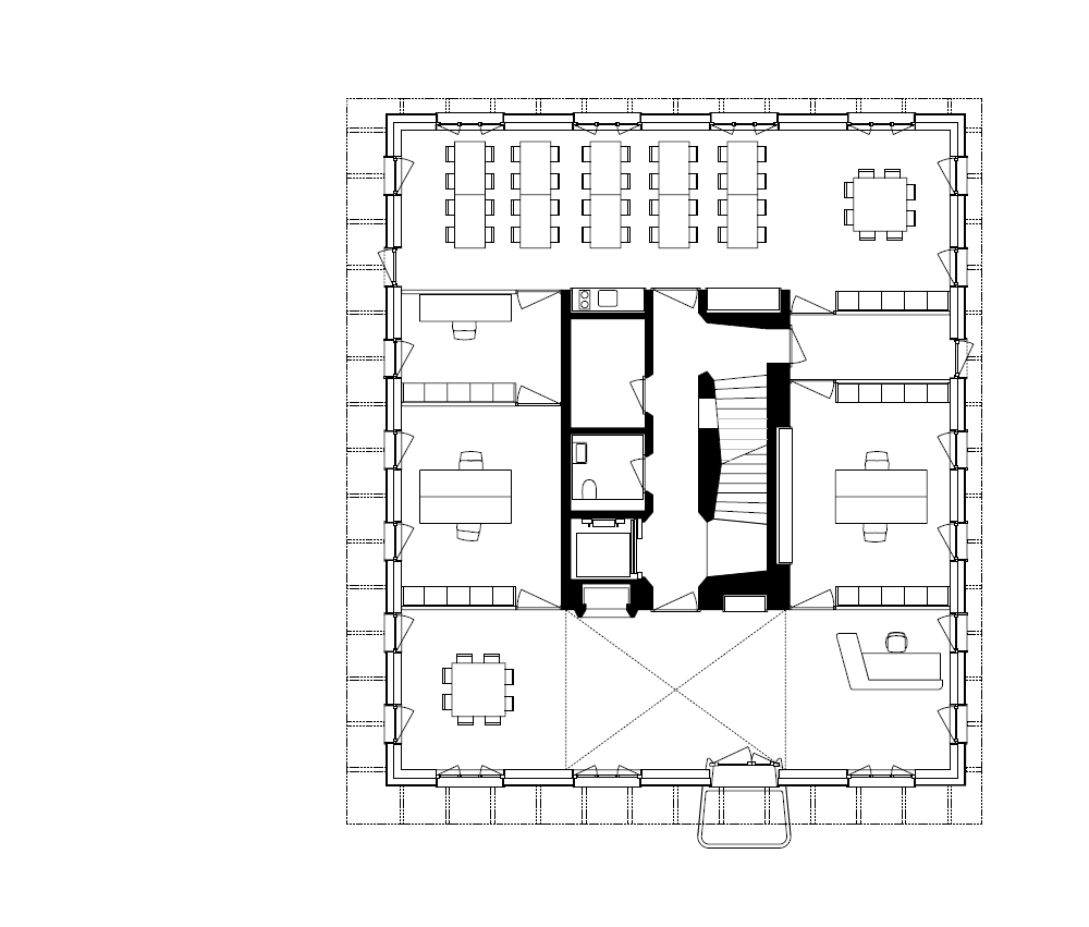
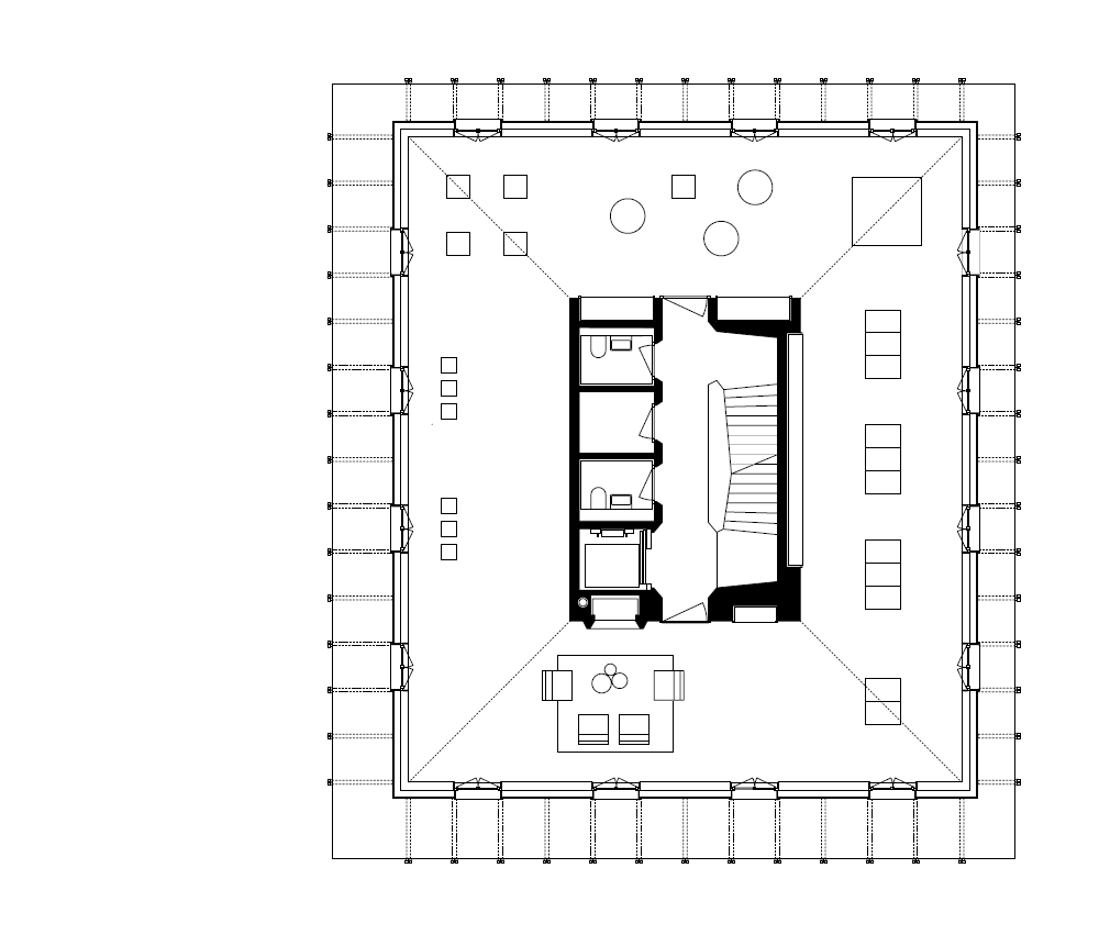
정사각형에 가까운 형태의 4층 건물에는 20명의 엔지니어를 위한 개인 사무실이 있다. 1층에는 미팅룸과 카페테리아를 배치하고, 최상층에는 제품 전시장을 계획했다. 또한 건축가는 각 실의 용도에 맞는 목재 가구 시스템을 직접 디자인하는 등 섬세하고 완성도 있는 디테일을 적용했다. 두 개 층 높이의 현관을 들어서면 건물 전 층을 연결하는 계단과 엘리베이터를 품은 콘크리트 코어가 보인다. 나무가 도드라지는 건물 안에서 마치 콘크리트로 빚은 조각상처럼 보인다. 큉 홀츠바우 본사는 감각적으로 목재를 사용한 건축 설계로 기존의 업무시설이 주는 경직된 느낌에서 벗어나 따뜻하고 유니크한 공간으로 완성됐다.



















건축가 Seiler Linhart Architects
위치 스위스, 알프나흐
용도 업무시설
규모 지하 1층, 지상 4층
준공 2020
대표건축가 Patrik Seiler, Søren Linhart
프로젝트건축가 Raphael Wiprächtiger
구조엔지니어 Neue Holzbau AG
기계엔지니어 HS Team, Langensand AG
전기엔지니어 Elektro Ettlin
시공 Küng Holzbau AG
발주자 Küng Holzbau AG
사진작가 Rasmus Norlander
해당 프로젝트는 건축문화 2023년 11월호(Vol. 510)에 게재되었습니다.
The project was published in the November, 2023 recent projects of the magazine(Vol. 510).
November 2023 : vol. 510
Contents : Records ‘Drawing the Future of East Asian Traditional Architecture’, 2023 Hanok Policy Symposium ‘동아시아 전통건축의 미래를 그리다’, 2023년 한옥정책 심포지엄 The ‘Diplomatic Venue’ Returns after 100 Years, De
anc.masilwide.com
'Architecture Project > Office' 카테고리의 다른 글
| IRIS Headquarters (0) | 2024.03.14 |
|---|---|
| HaneulJae (0) | 2024.03.04 |
| L-Tree Tower (0) | 2024.01.26 |
| ORIGINAL CONCEPT Studio Office (0) | 2024.01.25 |
| Sächsische Aufbaubank (SAB) (0) | 2023.12.20 |
마실와이드 | 등록번호 : 서울, 아03630 | 등록일자 : 2015년 03월 11일 | 마실와이드 | 발행ㆍ편집인 : 김명규 | 청소년보호책임자 : 최지희 | 발행소 : 서울시 마포구 월드컵로8길 45-8 1층 | 발행일자 : 매일



