
서울은 현재의 도시다. 도시의 많은 부분은 20세기 후반의 짧은 시간에 형성되었다. 엘트리타워가 위치한 강남은 1980년대부터 본격적으로 개발되기 시작하여 서울에서 가장 번화한 지역이 되었다. 그렇게 강남은 역사보다는 현재가 존재하는 곳이다. 기존 건물들은 철거되고 새로운 건물들이 끊임없이 올라가며 매일 새로운 상업시설이 생기고 사라진다. 과거는 사라지고, 현재와 미래가 혼란스럽게 공존한다. 기존 대지에는 1980년대에 지어졌을 것으로 추정되는 4층 규모의 벽돌 건물이 있었다. 이미 신축된 주변의 높은 건물 사이에서 조용히 자리를 지켜 왔던 옛 건물 대신, 건축주를 위한 새로운 오피스 용도의 건물을 지어야 했다.
건축가는 장소에 대한 기억을 건축 전략으로 선택했다. 밀도 높은 환경 속 지나다니는 많은 사람의 기억 속에 남겨질 방법을 찾았다. 유동 인구가 많은 강남에서 건물은 실제 공간의 활용보다 건축적 이미지로서 사람들에게 소비된다. 도시 환경에서 건축물이 이미지와 기호가 된다면 그 건축물은 장소로서 사람들의 기억 속에 남겨질 것이다.
이러한 이미지를 남기기 위해 엘트리타워 파사드에 지그재그 패턴을 이용한 역동적인 사선 패턴을 부여했다. 유리 커튼 월 위에 더해진 선형의 부재는 단조로운 입면에 리듬과 시각적 움직임을 만든다. 두 면이 열린 코너로 입면의 밀도를 변화시켜 시선을 집중시키고자 했고, 수직의 부재들은 점차 넓은 간격의 코너 쪽으로 향한다. 사선 부재들은 이런 수직 부재들에 긴장감과 방향성을 주며 리듬과 방향성을 만드는 주역이다. 한편, 두 면에서 모여든 지그재그 패턴은 코너에서 만나게 된다. 코너는 발코니로 개방되어서 공간의 극적인 효과를 만든다.















건축가 스노우에이드 건축사사무소
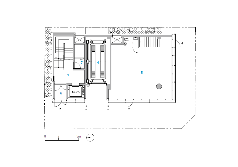
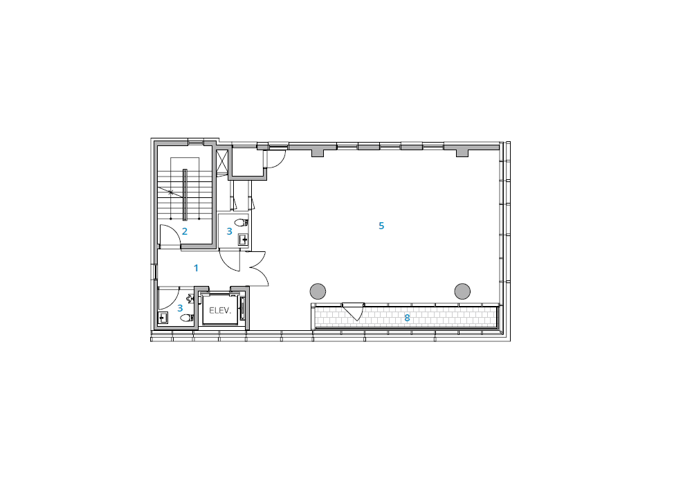
위치 서울시 강남구 역삼동 831-1
용도 오피스, 근린생활시설
대지면적 336.50㎡
건축면적 161.89㎡
연면적 1,997.92㎡
규모 지하 2층, 지상 11층
건폐율 48.11%
용적률 473.00%
설계기간 2019. 12. - 2021. 3.
시공기간 2021. 6. - 2023. 3.
준공 2023. 3.
프로젝트건축가 김현주, 박호현
디자인팀 김기홍, 권혜지, 윤성웅
구조엔지니어 SDM
기술엔지니어 태영EMC
기계엔지니어 태영EMC
전기엔지니어 태영EMC
시공 (주)미래씨엔알
주계약자 JKS 건설
발주자 (주)EUKOR
사진작가 김재윤
해당 프로젝트는 건축문화 2023년 11월호(Vol. 510)에 게재되었습니다.
The project was published in the November, 2023 recent projects of the magazine(Vol. 510).
November 2023 : vol. 510
Contents : Records ‘Drawing the Future of East Asian Traditional Architecture’, 2023 Hanok Policy Symposium ‘동아시아 전통건축의 미래를 그리다’, 2023년 한옥정책 심포지엄 The ‘Diplomatic Venue’ Returns after 100 Years, De
anc.masilwide.com
'Architecture Project > Office' 카테고리의 다른 글
| HaneulJae (0) | 2024.03.04 |
|---|---|
| Company Headquarters Küng Holzbau (0) | 2024.02.08 |
| ORIGINAL CONCEPT Studio Office (0) | 2024.01.25 |
| Sächsische Aufbaubank (SAB) (0) | 2023.12.20 |
| Zoetrope (0) | 2023.12.13 |
마실와이드 | 등록번호 : 서울, 아03630 | 등록일자 : 2015년 03월 11일 | 마실와이드 | 발행ㆍ편집인 : 김명규 | 청소년보호책임자 : 최지희 | 발행소 : 서울시 마포구 월드컵로8길 45-8 1층 | 발행일자 : 매일



