
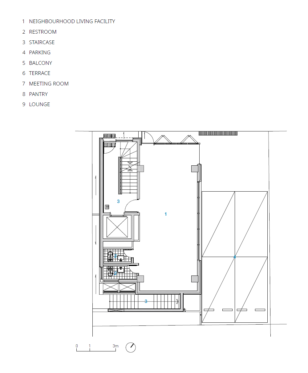
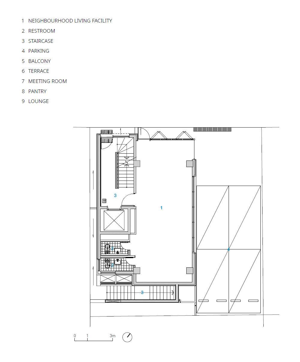
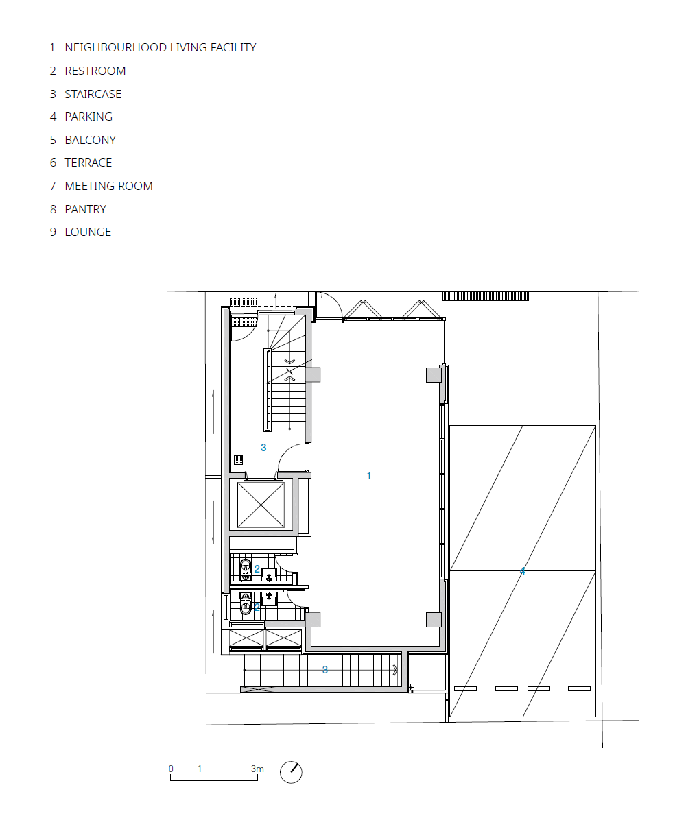
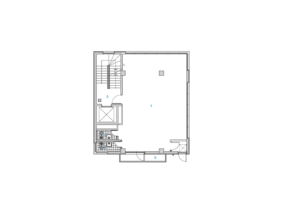
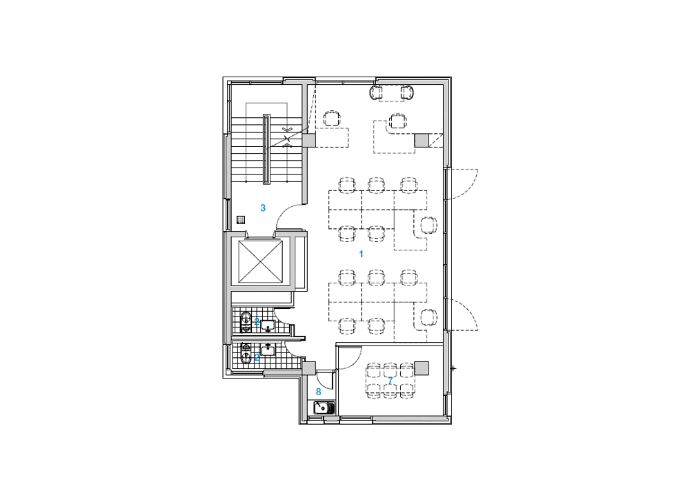
하늘재는 전면과 옆이 사무실과 다세대주택으로 혼재된 땅에 들어 섰다. 정사각형 모양의 땅은 북쪽으로 8m 일방통행 도로와 접하고 있다. 하늘재는 ‘하늘에 있다’는 의미와 ‘꿈과 희망이 있는 곳’이라는 건축주의 뜻을 품고 있다. 설계는 매스의 조형적인 면을 중요하게 생각했다. 조형미를 강조하면서 소규모 사무실에서 의도적으로 각 층의 테라스 공간을 극대화하고 숨을 고를 수 있는 틈 공간을 만드는 것이다. 직원의 휴식처인 옥상 휴게 공간에 대한 고민도 많았다. 건축주의 요구 중 면적의 극대화 측면을 고려해서 지하층까지 공간을 확보하기로 결정했다. 북쪽 대지에 일조권 제약을 어떻게 하면, 업무 공간을 극대화할 수 있을까 하는 것들이 이번 설계의 과제였다. 일반주거지역의 일조권 제한과 층높이의 제한, 캐노피 길의 제한 등 제약이 있었으나 제약을 한계가 아닌 설계 의도의 방향으로 생각하고 차근차근 접근해 나갔다. 층높이 4m 이상, 캐노피 3m 이상의 공간으로 인하여 건축 심의 대상 건축물에 해당됐고, 이를 해결하기 위하여 촉박한 일정 속에서 설계가 진행됐다. 절제된 매스 조형미와 깔끔한 마감재를 통해 건축주를 만족시켰다. 화이트 델리카토 마감재가 주를 이룬 메인 파사드 외관은 깨끗한 이미지를 불러온다. 단순하지만 변화가 있는 매스 조형미 형태를 강조하며 절제된 입면으로 디자인 했다. 상부 옥상의 전면 파사드와 측면의 디자인은 의도적으로 연출했으며, 경사 지붕 또한 의도적으로 두어 조형미를 한층 더 강조했다. 외관의 디테일은 건물의 완성된 건물의 이미지를 높여준다.

HaneulJae sits on a piece of land that is bordered on the front and sides by a mix of offices and multi-family housing. The square-shaped site is bordered by an 8-meter one-way road to the north. HaneulJae means ‘in the sky’ and the client’s intention of ‘a place of dreams and hopes’. The design considered the formative aspect of the mass important. It emphasizes the sculptural aspect of the mass, intentionally maximizing the terrace space on each floor and creating niche spaces in the small office for employees to take a break. There was also a lot of thought given to the rooftop lounge area, a resting place for employees. Considering the client’s request to maximize the area, we decided to extend the space to the basement level. The challenge of the design was how to maximize the workspace while dealing with the sunlight restrictions on the north side of the site. There were constraints such as sunlight rights for general residential areas, restrictions on floor height, and restrictions on the length of the canopy, but we approached them step by step, thinking of them as design intentions rather than limitations. With a floor height of more than 4 meters and a canopy of more than 3 meters, the building was subject to architectural review, and the design was carried out under a tight schedule to resolve this issue. The understated massing and use of clean finishing materials satisfied the client. The main façade, dominated by a white delicato finish, creates a clean image. The design is understated, emphasizing simple but varied massing forms. The design of the front façade and sides of the upper roof is intentional, with a sloping roof to further emphasize the sculptural form. The details of the facade enhance the image of the completed building.









건축가 SHIN PYUNG ARCHITECTS & PLANNERS CO.,LTD
위치 서울특별시 마포구 연남동 564-3
용도 근린생활시설(사무소)
대지면적 202㎡
건축면적 118.63㎡
연면적 541.04㎡
규모 지하 1층, 지상 5층
건폐율 58.73%
용적률 199.63%
설계기간 2022. 1. - 4.
시공기간 2022. 9. - 2023. 11.
준공 2023. 11.
대표건축가 이용주
프로젝트건축가 이용주
구조엔지니어 배정환
기계엔지니어 대오설비_진성식
전기엔지니어 (주)보우티앤씨_최용민
시공 (주)금정종합건설
발주자 (주)선민투어
사진작가 이중훈
해당 프로젝트는 건축문화 2024년 1월호(Vol. 512)에 게재되었습니다.
The project was published in the January, 2024 recent projects of the magazine(Vol. 512).
January 2024 : vol. 512
Contents : RECORDS ‘Rural Reconstruction and Regeneration, Perspectives of Land Use’, The 3rd Urban & Architecture and Urbanism Forum 2023 ‘농촌공간 재구조화 및 재생, 토지 이용에서 바라보다’, 2023 제3차 AURI 건축도시포
anc.masilwide.com
'Architecture Project > Office' 카테고리의 다른 글
| Narakium Seonhwa-dong Building (0) | 2024.04.04 |
|---|---|
| IRIS Headquarters (0) | 2024.03.14 |
| Company Headquarters Küng Holzbau (0) | 2024.02.08 |
| L-Tree Tower (0) | 2024.01.26 |
| ORIGINAL CONCEPT Studio Office (0) | 2024.01.25 |
마실와이드 | 등록번호 : 서울, 아03630 | 등록일자 : 2015년 03월 11일 | 마실와이드 | 발행ㆍ편집인 : 김명규 | 청소년보호책임자 : 최지희 | 발행소 : 서울시 마포구 월드컵로8길 45-8 1층 | 발행일자 : 매일



