
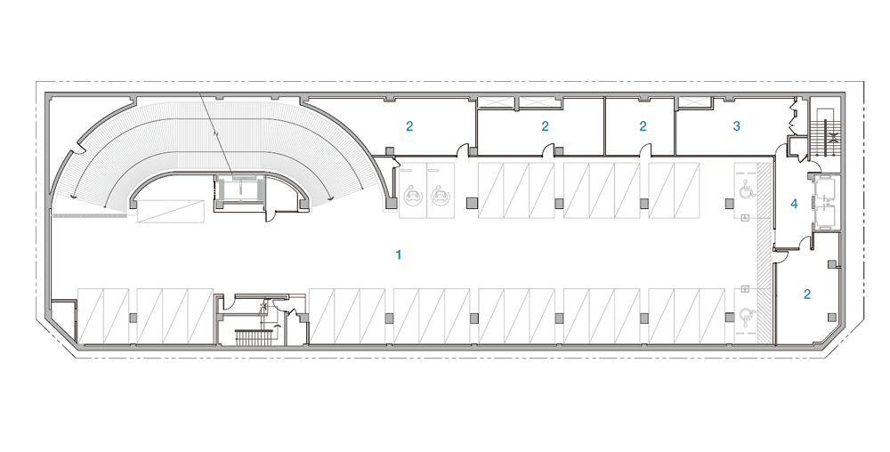
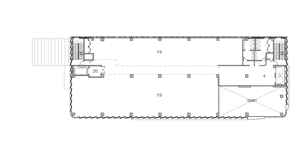
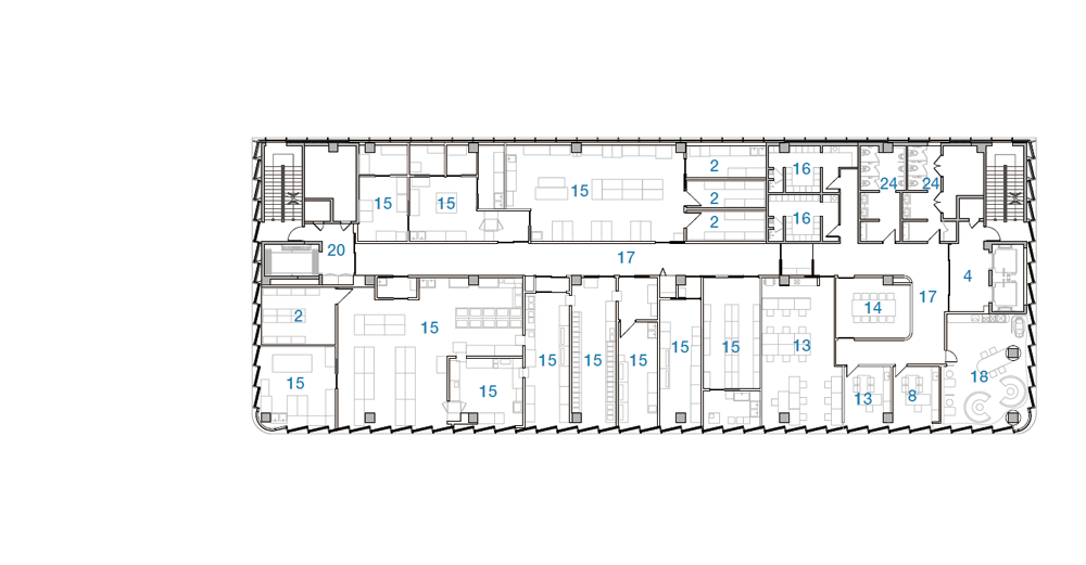
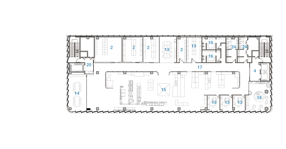
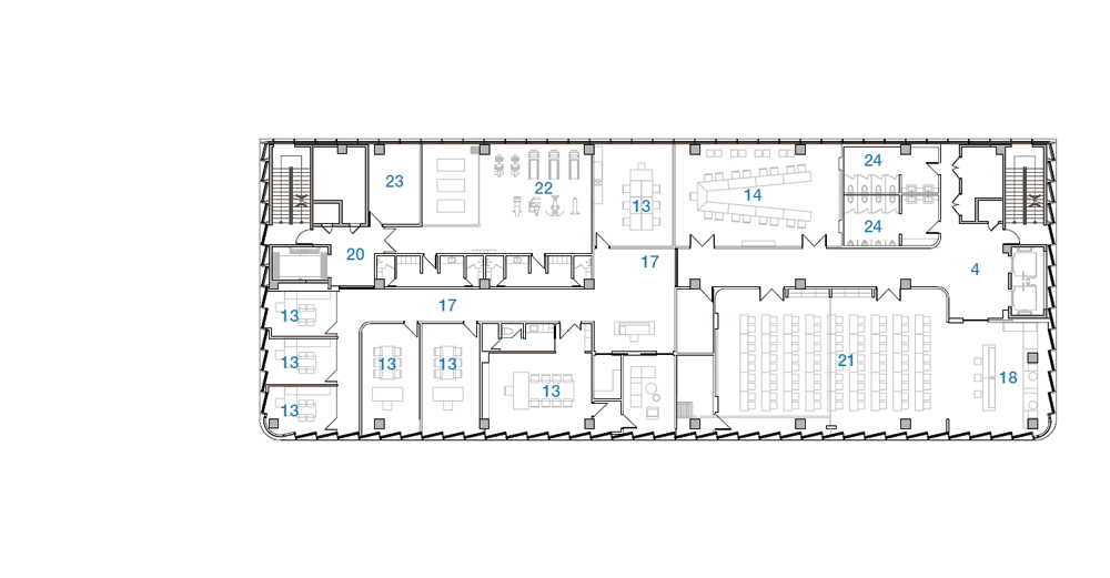
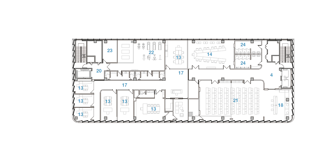
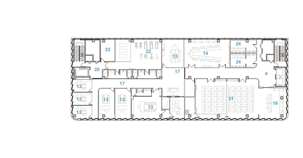
대전광역시 서구에 위치한 씨젠의료재단 대전충청검사센터 사옥은 질병검사 전문시설을 갖춘 검사센터로 전국 단위로 추진 중인 사옥 중 첫 번째 준공 프로젝트이다. 대지는 남북으로 길게 이어진 공공보행통로에 면해 있어 개방감 있는 정면성과 공공성의 조건을 갖추었다. 목욕탕, 수영장, 사우나 시설이 포함되어 5m의 높은 층고로 구성된 기존 온천 건물은 코로나 팬데믹을 거치면서 새로운 주인을 찾았고, 기존 구조만 남긴 상태에서 검사센터(의원)로 용도 변경, 대수선, 증축되었다.
새로운 공간의 아이디어는 누군가를 만나고 경험하고 기억할 수 있는 장소, 기업의 밝고 투명한 이미지를 담아낼 수 있는 장소, 지역과 상생하며 기업의 긍정적 가치를 높여주는 공간을 만드는 것이 건축의 핵심점이 되었다. 주변 경관이 대체로 낮고, 복잡한 패턴과 정리되지 않은 기존 건축 외관이 형성되어 있었기에 새로운 파사드는 간결하고 차별화된 디자인을 통한 기업의 가치 창출하고자 했다.
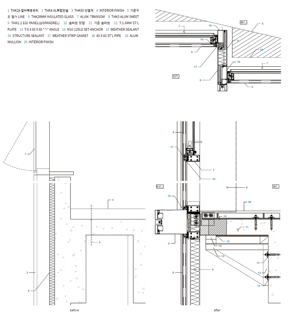
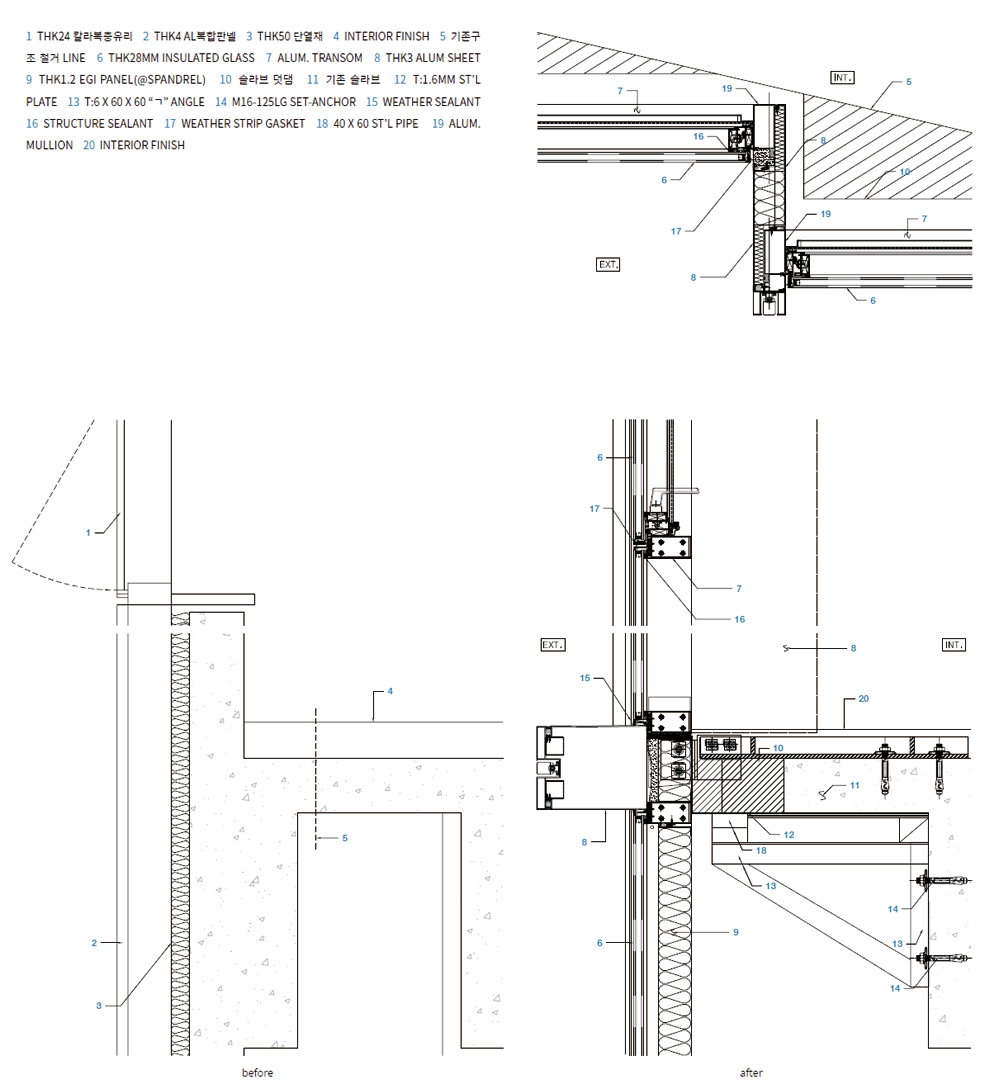
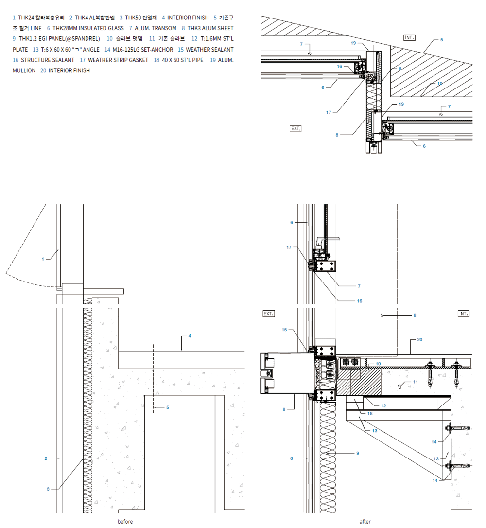
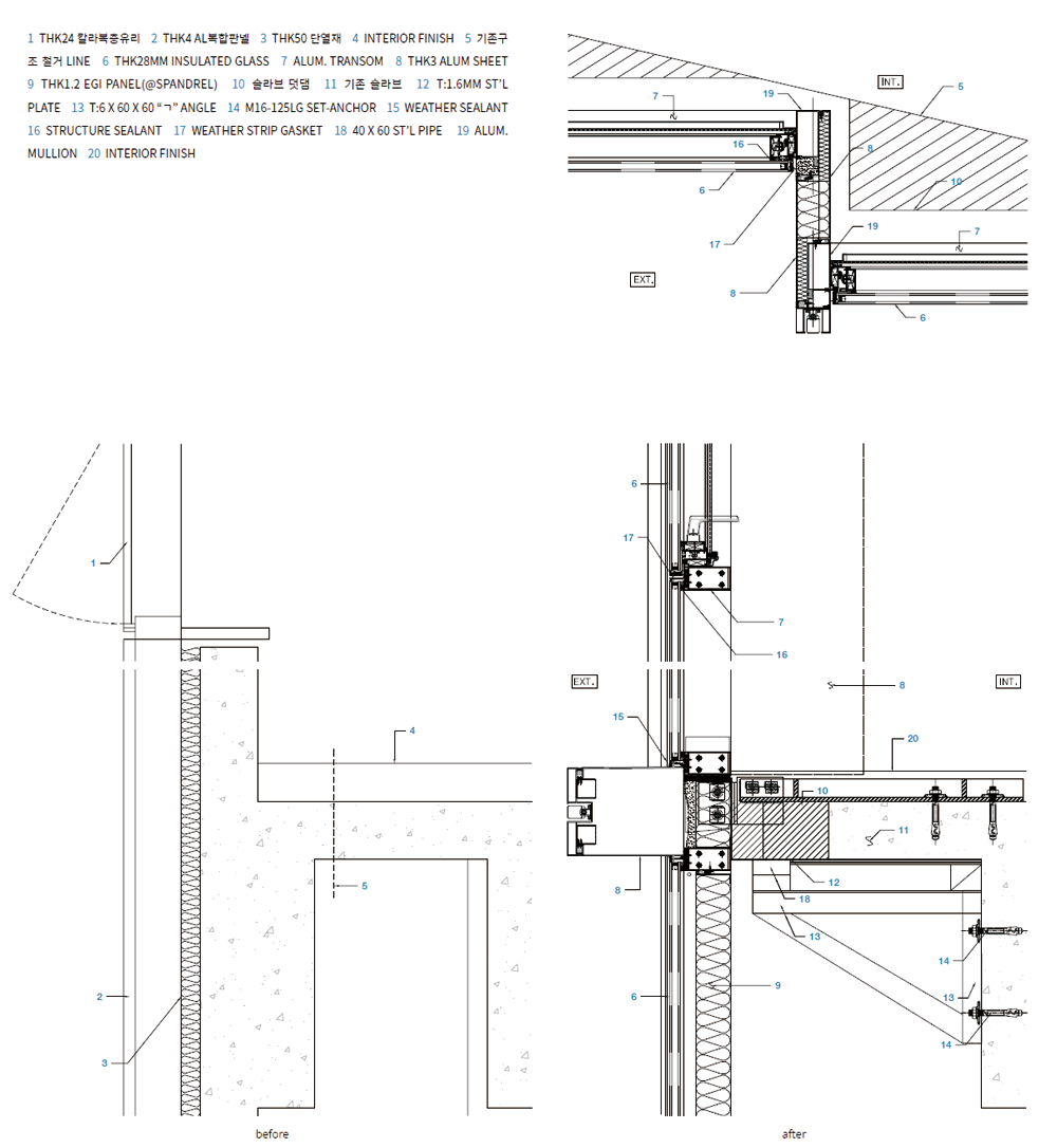
준공된 사옥의 두 가지 외부 재료는 백색 알루미늄 시트와 유리이다. 공공 보행 통로를 중심으로 유동 인구가 많고 접근성이 좋은 코너를 오픈하여 인지도를 높이고 자연스럽고 편안한 동선을 유도하였다. 내부 진입시 경험하는 개방된 로비 공간은 기존 슬라브와 보를 철거하여 개방된 공간을 확보하였고, 극적으로 대면하는 기업의 첫인상을 제공한다. 또한, 남·서·북측으로 사선 커튼 월과 곡면 유리, 경관 조명 적용하여 주·야간으로 다양한 도시 경관을 고려하였다. 사선 커튼 월을 설치하기 위한 과정에서 건축 한계선을 지키기 위해 기존 캔틸러버 보와 수벽, 슬라브 등 돌출 부분을 50cm 철거하고 개방감 있는 유리 커튼 월 방식의 새로운 파사드를 적용하였다.

















건축가 JAY Architects
위치 대전광역시 서구 만년동 330번지
용도 제1종근린생활시설(의원)
대지면적 1,870.30㎡
건축면적 1,280.13㎡
연면적 10,437.04㎡
규모 지하 2층, 지상 6층
건폐율 68.45%
용적률 388.80%
설계기간 2022. 4. - 11.
시공기간 2022. 11. - 2023. 7.
준공 2023. 7.
대표건축가 윤석로
프로젝트건축가 김지우
디자인팀 정미경, 최병득, 정준문
구조엔지니어 (주)유송엔지니어링
기계엔지니어 (주)정인엠이씨
전기엔지니어 (주)엘림전설
시공 (주)국보디자인
발주자 (재)씨젠의료재단
사진 윤준환
해당 프로젝트는 건축문화 2024년 4월호(Vol. 515)에 게재되었습니다.
The project was published in the April, 2024 recent projects of the magazine(Vol. 515).
April 2024 : vol. 515
Contents : SKETCH Living Room in Fantasy / Alexandr Krylov 환상적인 건축물 속 거실 / 알렉산드로스 크릴로프 : COMPETITION : RECENT PROJECT Gomso Salt Farm Smart Complex Center / LIM architects 곰소염전 스마트복합쉼터 / 건축
anc.masilwide.com
'Architecture Project > Office' 카테고리의 다른 글
| C - PROJECT (0) | 2024.05.15 |
|---|---|
| g:ign (0) | 2024.05.13 |
| Narakium Seonhwa-dong Building (0) | 2024.04.04 |
| IRIS Headquarters (0) | 2024.03.14 |
| HaneulJae (0) | 2024.03.04 |
마실와이드 | 등록번호 : 서울, 아03630 | 등록일자 : 2015년 03월 11일 | 마실와이드 | 발행ㆍ편집인 : 김명규 | 청소년보호책임자 : 최지희 | 발행소 : 서울시 마포구 월드컵로8길 45-8 1층 | 발행일자 : 매일



