
대지는 대구 반야월의 구도심에 위치한다. 이 지역은 한때 2차 산업의 호황으로 양적 개발이 있었으나 현재는 공항 인근 고도 제한과 난개발, 고령화와 인구 유입 감소 등의 문제로 수십년 동안 도시적 성장이 더딘 지역 중의 하나이다. 폭 8m의 작은 가로변은 낙후된 상가주택, 다가구주택, 근생 등이 무질서하게 혼재되어 오랫동안 피로가 쌓이면서 지치고 무기력해진 지역이었다. 이렇게 생명력이 약해진 가로 분위기에 작은 활기와 새로운 질서를 불어넣을 수 있는 건축적 해결책을 우선적으로 고민하면서 프로젝트를 진행하였다. 복잡하거나 난해한 매스의 조합보다는 차분한 질서를 잡을 수 있는 단순하고 명쾌한 형태와 틀이 필요했고, 그 질서의 틀 안에 지역 주민들의 흥미를 이끌어 내면서 건축물의 개성을 표출하는 요소가 필요하다고 판단했다.
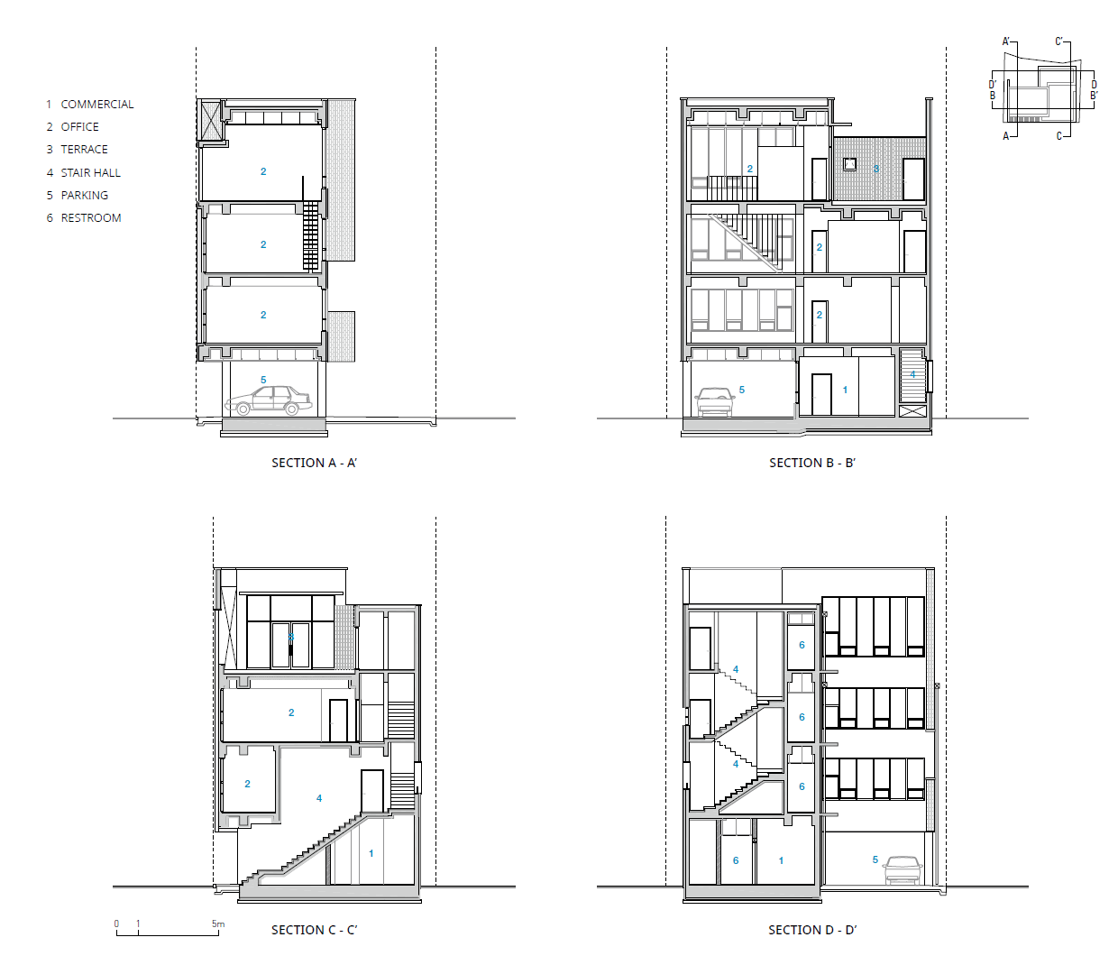
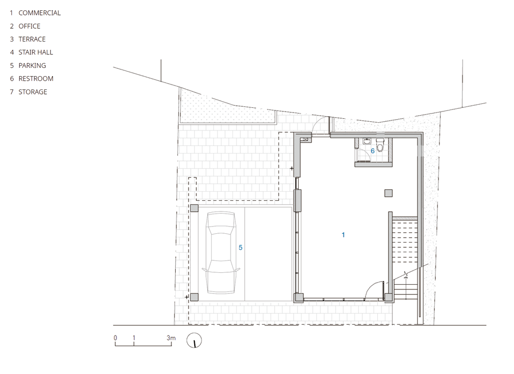
도로에서 1m 후퇴한 1층을 구성하여 양방향 주차차량으로부터 간섭 없는 건물 진입이 가능하다. 이는 이동 차량과 보행자의 측면에서도 심리적, 기능적 여유를 주었다. 외기에 열려 있는 계단을 올라가면 2층을 지나 자연스럽게 건물 내부로 진입하게 되고 4층 옥상 테라스까지 계단이 이어진다. 지상으로부터 외부, 내부 공간이 반복되면서 사용자가 지루하지 않게 수직 동선을 구성하고 있다. 옥상 테라스는 5m 높이의 콘크리트벽과 금속 루버로 둘러싸여 주변에 방해받지 않고 업무와 휴게공간으로 사용되면서 직·간접적으로 소통이 가능한 환기 공간으로 역할을 하고 있다.
건물의 정면은 북측도로를 향해있으나 남측창은 일조량이 부족하지 않도록 충분한 면적을 확보하였으며 동, 서측면은 이사와 환기 기능 외에는 개구부를 최소화하였다. 주용도인 사무소로서 균일한 채광을 위해 북측면은 전체 면을 창으로 계획하였고 그 위에 금속 루버를 설치하여 업무상 프라이버시와 더불어 주변 주택들과의 과한 시각적 간섭을 피할 수 있게 하였다. 이는 건물의 정면성을 강조하면서 지나가는 보행자로 하여금 관심을 유발하며 건물의 독특한 이미지를 각인시켜주는 역할을 하고 있다. 또한 하루중 시간의 경과에 따른 빛의 양과 루버를 통해 투과되는 빛의 질감에 따라 다양한 내·외부 경관을 연출하고 있다. 야간에도 내부 조명이 루버를 통해 부드럽게 필터링되면서 가로경관을 풍요롭게 한다.


















건축가 g:ign architects
위치 대구광역시 동구 율하동로28길 2
용도 근린생활시설(사무소, 소매점)
대지면적 162.00㎡
건축면적 96.84㎡
연면적 307.40㎡
규모 지상 4층
건폐율 59.78%
용적률 189.75%
설계기간 2022. 9. - 12.
시공기간 2023. 5. - 11.
준공 2023. 11.
대표건축가 박준형
프로젝트건축가 박준형
디자인팀 박재영
구조엔지니어 (주)이룸구조엔지니어링
기계엔지니어 대경기술단
전기엔지니어 한일전기설계
시공 (주)한남종합건설
발주자 건축사사무소 지아인
사진작가 김용수
해당 프로젝트는 건축문화 2024년 5월호(Vol. 516)에 게재되었습니다.
The project was published in the May, 2024 recent projects of the magazine(Vol. 516).
May 2024 : vol. 516
Contents : SKETCH City of Lost Memories / Hossain Mousavi 잃어버린 기억의 도시 / 허세인 무사비 : COMPETITION : RECENT PROJECT g:ign / g:ign architects 지아인(地我因) / 건축사사무소 지아인Arc and
anc.masilwide.com
'Architecture Project > Office' 카테고리의 다른 글
| DGB Financial Center Remodeling (0) | 2024.05.16 |
|---|---|
| C - PROJECT (0) | 2024.05.15 |
| Seegene Medical Foundation Daejeon & Chungcheong Laboratory Center (0) | 2024.04.25 |
| Narakium Seonhwa-dong Building (0) | 2024.04.04 |
| IRIS Headquarters (0) | 2024.03.14 |
마실와이드 | 등록번호 : 서울, 아03630 | 등록일자 : 2015년 03월 11일 | 마실와이드 | 발행ㆍ편집인 : 김명규 | 청소년보호책임자 : 최지희 | 발행소 : 서울시 마포구 월드컵로8길 45-8 1층 | 발행일자 : 매일



