
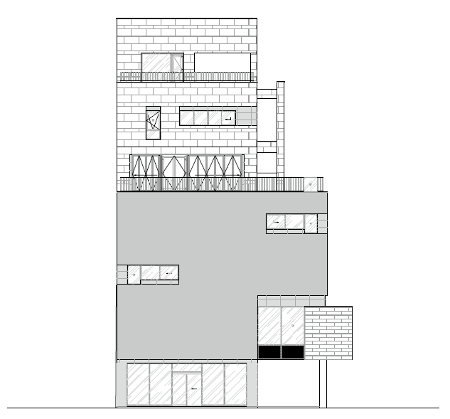
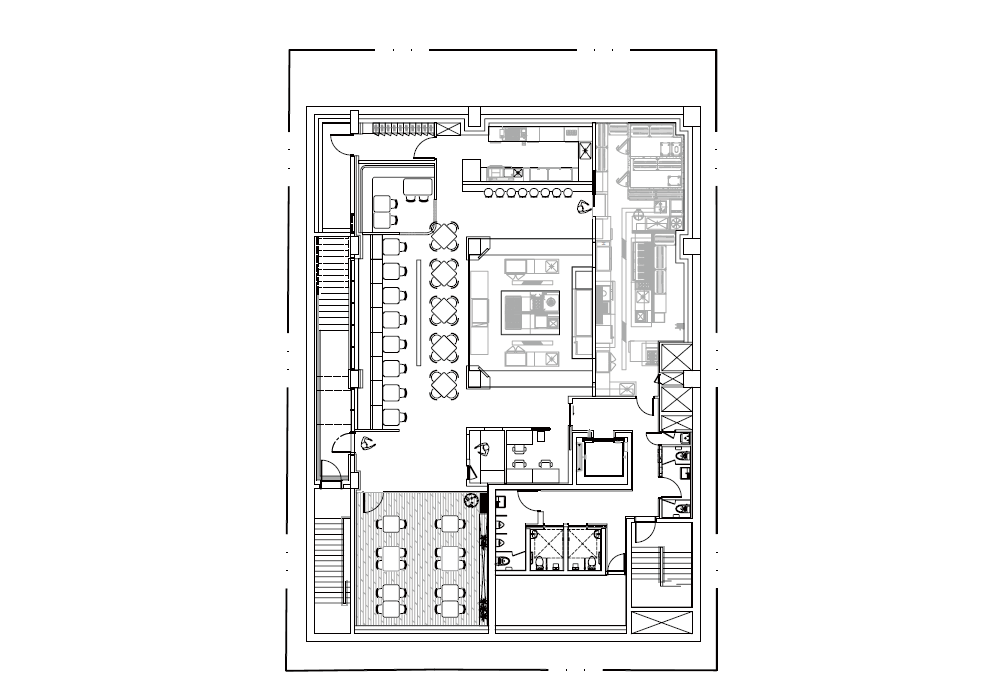
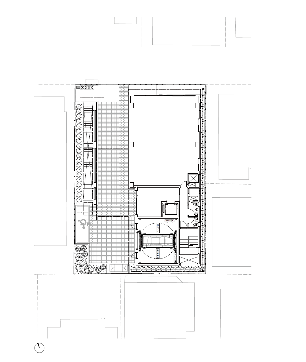
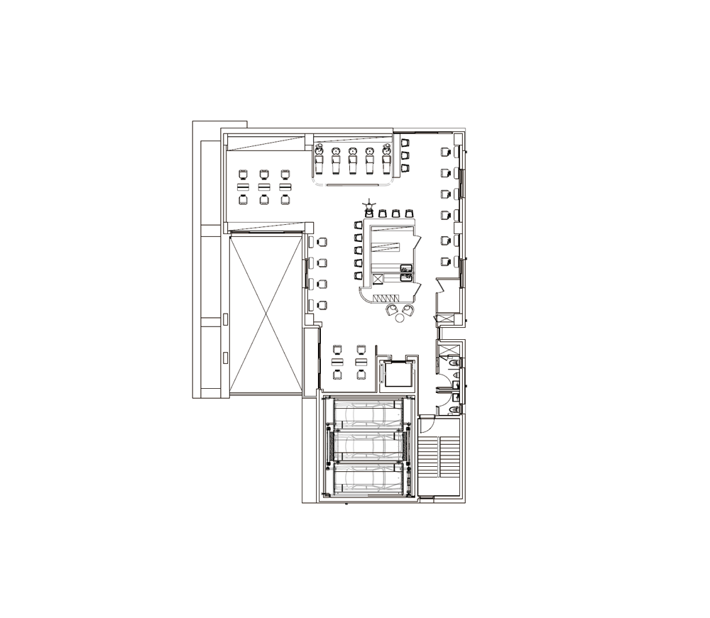
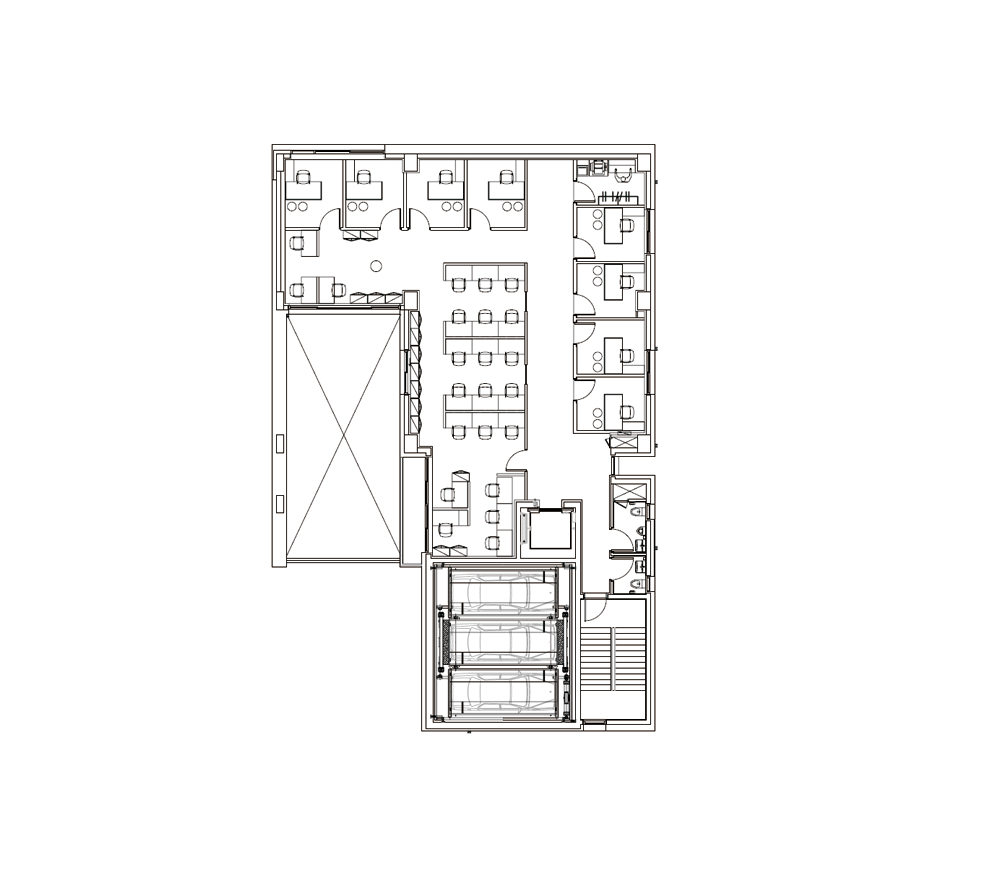
라피네는 압구정로데오 도심의 혼잡함 속에서 조용히 아름다움과 기능성을 결합한 건축물로 존재한다. 라피네는 건축물로 막혀있는 가로 환경 속에서 사람들에게 편리함과 안정감을 주면서 하늘과 소통하는 공간이기도 하다. 지상 1층과 지하 2개층은 도로에서 각각 진입이 가능하고, 2층 이상부터는 지상에서 연결되는 동선을 통해 각 층으로 진입이 가능하다. 압구정로데오 지역의 큰 문제 중 하나는 주차로 인한 불편함이다. 부족한 주차공간과 주차 대기 등이 차량의 흐름을 방해하기 때문이다. 라피네는 기계식 주차장을 도로에서 떨어진 대지의 안쪽에 배치하여 주차를 대지 내에서 해결할 수 있도록 계획했다.
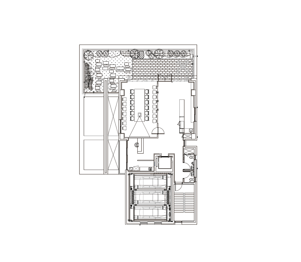
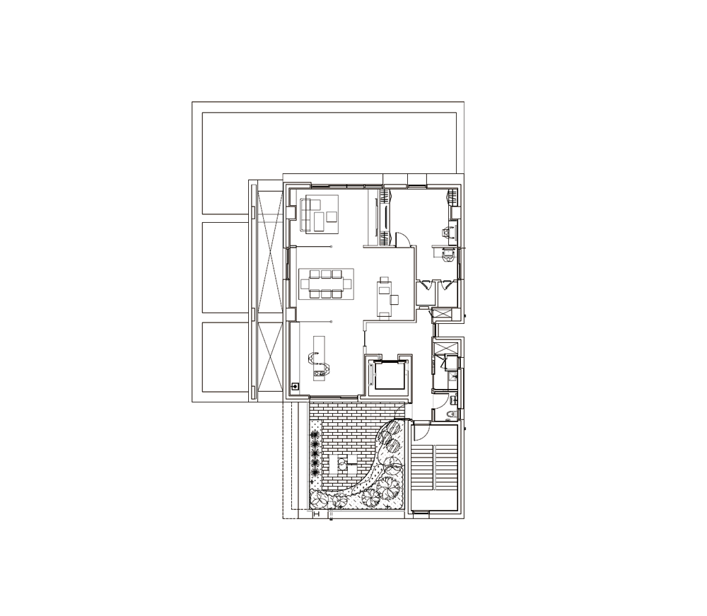
건물의 외장재는 백색의 롱브릭과 판석이 사용되었으며, 재료가 주는 물리적인 질감이 시간에 따라 변화한다. 일조권 사선 제한에 따라 건축물이 후퇴하는 부분마다 테라스를 조성하여 층별로 조경 공간을 가지게 되었다. 건물의 외관은 주변의 도시적 맥락에 맞게 조화롭게 분절되었다. 분절된 매스와 가벽으로 만들어진 내외부 공간은 도시 가로의 보행자들에게 라피네의 볼륨감과 깊이감을 느낄 수 있게 한다.






















건축가 BETHELO ARCHITECT
위치 서울특별시 강남구 신사동 644-6
용도 업무시설, 제1종 근린생활시설, 제2종 근린생활시설
대지면적 644.40㎡
건축면적 374.24㎡
연면적 2,148.90㎡
규모 지하 2층, 지상 6층
건폐율 58.08%
용적률 199.70%
설계기간 2019 - 2020
시공기간 2020. 9. - 2021. 12.
준공 2021. 12.
대표건축가 장석용
프로젝트건축가 조소현
디자인팀 유승범, 안세호, 안진용
구조엔지니어 주식회사 명아주구조기술
기계엔지니어 주식회사 지케이이엔지
전기엔지니어 주식회사 지케이이엔지
시공 유호산업개발(주)
사진작가 김창묵
해당 프로젝트는 건축문화 2024년 5월호(Vol. 516)에 게재되었습니다.
The project was published in the May, 2024 recent projects of the magazine(Vol. 516).
May 2024 : vol. 516
Contents : SKETCH City of Lost Memories / Hossain Mousavi 잃어버린 기억의 도시 / 허세인 무사비 : COMPETITION : RECENT PROJECT g:ign / g:ign architects 지아인(地我因) / 건축사사무소 지아인Arc and
anc.masilwide.com
'Architecture Project > Office' 카테고리의 다른 글
| MONOSPINAL (0) | 2024.06.11 |
|---|---|
| 140 Wireless Building (0) | 2024.05.29 |
| DGB Financial Center Remodeling (0) | 2024.05.16 |
| C - PROJECT (0) | 2024.05.15 |
| g:ign (0) | 2024.05.13 |
마실와이드 | 등록번호 : 서울, 아03630 | 등록일자 : 2015년 03월 11일 | 마실와이드 | 발행ㆍ편집인 : 김명규 | 청소년보호책임자 : 최지희 | 발행소 : 서울시 마포구 월드컵로8길 45-8 1층 | 발행일자 : 매일



