
1986년에 준공된 대우조선해양사옥을 인수한 DGB금융센터는 유동인구가 많은 청계천과 무교동의 접점 코너에 위치한다. 청계천을 따라 형성된 80년대 중심업무시설들은 우리나라 산업의 비약적인 발전의 표상이지만 행정, 금융, 기업의 본사 등 프라이빗한 공간으로 이용됨으로써 도시와 일반 시민들과의 접점이 없는 장소가 되었다. 결국 이는 우리가 알고 있는 도심공동화로 삭막한 도시 공간으로 변모하였다. 시대가 바뀌고 사람들은 청계천변을 따라 모여들기 시작하고, 기업의 사유화된 공간이 시민들과 함께할 수 있는 공간으로 성격이 바뀌면서 공간의 공유로 수익을 창출하고 소통하는 상호 보완적인 관계 맺기를 통해 진화하고 있다.
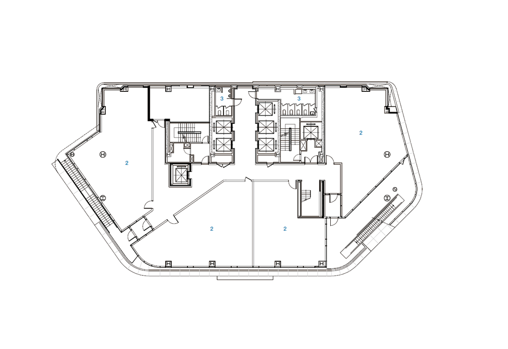
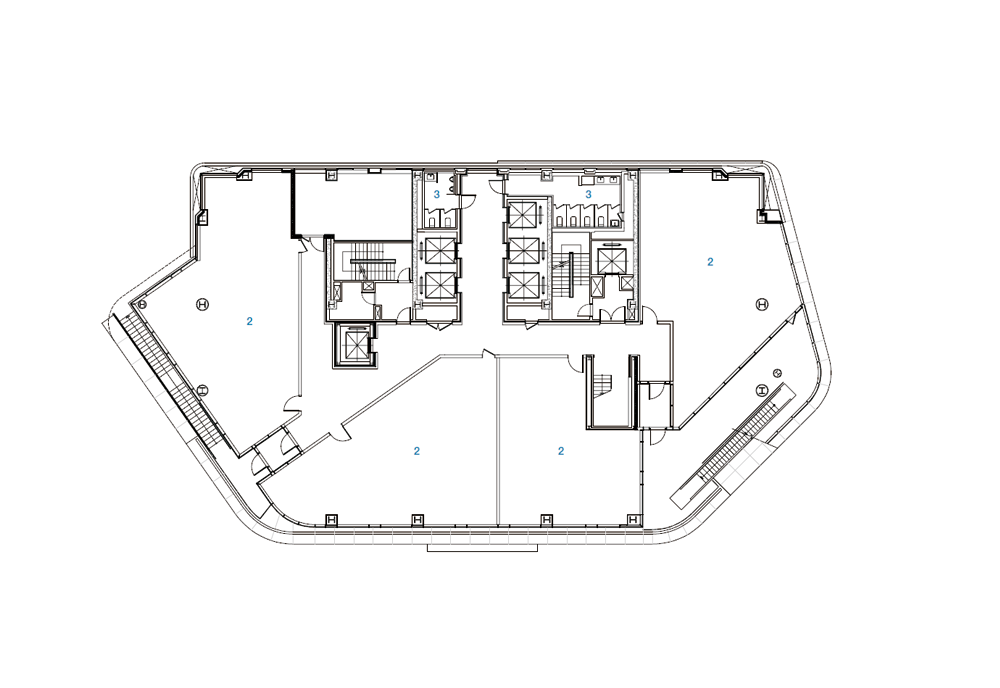
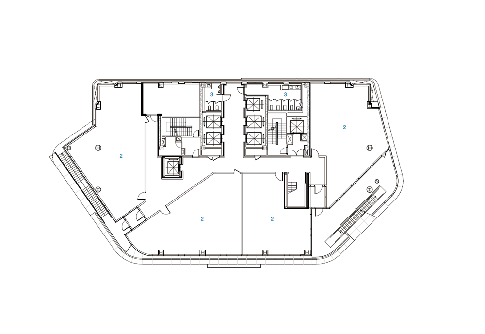
공공건축물이 가지는 공공성과 결은 다르지만, 민간 건축물로서 도시와 관계하며 시민들이 공유할 수 있는 공공성을 찾으려 고민한 프로젝트이기도 하다. 가장 중요한 포인트는 건물로의 원활한 접근이다. 사람들의 이동 동선이 빈번한 청계천변과 무교동에서 누구나 쉽게 접근할 수 있는 수직 동선을 추가하고 그 동선을 따라 사람들은 건물과 자연 사이에서 시간적, 계절적 변화를 느낄 수 있게 하였다.
건축적으로는 기존 건물과 조화를 이루며, 오피스 저층부를 일반 시민들에게 개방하고 내·외부 공간을 적극적으로 연계하여 친근감 있고 자유롭게 사용할 수 있도록 하는 것이다. 강한 조형성과 패턴의 기존 석재건물과 어우러질 수 있도록 패턴이 없는 유선형 유리 매스로 저층부 보행 및 가로환경에 편안한 이미지를 주고, 유선형의 매스에 2층으로 유도된 수직 이동 동선을 관입시켜 입체적으로 강조하며 반사유리를 사용하여 주변 풍경의 변화를 담아낸다. 저층부 투명 유리는 내부 공간과의 시각적 교감과 활기를 가로로 투영하며, 그라데이션 패턴으로 프릿 처리하여 순백의 기업이미지를 구축한다. 2층 타공 천정판을 타고 흐르는 빛은 내·외부 공간을 확장하여 깊이감을 더하며, 청계천 변에 새로운 빛의 랜드마크를 제공한다.











건축가 AIN Group
위치 서울특별시 중구 남대문로 125
용도 업무시설, 근린생활시설
대지면적 2,114.70㎡
건축면적 1,043.93㎡
연면적 25,075.77㎡
규모 지하 5층, 지상 17층
건폐율 49.37%
용적률 755.13%
설계기간 2021. 2. - 2022. 7.
시공기간 2022. 9. - 2023. 4.
준공 2023. 4.
대표건축가 최영희, 조광제
디자인팀 박광수, 김지수, 박준구, 홍호정
인테리어 (주)키예노
조경 아뜰리에나무
조명 디자인스튜디오 라인
구조엔지니어 (주)누리구조
기계엔지니어 (주)주성이엔지
전기엔지니어 (주)한일엠이씨
시공 양우종합건설
발주자 DGB금융그룹
사진작가 김창묵
해당 프로젝트는 건축문화 2024년 5월호(Vol. 516)에 게재되었습니다.
The project was published in the May, 2024 recent projects of the magazine(Vol. 516).
May 2024 : vol. 516
Contents : SKETCH City of Lost Memories / Hossain Mousavi 잃어버린 기억의 도시 / 허세인 무사비 : COMPETITION : RECENT PROJECT g:ign / g:ign architects 지아인(地我因) / 건축사사무소 지아인Arc and
anc.masilwide.com
'Architecture Project > Office' 카테고리의 다른 글
| 140 Wireless Building (0) | 2024.05.29 |
|---|---|
| Raffine (0) | 2024.05.17 |
| C - PROJECT (0) | 2024.05.15 |
| g:ign (0) | 2024.05.13 |
| Seegene Medical Foundation Daejeon & Chungcheong Laboratory Center (0) | 2024.04.25 |
마실와이드 | 등록번호 : 서울, 아03630 | 등록일자 : 2015년 03월 11일 | 마실와이드 | 발행ㆍ편집인 : 김명규 | 청소년보호책임자 : 최지희 | 발행소 : 서울시 마포구 월드컵로8길 45-8 1층 | 발행일자 : 매일



