
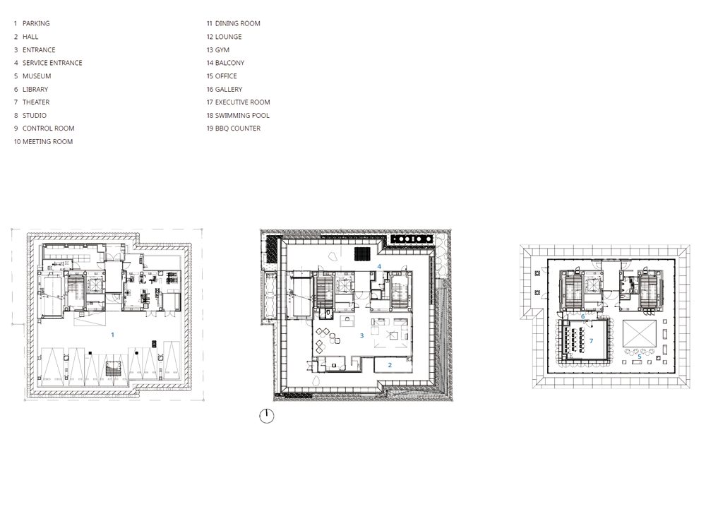
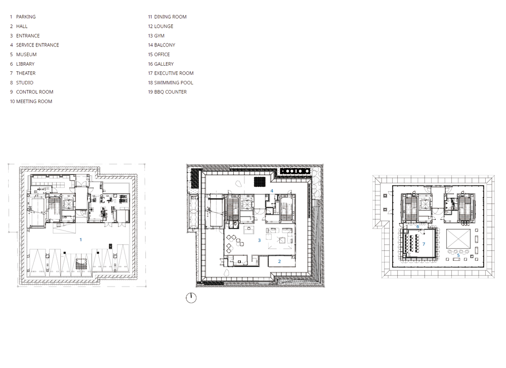
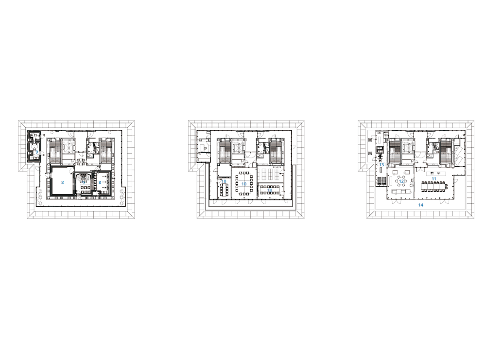
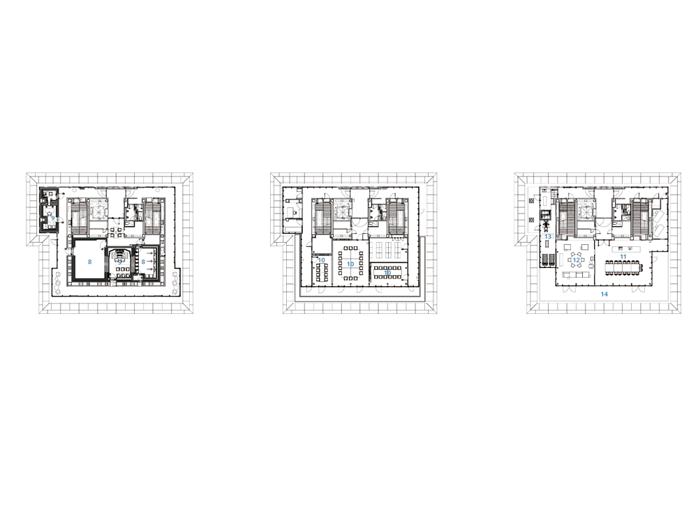
모노스파이널은 도쿄에 본사를 둔 게임 제작사의 본사 이전을 위해 지어졌다. 건축주는 많은 직원이 창작과 운영에 전념하는 만큼, 직원들의 운영 업무에 대한 부담을 대폭 줄이면서 집중과 휴식 사이의 균형을 제공하는 공간이길 바랐다. 건물의 외관의 특징적인 경사 벽은 이러한 의도를 반영한 것이다. 건축가는 특징적인 경사벽으로 둘러싸인 발코니를 주요 구조물에 포함시킬 것인지에 대해 고민했다. 결국 모든 층의 층고와 벽체 각도를 조절하고 벽체 사이의 스카이뷰를 구조적 요소에 의해 방해받지 않고 프레임화할 수 있도록 경사벽을 주요 구조물 골조에서 격리하였다. 4층 이상에는 사무실, 3층에는 스튜디오, 1층과 2층에는 복층 공실이 있는 입구가 있어 건물은 다양한 공간 특성을 요구하는 공간을 수직으로 쌓았다. 3층 스튜디오 공간은 층고 트러스가 있는 구조를 사용하여 위층 사무실에는 비교적 작은 기둥으로 네 모서리의 기둥과 통합된 구조 시스템을 가지고 있다. CFT 기둥은 네 모서리에 배치되어 지하 방진장치가 상부의 하중을 통합한다. 이를 통해 인입 강도를 억제하면서 설치되는 장치의 수를 최소화하고 합리적인 방진 시스템을 구축했다.
대지의 양방향으로는 기차가 지나다니는 고가 철도가 있고, 주변으로는 소규모 건물들이 있다. 대지의 경사는 기존 건물로 둘러싸인 저층부가 더 높은 반면, 상층부는 더 낮은 개방감을 제공한다. 기울어진 벽들은 빛, 바람 그리고 소리의 환경적인 요소들을 강화하면서도 각 층의 목적에 따라 최적화되어 있다. 예를 들어, 게임 캐릭터의 녹음을 위한 스튜디오는 철도의 소음을 줄이기 위해 가능한 높이가 높아져 3층의 벽 뒤에 위치한다. 관람객이 주로 이용하는 공간은 저층부에 배치하고, 직원들의 프라이버시를 위한 공간은 높은 층에 배치했다. 2층과 3층에는 극장과 스튜디오 등 외부와 격리가 필요한 프로그램을 배치했다. 5층의 다이닝 룸, 라운지, 체육관은 직원들이 긴장을 풀고 재충전할 수 있는 공간을 제공하고, 7층은 직원들이 창의적인 작업에 참여하거나 중요한 손님을 위한 응접용 공간이다. 옥상에는 직원들을 위한 바비큐 카운터와 수영장 등의 편의시설을 마련했다. 고가 철도와 수직적으로 더 먼 곳에 위치한 5층에서 낮아진 벽들은 어수선한 도시 경관과 하늘의 일부를 잘라서 전망을 제공한다.



















건축가 Makoto Yamaguchi Design
위치 일본, 도쿄
대지면적 802.43㎡
건축면적 521.52㎡
연면적 4,105.74㎡
건폐율 64.99%
용적률 511.66%
규모 지하 1층, 지상 8층
준공 2023. 6.
시공 Shimizu Corporation
조경 SOLSO
사진작가 Koichi Torimura
'Architecture Project > Office' 카테고리의 다른 글
| Bonfiglioli HQ (0) | 2024.07.31 |
|---|---|
| PONG Building (0) | 2024.07.15 |
| 140 Wireless Building (0) | 2024.05.29 |
| Raffine (0) | 2024.05.17 |
| DGB Financial Center Remodeling (0) | 2024.05.16 |
마실와이드 | 등록번호 : 서울, 아03630 | 등록일자 : 2015년 03월 11일 | 마실와이드 | 발행ㆍ편집인 : 김명규 | 청소년보호책임자 : 최지희 | 발행소 : 서울시 마포구 월드컵로8길 45-8 1층 | 발행일자 : 매일



